Property
Account |
| Property ID: | 12661 | Abbreviated Legal Description: | 18-8-36 S1/2SE1/4NE1/4 |
| Parcel Number: | 360818140005 | Agent Code: | |
| Type: | Real | | |
| Tax Area: | 123 - 140-7 | Land Use Code | 83 |
| Open Space: | Y | DFL | N |
| Historic Property: | N | Remodel Property: | N |
| Multi-Family Redevelopment: | N | | |
| Township: | 8 | Section: | 18 |
| Range: | 36 |
Location |
| Address: | WA 99362 | Mapsco: | |
| Neighborhood: | 0 Farm | Map ID: | |
| Neighborhood CD: | 3230 |
Owner |
| Name: | SMALL SUSAN JOY BROWN & | Owner ID: | 69122 |
| Mailing Address: | SHARON LOUISE BROWN HUDSON 290 BALDWIN RD WALLA WALLA, WA 99362 | % Ownership: | 100.0000000000% |
| | | Exemptions: | |
Taxes and Assessment Details
Values
| (+) Improvement Homesite Value: | + | $0 | |
| (+) Improvement Non-Homesite Value: | + | $0 | |
| (+) Land Homesite Value: | + | $0 | |
| (+) Land Non-Homesite Value: | + | $0 | |
| (+) Curr Use (HS): | + | $0 | $0 |
| (+) Curr Use (NHS): | + | $33,420 | $12,160 |
| | | -------------------------- | |
| (=) Market Value: | = | $33,420 | |
| (–) Productivity Loss: | – | $21,260 | |
| | | -------------------------- | |
| (=) Subtotal: | = | $12,160 | |
| (+) Senior Appraised Value: | + | $0 | |
| (+) Non-Senior Appraised Value: | + | $12,160 | |
| | | -------------------------- | |
| (=) Total Appraised Value: | = | $12,160 | |
| (–) Senior Exemption Loss: | – | $0 | |
| (–) Exemption Loss: | – | $0 | |
| | | -------------------------- | |
| (=) Taxable Value: | = | $12,160 | |
Taxing Jurisdiction
| Owner: | SMALL SUSAN JOY BROWN & | | |
| % Ownership: | 100.0000000000% | | |
| Total Value: | $33,420 | | |
| Tax Area: | 123 - 140-7 |
| CERFD | CURRENT EXPENSE REFUND 010 | 0.0000000000 | $12,160 | $12,160 | $0.00 | | |
| CURREXP | CURRENT EXPENSE 010 | 1.0175366760 | $12,160 | $12,160 | $12.37 | | |
| HUMNSERV | HUMAN SERVICES 119 | 0.0250000000 | $12,160 | $12,160 | $0.30 | | |
| SLDREL | SOLDIERS RELIEF 121 | 0.0155990005 | $12,160 | $12,160 | $0.19 | | |
| EMERGSER | EMS 147 | 0.3792580840 | $12,160 | $12,160 | $4.61 | | |
| EMSRFD | EMS REFUND 147 | 0.0000000000 | $12,160 | $12,160 | $0.00 | | |
| FD7EXP | FD #7 EXPENSE 695 | 0.6678024226 | $12,160 | $12,160 | $8.12 | | |
| RLBRFD | RURAL LIBRARY REFUND 623 | 0.0000000000 | $12,160 | $12,160 | $0.00 | | |
| RURALLIB | RURAL LIBRARY 623 | 0.3710609029 | $12,160 | $12,160 | $4.51 | | |
| PORTRFD | PORT REFUND 640 | 0.0000000000 | $12,160 | $12,160 | $0.00 | | |
| PORTWWGEN | PORT OF WW 640 | 0.2460186015 | $12,160 | $12,160 | $2.99 | | |
| SD140BOND | SD #140 BOND 764 | 0.8342371393 | $12,160 | $12,160 | $10.14 | | |
| SD140GEN | SD #140 GENERAL 760 | 2.0646500647 | $12,160 | $12,160 | $25.11 | | |
| ST2 | STATE SCHOOL PART 2 600 | 0.8131451643 | $12,160 | $12,160 | $9.89 | | |
| STATESCHL | STATE SCHOOL 600 | 1.5158548041 | $12,160 | $12,160 | $18.43 | | |
| STREFUND | STATE REFUND LEVY 603 | 0.0000000000 | $12,160 | $12,160 | $0.00 | | |
| COROAD | COUNTY ROAD 115 | 1.6549953990 | $12,160 | $12,160 | $20.12 | | |
| CRPRD | COUNTY ROAD REFUND 115 | 0.0000000000 | $12,160 | $12,160 | $0.00 | | |
| | Total Tax Rate: | 9.6051582589 | | | | | |
| | | | | Taxes w/Current Exemptions: | $116.78 | | |
| | | | | Taxes w/o Exemptions: | $116.78 | | |
Improvement / Building
Sketch
| No sketches available for this property. |
Property Image
Land
| 1 | 65-C1 | Class 1 65 BU | 20.0000 | 0.00 | 0.00 | 0.00 | 1.00 | $33,420 | $12,160 |
Roll Value History
| 2025 | N/A | N/A | N/A | N/A | N/A |
| 2024 | $0 | $34,240 | $11,700 | $11,700 | $11,700 |
| 2023 | $0 | $33,420 | $12,160 | $12,160 | $12,160 |
| 2022 | $0 | $30,740 | $11,660 | $11,660 | $11,660 |
| 2021 | $0 | $28,140 | $11,620 | $11,620 | $11,620 |
| 2020 | $0 | $26,200 | $11,940 | $11,940 | $11,940 |
| 2019 | $0 | $25,100 | $12,240 | $12,240 | $12,240 |
| 2018 | $0 | $24,980 | $13,900 | $13,900 | $13,900 |
| 2017 | $0 | $23,920 | $14,100 | $14,100 | $14,100 |
| 2016 | $0 | $23,920 | $14,160 | $14,160 | $14,160 |
| 2015 | $0 | $23,720 | $12,520 | $12,520 | $12,520 |
| 2014 | $0 | $23,720 | $12,680 | $12,680 | $12,680 |
| 2013 | $0 | $22,400 | $10,400 | $10,400 | $10,400 |
| 2012 | $0 | $7,200 | $0 | $0 | $0 |
| 2011 | $0 | $8,000 | $0 | $0 | $0 |
| 2010 | $0 | $7,400 | $0 | $0 | $0 |
| 2009 | $0 | $7,400 | $0 | $0 | $0 |
| 2008 | $0 | $6,500 | $0 | $0 | $0 |
| 2007 | $0 | $6,800 | $0 | $0 | $0 |
| 2006 | $0 | $6,800 | $0 | $0 | $0 |
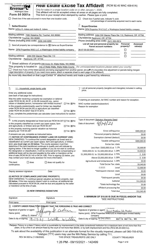
Deed and Sales History
| 1 | 01/24/2024 | BARGAIN & | BARGAIN & SALE DEED | SMALL SUSAN JOY BROWN & | SMALL SUSAN JOY BROWN & | | | | 147057 | 2024-00400 |
| 2 | 03/18/2021 | SWP | Special Warranty Deed | BROWN DONNA B | SMALL SUSAN JOY BROWN & | | 15 PARCELS | $0.00 | 141197 | 2021-03519 |
| 3 | 11/16/2010 | WARRANTY D | WARRANTY DEED | BROWN, RODNEY L ESTATE OF | BROWN DONNA B | | | | 119339 | 2010-09352 |
| 4 | 07/11/1973 | WARRANTY D | WARRANTY DEED | | | | | $0.00 | 0 | 7053-0615 |
Payout Agreement
| No payout information available.. |