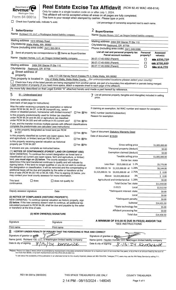
Property
Account |
| Property ID: | 12656 | Abbreviated Legal Description: | 17-8-36 E1/2SE1/4 |
| Parcel Number: | 360817410004 | Agent Code: | |
| Type: | Real | | |
| Tax Area: | 123 - 140-7 | Land Use Code | 83 |
| Open Space: | Y | DFL | N |
| Historic Property: | N | Remodel Property: | N |
| Multi-Family Redevelopment: | N | | |
| Township: | 8 | Section: | 17 |
| Range: | 36 |
Location |
| Address: | WA 99362 | Mapsco: | |
| Neighborhood: | 0 Farm | Map ID: | |
| Neighborhood CD: | 3230 |
Owner |
| Name: | YEEND ARLISS ANN | Owner ID: | 70875 |
| Mailing Address: | 1400 DALLES MILITARY RD #141 WALLA WALLA, WA 99362 | % Ownership: | 100.0000000000% |
| | | Exemptions: | |
Taxes and Assessment Details
Values
| (+) Improvement Homesite Value: | + | $0 | |
| (+) Improvement Non-Homesite Value: | + | $0 | |
| (+) Land Homesite Value: | + | $0 | |
| (+) Land Non-Homesite Value: | + | $0 | |
| (+) Curr Use (HS): | + | $0 | $0 |
| (+) Curr Use (NHS): | + | $138,850 | $53,500 |
| | | -------------------------- | |
| (=) Market Value: | = | $138,850 | |
| (–) Productivity Loss: | – | $85,350 | |
| | | -------------------------- | |
| (=) Subtotal: | = | $53,500 | |
| (+) Senior Appraised Value: | + | $0 | |
| (+) Non-Senior Appraised Value: | + | $53,500 | |
| | | -------------------------- | |
| (=) Total Appraised Value: | = | $53,500 | |
| (–) Senior Exemption Loss: | – | $0 | |
| (–) Exemption Loss: | – | $0 | |
| | | -------------------------- | |
| (=) Taxable Value: | = | $53,500 | |
Taxing Jurisdiction
| Owner: | YEEND ARLISS ANN | | |
| % Ownership: | 100.0000000000% | | |
| Total Value: | $138,850 | | |
| Tax Area: | 123 - 140-7 |
| CERFD | CURRENT EXPENSE REFUND 010 | 0.0000000000 | $53,500 | $53,500 | $0.00 | | |
| CURREXP | CURRENT EXPENSE 010 | 1.0175366760 | $53,500 | $53,500 | $54.44 | | |
| HUMNSERV | HUMAN SERVICES 119 | 0.0250000000 | $53,500 | $53,500 | $1.34 | | |
| SLDREL | SOLDIERS RELIEF 121 | 0.0155990005 | $53,500 | $53,500 | $0.83 | | |
| EMERGSER | EMS 147 | 0.3792580840 | $53,500 | $53,500 | $20.29 | | |
| EMSRFD | EMS REFUND 147 | 0.0000000000 | $53,500 | $53,500 | $0.00 | | |
| FD7EXP | FD #7 EXPENSE 695 | 0.6678024226 | $53,500 | $53,500 | $35.73 | | |
| RLBRFD | RURAL LIBRARY REFUND 623 | 0.0000000000 | $53,500 | $53,500 | $0.00 | | |
| RURALLIB | RURAL LIBRARY 623 | 0.3710609029 | $53,500 | $53,500 | $19.85 | | |
| PORTRFD | PORT REFUND 640 | 0.0000000000 | $53,500 | $53,500 | $0.00 | | |
| PORTWWGEN | PORT OF WW 640 | 0.2460186015 | $53,500 | $53,500 | $13.16 | | |
| SD140BOND | SD #140 BOND 764 | 0.8342371393 | $53,500 | $53,500 | $44.63 | | |
| SD140GEN | SD #140 GENERAL 760 | 2.0646500647 | $53,500 | $53,500 | $110.46 | | |
| ST2 | STATE SCHOOL PART 2 600 | 0.8131451643 | $53,500 | $53,500 | $43.50 | | |
| STATESCHL | STATE SCHOOL 600 | 1.5158548041 | $53,500 | $53,500 | $81.10 | | |
| STREFUND | STATE REFUND LEVY 603 | 0.0000000000 | $53,500 | $53,500 | $0.00 | | |
| COROAD | COUNTY ROAD 115 | 1.6549953990 | $53,500 | $53,500 | $88.54 | | |
| CRPRD | COUNTY ROAD REFUND 115 | 0.0000000000 | $53,500 | $53,500 | $0.00 | | |
| | Total Tax Rate: | 9.6051582589 | | | | | |
| | | | | Taxes w/Current Exemptions: | $513.87 | | |
| | | | | Taxes w/o Exemptions: | $513.87 | | |
Improvement / Building
Sketch
| No sketches available for this property. |
Property Image
Land
| 1 | WASTE | Waste | 4.0000 | 0.00 | 0.00 | 0.00 | 1.00 | $0 | $0 |
| 2 | 70-C1 | Class 1 70 BU | 76.0000 | 0.00 | 0.00 | 0.00 | 1.00 | $138,850 | $53,500 |
Roll Value History
| 2025 | N/A | N/A | N/A | N/A | N/A |
| 2024 | $0 | $158,780 | $57,510 | $57,510 | $57,510 |
| 2023 | $0 | $138,850 | $53,500 | $53,500 | $53,500 |
| 2022 | $0 | $129,050 | $51,300 | $51,300 | $51,300 |
| 2021 | $0 | $118,410 | $51,070 | $51,070 | $51,070 |
| 2020 | $0 | $110,120 | $52,520 | $52,520 | $52,520 |
| 2019 | $0 | $105,490 | $53,810 | $53,810 | $53,810 |
| 2018 | $0 | $104,960 | $61,030 | $61,030 | $61,030 |
| 2017 | $0 | $100,550 | $62,020 | $62,020 | $62,020 |
| 2016 | $0 | $100,550 | $62,170 | $62,170 | $62,170 |
| 2015 | $0 | $99,790 | $55,020 | $55,020 | $55,020 |
| 2014 | $0 | $99,790 | $55,860 | $55,860 | $55,860 |
| 2013 | $0 | $94,500 | $45,700 | $45,700 | $45,700 |
| 2012 | $0 | $31,800 | $0 | $0 | $0 |
| 2011 | $0 | $33,100 | $0 | $0 | $0 |
| 2010 | $0 | $30,700 | $0 | $0 | $0 |
| 2009 | $0 | $30,900 | $0 | $0 | $0 |
| 2008 | $0 | $27,100 | $0 | $0 | $0 |
| 2007 | $0 | $28,300 | $0 | $0 | $0 |
| 2006 | $0 | $28,300 | $0 | $0 | $0 |
Deed and Sales History
| 1 | 01/16/2024 | QCD | QUIT CLAIM DEED | YEEND ARLISS ANN | D & M YEEND FAMILY LLC | | | $22,424.00 | 147021 | 2024-00212 |
|   | |
| 2 | 01/16/2024 | SURVEY | SURVEY | | | | | | 0 | 2024-00216 |
| 3 | 11/21/2021 | COMMUNITY | COMMUNITY PROPERTY AGREEMENT | YEEND DARRELL C | YEEND ARLISS ANN | | | $0.00 | 143188 | 2022-00166 |
| 4 | 02/01/1967 | WARRANTY D | WARRANTY DEED | | | | | $0.00 | 0 | 3210-484385 |
Payout Agreement
| No payout information available.. |