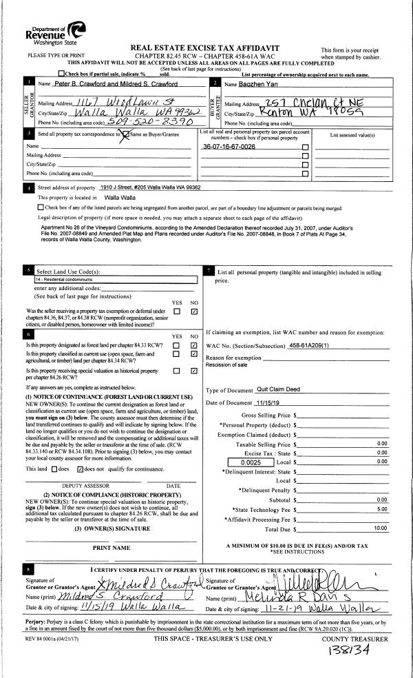
Property
Account |
| Property ID: | 12574 | Abbreviated Legal Description: | 34-7-36 (PARCEL 1 OF SURVEY) TAX 37, PLUS NWLY STRIP FROM TAX 38(WITHIN NW1/4SW1/4) |
| Parcel Number: | 360734320054 | Agent Code: | |
| Type: | Real | | |
| Tax Area: | 101 - 140-4 | Land Use Code | 11 |
| Open Space: | N | DFL | N |
| Historic Property: | N | Remodel Property: | N |
| Multi-Family Redevelopment: | N | | |
| Township: | 7 | Section: | 34 |
| Range: | 36 |
Location |
| Address: | 1650 RESER RD WA 99362 | Mapsco: | |
| Neighborhood: | VG Res Rural/City Inf | Map ID: | |
| Neighborhood CD: | 415012 |
Owner |
| Name: | MALDONADO MANUEL & LEAH | Owner ID: | 47098 |
| Mailing Address: | 1650 RESER RD WALLA WALLA, WA 99362 | % Ownership: | 100.0000000000% |
| | | Exemptions: | |
Taxes and Assessment Details
Values
| (+) Improvement Homesite Value: | + | $0 | |
| (+) Improvement Non-Homesite Value: | + | $336,500 | |
| (+) Land Homesite Value: | + | $0 | |
| (+) Land Non-Homesite Value: | + | $177,260 | |
| (+) Curr Use (HS): | + | $0 | $0 |
| (+) Curr Use (NHS): | + | $0 | $0 |
| | | -------------------------- | |
| (=) Market Value: | = | $513,760 | |
| (–) Productivity Loss: | – | $0 | |
| | | -------------------------- | |
| (=) Subtotal: | = | $513,760 | |
| (+) Senior Appraised Value: | + | $0 | |
| (+) Non-Senior Appraised Value: | + | $513,760 | |
| | | -------------------------- | |
| (=) Total Appraised Value: | = | $513,760 | |
| (–) Senior Exemption Loss: | – | $0 | |
| (–) Exemption Loss: | – | $0 | |
| | | -------------------------- | |
| (=) Taxable Value: | = | $513,760 | |
Taxing Jurisdiction
| Owner: | MALDONADO MANUEL & LEAH | | |
| % Ownership: | 100.0000000000% | | |
| Total Value: | $513,760 | | |
| Tax Area: | 101 - 140-4 |
| CERFD | CURRENT EXPENSE REFUND 010 | 0.0000000000 | $513,760 | $513,760 | $0.00 | | |
| CURREXP | CURRENT EXPENSE 010 | 1.0175366760 | $513,760 | $513,760 | $522.77 | | |
| HUMNSERV | HUMAN SERVICES 119 | 0.0250000000 | $513,760 | $513,760 | $12.84 | | |
| SLDREL | SOLDIERS RELIEF 121 | 0.0155990005 | $513,760 | $513,760 | $8.01 | | |
| EMERGSER | EMS 147 | 0.3792580840 | $513,760 | $513,760 | $194.85 | | |
| EMSRFD | EMS REFUND 147 | 0.0000000000 | $513,760 | $513,760 | $0.00 | | |
| FD4EXP | FD #4 EXPENSE 686 | 0.8836993059 | $513,760 | $513,760 | $454.01 | | |
| RLBRFD | RURAL LIBRARY REFUND 623 | 0.0000000000 | $513,760 | $513,760 | $0.00 | | |
| RURALLIB | RURAL LIBRARY 623 | 0.3710609029 | $513,760 | $513,760 | $190.64 | | |
| PORTRFD | PORT REFUND 640 | 0.0000000000 | $513,760 | $513,760 | $0.00 | | |
| PORTWWGEN | PORT OF WW 640 | 0.2460186015 | $513,760 | $513,760 | $126.39 | | |
| SD140BOND | SD #140 BOND 764 | 0.8342371393 | $513,760 | $513,760 | $428.60 | | |
| SD140GEN | SD #140 GENERAL 760 | 2.0646500647 | $513,760 | $513,760 | $1,060.73 | | |
| ST2 | STATE SCHOOL PART 2 600 | 0.8131451643 | $513,760 | $513,760 | $417.76 | | |
| STATESCHL | STATE SCHOOL 600 | 1.5158548041 | $513,760 | $513,760 | $778.79 | | |
| STREFUND | STATE REFUND LEVY 603 | 0.0000000000 | $513,760 | $513,760 | $0.00 | | |
| COROAD | COUNTY ROAD 115 | 1.6549953990 | $513,760 | $513,760 | $850.27 | | |
| CRPRD | COUNTY ROAD REFUND 115 | 0.0000000000 | $513,760 | $513,760 | $0.00 | | |
| | Total Tax Rate: | 9.8210551422 | | | | | |
| | | | | Taxes w/Current Exemptions: | $5,045.66 | | |
| | | | | Taxes w/o Exemptions: | $5,045.66 | | |
Improvement / Building
| Improvement #1: | RESIDENTIAL | State Code: | 11 | 2563.0 sqft | Value: | $336,500 |
| Exterior Wall: | HARDBOARD | Heating/Cooling: | WARM & COOLED AIR | | Number of Bathrooms: | 3 | Number of Bedrooms: | 4 | | Plumbing: | 11 | Roof Covering: | COMP SHINGLE |
|
| | Type | Description | Class CD | Sub Class CD | Year Built | Area |
| | MA | Main Area | 1 | 35 | 1965 | 2563.0 |
| | SI1 | SITE IMPROVEMENT | 1 | 35 | 1965 | 4.0 |
| | ATG | Attached Garage | 1 | 35 | 1965 | 550.0 |
| | CPC | COVERED CARPORT/PATIO | 1 | 35 | 1965 | 372.0 |
| | RPO | OPEN PORCH W/ROOF | 1 | 35 | 1965 | 246.0 |
| | RPO | OPEN PORCH W/ROOF | 1 | 35 | 1965 | 35.0 |
| | S1F | Single One Story Fireplace | 1 | 35 | 1965 | 1.0 |
| | POL1 | POLE BUILDING-GRAVEL | 1 | 30 | 2017 | 1800.0 |
| | POL2 | POLE BUILDING-CONCRETE | 1 | 35 | 1965 | 1200.0 |
Sketch
Property Image
Land
| 1 | RES 1 | Converted: Residential | 1.7100 | 0.00 | 0.00 | 0.00 | 1.00 | $177,260 | $0 |
Roll Value History
| 2025 | N/A | N/A | N/A | N/A | N/A |
| 2024 | $336,500 | $177,260 | $0 | $513,760 | $513,760 |
| 2023 | $336,500 | $177,260 | $0 | $513,760 | $513,760 |
| 2022 | $395,880 | $91,910 | $0 | $487,790 | $487,790 |
| 2021 | $304,520 | $91,910 | $0 | $396,430 | $396,430 |
| 2020 | $253,770 | $91,910 | $0 | $345,680 | $345,680 |
| 2019 | $253,770 | $91,910 | $0 | $345,680 | $345,680 |
| 2018 | $230,700 | $91,910 | $0 | $322,610 | $322,610 |
| 2017 | $209,700 | $92,700 | $0 | $302,400 | $302,400 |
| 2016 | $212,410 | $80,700 | $0 | $293,110 | $293,110 |
| 2015 | $193,100 | $80,700 | $0 | $273,800 | $273,800 |
| 2014 | $193,100 | $80,700 | $0 | $273,800 | $273,800 |
| 2013 | $193,100 | $80,700 | $0 | $273,800 | $273,800 |
| 2012 | $193,100 | $80,700 | $0 | $0 | $0 |
| 2011 | $208,100 | $80,700 | $0 | $0 | $0 |
| 2010 | $194,300 | $80,700 | $0 | $0 | $0 |
| 2009 | $224,900 | $80,700 | $0 | $0 | $0 |
| 2008 | $224,900 | $80,700 | $0 | $0 | $0 |
| 2007 | $150,900 | $48,300 | $0 | $0 | $0 |
| 2006 | $150,900 | $48,300 | $0 | $0 | $0 |
Deed and Sales History
| 1 | 04/15/2019 | QCD | QUIT CLAIM DEED | SCHREINDL LIVING TRUST | MALDONADO MANUEL & LEAH | | | $0.00 | 136677 | 2019-02376 |
| 2 | 10/15/2008 | QCD | QUIT CLAIM DEED | SCHREINDL, ROBERT | SCHREINDL LIVING TRUST | | | | 115819 | 2008-10482 |
| 3 | 09/05/2008 | QCD | QUIT CLAIM DEED | SCHREINDL LIVING TRUST | SCHREINDL, ROBERT | | | | 115598 | 2008-09157 |
| 4 | 12/15/1978 | WARRANTY D | WARRANTY DEED | | | | | $82,500.00 | 0 | 9478-10824 |
Payout Agreement
| No payout information available.. |