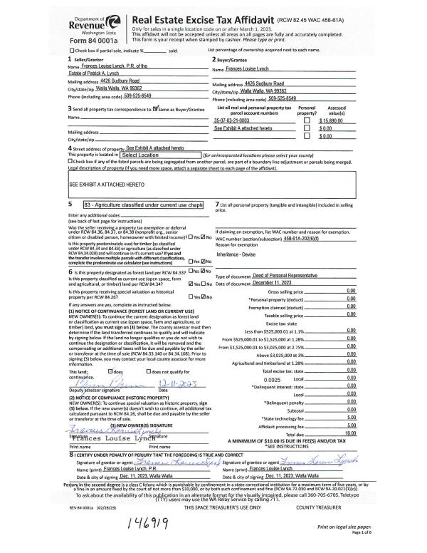
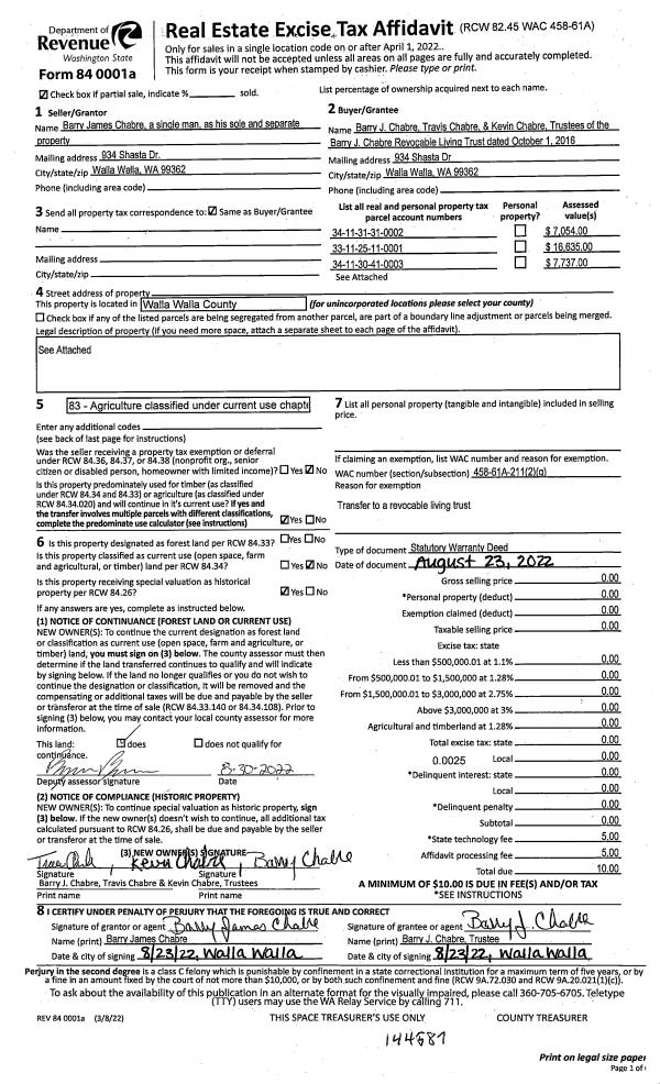
Property
Account |
| Property ID: | 1255 | Abbreviated Legal Description: | 16-7-36 TAX 14 |
| Parcel Number: | 360716330017 | Agent Code: | |
| Type: | Real | | |
| Tax Area: | 5 - OL-140 | Land Use Code | 11 |
| Open Space: | N | DFL | N |
| Historic Property: | N | Remodel Property: | N |
| Multi-Family Redevelopment: | N | | |
| Township: | 7 | Section: | 16 |
| Range: | 36 |
Location |
| Address: | 1354 E SUMACH ST WA 99362 | Mapsco: | |
| Neighborhood: | A-SFR | Map ID: | |
| Neighborhood CD: | 513011 |
Owner |
| Name: | THOMPSON DAVID W | Owner ID: | 71507 |
| Mailing Address: | PO BOX 1617 WALLA WALLA, WA 99362 | % Ownership: | 100.0000000000% |
| | | Exemptions: | |
Taxes and Assessment Details
Values
| (+) Improvement Homesite Value: | + | $0 | |
| (+) Improvement Non-Homesite Value: | + | $453,900 | |
| (+) Land Homesite Value: | + | $0 | |
| (+) Land Non-Homesite Value: | + | $67,270 | |
| (+) Curr Use (HS): | + | $0 | $0 |
| (+) Curr Use (NHS): | + | $0 | $0 |
| | | -------------------------- | |
| (=) Market Value: | = | $521,170 | |
| (–) Productivity Loss: | – | $0 | |
| | | -------------------------- | |
| (=) Subtotal: | = | $521,170 | |
| (+) Senior Appraised Value: | + | $0 | |
| (+) Non-Senior Appraised Value: | + | $521,170 | |
| | | -------------------------- | |
| (=) Total Appraised Value: | = | $521,170 | |
| (–) Senior Exemption Loss: | – | $0 | |
| (–) Exemption Loss: | – | $0 | |
| | | -------------------------- | |
| (=) Taxable Value: | = | $521,170 | |
Taxing Jurisdiction
| Owner: | THOMPSON DAVID W | | |
| % Ownership: | 100.0000000000% | | |
| Total Value: | $521,170 | | |
| Tax Area: | 5 - OL-140 |
| CERFD | CURRENT EXPENSE REFUND 010 | 0.0000000000 | $521,170 | $521,170 | $0.00 | | |
| CURREXP | CURRENT EXPENSE 010 | 1.0175366760 | $521,170 | $521,170 | $530.31 | | |
| HUMNSERV | HUMAN SERVICES 119 | 0.0250000000 | $521,170 | $521,170 | $13.03 | | |
| SLDREL | SOLDIERS RELIEF 121 | 0.0155990005 | $521,170 | $521,170 | $8.13 | | |
| EMERGSER | EMS 147 | 0.3792580840 | $521,170 | $521,170 | $197.66 | | |
| EMSRFD | EMS REFUND 147 | 0.0000000000 | $521,170 | $521,170 | $0.00 | | |
| PORTRFD | PORT REFUND 640 | 0.0000000000 | $521,170 | $521,170 | $0.00 | | |
| PORTWWGEN | PORT OF WW 640 | 0.2460186015 | $521,170 | $521,170 | $128.22 | | |
| SD140BOND | SD #140 BOND 764 | 0.8342371393 | $521,170 | $521,170 | $434.78 | | |
| SD140GEN | SD #140 GENERAL 760 | 2.0646500647 | $521,170 | $521,170 | $1,076.03 | | |
| ST2 | STATE SCHOOL PART 2 600 | 0.8131451643 | $521,170 | $521,170 | $423.79 | | |
| STATESCHL | STATE SCHOOL 600 | 1.5158548041 | $521,170 | $521,170 | $790.02 | | |
| STREFUND | STATE REFUND LEVY 603 | 0.0000000000 | $521,170 | $521,170 | $0.00 | | |
| CWWBOND | C OF WW BOND 643 | 0.2760494372 | $521,170 | $521,170 | $143.87 | | |
| CWWGEN | CITY OF WW 631 | 1.6100204973 | $521,170 | $521,170 | $839.09 | | |
| CWWRFD | CITY OF WALLA WALLA REFUND 631 | 0.0000000000 | $521,170 | $521,170 | $0.00 | | |
| | Total Tax Rate: | 8.7973694689 | | | | | |
| | | | | Taxes w/Current Exemptions: | $4,584.93 | | |
| | | | | Taxes w/o Exemptions: | $4,584.93 | | |
Improvement / Building
| Improvement #1: | RESIDENTIAL | State Code: | 11 | 2949.0 sqft | Value: | $453,900 |
| Exterior Wall: | CEMENT FIBER | Foundation: | SLAB FOUNDATION | | Heating/Cooling: | HEAT PUMP | Number of Bathrooms: | 2 | | Number of Bedrooms: | 5 | Plumbing: | 9 | | Roof Covering: | COMP SHINGLE |   |   |
|
| | Type | Description | Class CD | Sub Class CD | Year Built | Area |
| | MA | Main Area | 4 | 30 | 1935 | 2949.0 |
| | SI1 | SITE IMPROVEMENT | 4 | 30 | 1935 | 2.0 |
| | UPFL | Upper Floor (included in main area) | 4 | 30 | 1935 | 960.0 |
| | DTG | Detached Garage | 4 | 30 | 1935 | 576.0 |
| | RPS | PORCH W/STEPS,ROOF | 4 | 30 | 1935 | 20.0 |
| | CPC | COVERED CARPORT/PATIO | 4 | 30 | 1935 | 291.0 |
Sketch
Property Image
Land
| 1 | RES 1 | Converted: Residential | 0.4400 | 19166.00 | 0.00 | 0.00 | 1.00 | $67,270 | $0 |
Roll Value History
| 2025 | N/A | N/A | N/A | N/A | N/A |
| 2024 | $429,260 | $106,950 | $0 | $536,210 | $536,210 |
| 2023 | $453,900 | $67,270 | $0 | $521,170 | $521,170 |
| 2022 | $412,640 | $67,270 | $0 | $479,910 | $479,910 |
| 2021 | $250,080 | $67,270 | $0 | $317,350 | $317,350 |
| 2020 | $178,630 | $67,270 | $0 | $245,900 | $245,900 |
| 2019 | $178,630 | $67,270 | $0 | $245,900 | $245,900 |
| 2018 | $178,630 | $67,270 | $0 | $245,900 | $245,900 |
| 2017 | $192,890 | $46,900 | $0 | $239,790 | $239,790 |
| 2016 | $183,700 | $46,900 | $0 | $230,600 | $230,600 |
| 2015 | $183,700 | $46,900 | $0 | $230,600 | $230,600 |
| 2014 | $183,700 | $46,900 | $0 | $230,600 | $230,600 |
| 2013 | $183,700 | $46,900 | $0 | $230,600 | $230,600 |
| 2012 | $183,700 | $46,900 | $0 | $0 | $0 |
| 2011 | $183,700 | $46,900 | $0 | $0 | $0 |
| 2010 | $162,700 | $46,900 | $0 | $0 | $0 |
| 2009 | $186,000 | $46,900 | $0 | $0 | $0 |
| 2008 | $186,000 | $46,900 | $0 | $0 | $0 |
| 2007 | $186,000 | $46,900 | $0 | $0 | $0 |
| 2006 | $106,100 | $23,700 | $0 | $0 | $0 |
Deed and Sales History
| 1 | 04/22/2022 | SWD | STATUTORY WARRANTY DEED | OYEN JOHN E & DANIELLE D | THOMPSON DAVID W | | | $535,000.00 | 143815 | 2022-03432 |
| 2 | 10/03/2005 | WARRANTY D | WARRANTY DEED | WILSON LIVING TRUST | OYEN, JOHN E & DANIELLE D | | | $233,094.00 | 108659 | 2005-12332 |
| 3 | 11/20/2002 | WARRANTY D | WARRANTY DEED | WILSON, CLAUDE B JR | WILSON LIVING TRUST | | | | 100845 | 2002-13197 |
| 4 | 04/27/1998 | WARRANTY D | WARRANTY DEED | | | | | $78,000.00 | 90297 | 2669-804539 |
Payout Agreement
| No payout information available.. |