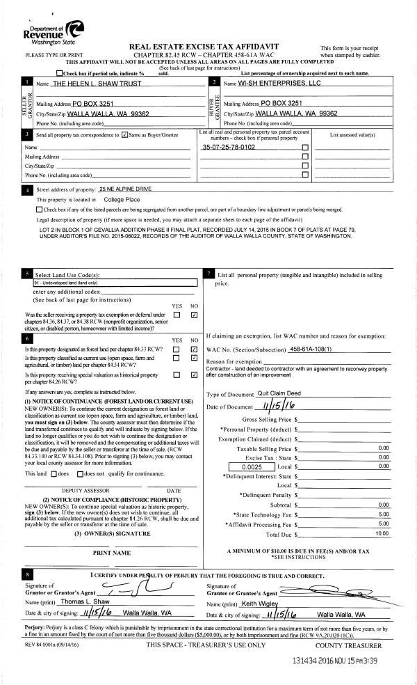
Property
Account |
| Property ID: | 12372 | Abbreviated Legal Description: | GRANDVIEW LOT 3 BLK 1 |
| Parcel Number: | 360733530103 | Agent Code: | |
| Type: | Real | | |
| Tax Area: | 101 - 140-4 | Land Use Code | 91 |
| Open Space: | N | DFL | N |
| Historic Property: | N | Remodel Property: | N |
| Multi-Family Redevelopment: | N | | |
| Township: | 7 | Section: | 33 |
| Range: | 36 |
Location |
| Address: | MAGNOLIA DR WA 99362 | Mapsco: | |
| Neighborhood: | VG Land Contig | Map ID: | |
| Neighborhood CD: | 415097 |
Owner |
| Name: | ESPARZA CINDY | Owner ID: | 67041 |
| Mailing Address: | 1311 MAGNOLIA DR WALLA WALLA, WA 99362 | % Ownership: | 100.0000000000% |
| | | Exemptions: | |
Taxes and Assessment Details
Values
| (+) Improvement Homesite Value: | + | $0 | |
| (+) Improvement Non-Homesite Value: | + | $0 | |
| (+) Land Homesite Value: | + | $0 | |
| (+) Land Non-Homesite Value: | + | $32,470 | |
| (+) Curr Use (HS): | + | $0 | $0 |
| (+) Curr Use (NHS): | + | $0 | $0 |
| | | -------------------------- | |
| (=) Market Value: | = | $32,470 | |
| (–) Productivity Loss: | – | $0 | |
| | | -------------------------- | |
| (=) Subtotal: | = | $32,470 | |
| (+) Senior Appraised Value: | + | $0 | |
| (+) Non-Senior Appraised Value: | + | $32,470 | |
| | | -------------------------- | |
| (=) Total Appraised Value: | = | $32,470 | |
| (–) Senior Exemption Loss: | – | $0 | |
| (–) Exemption Loss: | – | $0 | |
| | | -------------------------- | |
| (=) Taxable Value: | = | $32,470 | |
Taxing Jurisdiction
| Owner: | ESPARZA CINDY | | |
| % Ownership: | 100.0000000000% | | |
| Total Value: | $32,470 | | |
| Tax Area: | 101 - 140-4 |
| CERFD | CURRENT EXPENSE REFUND 010 | 0.0000000000 | $32,470 | $32,470 | $0.00 | | |
| CURREXP | CURRENT EXPENSE 010 | 1.0175366760 | $32,470 | $32,470 | $33.04 | | |
| HUMNSERV | HUMAN SERVICES 119 | 0.0250000000 | $32,470 | $32,470 | $0.81 | | |
| SLDREL | SOLDIERS RELIEF 121 | 0.0155990005 | $32,470 | $32,470 | $0.51 | | |
| EMERGSER | EMS 147 | 0.3792580840 | $32,470 | $32,470 | $12.31 | | |
| EMSRFD | EMS REFUND 147 | 0.0000000000 | $32,470 | $32,470 | $0.00 | | |
| FD4EXP | FD #4 EXPENSE 686 | 0.8836993059 | $32,470 | $32,470 | $28.69 | | |
| RLBRFD | RURAL LIBRARY REFUND 623 | 0.0000000000 | $32,470 | $32,470 | $0.00 | | |
| RURALLIB | RURAL LIBRARY 623 | 0.3710609029 | $32,470 | $32,470 | $12.05 | | |
| PORTRFD | PORT REFUND 640 | 0.0000000000 | $32,470 | $32,470 | $0.00 | | |
| PORTWWGEN | PORT OF WW 640 | 0.2460186015 | $32,470 | $32,470 | $7.99 | | |
| SD140BOND | SD #140 BOND 764 | 0.8342371393 | $32,470 | $32,470 | $27.09 | | |
| SD140GEN | SD #140 GENERAL 760 | 2.0646500647 | $32,470 | $32,470 | $67.04 | | |
| ST2 | STATE SCHOOL PART 2 600 | 0.8131451643 | $32,470 | $32,470 | $26.40 | | |
| STATESCHL | STATE SCHOOL 600 | 1.5158548041 | $32,470 | $32,470 | $49.22 | | |
| STREFUND | STATE REFUND LEVY 603 | 0.0000000000 | $32,470 | $32,470 | $0.00 | | |
| COROAD | COUNTY ROAD 115 | 1.6549953990 | $32,470 | $32,470 | $53.74 | | |
| CRPRD | COUNTY ROAD REFUND 115 | 0.0000000000 | $32,470 | $32,470 | $0.00 | | |
| | Total Tax Rate: | 9.8210551422 | | | | | |
| | | | | Taxes w/Current Exemptions: | $318.89 | | |
| | | | | Taxes w/o Exemptions: | $318.89 | | |
Improvement / Building
Sketch
| No sketches available for this property. |
Property Image
Land
| 1 | RES 1 | Converted: Residential | 0.5169 | 22516.16 | 0.00 | 0.00 | 1.00 | $32,470 | $0 |
Roll Value History
| 2025 | N/A | N/A | N/A | N/A | N/A |
| 2024 | $0 | $32,470 | $0 | $32,470 | $32,470 |
| 2023 | $0 | $32,470 | $0 | $32,470 | $32,470 |
| 2022 | $0 | $25,200 | $0 | $25,200 | $25,200 |
| 2021 | $0 | $25,200 | $0 | $25,200 | $25,200 |
| 2020 | $0 | $25,200 | $0 | $25,200 | $25,200 |
| 2019 | $0 | $25,200 | $0 | $25,200 | $25,200 |
| 2018 | $0 | $25,200 | $0 | $25,200 | $25,200 |
| 2017 | $0 | $25,200 | $0 | $25,200 | $25,200 |
| 2016 | $0 | $22,300 | $0 | $22,300 | $22,300 |
| 2015 | $0 | $22,300 | $0 | $22,300 | $22,300 |
| 2014 | $0 | $22,300 | $0 | $22,300 | $22,300 |
| 2013 | $0 | $22,300 | $0 | $22,300 | $22,300 |
| 2012 | $0 | $22,300 | $0 | $0 | $0 |
| 2011 | $0 | $26,200 | $0 | $0 | $0 |
| 2010 | $0 | $26,200 | $0 | $0 | $0 |
| 2009 | $0 | $26,200 | $0 | $0 | $0 |
| 2008 | $0 | $26,200 | $0 | $0 | $0 |
| 2007 | $0 | $3,500 | $0 | $0 | $0 |
| 2006 | $0 | $3,500 | $0 | $0 | $0 |
Deed and Sales History
| 1 | 04/14/2020 | QCD | QUIT CLAIM DEED | | ESPARZA CINDY | | 2-PARCELS | $0.00 | 138926 | 2020-03175 |
| 2 | 04/14/2020 | SWD | STATUTORY WARRANTY DEED | BLEVINS ROBERT T & STACI R | ESPARZA CINDY | | 2-PARCELS | $339,500.00 | 138925 | 2020-03174 |
|   | |
| 3 | 09/03/2013 | WARRANTY D | WARRANTY DEED | OJCIUS, DANIEL & TERESA ANN | BLEVINS, ROBERT T & STACI R | 2-PARCELS | | $242,000.00 | 124595 | 2013--09099 |
|   | |
| 4 | 08/16/1993 | WARRANTY D | WARRANTY DEED | | | | | $142,500.00 | 79751 | 2099-308415 |
|   | |
Payout Agreement
| No payout information available.. |