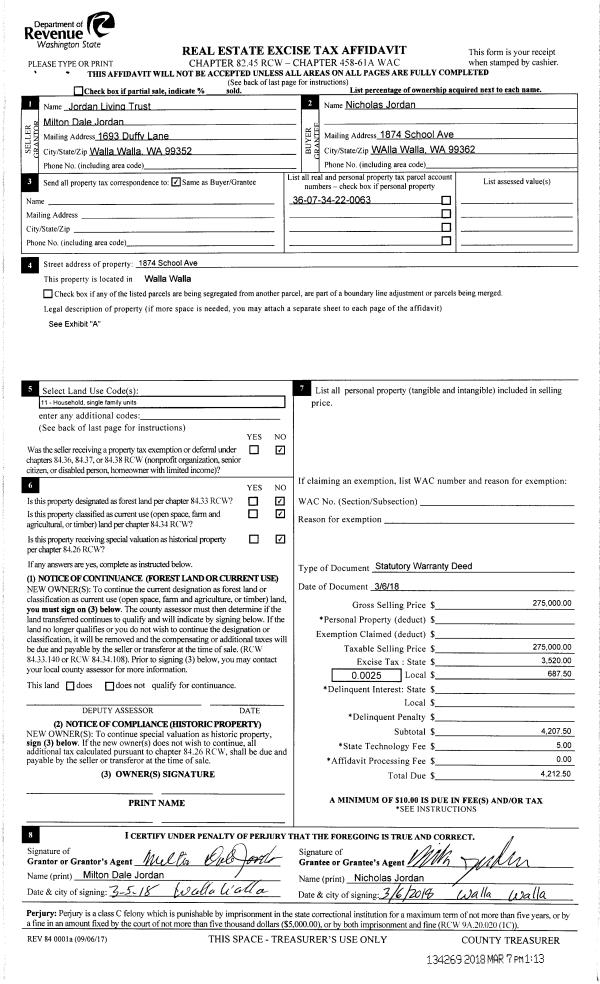
Property
Account |
| Property ID: | 12302 | Abbreviated Legal Description: | 33-7-36 TAX 50 |
| Parcel Number: | 360733430037 | Agent Code: | |
| Type: | Real | | |
| Tax Area: | 101 - 140-4 | Land Use Code | 11 |
| Open Space: | N | DFL | N |
| Historic Property: | N | Remodel Property: | N |
| Multi-Family Redevelopment: | N | | |
| Township: | 7 | Section: | 33 |
| Range: | 36 |
Location |
| Address: | 926 MCBETH RD WA 99362 | Mapsco: | |
| Neighborhood: | VG Res Rural/City Inf | Map ID: | |
| Neighborhood CD: | 615012 |
Owner |
| Name: | CARLYLE BRIAN SCOTT & MELISSA JO | Owner ID: | 62899 |
| Mailing Address: | 926 MCBETH RD WALLA WALLA, WA 99362 | % Ownership: | 100.0000000000% |
| | | Exemptions: | SNR/DSBL |
Taxes and Assessment Details
Values
| (+) Improvement Homesite Value: | + | $304,610 | |
| (+) Improvement Non-Homesite Value: | + | $53,180 | |
| (+) Land Homesite Value: | + | $185,700 | |
| (+) Land Non-Homesite Value: | + | $0 | |
| (+) Curr Use (HS): | + | $0 | $0 |
| (+) Curr Use (NHS): | + | $0 | $0 |
| | | -------------------------- | |
| (=) Market Value: | = | $543,490 | |
| (–) Productivity Loss: | – | $0 | |
| | | -------------------------- | |
| (=) Subtotal: | = | $543,490 | |
| (+) Senior Appraised Value: | + | $264,350 | |
| (+) Non-Senior Appraised Value: | + | $53,180 | |
| | | -------------------------- | |
| (=) Total Appraised Value: | = | $317,530 | |
| (–) Senior Exemption Loss: | – | $158,610 | |
| (–) Exemption Loss: | – | $0 | |
| | | -------------------------- | |
| (=) Taxable Value: | = | $158,920 | |
Taxing Jurisdiction
| Owner: | CARLYLE BRIAN SCOTT & MELISSA JO | | |
| % Ownership: | 100.0000000000% | | |
| Total Value: | $543,490 | | |
| Tax Area: | 101 - 140-4 |
| CERFD | CURRENT EXPENSE REFUND 010 | 0.0000000000 | $543,490 | $158,920 | $0.00 | | |
| CURREXP | CURRENT EXPENSE 010 | 1.0175366760 | $543,490 | $158,920 | $161.71 | | |
| HUMNSERV | HUMAN SERVICES 119 | 0.0250000000 | $543,490 | $158,920 | $3.97 | | |
| SLDREL | SOLDIERS RELIEF 121 | 0.0155990005 | $543,490 | $158,920 | $2.48 | | |
| EMERGSER | EMS 147 | 0.3792580840 | $543,490 | $158,920 | $60.27 | | |
| EMSRFD | EMS REFUND 147 | 0.0000000000 | $543,490 | $158,920 | $0.00 | | |
| FD4EXP | FD #4 EXPENSE 686 | 0.8836993059 | $543,490 | $158,920 | $140.44 | | |
| RLBRFD | RURAL LIBRARY REFUND 623 | 0.0000000000 | $543,490 | $158,920 | $0.00 | | |
| RURALLIB | RURAL LIBRARY 623 | 0.3710609029 | $543,490 | $158,920 | $58.97 | | |
| PORTRFD | PORT REFUND 640 | 0.0000000000 | $543,490 | $158,920 | $0.00 | | |
| PORTWWGEN | PORT OF WW 640 | 0.2460186015 | $543,490 | $158,920 | $39.10 | | |
| SD140BOND | SD #140 BOND 764 | 0.0000000000 | $543,490 | $53,180 | $44.36 | | |
| SD140GEN | SD #140 GENERAL 760 | 0.0000000000 | $543,490 | $53,180 | $109.80 | | |
| ST2 | STATE SCHOOL PART 2 600 | 0.0000000000 | $543,490 | $53,180 | $43.24 | | |
| STATESCHL | STATE SCHOOL 600 | 1.5158548041 | $543,490 | $158,920 | $240.90 | | |
| STREFUND | STATE REFUND LEVY 603 | 0.0000000000 | $543,490 | $158,920 | $0.00 | | |
| COROAD | COUNTY ROAD 115 | 1.6549953990 | $543,490 | $158,920 | $263.01 | | |
| CRPRD | COUNTY ROAD REFUND 115 | 0.0000000000 | $543,490 | $158,920 | $0.00 | | |
| | Total Tax Rate: | 6.1090227739 | | | | | |
| | | | | Taxes w/Current Exemptions: | $1,168.25 | | |
| | | | | Taxes w/o Exemptions: | $5,337.65 | | |
Improvement / Building
| Improvement #1: | RESIDENTIAL | State Code: | 11 | 1450.0 sqft | Value: | $304,610 |
| Exterior Wall: | SIDING | Heating/Cooling: | WARM & COOLED AIR | | Number of Bathrooms: | 2 | Number of Bedrooms: | 2 | | Plumbing: | 9 | Roof Covering: | COMP SHINGLE |
|
| | Type | Description | Class CD | Sub Class CD | Year Built | Area |
| | MA | Main Area | 1 | 30 | 1946 | 1450.0 |
| | SI1 | SITE IMPROVEMENT | 1 | 30 | 1946 | 4.0 |
| | BASE | BASEMENT | 1 | 30 | 1946 | 1015.0 |
| | BPF | BASEMENT -PARTITIONED FINISH | 1 | 30 | 1946 | 1015.0 |
| | ATG | Attached Garage | 1 | 30 | 1946 | 624.0 |
| | RPS | PORCH W/STEPS,ROOF | 1 | 30 | 1946 | 72.0 |
| | D2F | Double 2 Story Fireplace | 1 | 30 | 1946 | 1.0 |
| Improvement #2: | RESIDENTIAL | State Code: | 11 | 0.0 sqft | Value: | $53,180 |
| | Type | Description | Class CD | Sub Class CD | Year Built | Area |
| | POL3 | POLE BUILDING-CON,ELEC,INSU | 1 | 30 | 2005 | 1200.0 |
| | POL2 | POLE BUILDING-CONCRETE | 1 | 30 | 1946 | 400.0 |
| | LNTD | LEAN TO DIRT FLOOR | 1 | 30 | 1946 | 660.0 |
Sketch
Property Image
Land
| 1 | RES 1 | Converted: Residential | 1.3600 | 0.00 | 0.00 | 0.00 | 1.00 | $185,700 | $0 |
Roll Value History
| 2025 | N/A | N/A | N/A | N/A | N/A |
| 2024 | $357,790 | $185,700 | $0 | $543,490 | $158,920 |
| 2023 | $357,790 | $185,700 | $0 | $543,490 | $158,920 |
| 2022 | $325,260 | $156,510 | $0 | $481,770 | $154,080 |
| 2021 | $271,050 | $156,510 | $0 | $427,560 | $146,030 |
| 2020 | $208,500 | $156,510 | $0 | $365,010 | $295,340 |
| 2019 | $208,500 | $156,510 | $0 | $365,010 | $225,340 |
| 2018 | $218,790 | $77,900 | $0 | $296,690 | $226,690 |
| 2017 | $218,790 | $77,900 | $0 | $296,690 | $296,690 |
| 2016 | $208,370 | $77,900 | $0 | $286,270 | $286,270 |
| 2015 | $198,450 | $77,900 | $0 | $276,350 | $276,350 |
| 2014 | $189,000 | $77,900 | $0 | $266,900 | $266,900 |
| 2013 | $189,000 | $77,900 | $0 | $266,900 | $266,900 |
| 2012 | $189,000 | $77,900 | $0 | $0 | $0 |
| 2011 | $154,200 | $77,900 | $0 | $0 | $0 |
| 2010 | $154,200 | $77,900 | $0 | $0 | $0 |
| 2009 | $180,000 | $77,900 | $0 | $0 | $0 |
| 2008 | $180,000 | $77,900 | $0 | $0 | $0 |
| 2007 | $153,700 | $46,200 | $0 | $0 | $0 |
| 2006 | $153,700 | $46,200 | $0 | $0 | $0 |
Deed and Sales History
| 1 | 04/16/2018 | SWD | STATUTORY WARRANTY DEED | PEEK JOHN S & GRACE M | CARLYLE BRIAN SCOTT & MELISSA JO | | | $380,000.00 | 134501 | 2018-02898 |
| 2 | | DEATH CERT | DEATH CERTIFICATE | PEEK JOHN SAMUEL | | | | | 0 | 2017-04352 |
| 3 | 07/03/2003 | WARRANTY D | WARRANTY DEED | HOLDEMAN, ROBERT D | PEEK, JOHN S & GRACE M | | | $187,000.00 | 102496 | 2003-09994 |
| 4 | 04/05/1984 | WARRANTY D | WARRANTY DEED | | | | | $75,000.00 | 0 | 1438-402349 |
Payout Agreement
| No payout information available.. |