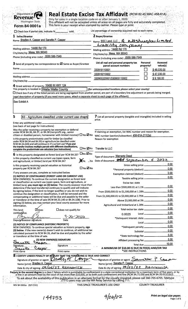
Property
Account |
| Property ID: | 12290 | Abbreviated Legal Description: | 33-7-36 TAX 65 (LESS NELY PTN TO CO RD) |
| Parcel Number: | 360733410046 | Agent Code: | |
| Type: | Real | | |
| Tax Area: | 101 - 140-4 | Land Use Code | 91 |
| Open Space: | N | DFL | N |
| Historic Property: | N | Remodel Property: | N |
| Multi-Family Redevelopment: | N | | |
| Township: | 7 | Section: | 33 |
| Range: | 36 |
Location |
| Address: | RESER RD WA 99362 | Mapsco: | |
| Neighborhood: | VG Land Contig | Map ID: | |
| Neighborhood CD: | 415097 |
Owner |
| Name: | THOMPSON THOMAS MILLER & ANNA CLARE FAMILY TRUST | Owner ID: | 69607 |
| Mailing Address: | 1350 RESER RD WALLA WALLA, WA 99362 | % Ownership: | 100.0000000000% |
| | | Exemptions: | |
Taxes and Assessment Details
Values
| (+) Improvement Homesite Value: | + | $0 | |
| (+) Improvement Non-Homesite Value: | + | $0 | |
| (+) Land Homesite Value: | + | $0 | |
| (+) Land Non-Homesite Value: | + | $14,620 | |
| (+) Curr Use (HS): | + | $0 | $0 |
| (+) Curr Use (NHS): | + | $0 | $0 |
| | | -------------------------- | |
| (=) Market Value: | = | $14,620 | |
| (–) Productivity Loss: | – | $0 | |
| | | -------------------------- | |
| (=) Subtotal: | = | $14,620 | |
| (+) Senior Appraised Value: | + | $0 | |
| (+) Non-Senior Appraised Value: | + | $14,620 | |
| | | -------------------------- | |
| (=) Total Appraised Value: | = | $14,620 | |
| (–) Senior Exemption Loss: | – | $0 | |
| (–) Exemption Loss: | – | $0 | |
| | | -------------------------- | |
| (=) Taxable Value: | = | $14,620 | |
Taxing Jurisdiction
| Owner: | THOMPSON THOMAS MILLER & ANNA CLARE FAMILY TRUST | | |
| % Ownership: | 100.0000000000% | | |
| Total Value: | $14,620 | | |
| Tax Area: | 101 - 140-4 |
| CERFD | CURRENT EXPENSE REFUND 010 | 0.0000000000 | $14,620 | $14,620 | $0.00 | | |
| CURREXP | CURRENT EXPENSE 010 | 1.0175366760 | $14,620 | $14,620 | $14.88 | | |
| HUMNSERV | HUMAN SERVICES 119 | 0.0250000000 | $14,620 | $14,620 | $0.37 | | |
| SLDREL | SOLDIERS RELIEF 121 | 0.0155990005 | $14,620 | $14,620 | $0.23 | | |
| EMERGSER | EMS 147 | 0.3792580840 | $14,620 | $14,620 | $5.54 | | |
| EMSRFD | EMS REFUND 147 | 0.0000000000 | $14,620 | $14,620 | $0.00 | | |
| FD4EXP | FD #4 EXPENSE 686 | 0.8836993059 | $14,620 | $14,620 | $12.92 | | |
| RLBRFD | RURAL LIBRARY REFUND 623 | 0.0000000000 | $14,620 | $14,620 | $0.00 | | |
| RURALLIB | RURAL LIBRARY 623 | 0.3710609029 | $14,620 | $14,620 | $5.42 | | |
| PORTRFD | PORT REFUND 640 | 0.0000000000 | $14,620 | $14,620 | $0.00 | | |
| PORTWWGEN | PORT OF WW 640 | 0.2460186015 | $14,620 | $14,620 | $3.60 | | |
| SD140BOND | SD #140 BOND 764 | 0.8342371393 | $14,620 | $14,620 | $12.20 | | |
| SD140GEN | SD #140 GENERAL 760 | 2.0646500647 | $14,620 | $14,620 | $30.19 | | |
| ST2 | STATE SCHOOL PART 2 600 | 0.8131451643 | $14,620 | $14,620 | $11.89 | | |
| STATESCHL | STATE SCHOOL 600 | 1.5158548041 | $14,620 | $14,620 | $22.16 | | |
| STREFUND | STATE REFUND LEVY 603 | 0.0000000000 | $14,620 | $14,620 | $0.00 | | |
| COROAD | COUNTY ROAD 115 | 1.6549953990 | $14,620 | $14,620 | $24.20 | | |
| CRPRD | COUNTY ROAD REFUND 115 | 0.0000000000 | $14,620 | $14,620 | $0.00 | | |
| | Total Tax Rate: | 9.8210551422 | | | | | |
| | | | | Taxes w/Current Exemptions: | $143.60 | | |
| | | | | Taxes w/o Exemptions: | $143.60 | | |
Improvement / Building
Sketch
| No sketches available for this property. |
Property Image
Land
| 1 | RES 1 | Converted: Residential | 0.2300 | 10019.00 | 0.00 | 0.00 | 1.00 | $14,620 | $0 |
Roll Value History
| 2025 | N/A | N/A | N/A | N/A | N/A |
| 2024 | $0 | $14,620 | $0 | $14,620 | $14,620 |
| 2023 | $0 | $14,620 | $0 | $14,620 | $14,620 |
| 2022 | $0 | $10,000 | $0 | $10,000 | $10,000 |
| 2021 | $0 | $10,000 | $0 | $10,000 | $10,000 |
| 2020 | $0 | $10,000 | $0 | $10,000 | $10,000 |
| 2019 | $0 | $10,000 | $0 | $10,000 | $10,000 |
| 2018 | $0 | $10,000 | $0 | $10,000 | $10,000 |
| 2017 | $0 | $10,000 | $0 | $10,000 | $10,000 |
| 2016 | $0 | $8,500 | $0 | $8,500 | $8,500 |
| 2015 | $0 | $8,500 | $0 | $8,500 | $8,500 |
| 2014 | $0 | $8,500 | $0 | $8,500 | $8,500 |
| 2013 | $0 | $8,500 | $0 | $8,500 | $8,500 |
| 2012 | $0 | $8,500 | $0 | $0 | $0 |
| 2011 | $0 | $8,500 | $0 | $0 | $0 |
| 2010 | $0 | $8,500 | $0 | $0 | $0 |
| 2009 | $0 | $8,500 | $0 | $0 | $0 |
| 2008 | $0 | $8,500 | $0 | $0 | $0 |
| 2007 | $0 | $8,500 | $0 | $0 | $0 |
| 2006 | $0 | $8,500 | $0 | $0 | $0 |
Deed and Sales History
| 1 | 06/16/2021 | QCD | QUIT CLAIM DEED | THOMPSON THOMAS M & CLARE | THOMPSON THOMAS MILLER & ANNA CLARE FAMILY TRUST | | | $0.00 | 141821 | 2021-07363 |
| 2 | 06/09/1999 | WARRANTY D | WARRANTY DEED | | | | | | 92917 | 2859-906909 |
Payout Agreement
| No payout information available.. |