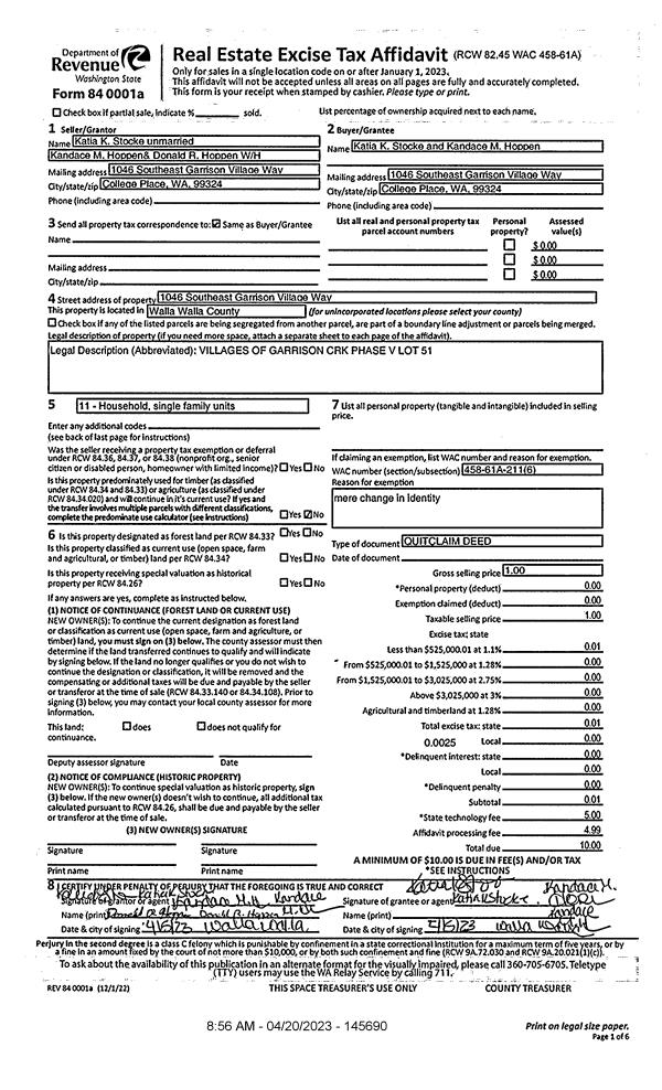
Property
Account |
| Property ID: | 1223 | Abbreviated Legal Description: | STONES ADDN LT 1 BLK 5 |
| Parcel Number: | 360729830501 | Agent Code: | |
| Type: | Real | | |
| Tax Area: | 1 - OL-140-F | Land Use Code | 11 |
| Open Space: | N | DFL | N |
| Historic Property: | N | Remodel Property: | N |
| Multi-Family Redevelopment: | N | | |
| Township: | 7 | Section: | 29 |
| Range: | 36 |
Location |
| Address: | 1304 UMATILLA ST WA 99362 | Mapsco: | |
| Neighborhood: | A Res | Map ID: | |
| Neighborhood CD: | 613011 |
Owner |
| Name: | PETERSON DARCIE DEE | Owner ID: | 73607 |
| Mailing Address: | 1304 UMATILLA ST WALLA WALLA, WA 99362 | % Ownership: | 100.0000000000% |
| | | Exemptions: | |
Taxes and Assessment Details
Values
| (+) Improvement Homesite Value: | + | $219,380 | |
| (+) Improvement Non-Homesite Value: | + | $0 | |
| (+) Land Homesite Value: | + | $68,580 | |
| (+) Land Non-Homesite Value: | + | $0 | |
| (+) Curr Use (HS): | + | $0 | $0 |
| (+) Curr Use (NHS): | + | $0 | $0 |
| | | -------------------------- | |
| (=) Market Value: | = | $287,960 | |
| (–) Productivity Loss: | – | $0 | |
| | | -------------------------- | |
| (=) Subtotal: | = | $287,960 | |
| (+) Senior Appraised Value: | + | $0 | |
| (+) Non-Senior Appraised Value: | + | $287,960 | |
| | | -------------------------- | |
| (=) Total Appraised Value: | = | $287,960 | |
| (–) Senior Exemption Loss: | – | $0 | |
| (–) Exemption Loss: | – | $0 | |
| | | -------------------------- | |
| (=) Taxable Value: | = | $287,960 | |
Taxing Jurisdiction
| Owner: | PETERSON DARCIE DEE | | |
| % Ownership: | 100.0000000000% | | |
| Total Value: | $287,960 | | |
| Tax Area: | 1 - OL-140-F |
| CERFD | CURRENT EXPENSE REFUND 010 | 0.0000000000 | $287,960 | $287,960 | $0.00 | | |
| CURREXP | CURRENT EXPENSE 010 | 1.0175366760 | $287,960 | $287,960 | $293.01 | | |
| HUMNSERV | HUMAN SERVICES 119 | 0.0250000000 | $287,960 | $287,960 | $7.20 | | |
| SLDREL | SOLDIERS RELIEF 121 | 0.0155990005 | $287,960 | $287,960 | $4.49 | | |
| EMERGSER | EMS 147 | 0.3792580840 | $287,960 | $287,960 | $109.21 | | |
| EMSRFD | EMS REFUND 147 | 0.0000000000 | $287,960 | $287,960 | $0.00 | | |
| PORTRFD | PORT REFUND 640 | 0.0000000000 | $287,960 | $287,960 | $0.00 | | |
| PORTWWGEN | PORT OF WW 640 | 0.2460186015 | $287,960 | $287,960 | $70.84 | | |
| SD140BOND | SD #140 BOND 764 | 0.8342371393 | $287,960 | $287,960 | $240.23 | | |
| SD140GEN | SD #140 GENERAL 760 | 2.0646500647 | $287,960 | $287,960 | $594.54 | | |
| ST2 | STATE SCHOOL PART 2 600 | 0.8131451643 | $287,960 | $287,960 | $234.15 | | |
| STATESCHL | STATE SCHOOL 600 | 1.5158548041 | $287,960 | $287,960 | $436.51 | | |
| STREFUND | STATE REFUND LEVY 603 | 0.0000000000 | $287,960 | $287,960 | $0.00 | | |
| CWWBOND | C OF WW BOND 643 | 0.2760494372 | $287,960 | $287,960 | $79.49 | | |
| CWWGEN | CITY OF WW 631 | 1.6100204973 | $287,960 | $287,960 | $463.62 | | |
| CWWRFD | CITY OF WALLA WALLA REFUND 631 | 0.0000000000 | $287,960 | $287,960 | $0.00 | | |
| | Total Tax Rate: | 8.7973694689 | | | | | |
| | | | | Taxes w/Current Exemptions: | $2,533.29 | | |
| | | | | Taxes w/o Exemptions: | $2,533.29 | | |
Improvement / Building
| Improvement #1: | RESIDENTIAL | State Code: | 11 | 963.0 sqft | Value: | $219,380 |
| Exterior Wall: | SIDING | Heating/Cooling: | WARM & COOLED AIR | | Number of Bathrooms: | 1 | Number of Bedrooms: | 2 | | Plumbing: | 6 | Roof Covering: | COMP SHINGLE |
|
| | Type | Description | Class CD | Sub Class CD | Year Built | Area |
| | MA | Main Area | 1 | 25 | 1922 | 963.0 |
| | SI1 | SITE IMPROVEMENT | 1 | 25 | 1922 | 1.5 |
| | BASE | BASEMENT | 1 | 25 | 1922 | 128.0 |
| | DTG | Detached Garage | 1 | 25 | 1922 | 560.0 |
| | RPS | PORCH W/STEPS,ROOF | 1 | 25 | 1922 | 20.0 |
| | WDR | WOOD DECK W/ROOF | 1 | 25 | 1922 | 16.0 |
| | RPO | OPEN PORCH W/ROOF | 1 | 25 | 1922 | 210.0 |
Sketch
Property Image
Land
| 1 | RES 1 | Converted: Residential | 0.1749 | 7620.00 | 0.00 | 0.00 | 1.00 | $68,580 | $0 |
Roll Value History
| 2025 | N/A | N/A | N/A | N/A | N/A |
| 2024 | $219,380 | $68,580 | $0 | $287,960 | $287,960 |
| 2023 | $219,380 | $68,580 | $0 | $287,960 | $287,960 |
| 2022 | $162,500 | $55,250 | $0 | $217,750 | $123,935 |
| 2021 | $135,420 | $55,250 | $0 | $190,670 | $123,935 |
| 2020 | $112,850 | $55,250 | $0 | $168,100 | $168,100 |
| 2019 | $112,850 | $55,250 | $0 | $168,100 | $168,100 |
| 2018 | $99,910 | $45,100 | $0 | $145,010 | $145,010 |
| 2017 | $86,880 | $45,100 | $0 | $131,980 | $131,980 |
| 2016 | $78,980 | $45,100 | $0 | $124,080 | $124,080 |
| 2015 | $78,980 | $45,100 | $0 | $124,080 | $124,080 |
| 2014 | $71,800 | $45,100 | $0 | $116,900 | $116,900 |
| 2013 | $71,800 | $45,100 | $0 | $116,900 | $116,900 |
| 2012 | $71,800 | $45,100 | $0 | $0 | $0 |
| 2011 | $71,800 | $45,100 | $0 | $0 | $0 |
| 2010 | $71,800 | $45,100 | $0 | $0 | $0 |
| 2009 | $99,200 | $45,100 | $0 | $0 | $0 |
| 2008 | $99,200 | $45,100 | $0 | $0 | $0 |
| 2007 | $62,100 | $22,600 | $0 | $0 | $0 |
| 2006 | $62,100 | $22,600 | $0 | $0 | $0 |
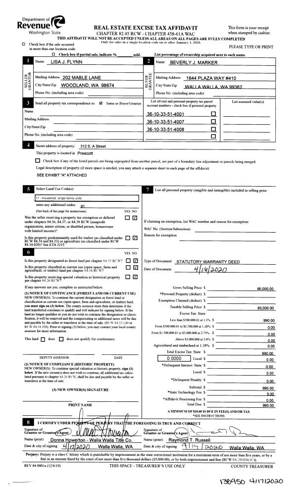
Deed and Sales History
| 1 | 05/19/2023 | SWD | STATUTORY WARRANTY DEED | WEIBLE ROBERT L JR & JUDITH | PETERSON DARCIE DEE | | | $299,000.00 | 145832 | 2023-02677 |
| 2 | 03/18/2020 | QCD | QUIT CLAIM DEED | WEIBLE ROBERT L JR & JUDITH | WEIBLE ROBERT L JR & JUDITH | | | $0.00 | 139413 | 2020-06200 |
| 3 | 08/26/2002 | WARRANTY D | WARRANTY DEED | RIEMER, YING TSU | WEIBLE, ROBERT L JR & JUDITH | | | $89,000.00 | 100223 | 2002-09548 |
| 4 | 03/18/1999 | WARRANTY D | WARRANTY DEED | | | | | $56,147.00 | 92376 | 2819-903374 |
Payout Agreement
| No payout information available.. |