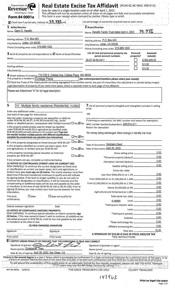
Property
Account |
| Property ID: | 12226 | Abbreviated Legal Description: | GREENS PARK LOT 5 BLK 3 |
| Parcel Number: | 360720510311 | Agent Code: | |
| Type: | Real | | |
| Tax Area: | 1 - OL-140-F | Land Use Code | 11 |
| Open Space: | N | DFL | N |
| Historic Property: | N | Remodel Property: | N |
| Multi-Family Redevelopment: | N | | |
| Township: | 7 | Section: | 20 |
| Range: | 36 |
Location |
| Address: | 830 ALVARADO TER WALLA WALLA, WA 99362 | Mapsco: | |
| Neighborhood: | G-SFR | Map ID: | |
| Neighborhood CD: | 514011 |
Owner |
| Name: | VINELAND PROPERTIES LLC | Owner ID: | 38999 |
| Mailing Address: | 2518 33RD AVE S SEATTLE, WA 98144 | % Ownership: | 100.0000000000% |
| | | Exemptions: | |
Taxes and Assessment Details
Values
| (+) Improvement Homesite Value: | + | $0 | |
| (+) Improvement Non-Homesite Value: | + | $327,540 | |
| (+) Land Homesite Value: | + | $0 | |
| (+) Land Non-Homesite Value: | + | $44,660 | |
| (+) Curr Use (HS): | + | $0 | $0 |
| (+) Curr Use (NHS): | + | $0 | $0 |
| | | -------------------------- | |
| (=) Market Value: | = | $372,200 | |
| (–) Productivity Loss: | – | $0 | |
| | | -------------------------- | |
| (=) Subtotal: | = | $372,200 | |
| (+) Senior Appraised Value: | + | $0 | |
| (+) Non-Senior Appraised Value: | + | $372,200 | |
| | | -------------------------- | |
| (=) Total Appraised Value: | = | $372,200 | |
| (–) Senior Exemption Loss: | – | $0 | |
| (–) Exemption Loss: | – | $0 | |
| | | -------------------------- | |
| (=) Taxable Value: | = | $372,200 | |
Taxing Jurisdiction
| Owner: | VINELAND PROPERTIES LLC | | |
| % Ownership: | 100.0000000000% | | |
| Total Value: | $372,200 | | |
| Tax Area: | 1 - OL-140-F |
| CERFD | CURRENT EXPENSE REFUND 010 | 0.0000000000 | $372,200 | $372,200 | $0.00 | | |
| CURREXP | CURRENT EXPENSE 010 | 1.0175366760 | $372,200 | $372,200 | $378.73 | | |
| HUMNSERV | HUMAN SERVICES 119 | 0.0250000000 | $372,200 | $372,200 | $9.31 | | |
| SLDREL | SOLDIERS RELIEF 121 | 0.0155990005 | $372,200 | $372,200 | $5.81 | | |
| EMERGSER | EMS 147 | 0.3792580840 | $372,200 | $372,200 | $141.16 | | |
| EMSRFD | EMS REFUND 147 | 0.0000000000 | $372,200 | $372,200 | $0.00 | | |
| PORTRFD | PORT REFUND 640 | 0.0000000000 | $372,200 | $372,200 | $0.00 | | |
| PORTWWGEN | PORT OF WW 640 | 0.2460186015 | $372,200 | $372,200 | $91.57 | | |
| SD140BOND | SD #140 BOND 764 | 0.8342371393 | $372,200 | $372,200 | $310.50 | | |
| SD140GEN | SD #140 GENERAL 760 | 2.0646500647 | $372,200 | $372,200 | $768.46 | | |
| ST2 | STATE SCHOOL PART 2 600 | 0.8131451643 | $372,200 | $372,200 | $302.65 | | |
| STATESCHL | STATE SCHOOL 600 | 1.5158548041 | $372,200 | $372,200 | $564.20 | | |
| STREFUND | STATE REFUND LEVY 603 | 0.0000000000 | $372,200 | $372,200 | $0.00 | | |
| CWWBOND | C OF WW BOND 643 | 0.2760494372 | $372,200 | $372,200 | $102.75 | | |
| CWWGEN | CITY OF WW 631 | 1.6100204973 | $372,200 | $372,200 | $599.25 | | |
| CWWRFD | CITY OF WALLA WALLA REFUND 631 | 0.0000000000 | $372,200 | $372,200 | $0.00 | | |
| | Total Tax Rate: | 8.7973694689 | | | | | |
| | | | | Taxes w/Current Exemptions: | $3,274.39 | | |
| | | | | Taxes w/o Exemptions: | $3,274.39 | | |
Improvement / Building
| Improvement #1: | RESIDENTIAL | State Code: | 11 | 1262.0 sqft | Value: | $327,540 |
| Exterior Wall: | SIDING | Heating/Cooling: | FORCED AIR | | Number of Bathrooms: | 1 | Number of Bedrooms: | 4 | | Plumbing: | 7 | Roof Covering: | COMP SHINGLE |
|
| | Type | Description | Class CD | Sub Class CD | Year Built | Area |
| | MA | Main Area | 4 | 35 | 1936 | 1262.0 |
| | UPFL | Upper Floor (included in main area) | 4 | 35 | 1936 | 390.0 |
| | SI1 | SITE IMPROVEMENT | 4 | 35 | 1936 | 1.5 |
| | BASE | BASEMENT | 4 | 35 | 1936 | 872.0 |
| | BPF | BASEMENT -PARTITIONED FINISH | 4 | 35 | 1936 | 540.0 |
| | STG1 | Sub Terrain Garage Single | 4 | 35 | 1936 | 1.0 |
| | RPS | PORCH W/STEPS,ROOF | 4 | 35 | 1936 | 40.0 |
Sketch
Property Image
Land
| 1 | RES 1 | Converted: Residential | 0.1414 | 6160.00 | 0.00 | 0.00 | 1.00 | $44,660 | $0 |
Roll Value History
| 2025 | N/A | N/A | N/A | N/A | N/A |
| 2024 | $315,120 | $67,760 | $0 | $382,880 | $382,880 |
| 2023 | $327,540 | $44,660 | $0 | $372,200 | $372,200 |
| 2022 | $284,820 | $44,660 | $0 | $329,480 | $329,480 |
| 2021 | $219,090 | $44,660 | $0 | $263,750 | $263,750 |
| 2020 | $156,490 | $44,660 | $0 | $201,150 | $201,150 |
| 2019 | $156,490 | $44,660 | $0 | $201,150 | $201,150 |
| 2018 | $149,040 | $44,660 | $0 | $193,700 | $193,700 |
| 2017 | $166,130 | $27,700 | $0 | $193,830 | $193,830 |
| 2016 | $151,030 | $27,700 | $0 | $178,730 | $178,730 |
| 2015 | $151,030 | $27,700 | $0 | $178,730 | $178,730 |
| 2014 | $137,300 | $27,700 | $0 | $165,000 | $165,000 |
| 2013 | $137,300 | $27,700 | $0 | $165,000 | $165,000 |
| 2012 | $137,300 | $27,700 | $0 | $0 | $0 |
| 2011 | $137,300 | $27,700 | $0 | $0 | $0 |
| 2010 | $129,400 | $27,700 | $0 | $0 | $0 |
| 2009 | $146,900 | $27,700 | $0 | $0 | $0 |
| 2008 | $124,100 | $27,700 | $0 | $0 | $0 |
| 2007 | $124,100 | $27,700 | $0 | $0 | $0 |
| 2006 | $74,600 | $12,300 | $0 | $0 | $0 |
Deed and Sales History
| 1 | 04/01/2004 | WARRANTY D | WARRANTY DEED | BAUMAN, CHARLES W | VINELAND PROPERTIES LLC | | | $135,250.00 | 104407 | 2004-03440 |
| 2 | 09/17/2003 | WARRANTY D | WARRANTY DEED | GARDNER, SUDDEN S & NICOLE | BAUMAN, CHARLES W | | | $120,000.00 | 103033 | 2003-14168 |
| 3 | 06/15/2000 | WARRANTY D | WARRANTY DEED | | | | | $88,000.00 | 95270 | 2990-005721 |
Payout Agreement
| No payout information available.. |