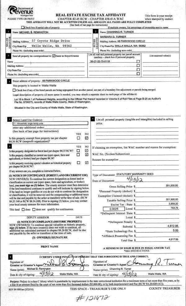
Property
Account |
| Property ID: | 12217 | Abbreviated Legal Description: | STONE CREEK #3 LOT 7 BLK 2 |
| Parcel Number: | 360732710207 | Agent Code: | |
| Type: | Real | | |
| Tax Area: | 1 - OL-140-F | Land Use Code | 11 |
| Open Space: | N | DFL | N |
| Historic Property: | N | Remodel Property: | N |
| Multi-Family Redevelopment: | N | | |
| Township: | 7 | Section: | 32 |
| Range: | 36 |
Location |
| Address: | 2265 GRANITE DR WA 99362 | Mapsco: | |
| Neighborhood: | G Res | Map ID: | |
| Neighborhood CD: | 614011 |
Owner |
| Name: | BRITTON MONICA L | Owner ID: | 68132 |
| Mailing Address: | 2265 GRANITE DR WALLA WALLA, WA 99362 | % Ownership: | 100.0000000000% |
| | | Exemptions: | |
Taxes and Assessment Details
Values
| (+) Improvement Homesite Value: | + | $0 | |
| (+) Improvement Non-Homesite Value: | + | $347,330 | |
| (+) Land Homesite Value: | + | $0 | |
| (+) Land Non-Homesite Value: | + | $103,020 | |
| (+) Curr Use (HS): | + | $0 | $0 |
| (+) Curr Use (NHS): | + | $0 | $0 |
| | | -------------------------- | |
| (=) Market Value: | = | $450,350 | |
| (–) Productivity Loss: | – | $0 | |
| | | -------------------------- | |
| (=) Subtotal: | = | $450,350 | |
| (+) Senior Appraised Value: | + | $0 | |
| (+) Non-Senior Appraised Value: | + | $450,350 | |
| | | -------------------------- | |
| (=) Total Appraised Value: | = | $450,350 | |
| (–) Senior Exemption Loss: | – | $0 | |
| (–) Exemption Loss: | – | $0 | |
| | | -------------------------- | |
| (=) Taxable Value: | = | $450,350 | |
Taxing Jurisdiction
| Owner: | BRITTON MONICA L | | |
| % Ownership: | 100.0000000000% | | |
| Total Value: | $450,350 | | |
| Tax Area: | 1 - OL-140-F |
| CERFD | CURRENT EXPENSE REFUND 010 | 0.0000000000 | $450,350 | $450,350 | $0.00 | | |
| CURREXP | CURRENT EXPENSE 010 | 1.0175366760 | $450,350 | $450,350 | $458.25 | | |
| HUMNSERV | HUMAN SERVICES 119 | 0.0250000000 | $450,350 | $450,350 | $11.26 | | |
| SLDREL | SOLDIERS RELIEF 121 | 0.0155990005 | $450,350 | $450,350 | $7.03 | | |
| EMERGSER | EMS 147 | 0.3792580840 | $450,350 | $450,350 | $170.80 | | |
| EMSRFD | EMS REFUND 147 | 0.0000000000 | $450,350 | $450,350 | $0.00 | | |
| PORTRFD | PORT REFUND 640 | 0.0000000000 | $450,350 | $450,350 | $0.00 | | |
| PORTWWGEN | PORT OF WW 640 | 0.2460186015 | $450,350 | $450,350 | $110.79 | | |
| SD140BOND | SD #140 BOND 764 | 0.8342371393 | $450,350 | $450,350 | $375.70 | | |
| SD140GEN | SD #140 GENERAL 760 | 2.0646500647 | $450,350 | $450,350 | $929.82 | | |
| ST2 | STATE SCHOOL PART 2 600 | 0.8131451643 | $450,350 | $450,350 | $366.20 | | |
| STATESCHL | STATE SCHOOL 600 | 1.5158548041 | $450,350 | $450,350 | $682.67 | | |
| STREFUND | STATE REFUND LEVY 603 | 0.0000000000 | $450,350 | $450,350 | $0.00 | | |
| CWWBOND | C OF WW BOND 643 | 0.2760494372 | $450,350 | $450,350 | $124.32 | | |
| CWWGEN | CITY OF WW 631 | 1.6100204973 | $450,350 | $450,350 | $725.07 | | |
| CWWRFD | CITY OF WALLA WALLA REFUND 631 | 0.0000000000 | $450,350 | $450,350 | $0.00 | | |
| | Total Tax Rate: | 8.7973694689 | | | | | |
| | | | | Taxes w/Current Exemptions: | $3,961.91 | | |
| | | | | Taxes w/o Exemptions: | $3,961.91 | | |
Improvement / Building
| Improvement #1: | RESIDENTIAL | State Code: | 11 | 1544.0 sqft | Value: | $347,330 |
| Exterior Wall: | SIDING | Heating/Cooling: | WARM & COOLED AIR | | Number of Bathrooms: | 3 | Number of Bedrooms: | 5 | | Plumbing: | 12 | Roof Covering: | COMP SHINGLE |
|
| | Type | Description | Class CD | Sub Class CD | Year Built | Area |
| | MA | Main Area | 1 | 30 | 1986 | 1544.0 |
| | SI1 | SITE IMPROVEMENT | 1 | 30 | 1986 | 2.0 |
| | BASE | BASEMENT | 1 | 30 | 1986 | 1412.0 |
| | BPF | BASEMENT -PARTITIONED FINISH | 1 | 30 | 1986 | 1412.0 |
| | ATG | Attached Garage | 1 | 30 | 1986 | 576.0 |
| | RPO | OPEN PORCH W/ROOF | 1 | 30 | 1986 | 220.0 |
| | OPS | OPEN PORCH W/STEPS | 1 | 30 | 1986 | 12.0 |
Sketch
Property Image
Land
| 1 | RES 1 | Converted: Residential | 0.2365 | 10302.00 | 0.00 | 0.00 | 1.00 | $103,020 | $0 |
Roll Value History
| 2025 | N/A | N/A | N/A | N/A | N/A |
| 2024 | $347,330 | $103,020 | $0 | $450,350 | $450,350 |
| 2023 | $347,330 | $103,020 | $0 | $450,350 | $450,350 |
| 2022 | $315,760 | $72,700 | $0 | $388,460 | $388,460 |
| 2021 | $300,720 | $72,700 | $0 | $373,420 | $373,420 |
| 2020 | $214,800 | $72,700 | $0 | $287,500 | $287,500 |
| 2019 | $214,800 | $72,700 | $0 | $287,500 | $287,500 |
| 2018 | $219,880 | $47,400 | $0 | $267,280 | $267,280 |
| 2017 | $199,890 | $47,400 | $0 | $247,290 | $247,290 |
| 2016 | $181,720 | $47,400 | $0 | $229,120 | $229,120 |
| 2015 | $181,720 | $47,400 | $0 | $229,120 | $229,120 |
| 2014 | $165,200 | $47,400 | $0 | $212,600 | $212,600 |
| 2013 | $165,200 | $47,400 | $0 | $212,600 | $212,600 |
| 2012 | $143,700 | $47,400 | $0 | $0 | $0 |
| 2011 | $143,700 | $47,400 | $0 | $0 | $0 |
| 2010 | $153,800 | $47,400 | $0 | $0 | $0 |
| 2009 | $173,500 | $50,000 | $0 | $0 | $0 |
| 2008 | $173,500 | $50,000 | $0 | $0 | $0 |
| 2007 | $120,400 | $30,000 | $0 | $0 | $0 |
| 2006 | $120,400 | $30,000 | $0 | $0 | $0 |
Deed and Sales History
| 1 | 10/16/2020 | SWD | STATUTORY WARRANTY DEED | MERRY BECKI T | BRITTON MONICA L | | | $375,000.00 | 140129 | 2020-10775 |
| 2 | 09/29/2010 | QCD | QUIT CLAIM DEED | BATES, CLIFFORD D | MERRY, BECKI T | | | | 119092 | 2010-07746 |
| 3 | 09/22/2009 | QCD | QUIT CLAIM DEED | BATES, LELA MAVIS | BATES, CLIFFORD D | | | | 117374 | 2009-09512 |
| 4 | 01/15/1992 | WARRANTY D | WARRANTY DEED | | | | | $118,000.00 | 0 | 1949-201111 |
Payout Agreement
| No payout information available.. |