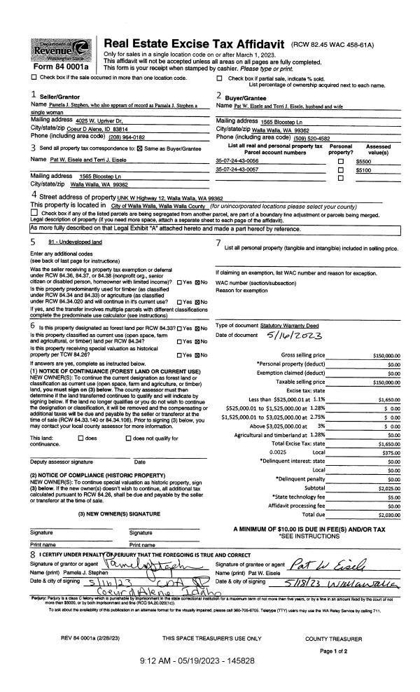
Property
Account |
| Property ID: | 12216 | Abbreviated Legal Description: | STONE CREEK #3 LOT 4 BLK 2 |
| Parcel Number: | 360732710204 | Agent Code: | |
| Type: | Real | | |
| Tax Area: | 1 - OL-140-F | Land Use Code | 11 |
| Open Space: | N | DFL | N |
| Historic Property: | N | Remodel Property: | N |
| Multi-Family Redevelopment: | N | | |
| Township: | 7 | Section: | 32 |
| Range: | 36 |
Location |
| Address: | 2253 GRANITE DR WA 99362 | Mapsco: | |
| Neighborhood: | G Res | Map ID: | |
| Neighborhood CD: | 614011 |
Owner |
| Name: | WERNERT AMANDA | Owner ID: | 71283 |
| Mailing Address: | 2253 GRANITE DR WALLA WALLA, WA 99362 | % Ownership: | 100.0000000000% |
| | | Exemptions: | |
Taxes and Assessment Details
Values
| (+) Improvement Homesite Value: | + | $0 | |
| (+) Improvement Non-Homesite Value: | + | $322,230 | |
| (+) Land Homesite Value: | + | $0 | |
| (+) Land Non-Homesite Value: | + | $110,530 | |
| (+) Curr Use (HS): | + | $0 | $0 |
| (+) Curr Use (NHS): | + | $0 | $0 |
| | | -------------------------- | |
| (=) Market Value: | = | $432,760 | |
| (–) Productivity Loss: | – | $0 | |
| | | -------------------------- | |
| (=) Subtotal: | = | $432,760 | |
| (+) Senior Appraised Value: | + | $0 | |
| (+) Non-Senior Appraised Value: | + | $432,760 | |
| | | -------------------------- | |
| (=) Total Appraised Value: | = | $432,760 | |
| (–) Senior Exemption Loss: | – | $0 | |
| (–) Exemption Loss: | – | $0 | |
| | | -------------------------- | |
| (=) Taxable Value: | = | $432,760 | |
Taxing Jurisdiction
| Owner: | WERNERT AMANDA | | |
| % Ownership: | 100.0000000000% | | |
| Total Value: | $432,760 | | |
| Tax Area: | 1 - OL-140-F |
| CERFD | CURRENT EXPENSE REFUND 010 | 0.0000000000 | $432,760 | $432,760 | $0.00 | | |
| CURREXP | CURRENT EXPENSE 010 | 1.0175366760 | $432,760 | $432,760 | $440.35 | | |
| HUMNSERV | HUMAN SERVICES 119 | 0.0250000000 | $432,760 | $432,760 | $10.82 | | |
| SLDREL | SOLDIERS RELIEF 121 | 0.0155990005 | $432,760 | $432,760 | $6.75 | | |
| EMERGSER | EMS 147 | 0.3792580840 | $432,760 | $432,760 | $164.13 | | |
| EMSRFD | EMS REFUND 147 | 0.0000000000 | $432,760 | $432,760 | $0.00 | | |
| PORTRFD | PORT REFUND 640 | 0.0000000000 | $432,760 | $432,760 | $0.00 | | |
| PORTWWGEN | PORT OF WW 640 | 0.2460186015 | $432,760 | $432,760 | $106.47 | | |
| SD140BOND | SD #140 BOND 764 | 0.8342371393 | $432,760 | $432,760 | $361.02 | | |
| SD140GEN | SD #140 GENERAL 760 | 2.0646500647 | $432,760 | $432,760 | $893.50 | | |
| ST2 | STATE SCHOOL PART 2 600 | 0.8131451643 | $432,760 | $432,760 | $351.90 | | |
| STATESCHL | STATE SCHOOL 600 | 1.5158548041 | $432,760 | $432,760 | $656.00 | | |
| STREFUND | STATE REFUND LEVY 603 | 0.0000000000 | $432,760 | $432,760 | $0.00 | | |
| CWWBOND | C OF WW BOND 643 | 0.2760494372 | $432,760 | $432,760 | $119.46 | | |
| CWWGEN | CITY OF WW 631 | 1.6100204973 | $432,760 | $432,760 | $696.75 | | |
| CWWRFD | CITY OF WALLA WALLA REFUND 631 | 0.0000000000 | $432,760 | $432,760 | $0.00 | | |
| | Total Tax Rate: | 8.7973694689 | | | | | |
| | | | | Taxes w/Current Exemptions: | $3,807.15 | | |
| | | | | Taxes w/o Exemptions: | $3,807.15 | | |
Improvement / Building
| Improvement #1: | RESIDENTIAL | State Code: | 11 | 1888.0 sqft | Value: | $322,230 |
| Exterior Wall: | SIDING | Heating/Cooling: | WARM & COOLED AIR | | Number of Bathrooms: | 2 | Number of Bedrooms: | 3 | | Plumbing: | 9 | Roof Covering: | COMP SHINGLE |
|
| | Type | Description | Class CD | Sub Class CD | Year Built | Area |
| | MA | Main Area | 1 | 35 | 1988 | 1888.0 |
| | SI1 | SITE IMPROVEMENT | 1 | 35 | 1988 | 2.0 |
| | ATG | Attached Garage | 1 | 35 | 1988 | 462.0 |
| | RPO | OPEN PORCH W/ROOF | 1 | 35 | 1988 | 25.0 |
| | CPC | COVERED CARPORT/PATIO | 1 | 35 | 1988 | 110.0 |
Sketch
Property Image
Land
| 1 | RES 1 | Converted: Residential | 0.2537 | 11053.00 | 0.00 | 0.00 | 1.00 | $110,530 | $0 |
Roll Value History
| 2025 | N/A | N/A | N/A | N/A | N/A |
| 2024 | $322,230 | $110,530 | $0 | $432,760 | $432,760 |
| 2023 | $322,230 | $110,530 | $0 | $432,760 | $432,760 |
| 2022 | $339,190 | $73,100 | $0 | $412,290 | $412,290 |
| 2021 | $323,040 | $73,100 | $0 | $396,140 | $396,140 |
| 2020 | $201,900 | $73,100 | $0 | $275,000 | $275,000 |
| 2019 | $201,900 | $73,100 | $0 | $275,000 | $275,000 |
| 2018 | $207,990 | $48,000 | $0 | $255,990 | $255,990 |
| 2017 | $198,080 | $48,000 | $0 | $246,080 | $246,080 |
| 2016 | $188,650 | $48,000 | $0 | $236,650 | $236,650 |
| 2015 | $188,650 | $48,000 | $0 | $236,650 | $236,650 |
| 2014 | $171,500 | $48,000 | $0 | $219,500 | $219,500 |
| 2013 | $171,500 | $48,000 | $0 | $219,500 | $219,500 |
| 2012 | $159,800 | $48,000 | $0 | $0 | $0 |
| 2011 | $159,800 | $48,000 | $0 | $0 | $0 |
| 2010 | $159,800 | $48,000 | $0 | $0 | $0 |
| 2009 | $180,900 | $50,000 | $0 | $0 | $0 |
| 2008 | $180,900 | $50,000 | $0 | $0 | $0 |
| 2007 | $127,200 | $30,000 | $0 | $0 | $0 |
| 2006 | $127,200 | $30,000 | $0 | $0 | $0 |
Deed and Sales History
| 1 | 10/20/2023 | SWD | STATUTORY WARRANTY DEED | WERNERT AMANDA | DRUFFEL TANNER R & NATALIE G | | | $440,000.00 | 146664 | 2023-06174 |
| 2 | 03/15/2022 | SWD | STATUTORY WARRANTY DEED | SMITH KAROL A | WERNERT AMANDA | | | $415,000.00 | 143555 | 2022-02171 |
| 3 | 03/15/2022 | LOPA | LACK OF PROBATE AFFIDAVIT | SMITH JOHN TAYLOR ESTATE OF | SMITH KAROL A | | | | 143554 | 2022-02170 |
| 4 | 05/25/2018 | COMMUNITY | COMMUNITY PROPERTY AGREEMENT | SMITH JOHN T & KAROL A | SMITH KAROL A | | | | 0 | 2018-04122 |
| 5 | 06/19/1992 | WARRANTY D | WARRANTY DEED | | | | | $110,000.00 | 77072 | 1979-205347 |
Payout Agreement
| No payout information available.. |