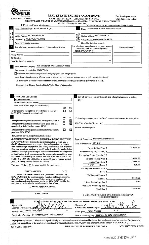
Property
Account |
| Property ID: | 1217 | Abbreviated Legal Description: | HENDERSON ADDN N 50' OF LOTS 1&2 28(A) |
| Parcel Number: | 360729682801 | Agent Code: | |
| Type: | Real | | |
| Tax Area: | 1 - OL-140-F | Land Use Code | 11 |
| Open Space: | N | DFL | N |
| Historic Property: | N | Remodel Property: | N |
| Multi-Family Redevelopment: | N | | |
| Township: | 7 | Section: | 29 |
| Range: | 36 |
Location |
| Address: | 625 CHASE AVE WA 99362 | Mapsco: | |
| Neighborhood: | Fair Res | Map ID: | |
| Neighborhood CD: | 612011 |
Owner |
| Name: | BROWN FREDERICK L | Owner ID: | 59778 |
| Mailing Address: | 625 CHASE AVE WALLA WALLA, WA 99362 | % Ownership: | 100.0000000000% |
| | | Exemptions: | |
Taxes and Assessment Details
Values
| (+) Improvement Homesite Value: | + | $0 | |
| (+) Improvement Non-Homesite Value: | + | $250,280 | |
| (+) Land Homesite Value: | + | $0 | |
| (+) Land Non-Homesite Value: | + | $40,000 | |
| (+) Curr Use (HS): | + | $0 | $0 |
| (+) Curr Use (NHS): | + | $0 | $0 |
| | | -------------------------- | |
| (=) Market Value: | = | $290,280 | |
| (–) Productivity Loss: | – | $0 | |
| | | -------------------------- | |
| (=) Subtotal: | = | $290,280 | |
| (+) Senior Appraised Value: | + | $0 | |
| (+) Non-Senior Appraised Value: | + | $290,280 | |
| | | -------------------------- | |
| (=) Total Appraised Value: | = | $290,280 | |
| (–) Senior Exemption Loss: | – | $0 | |
| (–) Exemption Loss: | – | $0 | |
| | | -------------------------- | |
| (=) Taxable Value: | = | $290,280 | |
Taxing Jurisdiction
| Owner: | BROWN FREDERICK L | | |
| % Ownership: | 100.0000000000% | | |
| Total Value: | $290,280 | | |
| Tax Area: | 1 - OL-140-F |
| CERFD | CURRENT EXPENSE REFUND 010 | 0.0000000000 | $290,280 | $290,280 | $0.00 | | |
| CURREXP | CURRENT EXPENSE 010 | 1.0175366760 | $290,280 | $290,280 | $295.37 | | |
| HUMNSERV | HUMAN SERVICES 119 | 0.0250000000 | $290,280 | $290,280 | $7.26 | | |
| SLDREL | SOLDIERS RELIEF 121 | 0.0155990005 | $290,280 | $290,280 | $4.53 | | |
| EMERGSER | EMS 147 | 0.3792580840 | $290,280 | $290,280 | $110.09 | | |
| EMSRFD | EMS REFUND 147 | 0.0000000000 | $290,280 | $290,280 | $0.00 | | |
| PORTRFD | PORT REFUND 640 | 0.0000000000 | $290,280 | $290,280 | $0.00 | | |
| PORTWWGEN | PORT OF WW 640 | 0.2460186015 | $290,280 | $290,280 | $71.41 | | |
| SD140BOND | SD #140 BOND 764 | 0.8342371393 | $290,280 | $290,280 | $242.16 | | |
| SD140GEN | SD #140 GENERAL 760 | 2.0646500647 | $290,280 | $290,280 | $599.33 | | |
| ST2 | STATE SCHOOL PART 2 600 | 0.8131451643 | $290,280 | $290,280 | $236.04 | | |
| STATESCHL | STATE SCHOOL 600 | 1.5158548041 | $290,280 | $290,280 | $440.02 | | |
| STREFUND | STATE REFUND LEVY 603 | 0.0000000000 | $290,280 | $290,280 | $0.00 | | |
| CWWBOND | C OF WW BOND 643 | 0.2760494372 | $290,280 | $290,280 | $80.13 | | |
| CWWGEN | CITY OF WW 631 | 1.6100204973 | $290,280 | $290,280 | $467.36 | | |
| CWWRFD | CITY OF WALLA WALLA REFUND 631 | 0.0000000000 | $290,280 | $290,280 | $0.00 | | |
| | Total Tax Rate: | 8.7973694689 | | | | | |
| | | | | Taxes w/Current Exemptions: | $2,553.70 | | |
| | | | | Taxes w/o Exemptions: | $2,553.70 | | |
Improvement / Building
| Improvement #1: | RESIDENTIAL | State Code: | 11 | 1136.0 sqft | Value: | $250,280 |
| Exterior Wall: | STUCCO | Foundation: | SLAB FOUNDATION | | Heating/Cooling: | WARM & COOLED AIR | Number of Bathrooms: | 1 | | Number of Bedrooms: | 3 | Plumbing: | 7 | | Roof Covering: | COMP SHINGLE |   |   |
|
| | Type | Description | Class CD | Sub Class CD | Year Built | Area |
| | MA | Main Area | 1 | 25 | 1948 | 1136.0 |
| | SI1 | SITE IMPROVEMENT | 1 | 25 | 1948 | 1.0 |
| | PRC | PORCH W STEPS, ROOF,CEILED | 1 | 25 | 1948 | 28.0 |
| | DTG | Detached Garage | 1 | 25 | 2017 | 576.0 |
Sketch
Property Image
Land
| 1 | RES 1 | Converted: Residential | 0.1148 | 5000.00 | 0.00 | 0.00 | 1.00 | $40,000 | $0 |
Roll Value History
| 2025 | N/A | N/A | N/A | N/A | N/A |
| 2024 | $250,280 | $40,000 | $0 | $290,280 | $290,280 |
| 2023 | $250,280 | $40,000 | $0 | $290,280 | $290,280 |
| 2022 | $238,360 | $31,250 | $0 | $269,610 | $269,610 |
| 2021 | $207,270 | $31,250 | $0 | $238,520 | $238,520 |
| 2020 | $148,050 | $31,250 | $0 | $179,300 | $179,300 |
| 2019 | $148,050 | $31,250 | $0 | $179,300 | $179,300 |
| 2018 | $133,910 | $30,000 | $0 | $163,910 | $163,910 |
| 2017 | $96,620 | $30,000 | $0 | $126,620 | $126,620 |
| 2016 | $80,520 | $30,000 | $0 | $110,520 | $110,520 |
| 2015 | $80,520 | $30,000 | $0 | $110,520 | $110,520 |
| 2014 | $67,100 | $30,000 | $0 | $97,100 | $97,100 |
| 2013 | $67,100 | $30,000 | $0 | $97,100 | $97,100 |
| 2012 | $67,100 | $30,000 | $0 | $0 | $0 |
| 2011 | $67,100 | $30,000 | $0 | $0 | $0 |
| 2010 | $67,100 | $30,000 | $0 | $0 | $0 |
| 2009 | $77,900 | $30,000 | $0 | $0 | $0 |
| 2008 | $77,900 | $30,000 | $0 | $0 | $0 |
| 2007 | $60,300 | $10,000 | $0 | $0 | $0 |
| 2006 | $60,300 | $10,000 | $0 | $0 | $0 |
Deed and Sales History
| 1 | 09/26/2016 | QCD | QUIT CLAIM DEED | BROWN FREDRICK L & JOHNNA A | BROWN FREDERICK L | | | $0.00 | 131144 | 2016-07975 |
| 2 | 05/30/2003 | WARRANTY D | WARRANTY DEED | SECRETARY OF VETERANS AFFAIRS | BROWN, FREDRICK L & JOHNNA A | | | $51,550.00 | 102203 | 2003-07934 |
| 3 | 08/27/2002 | WARRANTY D | WARRANTY DEED | WASHINGTON MUTUAL BANK | SECRETARY OF VETERANS AFFAIRS | | | | 100244 | 2002-09595 |
| 4 | 08/27/2002 | WARRANTY D | WARRANTY DEED | H&L SERVICES TO: | BROWN, FREDRICK L & JOHNNA A | | | | 100243 | 100243- |
| 5 | 08/27/2002 | WARRANTY D | WARRANTY DEED | BOOTH, GARY R | WASHINGTON MUTUAL BANK | | | | 100243 | 2002-09594 |
| 6 | 09/30/1993 | WARRANTY D | WARRANTY DEED | | | | | $49,000.00 | 80154 | 2119-310161 |
Payout Agreement
| No payout information available.. |