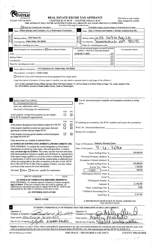
Property
Account |
| Property ID: | 12141 | Abbreviated Legal Description: | NIEMEYERS EASTVIEW LOT 1 BLK 3 |
| Parcel Number: | 360732660301 | Agent Code: | |
| Type: | Real | | |
| Tax Area: | 1 - OL-140-F | Land Use Code | 11 |
| Open Space: | N | DFL | N |
| Historic Property: | N | Remodel Property: | N |
| Multi-Family Redevelopment: | N | | |
| Township: | 7 | Section: | 32 |
| Range: | 36 |
Location |
| Address: | 95 YELLOWSTONE ST WA 99362 | Mapsco: | |
| Neighborhood: | A Res | Map ID: | |
| Neighborhood CD: | 613011 |
Owner |
| Name: | SCARBOROUGH DOUGLAS A & MICHELLE R | Owner ID: | 59735 |
| Mailing Address: | 95 YELLOWSTONE ST WALLA WALLA, WA 99362 | % Ownership: | 100.0000000000% |
| | | Exemptions: | |
Taxes and Assessment Details
Values
| (+) Improvement Homesite Value: | + | $0 | |
| (+) Improvement Non-Homesite Value: | + | $373,830 | |
| (+) Land Homesite Value: | + | $0 | |
| (+) Land Non-Homesite Value: | + | $86,400 | |
| (+) Curr Use (HS): | + | $0 | $0 |
| (+) Curr Use (NHS): | + | $0 | $0 |
| | | -------------------------- | |
| (=) Market Value: | = | $460,230 | |
| (–) Productivity Loss: | – | $0 | |
| | | -------------------------- | |
| (=) Subtotal: | = | $460,230 | |
| (+) Senior Appraised Value: | + | $0 | |
| (+) Non-Senior Appraised Value: | + | $460,230 | |
| | | -------------------------- | |
| (=) Total Appraised Value: | = | $460,230 | |
| (–) Senior Exemption Loss: | – | $0 | |
| (–) Exemption Loss: | – | $0 | |
| | | -------------------------- | |
| (=) Taxable Value: | = | $460,230 | |
Taxing Jurisdiction
| Owner: | SCARBOROUGH DOUGLAS A & MICHELLE R | | |
| % Ownership: | 100.0000000000% | | |
| Total Value: | $460,230 | | |
| Tax Area: | 1 - OL-140-F |
| CERFD | CURRENT EXPENSE REFUND 010 | 0.0000000000 | $460,230 | $460,230 | $0.00 | | |
| CURREXP | CURRENT EXPENSE 010 | 1.0175366760 | $460,230 | $460,230 | $468.30 | | |
| HUMNSERV | HUMAN SERVICES 119 | 0.0250000000 | $460,230 | $460,230 | $11.51 | | |
| SLDREL | SOLDIERS RELIEF 121 | 0.0155990005 | $460,230 | $460,230 | $7.18 | | |
| EMERGSER | EMS 147 | 0.3792580840 | $460,230 | $460,230 | $174.55 | | |
| EMSRFD | EMS REFUND 147 | 0.0000000000 | $460,230 | $460,230 | $0.00 | | |
| PORTRFD | PORT REFUND 640 | 0.0000000000 | $460,230 | $460,230 | $0.00 | | |
| PORTWWGEN | PORT OF WW 640 | 0.2460186015 | $460,230 | $460,230 | $113.23 | | |
| SD140BOND | SD #140 BOND 764 | 0.8342371393 | $460,230 | $460,230 | $383.94 | | |
| SD140GEN | SD #140 GENERAL 760 | 2.0646500647 | $460,230 | $460,230 | $950.21 | | |
| ST2 | STATE SCHOOL PART 2 600 | 0.8131451643 | $460,230 | $460,230 | $374.23 | | |
| STATESCHL | STATE SCHOOL 600 | 1.5158548041 | $460,230 | $460,230 | $697.64 | | |
| STREFUND | STATE REFUND LEVY 603 | 0.0000000000 | $460,230 | $460,230 | $0.00 | | |
| CWWBOND | C OF WW BOND 643 | 0.2760494372 | $460,230 | $460,230 | $127.05 | | |
| CWWGEN | CITY OF WW 631 | 1.6100204973 | $460,230 | $460,230 | $740.98 | | |
| CWWRFD | CITY OF WALLA WALLA REFUND 631 | 0.0000000000 | $460,230 | $460,230 | $0.00 | | |
| | Total Tax Rate: | 8.7973694689 | | | | | |
| | | | | Taxes w/Current Exemptions: | $4,048.82 | | |
| | | | | Taxes w/o Exemptions: | $4,048.82 | | |
Improvement / Building
| Improvement #1: | RESIDENTIAL | State Code: | 11 | 2523.0 sqft | Value: | $373,830 |
| Exterior Wall: | VINYL | Heating/Cooling: | HEAT PUMP | | Number of Bathrooms: | 2 | Number of Bedrooms: | 5 | | Plumbing: | 12 | Roof Covering: | COMP SHINGLE |
|
| | Type | Description | Class CD | Sub Class CD | Year Built | Area |
| | MA | Main Area | 4 | 35 | 1978 | 2523.0 |
| | SI1 | SITE IMPROVEMENT | 4 | 35 | 1978 | 2.5 |
| | UPFL | Upper Floor (included in main area) | 4 | 35 | 1978 | 416.0 |
| | ATG | Attached Garage | 4 | 35 | 1978 | 521.0 |
| | OSP | Open | 4 | 35 | 1978 | 18.0 |
| | S1F | Single One Story Fireplace | 4 | 35 | 1978 | 1.0 |
| | CPC | COVERED CARPORT/PATIO | 4 | 35 | 1978 | 200.0 |
| | RPO | OPEN PORCH W/ROOF | 4 | 35 | 1978 | 250.0 |
| | TOOL | TOOL SHED | 4 | 35 | 1978 | 224.0 |
| | GIF | GARAGE INTERIOR FINISH | 4 | 35 | 1978 | 224.0 |
Sketch
Property Image
Land
| 1 | RES 1 | Converted: Residential | 0.2204 | 9600.00 | 0.00 | 0.00 | 1.00 | $86,400 | $0 |
Roll Value History
| 2025 | N/A | N/A | N/A | N/A | N/A |
| 2024 | $373,830 | $86,400 | $0 | $460,230 | $460,230 |
| 2023 | $373,830 | $86,400 | $0 | $460,230 | $460,230 |
| 2022 | $373,830 | $69,600 | $0 | $443,430 | $443,430 |
| 2021 | $287,560 | $69,600 | $0 | $357,160 | $357,160 |
| 2020 | $221,200 | $69,600 | $0 | $290,800 | $290,800 |
| 2019 | $221,200 | $69,600 | $0 | $290,800 | $290,800 |
| 2018 | $235,580 | $46,800 | $0 | $282,380 | $282,380 |
| 2017 | $224,370 | $46,800 | $0 | $271,170 | $271,170 |
| 2016 | $195,100 | $46,800 | $0 | $241,900 | $241,900 |
| 2015 | $195,100 | $46,800 | $0 | $241,900 | $241,900 |
| 2014 | $195,100 | $46,800 | $0 | $241,900 | $241,900 |
| 2013 | $195,100 | $46,800 | $0 | $241,900 | $241,900 |
| 2012 | $195,100 | $46,800 | $0 | $0 | $0 |
| 2011 | $195,100 | $46,800 | $0 | $0 | $0 |
| 2010 | $195,100 | $46,800 | $0 | $0 | $0 |
| 2009 | $222,000 | $46,800 | $0 | $0 | $0 |
| 2008 | $222,000 | $46,800 | $0 | $0 | $0 |
| 2007 | $139,700 | $24,300 | $0 | $0 | $0 |
| 2006 | $139,700 | $24,300 | $0 | $0 | $0 |
Deed and Sales History
| 1 | 09/30/2016 | SWD | STATUTORY WARRANTY DEED | HEDINE KARL W | SCARBOROUGH DOUGLAS A & MICHELLE R | | | $289,000.00 | 131169 | 2016-08081 |
| 2 | 06/06/2002 | WARRANTY D | WARRANTY DEED | | | | | $165,000.00 | 99664 | 2002-0006583 |
Payout Agreement
| No payout information available.. |