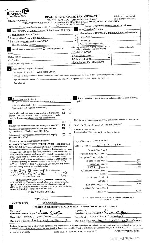
Property
Account |
| Property ID: | 12037 | Abbreviated Legal Description: | PROSPECT HEIGHTS LOTS 1 THRU 4 BLK 5; PLUS PORTION VAC ST |
| Parcel Number: | 360732570501 | Agent Code: | |
| Type: | Real | | |
| Tax Area: | 105 - 140-F-4 | Land Use Code | 11 |
| Open Space: | N | DFL | N |
| Historic Property: | N | Remodel Property: | N |
| Multi-Family Redevelopment: | N | | |
| Township: | 7 | Section: | 32 |
| Range: | 36 |
Location |
| Address: | 239 RANSOM RD WA 99362 | Mapsco: | |
| Neighborhood: | G Res Rural/City Inf | Map ID: | |
| Neighborhood CD: | 614012 |
Owner |
| Name: | JACOB GREGORY T & ALANNA S | Owner ID: | 65791 |
| Mailing Address: | 239 RANSOM RD WALLA WALLA, WA 99362 | % Ownership: | 100.0000000000% |
| | | Exemptions: | |
Taxes and Assessment Details
Values
| (+) Improvement Homesite Value: | + | $0 | |
| (+) Improvement Non-Homesite Value: | + | $367,080 | |
| (+) Land Homesite Value: | + | $0 | |
| (+) Land Non-Homesite Value: | + | $166,890 | |
| (+) Curr Use (HS): | + | $0 | $0 |
| (+) Curr Use (NHS): | + | $0 | $0 |
| | | -------------------------- | |
| (=) Market Value: | = | $533,970 | |
| (–) Productivity Loss: | – | $0 | |
| | | -------------------------- | |
| (=) Subtotal: | = | $533,970 | |
| (+) Senior Appraised Value: | + | $0 | |
| (+) Non-Senior Appraised Value: | + | $533,970 | |
| | | -------------------------- | |
| (=) Total Appraised Value: | = | $533,970 | |
| (–) Senior Exemption Loss: | – | $0 | |
| (–) Exemption Loss: | – | $0 | |
| | | -------------------------- | |
| (=) Taxable Value: | = | $533,970 | |
Taxing Jurisdiction
| Owner: | JACOB GREGORY T & ALANNA S | | |
| % Ownership: | 100.0000000000% | | |
| Total Value: | $533,970 | | |
| Tax Area: | 105 - 140-F-4 |
| CERFD | CURRENT EXPENSE REFUND 010 | 0.0000000000 | $533,970 | $533,970 | $0.00 | | |
| CURREXP | CURRENT EXPENSE 010 | 1.0175366760 | $533,970 | $533,970 | $543.33 | | |
| HUMNSERV | HUMAN SERVICES 119 | 0.0250000000 | $533,970 | $533,970 | $13.35 | | |
| SLDREL | SOLDIERS RELIEF 121 | 0.0155990005 | $533,970 | $533,970 | $8.33 | | |
| EMERGSER | EMS 147 | 0.3792580840 | $533,970 | $533,970 | $202.51 | | |
| EMSRFD | EMS REFUND 147 | 0.0000000000 | $533,970 | $533,970 | $0.00 | | |
| FD4EXP | FD #4 EXPENSE 686 | 0.8836993059 | $533,970 | $533,970 | $471.87 | | |
| RLBRFD | RURAL LIBRARY REFUND 623 | 0.0000000000 | $533,970 | $533,970 | $0.00 | | |
| RURALLIB | RURAL LIBRARY 623 | 0.3710609029 | $533,970 | $533,970 | $198.14 | | |
| PORTRFD | PORT REFUND 640 | 0.0000000000 | $533,970 | $533,970 | $0.00 | | |
| PORTWWGEN | PORT OF WW 640 | 0.2460186015 | $533,970 | $533,970 | $131.37 | | |
| SD140BOND | SD #140 BOND 764 | 0.8342371393 | $533,970 | $533,970 | $445.46 | | |
| SD140GEN | SD #140 GENERAL 760 | 2.0646500647 | $533,970 | $533,970 | $1,102.46 | | |
| ST2 | STATE SCHOOL PART 2 600 | 0.8131451643 | $533,970 | $533,970 | $434.20 | | |
| STATESCHL | STATE SCHOOL 600 | 1.5158548041 | $533,970 | $533,970 | $809.42 | | |
| STREFUND | STATE REFUND LEVY 603 | 0.0000000000 | $533,970 | $533,970 | $0.00 | | |
| COROAD | COUNTY ROAD 115 | 1.6549953990 | $533,970 | $533,970 | $883.72 | | |
| CRPRD | COUNTY ROAD REFUND 115 | 0.0000000000 | $533,970 | $533,970 | $0.00 | | |
| | Total Tax Rate: | 9.8210551422 | | | | | |
| | | | | Taxes w/Current Exemptions: | $5,244.16 | | |
| | | | | Taxes w/o Exemptions: | $5,244.16 | | |
Improvement / Building
| Improvement #1: | RESIDENTIAL | State Code: | 11 | 1426.0 sqft | Value: | $367,080 |
| Exterior Wall: | PLYWOOD | Heating/Cooling: | WARM & COOLED AIR | | Number of Bathrooms: | 2 | Number of Bedrooms: | 3 | | Plumbing: | 9 | Roof Covering: | COMP SHINGLE |
|
| | Type | Description | Class CD | Sub Class CD | Year Built | Area |
| | MA | Main Area | 1 | 30 | 1974 | 1426.0 |
| | SI1 | SITE IMPROVEMENT | 1 | 30 | 1974 | 2.5 |
| | BASE | BASEMENT | 1 | 30 | 1974 | 1426.0 |
| | OPS | OPEN PORCH W/STEPS | 1 | 30 | 1974 | 24.0 |
| | ATG | Attached Garage | 1 | 30 | 1974 | 648.0 |
| | WOD | Wood Deck | 1 | 30 | 1974 | 474.0 |
| | S1F | Single One Story Fireplace | 1 | 30 | 1974 | 1.0 |
| | BRW | BREEZEWAY | 1 | 30 | 1974 | 162.0 |
| | POL1 | POLE BUILDING-GRAVEL | 1 | 30 | 2008 | 1296.0 |
| | UTST | Utility Storage Shed | 1 | 30 | 1974 | 1104.0 |
| | UTST | Utility Storage Shed | 1 | 30 | 1974 | 720.0 |
Sketch
Property Image
Land
| 1 | RES 1 | Converted: Residential | 2.6600 | 115869.60 | 0.00 | 0.00 | 1.00 | $166,890 | $0 |
Roll Value History
| 2025 | N/A | N/A | N/A | N/A | N/A |
| 2024 | $367,080 | $166,890 | $0 | $533,970 | $533,970 |
| 2023 | $367,080 | $166,890 | $0 | $533,970 | $533,970 |
| 2022 | $367,080 | $98,480 | $0 | $465,560 | $465,560 |
| 2021 | $282,370 | $98,480 | $0 | $380,850 | $380,850 |
| 2020 | $201,690 | $98,480 | $0 | $300,170 | $300,170 |
| 2019 | $201,690 | $98,480 | $0 | $300,170 | $300,170 |
| 2018 | $201,690 | $75,000 | $0 | $276,690 | $276,690 |
| 2017 | $175,380 | $75,000 | $0 | $250,380 | $250,380 |
| 2016 | $167,030 | $75,000 | $0 | $242,030 | $242,030 |
| 2015 | $159,080 | $75,000 | $0 | $234,080 | $234,080 |
| 2014 | $151,500 | $75,000 | $0 | $226,500 | $226,500 |
| 2013 | $151,500 | $75,000 | $0 | $226,500 | $226,500 |
| 2012 | $151,500 | $75,000 | $0 | $0 | $0 |
| 2011 | $151,500 | $75,000 | $0 | $0 | $0 |
| 2010 | $151,500 | $75,000 | $0 | $0 | $0 |
| 2009 | $176,700 | $75,000 | $0 | $0 | $0 |
| 2008 | $172,300 | $75,000 | $0 | $0 | $0 |
| 2007 | $111,300 | $44,000 | $0 | $0 | $0 |
| 2006 | $111,300 | $44,000 | $0 | $0 | $0 |
Deed and Sales History
| 1 | 08/12/2019 | SWD | STATUTORY WARRANTY DEED | LANDERS PAULINE | JACOB GREGORY T & ALANNA S | | | $385,000.00 | 137470 | 2019-06043 |
| 2 | 08/12/2019 | LOPA | LACK OF PROBATE AFFIDAVIT | LANDERS ROBERT D ESTATE OF | LANDERS PAULINE | | | $0.00 | 137469 | 2019-06041 |
| 3 | 02/05/2019 | COMMUNITY | COMMUNITY PROPERTY AGREEMENT | LANDERS ROBERT & PAULINE | | | | | 0 | 2019-00797 |
| 4 | 05/04/1971 | WARRANTY D | WARRANTY DEED | | | | | $0.00 | 0 | 3400-513903 |
| 5 | 01/01/1959 | WARRANTY D | WARRANTY DEED | | | 290 | 43 | $0.00 | 0 | 2900-413886 |
Payout Agreement
| No payout information available.. |