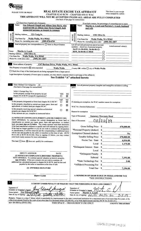
Property
Account |
| Property ID: | 12032 | Abbreviated Legal Description: | PROSPECT HEIGHTS LOT 15 BLK 3 |
| Parcel Number: | 360732570315 | Agent Code: | |
| Type: | Real | | |
| Tax Area: | 105 - 140-F-4 | Land Use Code | 11 |
| Open Space: | N | DFL | N |
| Historic Property: | N | Remodel Property: | N |
| Multi-Family Redevelopment: | N | | |
| Township: | 7 | Section: | 32 |
| Range: | 36 |
Location |
| Address: | 402 RANSOM RD WA 99362 | Mapsco: | |
| Neighborhood: | G Res Rural/City Inf | Map ID: | |
| Neighborhood CD: | 614012 |
Owner |
| Name: | BATES JOSHUA D & REBECCA J | Owner ID: | 65807 |
| Mailing Address: | 402 RANSOM RD WALLA WALLA, WA 99362 | % Ownership: | 100.0000000000% |
| | | Exemptions: | |
Taxes and Assessment Details
Values
| (+) Improvement Homesite Value: | + | $0 | |
| (+) Improvement Non-Homesite Value: | + | $49,070 | |
| (+) Land Homesite Value: | + | $0 | |
| (+) Land Non-Homesite Value: | + | $137,060 | |
| (+) Curr Use (HS): | + | $0 | $0 |
| (+) Curr Use (NHS): | + | $0 | $0 |
| | | -------------------------- | |
| (=) Market Value: | = | $186,130 | |
| (–) Productivity Loss: | – | $0 | |
| | | -------------------------- | |
| (=) Subtotal: | = | $186,130 | |
| (+) Senior Appraised Value: | + | $0 | |
| (+) Non-Senior Appraised Value: | + | $186,130 | |
| | | -------------------------- | |
| (=) Total Appraised Value: | = | $186,130 | |
| (–) Senior Exemption Loss: | – | $0 | |
| (–) Exemption Loss: | – | $0 | |
| | | -------------------------- | |
| (=) Taxable Value: | = | $186,130 | |
Taxing Jurisdiction
| Owner: | BATES JOSHUA D & REBECCA J | | |
| % Ownership: | 100.0000000000% | | |
| Total Value: | $186,130 | | |
| Tax Area: | 105 - 140-F-4 |
| CERFD | CURRENT EXPENSE REFUND 010 | 0.0000000000 | $186,130 | $186,130 | $0.00 | | |
| CURREXP | CURRENT EXPENSE 010 | 1.0175366760 | $186,130 | $186,130 | $189.39 | | |
| HUMNSERV | HUMAN SERVICES 119 | 0.0250000000 | $186,130 | $186,130 | $4.65 | | |
| SLDREL | SOLDIERS RELIEF 121 | 0.0155990005 | $186,130 | $186,130 | $2.90 | | |
| EMERGSER | EMS 147 | 0.3792580840 | $186,130 | $186,130 | $70.59 | | |
| EMSRFD | EMS REFUND 147 | 0.0000000000 | $186,130 | $186,130 | $0.00 | | |
| FD4EXP | FD #4 EXPENSE 686 | 0.8836993059 | $186,130 | $186,130 | $164.48 | | |
| RLBRFD | RURAL LIBRARY REFUND 623 | 0.0000000000 | $186,130 | $186,130 | $0.00 | | |
| RURALLIB | RURAL LIBRARY 623 | 0.3710609029 | $186,130 | $186,130 | $69.07 | | |
| PORTRFD | PORT REFUND 640 | 0.0000000000 | $186,130 | $186,130 | $0.00 | | |
| PORTWWGEN | PORT OF WW 640 | 0.2460186015 | $186,130 | $186,130 | $45.79 | | |
| SD140BOND | SD #140 BOND 764 | 0.8342371393 | $186,130 | $186,130 | $155.28 | | |
| SD140GEN | SD #140 GENERAL 760 | 2.0646500647 | $186,130 | $186,130 | $384.29 | | |
| ST2 | STATE SCHOOL PART 2 600 | 0.8131451643 | $186,130 | $186,130 | $151.35 | | |
| STATESCHL | STATE SCHOOL 600 | 1.5158548041 | $186,130 | $186,130 | $282.15 | | |
| STREFUND | STATE REFUND LEVY 603 | 0.0000000000 | $186,130 | $186,130 | $0.00 | | |
| COROAD | COUNTY ROAD 115 | 1.6549953990 | $186,130 | $186,130 | $308.04 | | |
| CRPRD | COUNTY ROAD REFUND 115 | 0.0000000000 | $186,130 | $186,130 | $0.00 | | |
| | Total Tax Rate: | 9.8210551422 | | | | | |
| | | | | Taxes w/Current Exemptions: | $1,827.98 | | |
| | | | | Taxes w/o Exemptions: | $1,827.98 | | |
Improvement / Building
| Improvement #1: | RESIDENTIAL | State Code: | 11 | 896.0 sqft | Value: | $49,070 |
| Exterior Wall: | STUCCO | Heating/Cooling: | FLOOR FURNACE | | Number of Bathrooms: | 1 | Number of Bedrooms: | 2 | | Plumbing: | 6 | Roof Covering: | COMP SHINGLE |
|
| | Type | Description | Class CD | Sub Class CD | Year Built | Area |
| | MA | Main Area | 1 | 20 | 1938 | 896.0 |
| | SI1 | SITE IMPROVEMENT | 1 | 20 | 1938 | 1.0 |
| | BASE | BASEMENT | 1 | 20 | 1938 | 504.0 |
| | BRF | BASEMENT - REC FINISH | 1 | 20 | 1938 | 100.0 |
| | RPS | PORCH W/STEPS,ROOF | 1 | 20 | 1938 | 25.0 |
| | RPS | PORCH W/STEPS,ROOF | 1 | 20 | 1938 | 24.0 |
| | DTG | Detached Garage | 1 | 10 | 1938 | 240.0 |
| | LNTD | LEAN TO DIRT FLOOR | 1 | 10 | 1938 | 120.0 |
| | UTST | Utility Storage Shed | 1 | 10 | 1938 | 168.0 |
| | UTST | Utility Storage Shed | 1 | 10 | 1938 | 320.0 |
Sketch
Property Image
Land
| 1 | RES 1 | Converted: Residential | 0.6900 | 30056.00 | 0.00 | 0.00 | 1.00 | $137,060 | $0 |
Roll Value History
| 2025 | N/A | N/A | N/A | N/A | N/A |
| 2024 | $49,070 | $137,060 | $0 | $186,130 | $186,130 |
| 2023 | $49,070 | $137,060 | $0 | $186,130 | $186,130 |
| 2022 | $49,070 | $82,930 | $0 | $132,000 | $132,000 |
| 2021 | $40,890 | $82,930 | $0 | $123,820 | $123,820 |
| 2020 | $40,890 | $82,930 | $0 | $123,820 | $123,820 |
| 2019 | $40,890 | $82,930 | $0 | $123,820 | $123,820 |
| 2018 | $40,890 | $64,200 | $0 | $105,090 | $105,090 |
| 2017 | $40,890 | $64,200 | $0 | $105,090 | $105,090 |
| 2016 | $40,890 | $64,200 | $0 | $105,090 | $105,090 |
| 2015 | $37,170 | $64,200 | $0 | $101,370 | $101,370 |
| 2014 | $35,400 | $64,200 | $0 | $99,600 | $99,600 |
| 2013 | $35,400 | $64,200 | $0 | $99,600 | $99,600 |
| 2012 | $35,300 | $64,200 | $0 | $0 | $0 |
| 2011 | $35,300 | $64,200 | $0 | $0 | $0 |
| 2010 | $35,300 | $64,200 | $0 | $0 | $0 |
| 2009 | $46,300 | $64,200 | $0 | $0 | $0 |
| 2008 | $46,300 | $64,200 | $0 | $0 | $0 |
| 2007 | $57,200 | $26,000 | $0 | $0 | $0 |
| 2006 | $57,200 | $26,000 | $0 | $0 | $0 |
Deed and Sales History
| 1 | 09/03/2019 | QCD | QUIT CLAIM DEED | BATES JERRY D ESTATE OF | BATES JOSHUA D & REBECCA J | | | $0.00 | 137613 | 2019-06858 |
| 2 | 10/04/2016 | DEATH CERT | DEATH CERTIFICATE | | | | | | 0 | 2016-08187 |
| 3 | 10/19/1979 | WARRANTY D | WARRANTY DEED | | | | | $36,000.00 | 0 | 1869-008613 |
| 4 | 05/25/2018 | COMMUNITY | COMMUNITY PROPERTY AGREEMENT | BATES JERRY D & JANICE E | | | | | 0 | 2018-04124 |
Payout Agreement
| No payout information available.. |