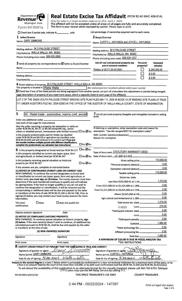
Property
Account |
| Property ID: | 11968 | Abbreviated Legal Description: | MEADOW VIEW LOT 25 BLK 2 |
| Parcel Number: | 360732550225 | Agent Code: | |
| Type: | Real | | |
| Tax Area: | 1 - OL-140-F | Land Use Code | 11 |
| Open Space: | N | DFL | N |
| Historic Property: | N | Remodel Property: | N |
| Multi-Family Redevelopment: | N | | |
| Township: | 7 | Section: | 32 |
| Range: | 36 |
Location |
| Address: | 176 BETHEL ST WA 99362 | Mapsco: | |
| Neighborhood: | A Res | Map ID: | |
| Neighborhood CD: | 613011 |
Owner |
| Name: | BABBITT PAUL M & BRAELEN K | Owner ID: | 69008 |
| Mailing Address: | 176 BETHEL ST WALLA WALLA, WA 99362 | % Ownership: | 100.0000000000% |
| | | Exemptions: | |
Taxes and Assessment Details
Values
| (+) Improvement Homesite Value: | + | $240,180 | |
| (+) Improvement Non-Homesite Value: | + | $0 | |
| (+) Land Homesite Value: | + | $69,300 | |
| (+) Land Non-Homesite Value: | + | $0 | |
| (+) Curr Use (HS): | + | $0 | $0 |
| (+) Curr Use (NHS): | + | $0 | $0 |
| | | -------------------------- | |
| (=) Market Value: | = | $309,480 | |
| (–) Productivity Loss: | – | $0 | |
| | | -------------------------- | |
| (=) Subtotal: | = | $309,480 | |
| (+) Senior Appraised Value: | + | $0 | |
| (+) Non-Senior Appraised Value: | + | $309,480 | |
| | | -------------------------- | |
| (=) Total Appraised Value: | = | $309,480 | |
| (–) Senior Exemption Loss: | – | $0 | |
| (–) Exemption Loss: | – | $0 | |
| | | -------------------------- | |
| (=) Taxable Value: | = | $309,480 | |
Taxing Jurisdiction
| Owner: | BABBITT PAUL M & BRAELEN K | | |
| % Ownership: | 100.0000000000% | | |
| Total Value: | $309,480 | | |
| Tax Area: | 1 - OL-140-F |
| CERFD | CURRENT EXPENSE REFUND 010 | 0.0000000000 | $309,480 | $309,480 | $0.00 | | |
| CURREXP | CURRENT EXPENSE 010 | 1.0175366760 | $309,480 | $309,480 | $314.91 | | |
| HUMNSERV | HUMAN SERVICES 119 | 0.0250000000 | $309,480 | $309,480 | $7.74 | | |
| SLDREL | SOLDIERS RELIEF 121 | 0.0155990005 | $309,480 | $309,480 | $4.83 | | |
| EMERGSER | EMS 147 | 0.3792580840 | $309,480 | $309,480 | $117.37 | | |
| EMSRFD | EMS REFUND 147 | 0.0000000000 | $309,480 | $309,480 | $0.00 | | |
| PORTRFD | PORT REFUND 640 | 0.0000000000 | $309,480 | $309,480 | $0.00 | | |
| PORTWWGEN | PORT OF WW 640 | 0.2460186015 | $309,480 | $309,480 | $76.14 | | |
| SD140BOND | SD #140 BOND 764 | 0.8342371393 | $309,480 | $309,480 | $258.18 | | |
| SD140GEN | SD #140 GENERAL 760 | 2.0646500647 | $309,480 | $309,480 | $638.97 | | |
| ST2 | STATE SCHOOL PART 2 600 | 0.8131451643 | $309,480 | $309,480 | $251.65 | | |
| STATESCHL | STATE SCHOOL 600 | 1.5158548041 | $309,480 | $309,480 | $469.13 | | |
| STREFUND | STATE REFUND LEVY 603 | 0.0000000000 | $309,480 | $309,480 | $0.00 | | |
| CWWBOND | C OF WW BOND 643 | 0.2760494372 | $309,480 | $309,480 | $85.43 | | |
| CWWGEN | CITY OF WW 631 | 1.6100204973 | $309,480 | $309,480 | $498.27 | | |
| CWWRFD | CITY OF WALLA WALLA REFUND 631 | 0.0000000000 | $309,480 | $309,480 | $0.00 | | |
| | Total Tax Rate: | 8.7973694689 | | | | | |
| | | | | Taxes w/Current Exemptions: | $2,722.62 | | |
| | | | | Taxes w/o Exemptions: | $2,722.62 | | |
Improvement / Building
| Improvement #1: | RESIDENTIAL | State Code: | 11 | 1325.0 sqft | Value: | $240,180 |
| Exterior Wall: | SIDING | Heating/Cooling: | WARM & COOLED AIR | | Number of Bathrooms: | 1 | Number of Bedrooms: | 3 | | Plumbing: | 6 | Roof Covering: | COMP SHINGLE |
|
| | Type | Description | Class CD | Sub Class CD | Year Built | Area |
| | MA | Main Area | 1 | 30 | 1959 | 1325.0 |
| | SI1 | SITE IMPROVEMENT | 1 | 30 | 1959 | 1.5 |
| | CPC | COVERED CARPORT/PATIO | 1 | 30 | 1959 | 176.0 |
Sketch
Property Image
Land
| 1 | RES 1 | Converted: Residential | 0.1768 | 7700.00 | 0.00 | 0.00 | 1.00 | $69,300 | $0 |
Roll Value History
| 2025 | N/A | N/A | N/A | N/A | N/A |
| 2024 | $252,190 | $69,300 | $0 | $321,490 | $321,490 |
| 2023 | $240,180 | $69,300 | $0 | $309,480 | $309,480 |
| 2022 | $228,750 | $55,830 | $0 | $284,580 | $284,580 |
| 2021 | $207,950 | $55,830 | $0 | $263,780 | $263,780 |
| 2020 | $129,970 | $55,830 | $0 | $185,800 | $185,800 |
| 2019 | $129,970 | $55,830 | $0 | $185,800 | $185,800 |
| 2018 | $110,400 | $45,200 | $0 | $155,600 | $155,600 |
| 2017 | $110,400 | $45,200 | $0 | $155,600 | $155,600 |
| 2016 | $96,000 | $45,200 | $0 | $141,200 | $141,200 |
| 2015 | $96,000 | $45,200 | $0 | $141,200 | $91,200 |
| 2014 | $96,000 | $45,200 | $0 | $141,200 | $141,200 |
| 2013 | $96,000 | $45,200 | $0 | $141,200 | $141,200 |
| 2012 | $79,800 | $45,200 | $0 | $0 | $0 |
| 2011 | $79,800 | $45,200 | $0 | $0 | $0 |
| 2010 | $79,800 | $45,200 | $0 | $0 | $0 |
| 2009 | $93,700 | $45,200 | $0 | $0 | $0 |
| 2008 | $93,700 | $45,200 | $0 | $0 | $0 |
| 2007 | $69,400 | $22,700 | $0 | $0 | $0 |
| 2006 | $69,400 | $22,700 | $0 | $0 | $0 |
Deed and Sales History
| 1 | 03/08/2021 | SWD | STATUTORY WARRANTY DEED | WILLARD CALEB M & MC KINZEE L | BABBITT PAUL M & BRAELEN K | | | $296,000.00 | 141067 | 2021-02615 |
| 2 | 02/10/2020 | QCD | QUIT CLAIM DEED | WILLARD CALEB M | WILLARD CALEB M & MC KINZEE L | | | $0.00 | 138617 | 2020-01398 |
| 3 | 06/15/2016 | SWD | STATUTORY WARRANTY DEED | DELAVAN JOSEPH W & GINNI L | WILLARD CALEB M | | | $158,000.00 | 130422 | 2016-04598 |
| 4 | 03/05/2015 | QCD | QUIT CLAIM DEED | DELAVAN JOSEPH W & GINNI L | DELAVAN JOSEPH W & GINNI L | | | $0.00 | 127559 | 2015-02037 |
| 5 | 09/26/1979 | QCD | QUIT CLAIM DEED | | | | | $43,000.00 | 0 | 1768-903620 |
Payout Agreement
| No payout information available.. |