Property
Account |
| Property ID: | 11886 | Abbreviated Legal Description: | RANSOM CLARK DC TAX 6 & 6A |
| Parcel Number: | 360732510021 | Agent Code: | |
| Type: | Real | | |
| Tax Area: | 105 - 140-F-4 | Land Use Code | 12 |
| Open Space: | N | DFL | N |
| Historic Property: | N | Remodel Property: | N |
| Multi-Family Redevelopment: | N | | |
| Township: | 7 | Section: | 32 |
| Range: | 36 |
Location |
| Address: | 97 PROSPECT AVE WA 99362 | Mapsco: | |
| Neighborhood: | G Res Multi Res | Map ID: | |
| Neighborhood CD: | 614082 |
Owner |
| Name: | DAGGATT SCOTT | Owner ID: | 68094 |
| Mailing Address: | 97 PROSPECT AVE WALLA WALLA, WA 99362 | % Ownership: | 100.0000000000% |
| | | Exemptions: | |
Taxes and Assessment Details
Values
| (+) Improvement Homesite Value: | + | $0 | |
| (+) Improvement Non-Homesite Value: | + | $1,004,240 | |
| (+) Land Homesite Value: | + | $0 | |
| (+) Land Non-Homesite Value: | + | $126,430 | |
| (+) Curr Use (HS): | + | $0 | $0 |
| (+) Curr Use (NHS): | + | $0 | $0 |
| | | -------------------------- | |
| (=) Market Value: | = | $1,130,670 | |
| (–) Productivity Loss: | – | $0 | |
| | | -------------------------- | |
| (=) Subtotal: | = | $1,130,670 | |
| (+) Senior Appraised Value: | + | $0 | |
| (+) Non-Senior Appraised Value: | + | $1,130,670 | |
| | | -------------------------- | |
| (=) Total Appraised Value: | = | $1,130,670 | |
| (–) Senior Exemption Loss: | – | $0 | |
| (–) Exemption Loss: | – | $0 | |
| | | -------------------------- | |
| (=) Taxable Value: | = | $1,130,670 | |
Taxing Jurisdiction
| Owner: | DAGGATT SCOTT | | |
| % Ownership: | 100.0000000000% | | |
| Total Value: | $1,130,670 | | |
| Tax Area: | 105 - 140-F-4 |
| CERFD | CURRENT EXPENSE REFUND 010 | 0.0000000000 | $1,130,670 | $1,130,670 | $0.00 | | |
| CURREXP | CURRENT EXPENSE 010 | 1.0175366760 | $1,130,670 | $1,130,670 | $1,150.50 | | |
| HUMNSERV | HUMAN SERVICES 119 | 0.0250000000 | $1,130,670 | $1,130,670 | $28.27 | | |
| SLDREL | SOLDIERS RELIEF 121 | 0.0155990005 | $1,130,670 | $1,130,670 | $17.64 | | |
| EMERGSER | EMS 147 | 0.3792580840 | $1,130,670 | $1,130,670 | $428.82 | | |
| EMSRFD | EMS REFUND 147 | 0.0000000000 | $1,130,670 | $1,130,670 | $0.00 | | |
| FD4EXP | FD #4 EXPENSE 686 | 0.8836993059 | $1,130,670 | $1,130,670 | $999.17 | | |
| RLBRFD | RURAL LIBRARY REFUND 623 | 0.0000000000 | $1,130,670 | $1,130,670 | $0.00 | | |
| RURALLIB | RURAL LIBRARY 623 | 0.3710609029 | $1,130,670 | $1,130,670 | $419.55 | | |
| PORTRFD | PORT REFUND 640 | 0.0000000000 | $1,130,670 | $1,130,670 | $0.00 | | |
| PORTWWGEN | PORT OF WW 640 | 0.2460186015 | $1,130,670 | $1,130,670 | $278.17 | | |
| SD140BOND | SD #140 BOND 764 | 0.8342371393 | $1,130,670 | $1,130,670 | $943.25 | | |
| SD140GEN | SD #140 GENERAL 760 | 2.0646500647 | $1,130,670 | $1,130,670 | $2,334.44 | | |
| ST2 | STATE SCHOOL PART 2 600 | 0.8131451643 | $1,130,670 | $1,130,670 | $919.40 | | |
| STATESCHL | STATE SCHOOL 600 | 1.5158548041 | $1,130,670 | $1,130,670 | $1,713.93 | | |
| STREFUND | STATE REFUND LEVY 603 | 0.0000000000 | $1,130,670 | $1,130,670 | $0.00 | | |
| COROAD | COUNTY ROAD 115 | 1.6549953990 | $1,130,670 | $1,130,670 | $1,871.25 | | |
| CRPRD | COUNTY ROAD REFUND 115 | 0.0000000000 | $1,130,670 | $1,130,670 | $0.00 | | |
| | Total Tax Rate: | 9.8210551422 | | | | | |
| | | | | Taxes w/Current Exemptions: | $11,104.39 | | |
| | | | | Taxes w/o Exemptions: | $11,104.39 | | |
Improvement / Building
| Improvement #1: | RESIDENTIAL | State Code: | 12 | 2334.0 sqft | Value: | $788,770 |
| Exterior Wall: | SIDING | Heating/Cooling: | WARM & COOLED AIR | | Number of Bathrooms: | 3.5 | Number of Bedrooms: | 3 | | Plumbing: | 16 | Roof Covering: | METAL ROOFING |
|
| | Type | Description | Class CD | Sub Class CD | Year Built | Area |
| | MA | Main Area | 4 | 50 | 1911 | 2334.0 |
| | UPFL | Upper Floor (included in main area) | 4 | 50 | 1911 | 481.0 |
| | SI1 | SITE IMPROVEMENT | 4 | 50 | 1911 | 5.0 |
| | BASE | BASEMENT | 4 | 50 | 1911 | 1080.0 |
| | BPF | BASEMENT -PARTITIONED FINISH | 4 | 50 | 1911 | 878.0 |
| | PRC | PORCH W STEPS, ROOF,CEILED | 4 | 50 | 1911 | 249.0 |
| | DTG | Detached Garage | 4 | 50 | 1911 | 624.0 |
| | WDR | WOOD DECK W/ROOF | 4 | 50 | 1911 | 581.0 |
| Improvement #2: | RESIDENTIAL | State Code: | 12 | 960.0 sqft | Value: | $215,470 |
| Exterior Wall: | HARDBOARD | Heating/Cooling: | WARM & COOLED AIR | | Number of Bathrooms: | 1 | Number of Bedrooms: | 1 | | Plumbing: | 6 | Roof Covering: | METAL ROOFING |
|
| | Type | Description | Class CD | Sub Class CD | Year Built | Area |
| | MA | Main Area | 1 | 40 | 2018 | 960.0 |
| | OPS | OPEN PORCH W/STEPS | 1 | 40 | 2018 | 240.0 |
| | GFP | GAS FIREPLACE | 1 | 40 | 2018 | 1.0 |
| | OSP | Open | 1 | 40 | 2018 | 210.0 |
Sketch
Property Image
Land
| 1 | RES 1 | Converted: Residential | 0.4300 | 18730.80 | 0.00 | 0.00 | 1.00 | $126,430 | $0 |
Roll Value History
| 2025 | N/A | N/A | N/A | N/A | N/A |
| 2024 | $1,004,240 | $126,430 | $0 | $1,130,670 | $1,130,670 |
| 2023 | $1,004,240 | $126,430 | $0 | $1,130,670 | $1,130,670 |
| 2022 | $1,004,240 | $77,040 | $0 | $1,081,280 | $1,081,280 |
| 2021 | $912,950 | $77,040 | $0 | $989,990 | $989,990 |
| 2020 | $702,270 | $77,040 | $0 | $779,310 | $779,310 |
| 2019 | $442,720 | $77,040 | $0 | $519,760 | $519,760 |
| 2018 | $243,100 | $54,500 | $0 | $297,600 | $297,600 |
| 2017 | $104,810 | $54,500 | $0 | $159,310 | $159,310 |
| 2016 | $91,140 | $54,500 | $0 | $145,640 | $145,640 |
| 2015 | $91,140 | $54,500 | $0 | $145,640 | $145,640 |
| 2014 | $86,800 | $54,500 | $0 | $141,300 | $141,300 |
| 2013 | $86,800 | $54,500 | $0 | $141,300 | $141,300 |
| 2012 | $83,600 | $54,500 | $0 | $0 | $0 |
| 2011 | $83,600 | $54,500 | $0 | $0 | $0 |
| 2010 | $86,400 | $54,500 | $0 | $0 | $0 |
| 2009 | $102,100 | $54,500 | $0 | $0 | $0 |
| 2008 | $102,100 | $54,500 | $0 | $0 | $0 |
| 2007 | $73,100 | $32,000 | $0 | $0 | $0 |
| 2006 | $73,100 | $32,000 | $0 | $0 | $0 |
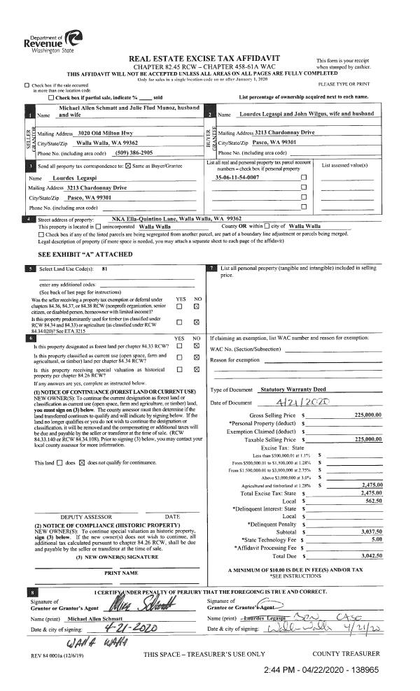
Deed and Sales History
| 1 | 12/08/2020 | WARRANTY D | WARRANTY DEED | DAVIS KEVIN | DAGGATT SCOTT | | | | 140516 | 2020-13002 |
| 2 | 10/07/2020 | SWD | STATUTORY WARRANTY DEED | DAVIS KEVIN | DAGGATT SCOTT | | 2-PARCLES | $1,100,000.00 | 140052 | 2020-10360 |
|   | |
| 3 | 06/27/2017 | QCD | QUIT CLAIM DEED | DAVIS RENAE L | DAVIS KEVIN | | 2-PARCELS | | 132698 | 2017-05013 |
| 4 | 06/29/2017 | SWD | STATUTORY WARRANTY DEED | BOONE EDNA LIFE ESTATE | DAVIS KEVIN | | 2-PARCELS | $160,000.00 | 132697 | 2017-05012 |
|   | |
| 5 | 09/10/1984 | QCD | QUIT CLAIM DEED | | | | | $0.00 | 0 | 1458-406286 |
Payout Agreement
| No payout information available.. |