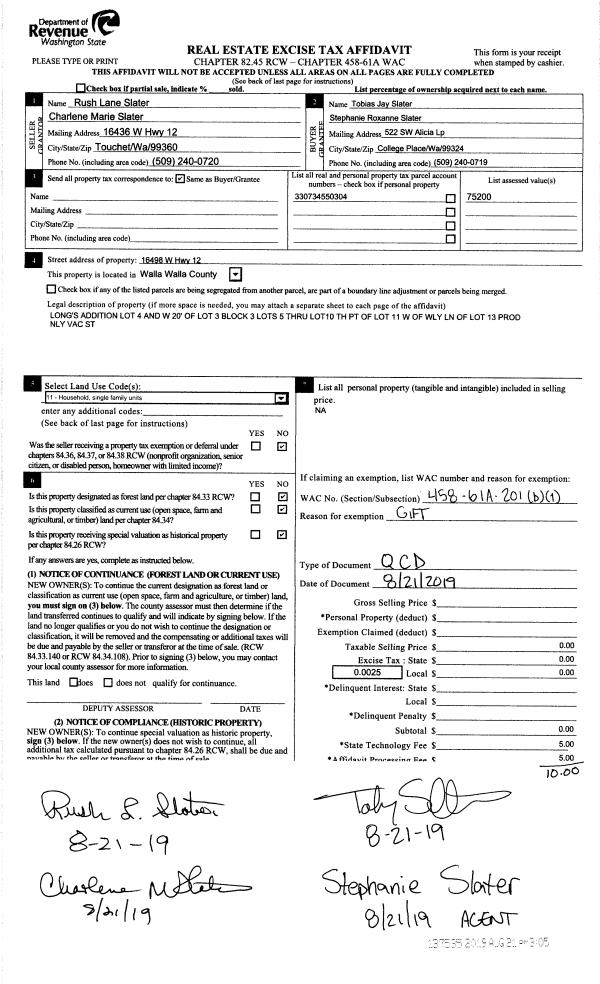
Property
Account |
| Property ID: | 11858 | Abbreviated Legal Description: | CRESTVIEW TAX 2 LOT 5 BLK 3 |
| Parcel Number: | 360732500305 | Agent Code: | |
| Type: | Real | | |
| Tax Area: | 1 - OL-140-F | Land Use Code | 11 |
| Open Space: | N | DFL | N |
| Historic Property: | N | Remodel Property: | N |
| Multi-Family Redevelopment: | N | | |
| Township: | 7 | Section: | 32 |
| Range: | 36 |
Location |
| Address: | 26 BAUMEISTER DR WA 99362 | Mapsco: | |
| Neighborhood: | G Res | Map ID: | |
| Neighborhood CD: | 614011 |
Owner |
| Name: | BIGGS DANIEL LEE JR & ROBIN LYNN | Owner ID: | 68206 |
| Mailing Address: | 26 BAUMEISTER DR WALLA WALLA, WA 99362 | % Ownership: | 100.0000000000% |
| | | Exemptions: | |
Taxes and Assessment Details
Values
| (+) Improvement Homesite Value: | + | $0 | |
| (+) Improvement Non-Homesite Value: | + | $349,790 | |
| (+) Land Homesite Value: | + | $0 | |
| (+) Land Non-Homesite Value: | + | $107,860 | |
| (+) Curr Use (HS): | + | $0 | $0 |
| (+) Curr Use (NHS): | + | $0 | $0 |
| | | -------------------------- | |
| (=) Market Value: | = | $457,650 | |
| (–) Productivity Loss: | – | $0 | |
| | | -------------------------- | |
| (=) Subtotal: | = | $457,650 | |
| (+) Senior Appraised Value: | + | $0 | |
| (+) Non-Senior Appraised Value: | + | $457,650 | |
| | | -------------------------- | |
| (=) Total Appraised Value: | = | $457,650 | |
| (–) Senior Exemption Loss: | – | $0 | |
| (–) Exemption Loss: | – | $0 | |
| | | -------------------------- | |
| (=) Taxable Value: | = | $457,650 | |
Taxing Jurisdiction
| Owner: | BIGGS DANIEL LEE JR & ROBIN LYNN | | |
| % Ownership: | 100.0000000000% | | |
| Total Value: | $457,650 | | |
| Tax Area: | 1 - OL-140-F |
| CERFD | CURRENT EXPENSE REFUND 010 | 0.0000000000 | $457,650 | $457,650 | $0.00 | | |
| CURREXP | CURRENT EXPENSE 010 | 1.0175366760 | $457,650 | $457,650 | $465.68 | | |
| HUMNSERV | HUMAN SERVICES 119 | 0.0250000000 | $457,650 | $457,650 | $11.44 | | |
| SLDREL | SOLDIERS RELIEF 121 | 0.0155990005 | $457,650 | $457,650 | $7.14 | | |
| EMERGSER | EMS 147 | 0.3792580840 | $457,650 | $457,650 | $173.57 | | |
| EMSRFD | EMS REFUND 147 | 0.0000000000 | $457,650 | $457,650 | $0.00 | | |
| PORTRFD | PORT REFUND 640 | 0.0000000000 | $457,650 | $457,650 | $0.00 | | |
| PORTWWGEN | PORT OF WW 640 | 0.2460186015 | $457,650 | $457,650 | $112.59 | | |
| SD140BOND | SD #140 BOND 764 | 0.8342371393 | $457,650 | $457,650 | $381.79 | | |
| SD140GEN | SD #140 GENERAL 760 | 2.0646500647 | $457,650 | $457,650 | $944.89 | | |
| ST2 | STATE SCHOOL PART 2 600 | 0.8131451643 | $457,650 | $457,650 | $372.14 | | |
| STATESCHL | STATE SCHOOL 600 | 1.5158548041 | $457,650 | $457,650 | $693.73 | | |
| STREFUND | STATE REFUND LEVY 603 | 0.0000000000 | $457,650 | $457,650 | $0.00 | | |
| CWWBOND | C OF WW BOND 643 | 0.2760494372 | $457,650 | $457,650 | $126.33 | | |
| CWWGEN | CITY OF WW 631 | 1.6100204973 | $457,650 | $457,650 | $736.83 | | |
| CWWRFD | CITY OF WALLA WALLA REFUND 631 | 0.0000000000 | $457,650 | $457,650 | $0.00 | | |
| | Total Tax Rate: | 8.7973694689 | | | | | |
| | | | | Taxes w/Current Exemptions: | $4,026.13 | | |
| | | | | Taxes w/o Exemptions: | $4,026.13 | | |
Improvement / Building
| Improvement #1: | RESIDENTIAL | State Code: | 11 | 1336.0 sqft | Value: | $349,790 |
| Exterior Wall: | PLYWOOD | Heating/Cooling: | WARM & COOLED AIR | | Number of Bathrooms: | 3 | Number of Bedrooms: | 3 | | Plumbing: | 12 | Roof Covering: | COMP SHINGLE |
|
| | Type | Description | Class CD | Sub Class CD | Year Built | Area |
| | MA | Main Area | 11 | 35 | 1972 | 1336.0 |
| | SI1 | SITE IMPROVEMENT | 11 | 35 | 1972 | 2.0 |
| | BASE | BASEMENT | 11 | 35 | 1972 | 648.0 |
| | BPF | BASEMENT -PARTITIONED FINISH | 11 | 35 | 1972 | 648.0 |
| | BIG | Built In Garage | 11 | 35 | 1972 | 600.0 |
| | BLW | WOOD BALCONIES | 11 | 35 | 1972 | 70.0 |
| | WOD | Wood Deck | 11 | 35 | 1972 | 275.0 |
| | D2F | Double 2 Story Fireplace | 11 | 35 | 1972 | 1.0 |
Sketch
Property Image
Land
| 1 | RES 1 | Converted: Residential | 0.2476 | 10786.00 | 0.00 | 0.00 | 1.00 | $107,860 | $0 |
Roll Value History
| 2025 | N/A | N/A | N/A | N/A | N/A |
| 2024 | $349,790 | $107,860 | $0 | $457,650 | $457,650 |
| 2023 | $349,790 | $107,860 | $0 | $457,650 | $457,650 |
| 2022 | $349,790 | $72,910 | $0 | $422,700 | $422,700 |
| 2021 | $279,830 | $72,910 | $0 | $352,740 | $352,740 |
| 2020 | $233,190 | $72,910 | $0 | $306,100 | $306,100 |
| 2019 | $233,190 | $72,910 | $0 | $306,100 | $306,100 |
| 2018 | $208,730 | $47,800 | $0 | $256,530 | $256,530 |
| 2017 | $189,750 | $47,800 | $0 | $237,550 | $237,550 |
| 2016 | $189,750 | $47,800 | $0 | $237,550 | $237,550 |
| 2015 | $189,750 | $47,800 | $0 | $237,550 | $237,550 |
| 2014 | $172,500 | $47,800 | $0 | $220,300 | $220,300 |
| 2013 | $172,500 | $47,800 | $0 | $220,300 | $220,300 |
| 2012 | $185,700 | $47,800 | $0 | $0 | $0 |
| 2011 | $185,700 | $47,800 | $0 | $0 | $0 |
| 2010 | $164,500 | $47,800 | $0 | $0 | $0 |
| 2009 | $188,100 | $47,800 | $0 | $0 | $0 |
| 2008 | $188,100 | $47,800 | $0 | $0 | $0 |
| 2007 | $138,600 | $25,300 | $0 | $0 | $0 |
| 2006 | $138,600 | $25,300 | $0 | $0 | $0 |
Deed and Sales History
| 1 | 10/28/2020 | SWD | STATUTORY WARRANTY DEED | YEAGER GREGORY | BIGGS DANIEL LEE JR & ROBIN LYNN | | | $350,000.00 | 140204 | 2020-11258 |
| 2 | 09/26/2019 | SWD | STATUTORY WARRANTY DEED | BARNETT JEFFERY & KELLY | YEAGER GREGORY | | | $313,635.00 | 137752 | 2019-07598 |
| 3 | 10/01/2013 | WARRANTY D | WARRANTY DEED | PAULSON, JOHN & JANET E | BARNETT, JEFFERY & KELLY | | | $0.00 | 124748 | 2013-09960 |
| 4 | 08/07/2013 | WARRANTY D | WARRANTY DEED | PAULSON, JOHN & JANET E | BARNETT, JEFFERY & KELLY | | | $243,700.00 | 124425 | 2013-08038 |
| 5 | 09/24/1999 | WARRANTY D | WARRANTY DEED | | | | | $154,000.00 | 93691 | 2899-911083 |
Payout Agreement
| No payout information available.. |