Property
Account |
| Property ID: | 11855 | Abbreviated Legal Description: | CRESTVIEW LOT 2 BLK 3 |
| Parcel Number: | 360732500302 | Agent Code: | |
| Type: | Real | | |
| Tax Area: | 1 - OL-140-F | Land Use Code | 11 |
| Open Space: | N | DFL | N |
| Historic Property: | N | Remodel Property: | N |
| Multi-Family Redevelopment: | N | | |
| Township: | 7 | Section: | 32 |
| Range: | 36 |
Location |
| Address: | 54 BAUMEISTER DR WA 99362 | Mapsco: | |
| Neighborhood: | A Res | Map ID: | |
| Neighborhood CD: | 613011 |
Owner |
| Name: | BIAGI DAN W | Owner ID: | 65948 |
| Mailing Address: | 54 BAUMEISTER DR WALLA WALLA, WA 99362 | % Ownership: | 100.0000000000% |
| | | Exemptions: | |
Taxes and Assessment Details
Values
| (+) Improvement Homesite Value: | + | $0 | |
| (+) Improvement Non-Homesite Value: | + | $308,510 | |
| (+) Land Homesite Value: | + | $0 | |
| (+) Land Non-Homesite Value: | + | $89,080 | |
| (+) Curr Use (HS): | + | $0 | $0 |
| (+) Curr Use (NHS): | + | $0 | $0 |
| | | -------------------------- | |
| (=) Market Value: | = | $397,590 | |
| (–) Productivity Loss: | – | $0 | |
| | | -------------------------- | |
| (=) Subtotal: | = | $397,590 | |
| (+) Senior Appraised Value: | + | $0 | |
| (+) Non-Senior Appraised Value: | + | $397,590 | |
| | | -------------------------- | |
| (=) Total Appraised Value: | = | $397,590 | |
| (–) Senior Exemption Loss: | – | $0 | |
| (–) Exemption Loss: | – | $0 | |
| | | -------------------------- | |
| (=) Taxable Value: | = | $397,590 | |
Taxing Jurisdiction
| Owner: | BIAGI DAN W | | |
| % Ownership: | 100.0000000000% | | |
| Total Value: | $397,590 | | |
| Tax Area: | 1 - OL-140-F |
| CERFD | CURRENT EXPENSE REFUND 010 | 0.0000000000 | $397,590 | $397,590 | $0.00 | | |
| CURREXP | CURRENT EXPENSE 010 | 1.0175366760 | $397,590 | $397,590 | $404.56 | | |
| HUMNSERV | HUMAN SERVICES 119 | 0.0250000000 | $397,590 | $397,590 | $9.94 | | |
| SLDREL | SOLDIERS RELIEF 121 | 0.0155990005 | $397,590 | $397,590 | $6.20 | | |
| EMERGSER | EMS 147 | 0.3792580840 | $397,590 | $397,590 | $150.79 | | |
| EMSRFD | EMS REFUND 147 | 0.0000000000 | $397,590 | $397,590 | $0.00 | | |
| PORTRFD | PORT REFUND 640 | 0.0000000000 | $397,590 | $397,590 | $0.00 | | |
| PORTWWGEN | PORT OF WW 640 | 0.2460186015 | $397,590 | $397,590 | $97.81 | | |
| SD140BOND | SD #140 BOND 764 | 0.8342371393 | $397,590 | $397,590 | $331.68 | | |
| SD140GEN | SD #140 GENERAL 760 | 2.0646500647 | $397,590 | $397,590 | $820.88 | | |
| ST2 | STATE SCHOOL PART 2 600 | 0.8131451643 | $397,590 | $397,590 | $323.30 | | |
| STATESCHL | STATE SCHOOL 600 | 1.5158548041 | $397,590 | $397,590 | $602.69 | | |
| STREFUND | STATE REFUND LEVY 603 | 0.0000000000 | $397,590 | $397,590 | $0.00 | | |
| CWWBOND | C OF WW BOND 643 | 0.2760494372 | $397,590 | $397,590 | $109.75 | | |
| CWWGEN | CITY OF WW 631 | 1.6100204973 | $397,590 | $397,590 | $640.13 | | |
| CWWRFD | CITY OF WALLA WALLA REFUND 631 | 0.0000000000 | $397,590 | $397,590 | $0.00 | | |
| | Total Tax Rate: | 8.7973694689 | | | | | |
| | | | | Taxes w/Current Exemptions: | $3,497.73 | | |
| | | | | Taxes w/o Exemptions: | $3,497.73 | | |
Improvement / Building
| Improvement #1: | RESIDENTIAL | State Code: | 11 | 1400.0 sqft | Value: | $308,510 |
| Exterior Wall: | SIDING | Foundation: | SLAB FOUNDATION | | Heating/Cooling: | HEAT PUMP | Number of Bathrooms: | 3 | | Number of Bedrooms: | 3 | Plumbing: | 12 | | Roof Covering: | COMP SHINGLE |   |   |
|
| | Type | Description | Class CD | Sub Class CD | Year Built | Area |
| | MA | Main Area | 3 | 30 | 1955 | 1400.0 |
| | CPCG | CARPORT/ GABLE ROOF | 3 | 30 | 0 | 152.0 |
| | SI1 | SITE IMPROVEMENT | 3 | 30 | 0 | 1.5 |
| | OPS | OPEN PORCH W/STEPS | 3 | 30 | 1955 | 28.0 |
| | BIG | Built In Garage | 3 | 30 | 1955 | 678.0 |
| | RPO | OPEN PORCH W/ROOF | 3 | 30 | 1955 | 25.0 |
| | D2F | Double 2 Story Fireplace | 3 | 30 | 1955 | 1.0 |
| | BASE | BASEMENT | 3 | 30 | 1955 | 722.0 |
| | BPF | BASEMENT -PARTITIONED FINISH | 3 | 30 | 1955 | 722.0 |
Sketch
Property Image
Land
| 1 | RES 1 | Converted: Residential | 0.2272 | 9898.00 | 0.00 | 0.00 | 1.00 | $89,080 | $0 |
Roll Value History
| 2025 | N/A | N/A | N/A | N/A | N/A |
| 2024 | $308,510 | $89,080 | $0 | $397,590 | $397,590 |
| 2023 | $308,510 | $89,080 | $0 | $397,590 | $397,590 |
| 2022 | $293,820 | $71,760 | $0 | $365,580 | $365,580 |
| 2021 | $209,870 | $71,760 | $0 | $281,630 | $281,630 |
| 2020 | $161,440 | $71,760 | $0 | $233,200 | $233,200 |
| 2019 | $161,440 | $71,760 | $0 | $233,200 | $233,200 |
| 2018 | $150,200 | $47,000 | $0 | $197,200 | $197,200 |
| 2017 | $150,200 | $47,000 | $0 | $197,200 | $197,200 |
| 2016 | $150,200 | $47,000 | $0 | $197,200 | $197,200 |
| 2015 | $150,200 | $47,000 | $0 | $197,200 | $197,200 |
| 2014 | $150,200 | $47,000 | $0 | $197,200 | $197,200 |
| 2013 | $150,200 | $47,000 | $0 | $197,200 | $197,200 |
| 2012 | $149,900 | $47,000 | $0 | $0 | $0 |
| 2011 | $149,900 | $47,000 | $0 | $0 | $0 |
| 2010 | $149,900 | $47,000 | $0 | $0 | $0 |
| 2009 | $171,800 | $47,000 | $0 | $0 | $0 |
| 2008 | $171,800 | $47,000 | $0 | $0 | $0 |
| 2007 | $118,700 | $24,500 | $0 | $0 | $0 |
| 2006 | $118,700 | $24,500 | $0 | $0 | $0 |
Deed and Sales History
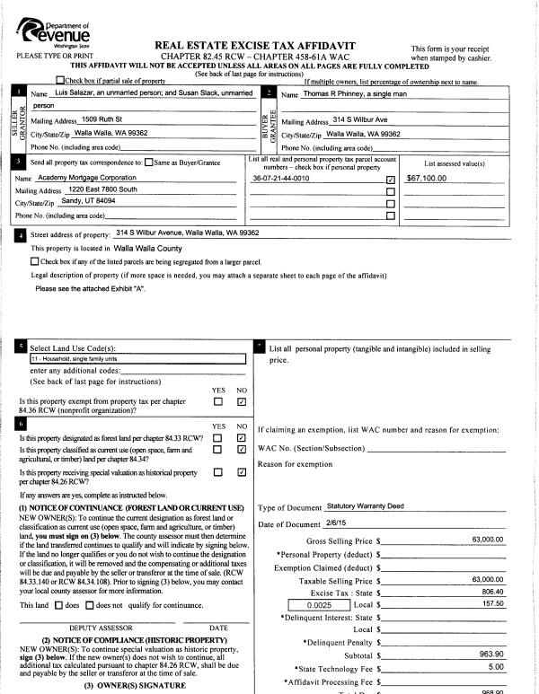
| 1 | 09/17/2019 | SWD | STATUTORY WARRANTY DEED | CRAWFORD PETER B & MILDRED S | BIAGI DAN W | | | $279,000.00 | 137699 | 2019-07273 |
| 2 | 02/27/2015 | SWD | STATUTORY WARRANTY DEED | PANKL RICHARD & MALINDA | CRAWFORD PETER B & MILDRED S | | | $180,000.00 | 127501 | 2015-01750 |
| 3 | 08/08/1980 | WARRANTY D | WARRANTY DEED | | | | | $65,500.00 | 0 | 1238-006191 |
Payout Agreement
| No payout information available.. |