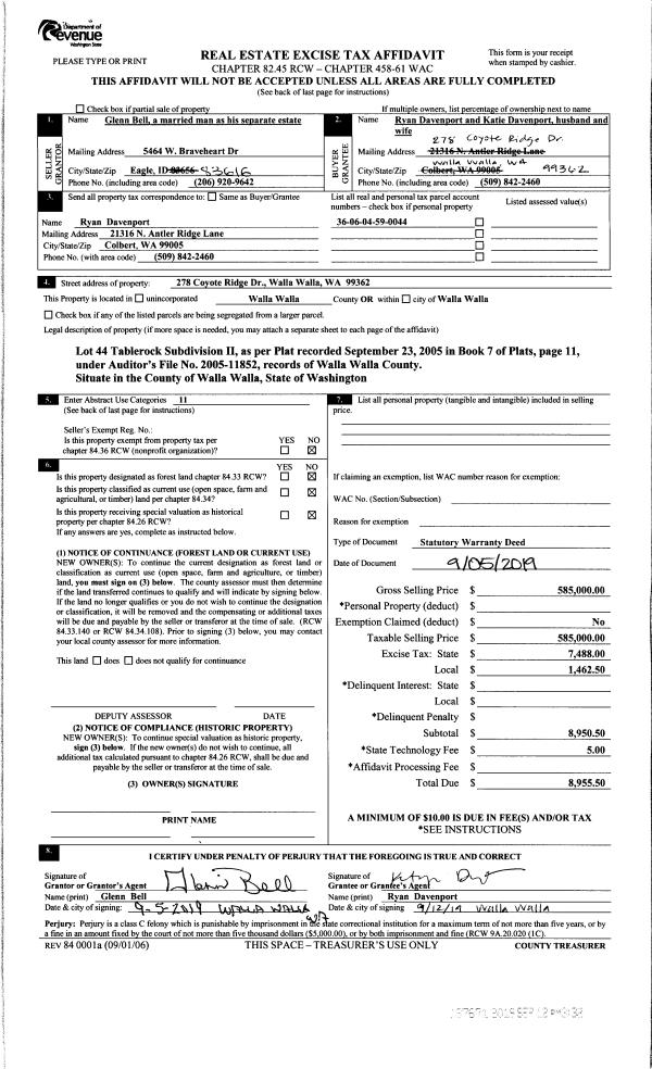
Property
Account |
| Property ID: | 11778 | Abbreviated Legal Description: | AMENDED PLAT OF BLK 2 STODDARDS 2ND ADDITION LOT 3 BLK 2 |
| Parcel Number: | 360731820203 | Agent Code: | |
| Type: | Real | | |
| Tax Area: | 5 - OL-140 | Land Use Code | 11 |
| Open Space: | N | DFL | N |
| Historic Property: | N | Remodel Property: | N |
| Multi-Family Redevelopment: | N | | |
| Township: | 7 | Section: | 31 |
| Range: | 36 |
Location |
| Address: | 1241 LANCER DR WA 99362 | Mapsco: | |
| Neighborhood: | VG SFR | Map ID: | |
| Neighborhood CD: | 115011 |
Owner |
| Name: | HAFEN ROBERT D & LURA A | Owner ID: | 5709 |
| Mailing Address: | 1241 LANCER DR WALLA WALLA, WA 99362 | % Ownership: | 100.0000000000% |
| | | Exemptions: | |
Taxes and Assessment Details
Values
| (+) Improvement Homesite Value: | + | $0 | |
| (+) Improvement Non-Homesite Value: | + | $525,280 | |
| (+) Land Homesite Value: | + | $0 | |
| (+) Land Non-Homesite Value: | + | $100,000 | |
| (+) Curr Use (HS): | + | $0 | $0 |
| (+) Curr Use (NHS): | + | $0 | $0 |
| | | -------------------------- | |
| (=) Market Value: | = | $625,280 | |
| (–) Productivity Loss: | – | $0 | |
| | | -------------------------- | |
| (=) Subtotal: | = | $625,280 | |
| (+) Senior Appraised Value: | + | $0 | |
| (+) Non-Senior Appraised Value: | + | $625,280 | |
| | | -------------------------- | |
| (=) Total Appraised Value: | = | $625,280 | |
| (–) Senior Exemption Loss: | – | $0 | |
| (–) Exemption Loss: | – | $0 | |
| | | -------------------------- | |
| (=) Taxable Value: | = | $625,280 | |
Taxing Jurisdiction
| Owner: | HAFEN ROBERT D & LURA A | | |
| % Ownership: | 100.0000000000% | | |
| Total Value: | $625,280 | | |
| Tax Area: | 5 - OL-140 |
| CERFD | CURRENT EXPENSE REFUND 010 | 0.0000000000 | $625,280 | $625,280 | $0.00 | | |
| CURREXP | CURRENT EXPENSE 010 | 1.0175366760 | $625,280 | $625,280 | $636.25 | | |
| HUMNSERV | HUMAN SERVICES 119 | 0.0250000000 | $625,280 | $625,280 | $15.63 | | |
| SLDREL | SOLDIERS RELIEF 121 | 0.0155990005 | $625,280 | $625,280 | $9.75 | | |
| EMERGSER | EMS 147 | 0.3792580840 | $625,280 | $625,280 | $237.14 | | |
| EMSRFD | EMS REFUND 147 | 0.0000000000 | $625,280 | $625,280 | $0.00 | | |
| PORTRFD | PORT REFUND 640 | 0.0000000000 | $625,280 | $625,280 | $0.00 | | |
| PORTWWGEN | PORT OF WW 640 | 0.2460186015 | $625,280 | $625,280 | $153.83 | | |
| SD140BOND | SD #140 BOND 764 | 0.8342371393 | $625,280 | $625,280 | $521.63 | | |
| SD140GEN | SD #140 GENERAL 760 | 2.0646500647 | $625,280 | $625,280 | $1,290.98 | | |
| ST2 | STATE SCHOOL PART 2 600 | 0.8131451643 | $625,280 | $625,280 | $508.44 | | |
| STATESCHL | STATE SCHOOL 600 | 1.5158548041 | $625,280 | $625,280 | $947.83 | | |
| STREFUND | STATE REFUND LEVY 603 | 0.0000000000 | $625,280 | $625,280 | $0.00 | | |
| CWWBOND | C OF WW BOND 643 | 0.2760494372 | $625,280 | $625,280 | $172.61 | | |
| CWWGEN | CITY OF WW 631 | 1.6100204973 | $625,280 | $625,280 | $1,006.71 | | |
| CWWRFD | CITY OF WALLA WALLA REFUND 631 | 0.0000000000 | $625,280 | $625,280 | $0.00 | | |
| | Total Tax Rate: | 8.7973694689 | | | | | |
| | | | | Taxes w/Current Exemptions: | $5,500.80 | | |
| | | | | Taxes w/o Exemptions: | $5,500.80 | | |
Improvement / Building
| Improvement #1: | RESIDENTIAL | State Code: | 11 | 2092.0 sqft | Value: | $525,280 |
| Exterior Wall: | HARDBOARD | Heating/Cooling: | WARM & COOLED AIR | | Number of Bathrooms: | 3 | Number of Bedrooms: | 5 | | Plumbing: | 15 | Roof Covering: | COMP SHINGLE |
|
| | Type | Description | Class CD | Sub Class CD | Year Built | Area |
| | MA | Main Area | 1 | 45 | 1994 | 2092.0 |
| | SI1 | SITE IMPROVEMENT | 1 | 45 | 0 | 3.5 |
| | BASE | BASEMENT | 1 | 45 | 1994 | 1702.0 |
| | BPF | BASEMENT -PARTITIONED FINISH | 1 | 45 | 1994 | 1450.0 |
| | RPC | OPEN PORCH W/ROOF , CEILED | 1 | 45 | 1994 | 60.0 |
| | ATG | Attached Garage | 1 | 45 | 1994 | 627.0 |
Sketch
Property Image
Land
| 1 | RES 1 | Converted: Residential | 0.2452 | 10679.00 | 0.00 | 0.00 | 1.00 | $100,000 | $0 |
Roll Value History
| 2025 | N/A | N/A | N/A | N/A | N/A |
| 2024 | $525,280 | $100,000 | $0 | $625,280 | $625,280 |
| 2023 | $525,280 | $100,000 | $0 | $625,280 | $625,280 |
| 2022 | $500,260 | $100,000 | $0 | $600,260 | $600,260 |
| 2021 | $454,780 | $100,000 | $0 | $554,780 | $554,780 |
| 2020 | $284,240 | $100,000 | $0 | $384,240 | $384,240 |
| 2019 | $294,240 | $90,000 | $0 | $384,240 | $384,240 |
| 2018 | $245,200 | $90,000 | $0 | $335,200 | $335,200 |
| 2017 | $272,440 | $90,000 | $0 | $362,440 | $362,440 |
| 2016 | $272,440 | $90,000 | $0 | $362,440 | $362,440 |
| 2015 | $200,100 | $90,000 | $0 | $290,100 | $290,100 |
| 2014 | $200,100 | $90,000 | $0 | $290,100 | $290,100 |
| 2013 | $200,100 | $90,000 | $0 | $290,100 | $290,100 |
| 2012 | $215,400 | $90,000 | $0 | $0 | $0 |
| 2011 | $215,400 | $90,000 | $0 | $0 | $0 |
| 2010 | $215,400 | $90,000 | $0 | $0 | $0 |
| 2009 | $231,500 | $90,000 | $0 | $0 | $0 |
| 2008 | $210,700 | $45,000 | $0 | $0 | $0 |
| 2007 | $210,700 | $45,000 | $0 | $0 | $0 |
| 2006 | $210,700 | $45,000 | $0 | $0 | $0 |
Deed and Sales History
| 1 | 03/02/2016 | SWD | STATUTORY WARRANTY DEED | SCHREINER LIVING TRUST | HAFEN ROBERT D & LURA A | | | $332,500.00 | 129775 | 2016-01628 |
| 2 | 06/02/1993 | WARRANTY D | WARRANTY DEED | | | | | $30,000.00 | 0 | 2079-305486 |
Payout Agreement
| No payout information available.. |