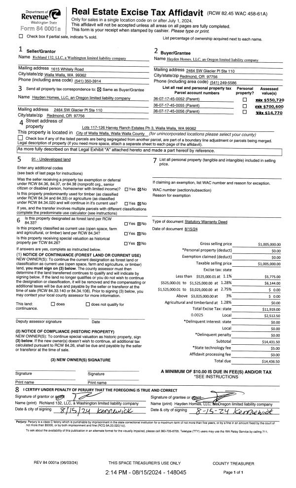
Property
Account |
| Property ID: | 11739 | Abbreviated Legal Description: | SOUTHVIEW ESTATES #2 PHASE 1 LOT 10 |
| Parcel Number: | 360731690010 | Agent Code: | |
| Type: | Real | | |
| Tax Area: | 5 - OL-140 | Land Use Code | 11 |
| Open Space: | N | DFL | N |
| Historic Property: | N | Remodel Property: | N |
| Multi-Family Redevelopment: | N | | |
| Township: | 7 | Section: | 31 |
| Range: | 36 |
Location |
| Address: | 1135 SOUTHVIEW DR WA 99362 | Mapsco: | |
| Neighborhood: | VG- Res Rural/City Inf | Map ID: | |
| Neighborhood CD: | 115112 |
Owner |
| Name: | POWERS DAVID A & GWEN K | Owner ID: | 59634 |
| Mailing Address: | 1135 SOUTHVIEW DR WALLA WALLA, WA 99362 | % Ownership: | 100.0000000000% |
| | | Exemptions: | |
Taxes and Assessment Details
Values
| (+) Improvement Homesite Value: | + | $0 | |
| (+) Improvement Non-Homesite Value: | + | $631,430 | |
| (+) Land Homesite Value: | + | $0 | |
| (+) Land Non-Homesite Value: | + | $90,000 | |
| (+) Curr Use (HS): | + | $0 | $0 |
| (+) Curr Use (NHS): | + | $0 | $0 |
| | | -------------------------- | |
| (=) Market Value: | = | $721,430 | |
| (–) Productivity Loss: | – | $0 | |
| | | -------------------------- | |
| (=) Subtotal: | = | $721,430 | |
| (+) Senior Appraised Value: | + | $0 | |
| (+) Non-Senior Appraised Value: | + | $721,430 | |
| | | -------------------------- | |
| (=) Total Appraised Value: | = | $721,430 | |
| (–) Senior Exemption Loss: | – | $0 | |
| (–) Exemption Loss: | – | $0 | |
| | | -------------------------- | |
| (=) Taxable Value: | = | $721,430 | |
Taxing Jurisdiction
| Owner: | POWERS DAVID A & GWEN K | | |
| % Ownership: | 100.0000000000% | | |
| Total Value: | $721,430 | | |
| Tax Area: | 5 - OL-140 |
| CERFD | CURRENT EXPENSE REFUND 010 | 0.0000000000 | $721,430 | $721,430 | $0.00 | | |
| CURREXP | CURRENT EXPENSE 010 | 1.0175366760 | $721,430 | $721,430 | $734.08 | | |
| HUMNSERV | HUMAN SERVICES 119 | 0.0250000000 | $721,430 | $721,430 | $18.04 | | |
| SLDREL | SOLDIERS RELIEF 121 | 0.0155990005 | $721,430 | $721,430 | $11.25 | | |
| EMERGSER | EMS 147 | 0.3792580840 | $721,430 | $721,430 | $273.61 | | |
| EMSRFD | EMS REFUND 147 | 0.0000000000 | $721,430 | $721,430 | $0.00 | | |
| PORTRFD | PORT REFUND 640 | 0.0000000000 | $721,430 | $721,430 | $0.00 | | |
| PORTWWGEN | PORT OF WW 640 | 0.2460186015 | $721,430 | $721,430 | $177.49 | | |
| SD140BOND | SD #140 BOND 764 | 0.8342371393 | $721,430 | $721,430 | $601.84 | | |
| SD140GEN | SD #140 GENERAL 760 | 2.0646500647 | $721,430 | $721,430 | $1,489.50 | | |
| ST2 | STATE SCHOOL PART 2 600 | 0.8131451643 | $721,430 | $721,430 | $586.63 | | |
| STATESCHL | STATE SCHOOL 600 | 1.5158548041 | $721,430 | $721,430 | $1,093.58 | | |
| STREFUND | STATE REFUND LEVY 603 | 0.0000000000 | $721,430 | $721,430 | $0.00 | | |
| CWWBOND | C OF WW BOND 643 | 0.2760494372 | $721,430 | $721,430 | $199.15 | | |
| CWWGEN | CITY OF WW 631 | 1.6100204973 | $721,430 | $721,430 | $1,161.52 | | |
| CWWRFD | CITY OF WALLA WALLA REFUND 631 | 0.0000000000 | $721,430 | $721,430 | $0.00 | | |
| | Total Tax Rate: | 8.7973694689 | | | | | |
| | | | | Taxes w/Current Exemptions: | $6,346.69 | | |
| | | | | Taxes w/o Exemptions: | $6,346.69 | | |
Improvement / Building
| Improvement #1: | RESIDENTIAL | State Code: | 11 | 2506.0 sqft | Value: | $631,430 |
| Exterior Wall: | MASONRY VENEER | Heating/Cooling: | HEAT PUMP | | Number of Bathrooms: | 3 | Number of Bedrooms: | 3 | | Plumbing: | 16 | Roof Covering: | COMP SHINGLE |
|
| | Type | Description | Class CD | Sub Class CD | Year Built | Area |
| | MA | Main Area | 1 | 45 | 1989 | 2506.0 |
| | ATG | Attached Garage | 1 | 45 | 1989 | 744.0 |
| | SI1 | SITE IMPROVEMENT | 1 | 45 | 1989 | 3.5 |
| | BASE | BASEMENT | 1 | 45 | 1989 | 1117.0 |
| | BPF | BASEMENT -PARTITIONED FINISH | 1 | 45 | 1989 | 1117.0 |
| | S1F | Single One Story Fireplace | 1 | 45 | 1989 | 1.0 |
| | OPS | OPEN PORCH W/STEPS | 1 | 45 | 1989 | 128.0 |
| | CPC | COVERED CARPORT/PATIO | 1 | 45 | 1989 | 336.0 |
Sketch
Property Image
Land
| 1 | RES 1 | Converted: Residential | 0.2634 | 11475.00 | 0.00 | 0.00 | 1.00 | $90,000 | $0 |
Roll Value History
| 2025 | N/A | N/A | N/A | N/A | N/A |
| 2024 | $536,710 | $90,000 | $0 | $626,710 | $626,710 |
| 2023 | $631,430 | $90,000 | $0 | $721,430 | $721,430 |
| 2022 | $469,540 | $90,000 | $0 | $559,540 | $559,540 |
| 2021 | $447,180 | $90,000 | $0 | $537,180 | $537,180 |
| 2020 | $308,400 | $90,000 | $0 | $398,400 | $398,400 |
| 2019 | $323,400 | $75,000 | $0 | $398,400 | $398,400 |
| 2018 | $323,400 | $75,000 | $0 | $398,400 | $398,400 |
| 2017 | $323,400 | $75,000 | $0 | $398,400 | $398,400 |
| 2016 | $323,400 | $75,000 | $0 | $398,400 | $398,400 |
| 2015 | $294,000 | $75,000 | $0 | $369,000 | $369,000 |
| 2014 | $294,000 | $75,000 | $0 | $369,000 | $369,000 |
| 2013 | $294,000 | $75,000 | $0 | $369,000 | $369,000 |
| 2012 | $335,000 | $75,000 | $0 | $0 | $0 |
| 2011 | $335,000 | $75,000 | $0 | $0 | $0 |
| 2010 | $335,000 | $75,000 | $0 | $0 | $0 |
| 2009 | $335,000 | $75,000 | $0 | $0 | $0 |
| 2008 | $245,100 | $40,000 | $0 | $0 | $0 |
| 2007 | $245,100 | $40,000 | $0 | $0 | $0 |
| 2006 | $245,100 | $40,000 | $0 | $0 | $0 |
Deed and Sales History
| 1 | 09/14/2016 | SWD | STATUTORY WARRANTY DEED | ROSER DONALD M & MARGARET M | POWERS DAVID A & GWEN K | | | $398,500.00 | 131029 | 2016-07491 |
| 2 | 05/23/1989 | WARRANTY D | WARRANTY DEED | | | | | $22,000.00 | 0 | 1768-903138 |
Payout Agreement
| No payout information available.. |