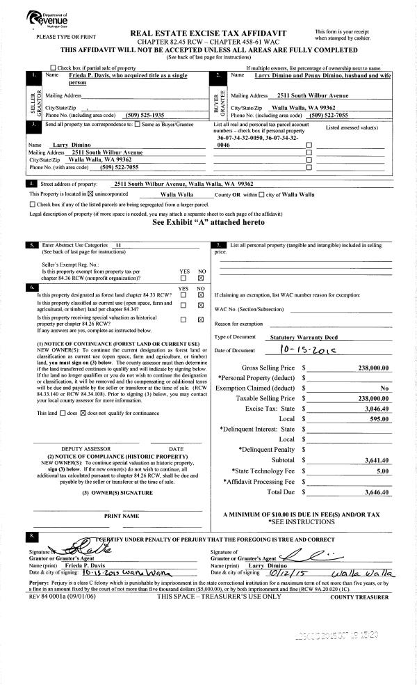
Property
Account |
| Property ID: | 11642 | Abbreviated Legal Description: | THE VILLAGE LOT 18 PLUS ELY 2' OF LOT 19 |
| Parcel Number: | 360731540018 | Agent Code: | |
| Type: | Real | | |
| Tax Area: | 1 - OL-140-F | Land Use Code | 11 |
| Open Space: | N | DFL | N |
| Historic Property: | N | Remodel Property: | N |
| Multi-Family Redevelopment: | N | | |
| Township: | 7 | Section: | 31 |
| Range: | 36 |
Location |
| Address: | 770 VILLAGE WAY WA 99362 | Mapsco: | |
| Neighborhood: | VG SFR | Map ID: | |
| Neighborhood CD: | 115011 |
Owner |
| Name: | HARRIS STEPHEN A & JENNIFER D HARTZELL | Owner ID: | 69276 |
| Mailing Address: | 770 VILLAGE WAY WALLA WALLA, WA 99362 | % Ownership: | 100.0000000000% |
| | | Exemptions: | |
Taxes and Assessment Details
Values
| (+) Improvement Homesite Value: | + | $0 | |
| (+) Improvement Non-Homesite Value: | + | $488,490 | |
| (+) Land Homesite Value: | + | $0 | |
| (+) Land Non-Homesite Value: | + | $100,000 | |
| (+) Curr Use (HS): | + | $0 | $0 |
| (+) Curr Use (NHS): | + | $0 | $0 |
| | | -------------------------- | |
| (=) Market Value: | = | $588,490 | |
| (–) Productivity Loss: | – | $0 | |
| | | -------------------------- | |
| (=) Subtotal: | = | $588,490 | |
| (+) Senior Appraised Value: | + | $0 | |
| (+) Non-Senior Appraised Value: | + | $588,490 | |
| | | -------------------------- | |
| (=) Total Appraised Value: | = | $588,490 | |
| (–) Senior Exemption Loss: | – | $0 | |
| (–) Exemption Loss: | – | $0 | |
| | | -------------------------- | |
| (=) Taxable Value: | = | $588,490 | |
Taxing Jurisdiction
| Owner: | HARRIS STEPHEN A & JENNIFER D HARTZELL | | |
| % Ownership: | 100.0000000000% | | |
| Total Value: | $588,490 | | |
| Tax Area: | 1 - OL-140-F |
| CERFD | CURRENT EXPENSE REFUND 010 | 0.0000000000 | $588,490 | $588,490 | $0.00 | | |
| CURREXP | CURRENT EXPENSE 010 | 1.0175366760 | $588,490 | $588,490 | $598.81 | | |
| HUMNSERV | HUMAN SERVICES 119 | 0.0250000000 | $588,490 | $588,490 | $14.71 | | |
| SLDREL | SOLDIERS RELIEF 121 | 0.0155990005 | $588,490 | $588,490 | $9.18 | | |
| EMERGSER | EMS 147 | 0.3792580840 | $588,490 | $588,490 | $223.19 | | |
| EMSRFD | EMS REFUND 147 | 0.0000000000 | $588,490 | $588,490 | $0.00 | | |
| PORTRFD | PORT REFUND 640 | 0.0000000000 | $588,490 | $588,490 | $0.00 | | |
| PORTWWGEN | PORT OF WW 640 | 0.2460186015 | $588,490 | $588,490 | $144.78 | | |
| SD140BOND | SD #140 BOND 764 | 0.8342371393 | $588,490 | $588,490 | $490.94 | | |
| SD140GEN | SD #140 GENERAL 760 | 2.0646500647 | $588,490 | $588,490 | $1,215.03 | | |
| ST2 | STATE SCHOOL PART 2 600 | 0.8131451643 | $588,490 | $588,490 | $478.53 | | |
| STATESCHL | STATE SCHOOL 600 | 1.5158548041 | $588,490 | $588,490 | $892.07 | | |
| STREFUND | STATE REFUND LEVY 603 | 0.0000000000 | $588,490 | $588,490 | $0.00 | | |
| CWWBOND | C OF WW BOND 643 | 0.2760494372 | $588,490 | $588,490 | $162.45 | | |
| CWWGEN | CITY OF WW 631 | 1.6100204973 | $588,490 | $588,490 | $947.48 | | |
| CWWRFD | CITY OF WALLA WALLA REFUND 631 | 0.0000000000 | $588,490 | $588,490 | $0.00 | | |
| | Total Tax Rate: | 8.7973694689 | | | | | |
| | | | | Taxes w/Current Exemptions: | $5,177.17 | | |
| | | | | Taxes w/o Exemptions: | $5,177.17 | | |
Improvement / Building
| Improvement #1: | RESIDENTIAL | State Code: | 11 | 1861.0 sqft | Value: | $488,490 |
| Exterior Wall: | SIDING | Heating/Cooling: | HEAT PUMP | | Number of Bathrooms: | 3 | Number of Bedrooms: | 4 | | Plumbing: | 15 | Roof Covering: | COMP SHINGLE |
|
| | Type | Description | Class CD | Sub Class CD | Year Built | Area |
| | MA | Main Area | 4 | 40 | 1985 | 1861.0 |
| | BIG | Built In Garage | 1 | 40 | 1985 | 690.0 |
| | SI1 | SITE IMPROVEMENT | 1 | 40 | 1985 | 3.0 |
| | BASE | BASEMENT | 1 | 40 | 1985 | 1501.0 |
| | BPF | BASEMENT -PARTITIONED FINISH | 1 | 40 | 1985 | 780.0 |
| | WOD | Wood Deck | 1 | 40 | 1985 | 736.0 |
| | OPS | OPEN PORCH W/STEPS | 1 | 40 | 1985 | 21.0 |
| | S1F | Single One Story Fireplace | 1 | 40 | 1985 | 1.0 |
Sketch
Property Image
Land
| 1 | RES 1 | Converted: Residential | 0.2081 | 9063.00 | 0.00 | 0.00 | 1.00 | $100,000 | $0 |
Roll Value History
| 2025 | N/A | N/A | N/A | N/A | N/A |
| 2024 | $488,490 | $100,000 | $0 | $588,490 | $588,490 |
| 2023 | $488,490 | $100,000 | $0 | $588,490 | $588,490 |
| 2022 | $488,490 | $100,000 | $0 | $588,490 | $588,490 |
| 2021 | $444,080 | $100,000 | $0 | $544,080 | $544,080 |
| 2020 | $317,200 | $100,000 | $0 | $417,200 | $417,200 |
| 2019 | $327,200 | $90,000 | $0 | $417,200 | $417,200 |
| 2018 | $317,670 | $90,000 | $0 | $407,670 | $407,670 |
| 2017 | $302,540 | $90,000 | $0 | $392,540 | $392,540 |
| 2016 | $275,040 | $90,000 | $0 | $365,040 | $365,040 |
| 2015 | $229,200 | $90,000 | $0 | $319,200 | $319,200 |
| 2014 | $229,200 | $90,000 | $0 | $319,200 | $319,200 |
| 2013 | $229,200 | $90,000 | $0 | $319,200 | $319,200 |
| 2012 | $229,200 | $90,000 | $0 | $0 | $0 |
| 2011 | $229,200 | $90,000 | $0 | $0 | $0 |
| 2010 | $229,200 | $90,000 | $0 | $0 | $0 |
| 2009 | $246,000 | $90,000 | $0 | $0 | $0 |
| 2008 | $228,800 | $45,000 | $0 | $0 | $0 |
| 2007 | $228,800 | $45,000 | $0 | $0 | $0 |
| 2006 | $228,800 | $45,000 | $0 | $0 | $0 |
Deed and Sales History
| 1 | 04/22/2021 | QCD | QUIT CLAIM DEED | HARRIS STEVE A | HARRIS STEPHEN A & JENNIFER D HARTZELL | | | $0.00 | 141430 | 2021-04933 |
| 2 | 06/29/2015 | QCD | QUIT CLAIM DEED | HARTWELL JENNIFER | HARRIS STEVE A | | | | 128276 | 2015-05516 |
| 3 | 06/29/2015 | SWD | STATUTORY WARRANTY DEED | ABAJIAN D SCOTT & MARY A | HARRIS STEVE A | | | $415,000.00 | 128275 | 2015-05515 |
| 4 | 07/24/1986 | WARRANTY D | WARRANTY DEED | | | | | $105,000.00 | 0 | 1588-605520 |
Payout Agreement
| No payout information available.. |