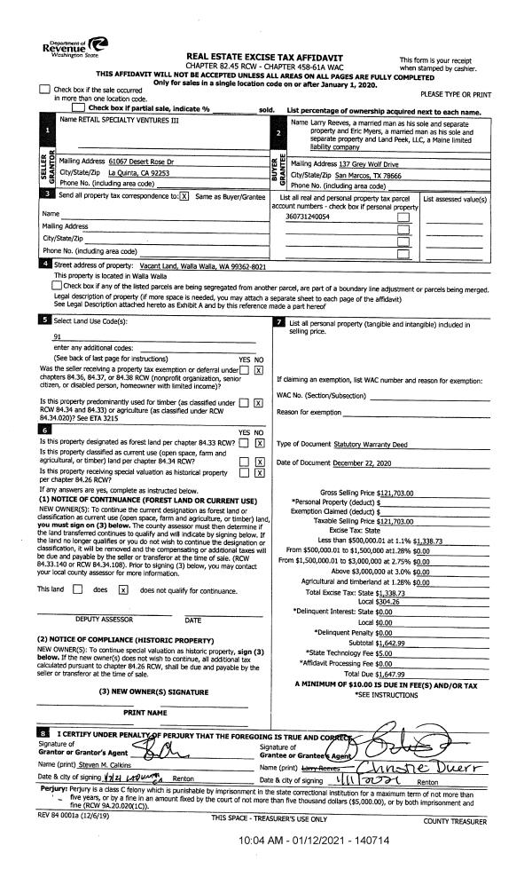
Property
Account |
| Property ID: | 11496 | Abbreviated Legal Description: | TOWNSENDS LOT 3 BLK 3 LOT 4 BLK 3 |
| Parcel Number: | 360730550303 | Agent Code: | |
| Type: | Real | | |
| Tax Area: | 1 - OL-140-F | Land Use Code | 11 |
| Open Space: | N | DFL | N |
| Historic Property: | N | Remodel Property: | N |
| Multi-Family Redevelopment: | N | | |
| Township: | 7 | Section: | 30 |
| Range: | 36 |
Location |
| Address: | 601 S 12TH AVE WA 99362 | Mapsco: | |
| Neighborhood: | A-SFR | Map ID: | |
| Neighborhood CD: | 313011 |
Owner |
| Name: | RAY BRENDA L | Owner ID: | 61299 |
| Mailing Address: | LINDA J RAY 601 S 12TH AVE WALLA WALLA, WA 99362 | % Ownership: | 100.0000000000% |
| | | Exemptions: | |
Taxes and Assessment Details
Values
| (+) Improvement Homesite Value: | + | $0 | |
| (+) Improvement Non-Homesite Value: | + | $145,090 | |
| (+) Land Homesite Value: | + | $0 | |
| (+) Land Non-Homesite Value: | + | $68,430 | |
| (+) Curr Use (HS): | + | $0 | $0 |
| (+) Curr Use (NHS): | + | $0 | $0 |
| | | -------------------------- | |
| (=) Market Value: | = | $213,520 | |
| (–) Productivity Loss: | – | $0 | |
| | | -------------------------- | |
| (=) Subtotal: | = | $213,520 | |
| (+) Senior Appraised Value: | + | $0 | |
| (+) Non-Senior Appraised Value: | + | $213,520 | |
| | | -------------------------- | |
| (=) Total Appraised Value: | = | $213,520 | |
| (–) Senior Exemption Loss: | – | $0 | |
| (–) Exemption Loss: | – | $0 | |
| | | -------------------------- | |
| (=) Taxable Value: | = | $213,520 | |
Taxing Jurisdiction
| Owner: | RAY BRENDA L | | |
| % Ownership: | 100.0000000000% | | |
| Total Value: | $213,520 | | |
| Tax Area: | 1 - OL-140-F |
| CERFD | CURRENT EXPENSE REFUND 010 | 0.0000000000 | $213,520 | $213,520 | $0.00 | | |
| CURREXP | CURRENT EXPENSE 010 | 1.0175366760 | $213,520 | $213,520 | $217.26 | | |
| HUMNSERV | HUMAN SERVICES 119 | 0.0250000000 | $213,520 | $213,520 | $5.34 | | |
| SLDREL | SOLDIERS RELIEF 121 | 0.0155990005 | $213,520 | $213,520 | $3.33 | | |
| EMERGSER | EMS 147 | 0.3792580840 | $213,520 | $213,520 | $80.98 | | |
| EMSRFD | EMS REFUND 147 | 0.0000000000 | $213,520 | $213,520 | $0.00 | | |
| PORTRFD | PORT REFUND 640 | 0.0000000000 | $213,520 | $213,520 | $0.00 | | |
| PORTWWGEN | PORT OF WW 640 | 0.2460186015 | $213,520 | $213,520 | $52.53 | | |
| SD140BOND | SD #140 BOND 764 | 0.8342371393 | $213,520 | $213,520 | $178.13 | | |
| SD140GEN | SD #140 GENERAL 760 | 2.0646500647 | $213,520 | $213,520 | $440.84 | | |
| ST2 | STATE SCHOOL PART 2 600 | 0.8131451643 | $213,520 | $213,520 | $173.62 | | |
| STATESCHL | STATE SCHOOL 600 | 1.5158548041 | $213,520 | $213,520 | $323.67 | | |
| STREFUND | STATE REFUND LEVY 603 | 0.0000000000 | $213,520 | $213,520 | $0.00 | | |
| CWWBOND | C OF WW BOND 643 | 0.2760494372 | $213,520 | $213,520 | $58.94 | | |
| CWWGEN | CITY OF WW 631 | 1.6100204973 | $213,520 | $213,520 | $343.77 | | |
| CWWRFD | CITY OF WALLA WALLA REFUND 631 | 0.0000000000 | $213,520 | $213,520 | $0.00 | | |
| | Total Tax Rate: | 8.7973694689 | | | | | |
| | | | | Taxes w/Current Exemptions: | $1,878.41 | | |
| | | | | Taxes w/o Exemptions: | $1,878.41 | | |
Improvement / Building
| Improvement #1: | RESIDENTIAL | State Code: | 11 | 960.0 sqft | Value: | $145,090 |
| Exterior Wall: | SIDING | Heating/Cooling: | FLOOR FURNACE | | Number of Bathrooms: | 1 | Number of Bedrooms: | 2 | | Plumbing: | 7 | Roof Covering: | COMP SHINGLE |
|
| | Type | Description | Class CD | Sub Class CD | Year Built | Area |
| | MA | Main Area | 1 | 25 | 1910 | 960.0 |
| | SI1 | SITE IMPROVEMENT | 1 | 25 | 1910 | 1.0 |
| | BASE | BASEMENT | 1 | 25 | 1910 | 320.0 |
| | TOOL | TOOL SHED | 1 | 25 | 2018 | 192.0 |
| | WOD | Wood Deck | 1 | 25 | 1910 | 16.0 |
| | WDR | WOOD DECK W/ROOF | 1 | 25 | 1910 | 110.0 |
Sketch
Property Image
Land
| 1 | RES 1 | Converted: Residential | 0.2514 | 10949.00 | 0.00 | 0.00 | 1.00 | $68,430 | $0 |
Roll Value History
| 2025 | N/A | N/A | N/A | N/A | N/A |
| 2024 | $145,090 | $68,430 | $0 | $213,520 | $213,520 |
| 2023 | $145,090 | $68,430 | $0 | $213,520 | $213,520 |
| 2022 | $111,610 | $68,430 | $0 | $180,040 | $180,040 |
| 2021 | $99,900 | $27,800 | $0 | $127,700 | $127,700 |
| 2020 | $99,900 | $27,800 | $0 | $127,700 | $127,700 |
| 2019 | $99,900 | $27,800 | $0 | $127,700 | $127,700 |
| 2018 | $66,600 | $27,800 | $0 | $94,400 | $94,400 |
| 2017 | $66,600 | $27,800 | $0 | $94,400 | $94,400 |
| 2016 | $55,500 | $27,800 | $0 | $83,300 | $83,300 |
| 2015 | $58,700 | $27,800 | $0 | $86,500 | $86,500 |
| 2014 | $55,900 | $27,800 | $0 | $83,700 | $83,700 |
| 2013 | $55,900 | $27,800 | $0 | $83,700 | $83,700 |
| 2012 | $65,200 | $27,800 | $0 | $0 | $0 |
| 2011 | $65,200 | $27,800 | $0 | $0 | $0 |
| 2010 | $71,000 | $27,800 | $0 | $0 | $0 |
| 2009 | $101,100 | $14,500 | $0 | $0 | $0 |
| 2008 | $49,700 | $14,500 | $0 | $0 | $0 |
| 2007 | $49,700 | $14,500 | $0 | $0 | $0 |
| 2006 | $49,700 | $14,500 | $0 | $0 | $0 |
Deed and Sales History
| 1 | 07/10/2017 | SWD | STATUTORY WARRANTY DEED | CHRISTENSEN STANLEY D | RAY BRENDA L | | | $129,900.00 | 132754 | 2017-05281 |
| 2 | 12/21/2015 | QCD | QUIT CLAIM DEED | CHRISTENSEN DEBRA L | CHRISTENSEN STANLEY D | | | | 129384 | 2015-10890 |
| 3 | 12/21/2015 | SWP | Special Warranty Deed | BANK OF NEW YORK MELLON | CHRISTENSEN STANLEY D | | | $51,400.00 | 129382 | 2015-10889 |
| 4 | 04/29/2015 | TRUSTEES D | TRUSTEE'S DEED | GALES CHARITY M | BANK OF NEW YORK MELLON | | | $93,500.00 | 127870 | 2015-03580 |
| 5 | 12/15/2006 | WARRANTY D | WARRANTY DEED | NINTH STREET PROPERTIES, LLC | GALES, CHARITY M | | | $113,000.00 | 111915 | 2006-14976 |
| 6 | 12/15/2006 | QCD | QUIT CLAIM DEED | GALES, GARY | GALES, CHARITY M | | | | 111914 | 2006-14975 |
| 7 | 08/02/2005 | WARRANTY D | WARRANTY DEED | KENT, FRANKLIN L | NINTH STREET PROPERTIES, LLC | | | $92,400.00 | 108130 | 2005-09505 |
| 8 | 04/07/1982 | QCD | QUIT CLAIM DEED | | | | | $0.00 | 0 | 1328-202551 |
Payout Agreement
| No payout information available.. |