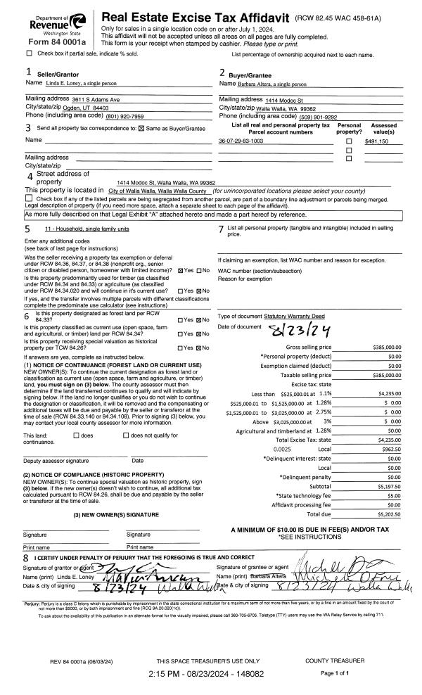
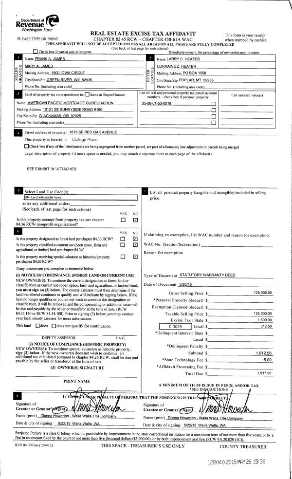
Property
Account |
| Property ID: | 11477 | Abbreviated Legal Description: | RITZ AND STRIP LOT 7 BLK 21; LOTS 8 THRU 11 BLK 21 AND STRIP LOT 12 BLK 21 |
| Parcel Number: | 360730542107 | Agent Code: | |
| Type: | Real | | |
| Tax Area: | 1 - OL-140-F | Land Use Code | 21 |
| Open Space: | N | DFL | N |
| Historic Property: | N | Remodel Property: | N |
| Multi-Family Redevelopment: | N | | |
| Township: | 7 | Section: | 30 |
| Range: | 36 |
Location |
| Address: | 928 W MAIN ST WA 99362 | Mapsco: | |
| Neighborhood: | | Map ID: | |
| Neighborhood CD: | 3343 |
Owner |
| Name: | WALLA WALLA FARMERS CO-OP | Owner ID: | 3878 |
| Mailing Address: | C/O CHS INC - MS664 PO BOX 64089 ST PAUL, MN 55164 | % Ownership: | 100.0000000000% |
| | | Exemptions: | |
Taxes and Assessment Details
Values
| (+) Improvement Homesite Value: | + | $0 | |
| (+) Improvement Non-Homesite Value: | + | $625,000 | |
| (+) Land Homesite Value: | + | $0 | |
| (+) Land Non-Homesite Value: | + | $230,800 | |
| (+) Curr Use (HS): | + | $0 | $0 |
| (+) Curr Use (NHS): | + | $0 | $0 |
| | | -------------------------- | |
| (=) Market Value: | = | $855,800 | |
| (–) Productivity Loss: | – | $0 | |
| | | -------------------------- | |
| (=) Subtotal: | = | $855,800 | |
| (+) Senior Appraised Value: | + | $0 | |
| (+) Non-Senior Appraised Value: | + | $855,800 | |
| | | -------------------------- | |
| (=) Total Appraised Value: | = | $855,800 | |
| (–) Senior Exemption Loss: | – | $0 | |
| (–) Exemption Loss: | – | $0 | |
| | | -------------------------- | |
| (=) Taxable Value: | = | $855,800 | |
Taxing Jurisdiction
| Owner: | WALLA WALLA FARMERS CO-OP | | |
| % Ownership: | 100.0000000000% | | |
| Total Value: | $855,800 | | |
| Tax Area: | 1 - OL-140-F |
| CERFD | CURRENT EXPENSE REFUND 010 | 0.0000000000 | $855,800 | $855,800 | $0.00 | | |
| CURREXP | CURRENT EXPENSE 010 | 1.0175366760 | $855,800 | $855,800 | $870.81 | | |
| HUMNSERV | HUMAN SERVICES 119 | 0.0250000000 | $855,800 | $855,800 | $21.40 | | |
| SLDREL | SOLDIERS RELIEF 121 | 0.0155990005 | $855,800 | $855,800 | $13.35 | | |
| EMERGSER | EMS 147 | 0.3792580840 | $855,800 | $855,800 | $324.57 | | |
| EMSRFD | EMS REFUND 147 | 0.0000000000 | $855,800 | $855,800 | $0.00 | | |
| PORTRFD | PORT REFUND 640 | 0.0000000000 | $855,800 | $855,800 | $0.00 | | |
| PORTWWGEN | PORT OF WW 640 | 0.2460186015 | $855,800 | $855,800 | $210.54 | | |
| SD140BOND | SD #140 BOND 764 | 0.8342371393 | $855,800 | $855,800 | $713.94 | | |
| SD140GEN | SD #140 GENERAL 760 | 2.0646500647 | $855,800 | $855,800 | $1,766.93 | | |
| ST2 | STATE SCHOOL PART 2 600 | 0.8131451643 | $855,800 | $855,800 | $695.89 | | |
| STATESCHL | STATE SCHOOL 600 | 1.5158548041 | $855,800 | $855,800 | $1,297.27 | | |
| STREFUND | STATE REFUND LEVY 603 | 0.0000000000 | $855,800 | $855,800 | $0.00 | | |
| CWWBOND | C OF WW BOND 643 | 0.2760494372 | $855,800 | $855,800 | $236.24 | | |
| CWWGEN | CITY OF WW 631 | 1.6100204973 | $855,800 | $855,800 | $1,377.86 | | |
| CWWRFD | CITY OF WALLA WALLA REFUND 631 | 0.0000000000 | $855,800 | $855,800 | $0.00 | | |
| | Total Tax Rate: | 8.7973694689 | | | | | |
| | | | | Taxes w/Current Exemptions: | $7,528.80 | | |
| | | | | Taxes w/o Exemptions: | $7,528.80 | | |
Improvement / Building
| Improvement #1: | COMMERCIAL | State Code: | 21 | 30500.0 sqft | Value: | $625,000 |
Sketch
Property Image
Land
| 1 | COM 1 | Converted: Commercial | 0.8843 | 38520.00 | 0.00 | 0.00 | 1.00 | $230,800 | $0 |
Roll Value History
| 2025 | N/A | N/A | N/A | N/A | N/A |
| 2024 | $625,000 | $230,800 | $0 | $855,800 | $855,800 |
| 2023 | $625,000 | $230,800 | $0 | $855,800 | $855,800 |
| 2022 | $625,000 | $230,800 | $0 | $855,800 | $855,800 |
| 2021 | $193,000 | $185,900 | $0 | $378,900 | $378,900 |
| 2020 | $193,000 | $185,900 | $0 | $378,900 | $378,900 |
| 2019 | $193,000 | $185,900 | $0 | $378,900 | $378,900 |
| 2018 | $193,000 | $185,900 | $0 | $378,900 | $378,900 |
| 2017 | $193,000 | $185,900 | $0 | $378,900 | $378,900 |
| 2016 | $193,000 | $185,900 | $0 | $378,900 | $378,900 |
| 2015 | $193,000 | $96,000 | $0 | $289,000 | $289,000 |
| 2014 | $168,500 | $96,000 | $0 | $264,500 | $264,500 |
| 2013 | $168,500 | $96,000 | $0 | $264,500 | $264,500 |
| 2012 | $168,500 | $96,000 | $0 | $0 | $0 |
| 2011 | $168,500 | $96,000 | $0 | $0 | $0 |
| 2010 | $133,100 | $96,000 | $0 | $0 | $0 |
| 2009 | $133,100 | $96,000 | $0 | $0 | $0 |
| 2008 | $133,100 | $96,000 | $0 | $0 | $0 |
| 2007 | $133,100 | $96,000 | $0 | $0 | $0 |
| 2006 | $133,100 | $96,000 | $0 | $0 | $0 |
Deed and Sales History
| 1 | 10/25/2024 | SWD | STATUTORY WARRANTY DEED | WALLA WALLA FARMERS CO-OP | THE BIG UGLY LLC | | | $900,000.00 | 148427 | 2024-06228 |
| 2 | 12/21/2022 | ORDINANCE | ORDINANCE | | | | | | 0 | 2022-09833 |
| 3 | 06/09/1998 | WARRANTY D | WARRANTY DEED | | | | | $204,000.00 | 90575 | 2689-806362 |
Payout Agreement
| No payout information available.. |