Property
Account |
| Property ID: | 11397 | Abbreviated Legal Description: | REESES LOTS 8, 9, AND 10 & TRACT BLK 14 |
| Parcel Number: | 360730531412 | Agent Code: | |
| Type: | Real | | |
| Tax Area: | 1 - OL-140-F | Land Use Code | 58 |
| Open Space: | N | DFL | N |
| Historic Property: | N | Remodel Property: | N |
| Multi-Family Redevelopment: | N | | |
| Township: | 7 | Section: | 30 |
| Range: | 36 |
Location |
| Address: | 212 S 9TH AVE WA 99362 | Mapsco: | |
| Neighborhood: | | Map ID: | |
| Neighborhood CD: | 3343 |
Owner |
| Name: | LEPIANE IRREVOCABLE FAMILY TRUST | Owner ID: | 57527 |
| Mailing Address: | C/O JACK IN THE BOX DEPT 401 PO BOX 4900 SCOTTSDALE, AZ 85261 | % Ownership: | 100.0000000000% |
| | | Exemptions: | |
Taxes and Assessment Details
Values
| (+) Improvement Homesite Value: | + | $0 | |
| (+) Improvement Non-Homesite Value: | + | $0 | |
| (+) Land Homesite Value: | + | $0 | |
| (+) Land Non-Homesite Value: | + | $234,400 | |
| (+) Curr Use (HS): | + | $0 | $0 |
| (+) Curr Use (NHS): | + | $0 | $0 |
| | | -------------------------- | |
| (=) Market Value: | = | $234,400 | |
| (–) Productivity Loss: | – | $0 | |
| | | -------------------------- | |
| (=) Subtotal: | = | $234,400 | |
| (+) Senior Appraised Value: | + | $0 | |
| (+) Non-Senior Appraised Value: | + | $234,400 | |
| | | -------------------------- | |
| (=) Total Appraised Value: | = | $234,400 | |
| (–) Senior Exemption Loss: | – | $0 | |
| (–) Exemption Loss: | – | $0 | |
| | | -------------------------- | |
| (=) Taxable Value: | = | $234,400 | |
Taxing Jurisdiction
| Owner: | LEPIANE IRREVOCABLE FAMILY TRUST | | |
| % Ownership: | 100.0000000000% | | |
| Total Value: | $234,400 | | |
| Tax Area: | 1 - OL-140-F |
| CERFD | CURRENT EXPENSE REFUND 010 | 0.0000000000 | $234,400 | $234,400 | $0.00 | | |
| CURREXP | CURRENT EXPENSE 010 | 1.0175366760 | $234,400 | $234,400 | $238.51 | | |
| HUMNSERV | HUMAN SERVICES 119 | 0.0250000000 | $234,400 | $234,400 | $5.86 | | |
| SLDREL | SOLDIERS RELIEF 121 | 0.0155990005 | $234,400 | $234,400 | $3.66 | | |
| EMERGSER | EMS 147 | 0.3792580840 | $234,400 | $234,400 | $88.90 | | |
| EMSRFD | EMS REFUND 147 | 0.0000000000 | $234,400 | $234,400 | $0.00 | | |
| PORTRFD | PORT REFUND 640 | 0.0000000000 | $234,400 | $234,400 | $0.00 | | |
| PORTWWGEN | PORT OF WW 640 | 0.2460186015 | $234,400 | $234,400 | $57.67 | | |
| SD140BOND | SD #140 BOND 764 | 0.8342371393 | $234,400 | $234,400 | $195.55 | | |
| SD140GEN | SD #140 GENERAL 760 | 2.0646500647 | $234,400 | $234,400 | $483.95 | | |
| ST2 | STATE SCHOOL PART 2 600 | 0.8131451643 | $234,400 | $234,400 | $190.60 | | |
| STATESCHL | STATE SCHOOL 600 | 1.5158548041 | $234,400 | $234,400 | $355.32 | | |
| STREFUND | STATE REFUND LEVY 603 | 0.0000000000 | $234,400 | $234,400 | $0.00 | | |
| CWWBOND | C OF WW BOND 643 | 0.2760494372 | $234,400 | $234,400 | $64.71 | | |
| CWWGEN | CITY OF WW 631 | 1.6100204973 | $234,400 | $234,400 | $377.39 | | |
| CWWRFD | CITY OF WALLA WALLA REFUND 631 | 0.0000000000 | $234,400 | $234,400 | $0.00 | | |
| | Total Tax Rate: | 8.7973694689 | | | | | |
| | | | | Taxes w/Current Exemptions: | $2,062.12 | | |
| | | | | Taxes w/o Exemptions: | $2,062.12 | | |
Improvement / Building
Sketch
| No sketches available for this property. |
Property Image
Land
| 1 | COM 1 | Converted: Commercial | 0.5382 | 23443.99 | 0.00 | 0.00 | 1.00 | $234,400 | $0 |
Roll Value History
| 2025 | N/A | N/A | N/A | N/A | N/A |
| 2024 | $0 | $234,400 | $0 | $234,400 | $234,400 |
| 2023 | $0 | $234,400 | $0 | $234,400 | $234,400 |
| 2022 | $0 | $234,400 | $0 | $234,400 | $234,400 |
| 2021 | $0 | $197,100 | $0 | $197,100 | $197,100 |
| 2020 | $0 | $197,100 | $0 | $197,100 | $197,100 |
| 2019 | $0 | $197,100 | $0 | $197,100 | $197,100 |
| 2018 | $0 | $197,100 | $0 | $197,100 | $197,100 |
| 2017 | $0 | $197,100 | $0 | $197,100 | $197,100 |
| 2016 | $0 | $197,100 | $0 | $197,100 | $197,100 |
| 2015 | $0 | $227,600 | $0 | $227,600 | $227,600 |
| 2014 | $0 | $280,800 | $0 | $280,800 | $280,800 |
| 2013 | $0 | $280,800 | $0 | $280,800 | $280,800 |
| 2012 | $0 | $280,800 | $0 | $0 | $0 |
| 2011 | $0 | $280,800 | $0 | $0 | $0 |
| 2010 | $0 | $280,800 | $0 | $0 | $0 |
| 2009 | $0 | $210,600 | $0 | $0 | $0 |
| 2008 | $0 | $210,600 | $0 | $0 | $0 |
| 2007 | $0 | $210,600 | $0 | $0 | $0 |
| 2006 | $0 | $210,600 | $0 | $0 | $0 |
Deed and Sales History
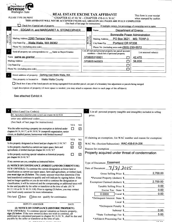
| 1 | 09/01/2015 | SWP | Special Warranty Deed | LEPIANE JOHN A | LEPIANE IRREVOCABLE FAMILY TRUST | 5 PARCELS | | $0.00 | 128811 | 2015-08052 |
Payout Agreement
| No payout information available.. |