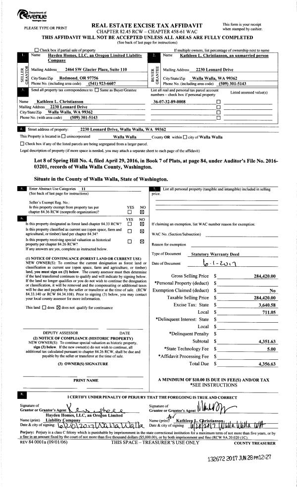
Property
Account |
| Property ID: | 11385 | Abbreviated Legal Description: | REESES LOT 5 BLK 9 |
| Parcel Number: | 360730530905 | Agent Code: | |
| Type: | Real | | |
| Tax Area: | 1 - OL-140-F | Land Use Code | 11 |
| Open Space: | N | DFL | N |
| Historic Property: | N | Remodel Property: | N |
| Multi-Family Redevelopment: | N | | |
| Township: | 7 | Section: | 30 |
| Range: | 36 |
Location |
| Address: | 625 W ALDER ST WA 99362 | Mapsco: | |
| Neighborhood: | WW Downtown Core Area #2 | Map ID: | |
| Neighborhood CD: | 5342 |
Owner |
| Name: | SULLIVAN GRANT W | Owner ID: | 39344 |
| Mailing Address: | ALMA D ALFARO 78 CRANBROOK LN WALLA WALLA, WA 99362 | % Ownership: | 100.0000000000% |
| | | Exemptions: | |
Taxes and Assessment Details
Values
| (+) Improvement Homesite Value: | + | $0 | |
| (+) Improvement Non-Homesite Value: | + | $131,900 | |
| (+) Land Homesite Value: | + | $0 | |
| (+) Land Non-Homesite Value: | + | $79,200 | |
| (+) Curr Use (HS): | + | $0 | $0 |
| (+) Curr Use (NHS): | + | $0 | $0 |
| | | -------------------------- | |
| (=) Market Value: | = | $211,100 | |
| (–) Productivity Loss: | – | $0 | |
| | | -------------------------- | |
| (=) Subtotal: | = | $211,100 | |
| (+) Senior Appraised Value: | + | $0 | |
| (+) Non-Senior Appraised Value: | + | $211,100 | |
| | | -------------------------- | |
| (=) Total Appraised Value: | = | $211,100 | |
| (–) Senior Exemption Loss: | – | $0 | |
| (–) Exemption Loss: | – | $0 | |
| | | -------------------------- | |
| (=) Taxable Value: | = | $211,100 | |
Taxing Jurisdiction
| Owner: | SULLIVAN GRANT W | | |
| % Ownership: | 100.0000000000% | | |
| Total Value: | $211,100 | | |
| Tax Area: | 1 - OL-140-F |
| CERFD | CURRENT EXPENSE REFUND 010 | 0.0000000000 | $211,100 | $211,100 | $0.00 | | |
| CURREXP | CURRENT EXPENSE 010 | 1.0175366760 | $211,100 | $211,100 | $214.80 | | |
| HUMNSERV | HUMAN SERVICES 119 | 0.0250000000 | $211,100 | $211,100 | $5.28 | | |
| SLDREL | SOLDIERS RELIEF 121 | 0.0155990005 | $211,100 | $211,100 | $3.29 | | |
| EMERGSER | EMS 147 | 0.3792580840 | $211,100 | $211,100 | $80.06 | | |
| EMSRFD | EMS REFUND 147 | 0.0000000000 | $211,100 | $211,100 | $0.00 | | |
| PORTRFD | PORT REFUND 640 | 0.0000000000 | $211,100 | $211,100 | $0.00 | | |
| PORTWWGEN | PORT OF WW 640 | 0.2460186015 | $211,100 | $211,100 | $51.93 | | |
| SD140BOND | SD #140 BOND 764 | 0.8342371393 | $211,100 | $211,100 | $176.11 | | |
| SD140GEN | SD #140 GENERAL 760 | 2.0646500647 | $211,100 | $211,100 | $435.85 | | |
| ST2 | STATE SCHOOL PART 2 600 | 0.8131451643 | $211,100 | $211,100 | $171.65 | | |
| STATESCHL | STATE SCHOOL 600 | 1.5158548041 | $211,100 | $211,100 | $320.00 | | |
| STREFUND | STATE REFUND LEVY 603 | 0.0000000000 | $211,100 | $211,100 | $0.00 | | |
| CWWBOND | C OF WW BOND 643 | 0.2760494372 | $211,100 | $211,100 | $58.27 | | |
| CWWGEN | CITY OF WW 631 | 1.6100204973 | $211,100 | $211,100 | $339.88 | | |
| CWWRFD | CITY OF WALLA WALLA REFUND 631 | 0.0000000000 | $211,100 | $211,100 | $0.00 | | |
| | Total Tax Rate: | 8.7973694689 | | | | | |
| | | | | Taxes w/Current Exemptions: | $1,857.12 | | |
| | | | | Taxes w/o Exemptions: | $1,857.12 | | |
Improvement / Building
| Improvement #1: | COMMERCIAL | State Code: | 11 | 2528.0 sqft | Value: | $131,900 |
| | Type | Description | Class CD | Sub Class CD | Year Built | Area |
| | MA | Main Area | D | 35 | 1900 | 2528.0 |
| | WDR | WOOD DECK W/ROOF | D | 35 | 1900 | 336.0 |
| | SWP | Solid Wall Porch | D | 35 | 1900 | 80.0 |
| | BASE | BASEMENT | D | 35 | 2000 | 1428.0 |
| | DTG | Detached Garage | D | 35 | 1900 | 360.0 |
| | WOD | Wood Deck | D | 35 | 1900 | 168.0 |
| | OUT | OUTSIDE BASEMENT ENTRY | D | 35 | 1900 | 1.0 |
Sketch
Property Image
Land
| 1 | COM 1 | Converted: Commercial | 0.1653 | 7200.00 | 0.00 | 0.00 | 1.00 | $79,200 | $0 |
Roll Value History
| 2025 | N/A | N/A | N/A | N/A | N/A |
| 2024 | $135,600 | $79,200 | $0 | $214,800 | $214,800 |
| 2023 | $131,900 | $79,200 | $0 | $211,100 | $211,100 |
| 2022 | $131,900 | $79,200 | $0 | $211,100 | $211,100 |
| 2021 | $131,900 | $79,200 | $0 | $211,100 | $211,100 |
| 2020 | $131,900 | $79,200 | $0 | $211,100 | $211,100 |
| 2019 | $131,900 | $79,200 | $0 | $211,100 | $211,100 |
| 2018 | $131,900 | $79,200 | $0 | $211,100 | $211,100 |
| 2017 | $91,200 | $79,200 | $0 | $170,400 | $170,400 |
| 2016 | $91,200 | $79,200 | $0 | $170,400 | $170,400 |
| 2015 | $91,200 | $79,200 | $0 | $170,400 | $170,400 |
| 2014 | $91,200 | $79,200 | $0 | $170,400 | $170,400 |
| 2013 | $91,200 | $79,200 | $0 | $170,400 | $170,400 |
| 2012 | $96,000 | $86,400 | $0 | $0 | $0 |
| 2011 | $96,000 | $86,400 | $0 | $0 | $0 |
| 2010 | $96,000 | $86,400 | $0 | $0 | $0 |
| 2009 | $158,400 | $21,600 | $0 | $0 | $0 |
| 2008 | $96,500 | $12,600 | $0 | $0 | $0 |
| 2007 | $96,500 | $12,600 | $0 | $0 | $0 |
| 2006 | $96,500 | $12,600 | $0 | $0 | $0 |
Deed and Sales History
| 1 | 12/15/2016 | SWD | STATUTORY WARRANTY DEED | ROGERS H RANDALL & CONNIE A | SULLIVAN GRANT W | | | $210,000.00 | 131598 | 2016-10309 |
| 2 | 04/09/1998 | WARRANTY D | WARRANTY DEED | | | | | $98,000.00 | 90184 | 2659-803822 |
Payout Agreement
| No payout information available.. |