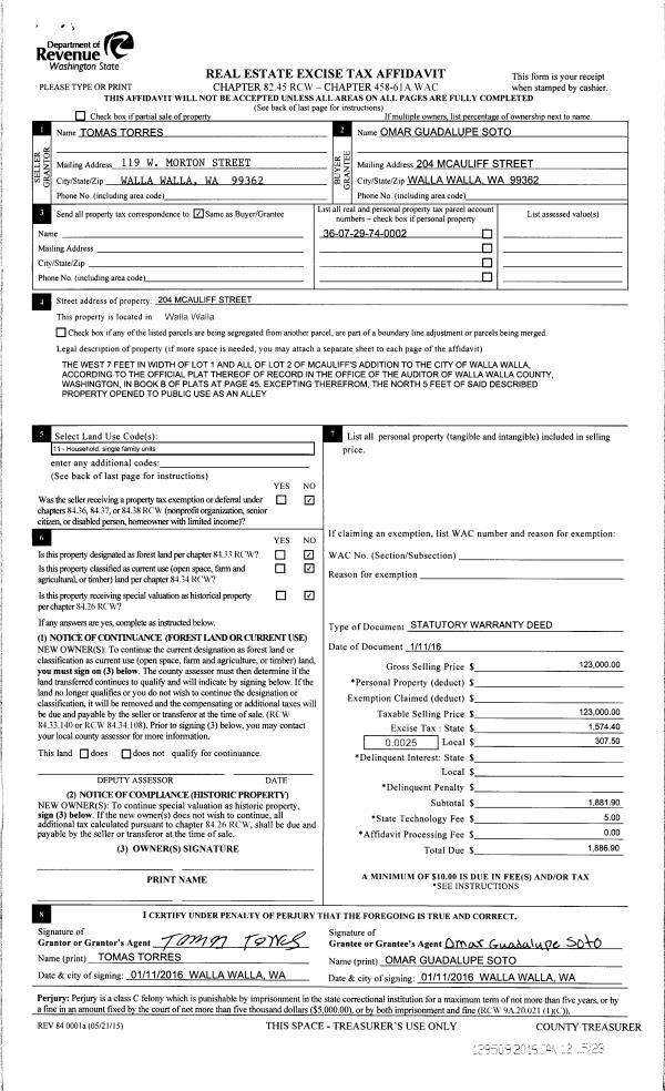
Property
Account |
| Property ID: | 11352 | Abbreviated Legal Description: | REESES LOT 1 BLK 3; E 40' OF LOT 2 BLK 3 |
| Parcel Number: | 360730530301 | Agent Code: | |
| Type: | Real | | |
| Tax Area: | 1 - OL-140-F | Land Use Code | 52 |
| Open Space: | N | DFL | N |
| Historic Property: | N | Remodel Property: | N |
| Multi-Family Redevelopment: | N | | |
| Township: | 7 | Section: | 30 |
| Range: | 36 |
Location |
| Address: | 803 W ROSE ST WA 99362 | Mapsco: | |
| Neighborhood: | | Map ID: | |
| Neighborhood CD: | 3343 |
Owner |
| Name: | NORDINE LINDA | Owner ID: | 54334 |
| Mailing Address: | 2806 COLBY AVE EVERETT, WA 98201 | % Ownership: | 100.0000000000% |
| | | Exemptions: | |
Taxes and Assessment Details
Values
| (+) Improvement Homesite Value: | + | $0 | |
| (+) Improvement Non-Homesite Value: | + | $92,300 | |
| (+) Land Homesite Value: | + | $0 | |
| (+) Land Non-Homesite Value: | + | $120,200 | |
| (+) Curr Use (HS): | + | $0 | $0 |
| (+) Curr Use (NHS): | + | $0 | $0 |
| | | -------------------------- | |
| (=) Market Value: | = | $212,500 | |
| (–) Productivity Loss: | – | $0 | |
| | | -------------------------- | |
| (=) Subtotal: | = | $212,500 | |
| (+) Senior Appraised Value: | + | $0 | |
| (+) Non-Senior Appraised Value: | + | $212,500 | |
| | | -------------------------- | |
| (=) Total Appraised Value: | = | $212,500 | |
| (–) Senior Exemption Loss: | – | $0 | |
| (–) Exemption Loss: | – | $0 | |
| | | -------------------------- | |
| (=) Taxable Value: | = | $212,500 | |
Taxing Jurisdiction
| Owner: | NORDINE LINDA | | |
| % Ownership: | 100.0000000000% | | |
| Total Value: | $212,500 | | |
| Tax Area: | 1 - OL-140-F |
| CERFD | CURRENT EXPENSE REFUND 010 | 0.0000000000 | $212,500 | $212,500 | $0.00 | | |
| CURREXP | CURRENT EXPENSE 010 | 1.0175366760 | $212,500 | $212,500 | $216.23 | | |
| HUMNSERV | HUMAN SERVICES 119 | 0.0250000000 | $212,500 | $212,500 | $5.31 | | |
| SLDREL | SOLDIERS RELIEF 121 | 0.0155990005 | $212,500 | $212,500 | $3.31 | | |
| EMERGSER | EMS 147 | 0.3792580840 | $212,500 | $212,500 | $80.59 | | |
| EMSRFD | EMS REFUND 147 | 0.0000000000 | $212,500 | $212,500 | $0.00 | | |
| PORTRFD | PORT REFUND 640 | 0.0000000000 | $212,500 | $212,500 | $0.00 | | |
| PORTWWGEN | PORT OF WW 640 | 0.2460186015 | $212,500 | $212,500 | $52.28 | | |
| SD140BOND | SD #140 BOND 764 | 0.8342371393 | $212,500 | $212,500 | $177.28 | | |
| SD140GEN | SD #140 GENERAL 760 | 2.0646500647 | $212,500 | $212,500 | $438.74 | | |
| ST2 | STATE SCHOOL PART 2 600 | 0.8131451643 | $212,500 | $212,500 | $172.79 | | |
| STATESCHL | STATE SCHOOL 600 | 1.5158548041 | $212,500 | $212,500 | $322.12 | | |
| STREFUND | STATE REFUND LEVY 603 | 0.0000000000 | $212,500 | $212,500 | $0.00 | | |
| CWWBOND | C OF WW BOND 643 | 0.2760494372 | $212,500 | $212,500 | $58.66 | | |
| CWWGEN | CITY OF WW 631 | 1.6100204973 | $212,500 | $212,500 | $342.13 | | |
| CWWRFD | CITY OF WALLA WALLA REFUND 631 | 0.0000000000 | $212,500 | $212,500 | $0.00 | | |
| | Total Tax Rate: | 8.7973694689 | | | | | |
| | | | | Taxes w/Current Exemptions: | $1,869.44 | | |
| | | | | Taxes w/o Exemptions: | $1,869.44 | | |
Improvement / Building
| Improvement #1: | COMMERCIAL | State Code: | 52 | 1560.0 sqft | Value: | $92,300 |
| | Type | Description | Class CD | Sub Class CD | Year Built | Area |
| | MA | Main Area | D | * | 0 | 1560.0 |
| | SI1 | SITE IMPROVEMENT | D | * | 0 | 2.0 |
| | CPC | COVERED CARPORT/PATIO | D | * | 0 | 480.0 |
Sketch
Property Image
Land
| 1 | COM 1 | Converted: Commercial | 0.2760 | 12022.56 | 0.00 | 0.00 | 1.00 | $120,200 | $0 |
Roll Value History
| 2025 | N/A | N/A | N/A | N/A | N/A |
| 2024 | $92,300 | $120,200 | $0 | $212,500 | $212,500 |
| 2023 | $92,300 | $120,200 | $0 | $212,500 | $212,500 |
| 2022 | $92,300 | $120,200 | $0 | $212,500 | $212,500 |
| 2021 | $84,300 | $108,200 | $0 | $192,500 | $192,500 |
| 2020 | $84,300 | $108,200 | $0 | $192,500 | $192,500 |
| 2019 | $84,300 | $108,200 | $0 | $192,500 | $192,500 |
| 2018 | $84,300 | $108,200 | $0 | $192,500 | $192,500 |
| 2017 | $84,300 | $108,200 | $0 | $192,500 | $192,500 |
| 2016 | $84,300 | $108,200 | $0 | $192,500 | $192,500 |
| 2015 | $77,300 | $115,200 | $0 | $192,500 | $192,500 |
| 2014 | $77,300 | $115,200 | $0 | $192,500 | $192,500 |
| 2013 | $77,300 | $115,200 | $0 | $192,500 | $192,500 |
| 2012 | $77,300 | $115,200 | $0 | $0 | $0 |
| 2011 | $77,300 | $115,200 | $0 | $0 | $0 |
| 2010 | $102,500 | $86,400 | $0 | $0 | $0 |
| 2009 | $116,900 | $72,000 | $0 | $0 | $0 |
| 2008 | $116,900 | $72,000 | $0 | $0 | $0 |
| 2007 | $116,900 | $72,000 | $0 | $0 | $0 |
| 2006 | $116,900 | $72,000 | $0 | $0 | $0 |
Deed and Sales History
| 1 | 12/17/2013 | QCD | QUIT CLAIM DEED | STEVENS WILLIAMS C | NORDINE LINDA | | | | 125123 | 2013-12033 |
| 2 | 03/01/2000 | WARRANTY D | WARRANTY DEED | | | | | $209,000.00 | 94809 | 2960-003128 |
Payout Agreement
| No payout information available.. |