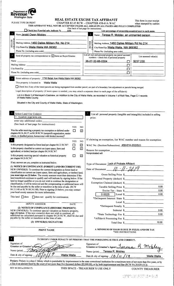
Property
Account |
| Property ID: | 11294 | Abbreviated Legal Description: | 30-7-36 TAX 6 |
| Parcel Number: | 360730410004 | Agent Code: | |
| Type: | Real | | |
| Tax Area: | 1 - OL-140-F | Land Use Code | 55 |
| Open Space: | N | DFL | N |
| Historic Property: | N | Remodel Property: | N |
| Multi-Family Redevelopment: | N | | |
| Township: | 7 | Section: | 30 |
| Range: | 36 |
Location |
| Address: | 900 S 9TH AVE WA 99362 | Mapsco: | |
| Neighborhood: | | Map ID: | |
| Neighborhood CD: | 3342 |
Owner |
| Name: | CIRCLE DJ LLC | Owner ID: | 66422 |
| Mailing Address: | DONNA ROGERS 172 PEARMAIN AVE WALLA WALLA, WA 99362 | % Ownership: | 100.0000000000% |
| | | Exemptions: | |
Taxes and Assessment Details
Values
| (+) Improvement Homesite Value: | + | $0 | |
| (+) Improvement Non-Homesite Value: | + | $42,200 | |
| (+) Land Homesite Value: | + | $0 | |
| (+) Land Non-Homesite Value: | + | $273,100 | |
| (+) Curr Use (HS): | + | $0 | $0 |
| (+) Curr Use (NHS): | + | $0 | $0 |
| | | -------------------------- | |
| (=) Market Value: | = | $315,300 | |
| (–) Productivity Loss: | – | $0 | |
| | | -------------------------- | |
| (=) Subtotal: | = | $315,300 | |
| (+) Senior Appraised Value: | + | $0 | |
| (+) Non-Senior Appraised Value: | + | $315,300 | |
| | | -------------------------- | |
| (=) Total Appraised Value: | = | $315,300 | |
| (–) Senior Exemption Loss: | – | $0 | |
| (–) Exemption Loss: | – | $0 | |
| | | -------------------------- | |
| (=) Taxable Value: | = | $315,300 | |
Taxing Jurisdiction
| Owner: | CIRCLE DJ LLC | | |
| % Ownership: | 100.0000000000% | | |
| Total Value: | $315,300 | | |
| Tax Area: | 1 - OL-140-F |
| CERFD | CURRENT EXPENSE REFUND 010 | 0.0000000000 | $315,300 | $315,300 | $0.00 | | |
| CURREXP | CURRENT EXPENSE 010 | 1.0175366760 | $315,300 | $315,300 | $320.83 | | |
| HUMNSERV | HUMAN SERVICES 119 | 0.0250000000 | $315,300 | $315,300 | $7.88 | | |
| SLDREL | SOLDIERS RELIEF 121 | 0.0155990005 | $315,300 | $315,300 | $4.92 | | |
| EMERGSER | EMS 147 | 0.3792580840 | $315,300 | $315,300 | $119.58 | | |
| EMSRFD | EMS REFUND 147 | 0.0000000000 | $315,300 | $315,300 | $0.00 | | |
| PORTRFD | PORT REFUND 640 | 0.0000000000 | $315,300 | $315,300 | $0.00 | | |
| PORTWWGEN | PORT OF WW 640 | 0.2460186015 | $315,300 | $315,300 | $77.57 | | |
| SD140BOND | SD #140 BOND 764 | 0.8342371393 | $315,300 | $315,300 | $263.03 | | |
| SD140GEN | SD #140 GENERAL 760 | 2.0646500647 | $315,300 | $315,300 | $650.98 | | |
| ST2 | STATE SCHOOL PART 2 600 | 0.8131451643 | $315,300 | $315,300 | $256.38 | | |
| STATESCHL | STATE SCHOOL 600 | 1.5158548041 | $315,300 | $315,300 | $477.95 | | |
| STREFUND | STATE REFUND LEVY 603 | 0.0000000000 | $315,300 | $315,300 | $0.00 | | |
| CWWBOND | C OF WW BOND 643 | 0.2760494372 | $315,300 | $315,300 | $87.04 | | |
| CWWGEN | CITY OF WW 631 | 1.6100204973 | $315,300 | $315,300 | $507.64 | | |
| CWWRFD | CITY OF WALLA WALLA REFUND 631 | 0.0000000000 | $315,300 | $315,300 | $0.00 | | |
| | Total Tax Rate: | 8.7973694689 | | | | | |
| | | | | Taxes w/Current Exemptions: | $2,773.80 | | |
| | | | | Taxes w/o Exemptions: | $2,773.80 | | |
Improvement / Building
| Improvement #1: | MANUFACTURED HOME | State Code: | 55 | 1050.0 sqft | Value: | $42,200 |
| Exterior Wall: | RIBBED ALUMINUM | Heating/Cooling: | FORCED AIR | | Number of Bathrooms: | 2 | Plumbing: | 8 | | Roof Covering: | GALVANIZED METAL |   |   |
|
| | Type | Description | Class CD | Sub Class CD | Year Built | Area |
| | MOBHOME | MANUFACTURD HOMES | 1 | 20 | 1982 | 1050.0 |
| | WDR | WOOD DECK W/ROOF | D | * | 1982 | 510.0 |
| | MI1 | MH SET-UP COSTS | 1 | * | 1982 | 1.0 |
| | PRKSTLA | PARK STALL AVERAGE | D | * | 1982 | 24.0 |
Sketch
Property Image
Land
| 1 | COM 1 | Converted: Commercial | 1.5100 | 65775.60 | 0.00 | 0.00 | 1.00 | $273,100 | $0 |
Roll Value History
| 2025 | N/A | N/A | N/A | N/A | N/A |
| 2024 | $99,500 | $273,100 | $0 | $372,600 | $372,600 |
| 2023 | $42,200 | $273,100 | $0 | $315,300 | $315,300 |
| 2022 | $42,200 | $273,100 | $0 | $315,300 | $315,300 |
| 2021 | $32,700 | $273,100 | $0 | $305,800 | $305,800 |
| 2020 | $32,700 | $273,100 | $0 | $305,800 | $305,800 |
| 2019 | $32,700 | $273,100 | $0 | $305,800 | $305,800 |
| 2018 | $32,700 | $273,100 | $0 | $305,800 | $305,800 |
| 2017 | $17,300 | $273,100 | $0 | $290,400 | $290,400 |
| 2016 | $17,300 | $273,100 | $0 | $290,400 | $290,400 |
| 2015 | $17,300 | $315,700 | $0 | $333,000 | $333,000 |
| 2014 | $17,300 | $315,700 | $0 | $333,000 | $333,000 |
| 2013 | $17,300 | $315,700 | $0 | $333,000 | $333,000 |
| 2012 | $17,300 | $315,700 | $0 | $0 | $0 |
| 2011 | $17,300 | $315,700 | $0 | $0 | $0 |
| 2010 | $17,700 | $315,700 | $0 | $0 | $0 |
| 2009 | $293,500 | $18,800 | $0 | $0 | $0 |
| 2008 | $16,300 | $296,000 | $0 | $0 | $0 |
| 2007 | $16,300 | $296,000 | $0 | $0 | $0 |
| 2006 | $16,300 | $296,000 | $0 | $0 | $0 |
Deed and Sales History
| 1 | 08/03/2020 | MH AFFIDAV | MOBILE HOME AFFIDAVIT | JOHNSON DONALD O ESTATE OF | MARTIN KATHY A ET AL | | | | 139636 | MHAFF-139636 |
| 2 | 12/24/2019 | SWD | STATUTORY WARRANTY DEED | MARTIN KATHY A ET AL | CIRCLE DJ LLC | | | $0.00 | 138328 | 2019-10796 |
| 3 | 04/19/2019 | SWP | Special Warranty Deed | JOHNSON DONALD O ESTATE OF | MARTIN KATHY A ET AL | | | $0.00 | 138326 | 2019-10789 |
| 4 | 04/04/2013 | WARRANTY D | WARRANTY DEED | "JOHNSON, DONALD O ESTATE~OF" | | | | | 123728 | 2013-03234 |
| 5 | 01/24/1977 | WARRANTY D | WARRANTY DEED | | | | | $59,500.00 | 0 | 5805-64069 |
Payout Agreement
| No payout information available.. |