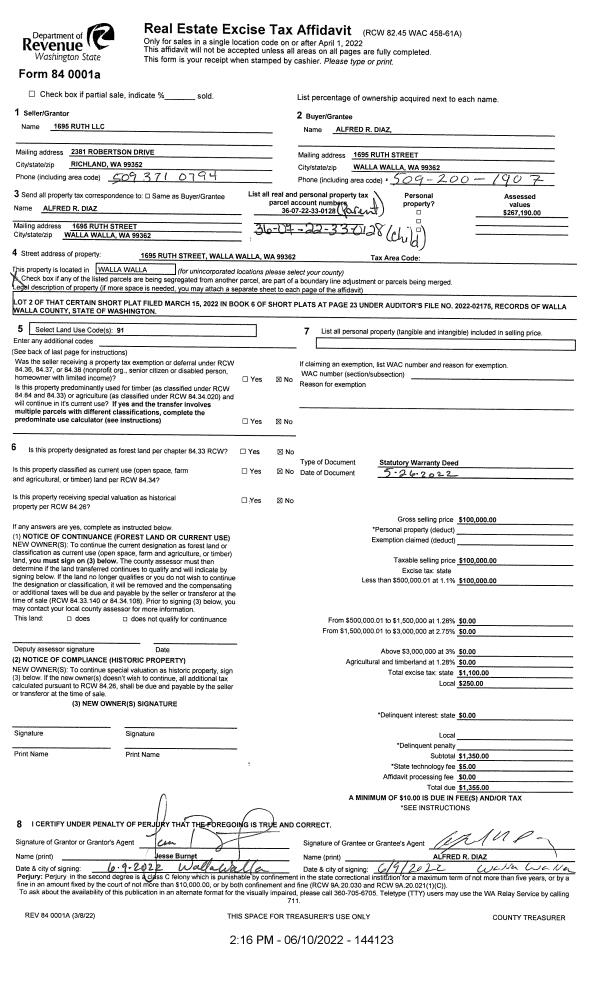
Property
Account |
| Property ID: | 11153 | Abbreviated Legal Description: | ROBERTS TAX 7 LOT 6 BLK 16 |
| Parcel Number: | 360729871606 | Agent Code: | |
| Type: | Real | | |
| Tax Area: | 1 - OL-140-F | Land Use Code | 11 |
| Open Space: | N | DFL | N |
| Historic Property: | N | Remodel Property: | N |
| Multi-Family Redevelopment: | N | | |
| Township: | 7 | Section: | 29 |
| Range: | 36 |
Location |
| Address: | 130 WHITMAN ST WA 99362 | Mapsco: | |
| Neighborhood: | G-SFR | Map ID: | |
| Neighborhood CD: | 514011 |
Owner |
| Name: | EROLA BRENT A & HEATHER G PETERS | Owner ID: | 71881 |
| Mailing Address: | 130 WHITMAN ST WALLA WALLA, WA 99362 | % Ownership: | 100.0000000000% |
| | | Exemptions: | |
Taxes and Assessment Details
Values
| (+) Improvement Homesite Value: | + | $0 | |
| (+) Improvement Non-Homesite Value: | + | $543,800 | |
| (+) Land Homesite Value: | + | $0 | |
| (+) Land Non-Homesite Value: | + | $52,200 | |
| (+) Curr Use (HS): | + | $0 | $0 |
| (+) Curr Use (NHS): | + | $0 | $0 |
| | | -------------------------- | |
| (=) Market Value: | = | $596,000 | |
| (–) Productivity Loss: | – | $0 | |
| | | -------------------------- | |
| (=) Subtotal: | = | $596,000 | |
| (+) Senior Appraised Value: | + | $0 | |
| (+) Non-Senior Appraised Value: | + | $596,000 | |
| | | -------------------------- | |
| (=) Total Appraised Value: | = | $596,000 | |
| (–) Senior Exemption Loss: | – | $0 | |
| (–) Exemption Loss: | – | $0 | |
| | | -------------------------- | |
| (=) Taxable Value: | = | $596,000 | |
Taxing Jurisdiction
| Owner: | EROLA BRENT A & HEATHER G PETERS | | |
| % Ownership: | 100.0000000000% | | |
| Total Value: | $596,000 | | |
| Tax Area: | 1 - OL-140-F |
| CERFD | CURRENT EXPENSE REFUND 010 | 0.0000000000 | $596,000 | $596,000 | $0.00 | | |
| CURREXP | CURRENT EXPENSE 010 | 1.0175366760 | $596,000 | $596,000 | $606.45 | | |
| HUMNSERV | HUMAN SERVICES 119 | 0.0250000000 | $596,000 | $596,000 | $14.90 | | |
| SLDREL | SOLDIERS RELIEF 121 | 0.0155990005 | $596,000 | $596,000 | $9.30 | | |
| EMERGSER | EMS 147 | 0.3792580840 | $596,000 | $596,000 | $226.04 | | |
| EMSRFD | EMS REFUND 147 | 0.0000000000 | $596,000 | $596,000 | $0.00 | | |
| PORTRFD | PORT REFUND 640 | 0.0000000000 | $596,000 | $596,000 | $0.00 | | |
| PORTWWGEN | PORT OF WW 640 | 0.2460186015 | $596,000 | $596,000 | $146.63 | | |
| SD140BOND | SD #140 BOND 764 | 0.8342371393 | $596,000 | $596,000 | $497.21 | | |
| SD140GEN | SD #140 GENERAL 760 | 2.0646500647 | $596,000 | $596,000 | $1,230.53 | | |
| ST2 | STATE SCHOOL PART 2 600 | 0.8131451643 | $596,000 | $596,000 | $484.63 | | |
| STATESCHL | STATE SCHOOL 600 | 1.5158548041 | $596,000 | $596,000 | $903.45 | | |
| STREFUND | STATE REFUND LEVY 603 | 0.0000000000 | $596,000 | $596,000 | $0.00 | | |
| CWWBOND | C OF WW BOND 643 | 0.2760494372 | $596,000 | $596,000 | $164.53 | | |
| CWWGEN | CITY OF WW 631 | 1.6100204973 | $596,000 | $596,000 | $959.57 | | |
| CWWRFD | CITY OF WALLA WALLA REFUND 631 | 0.0000000000 | $596,000 | $596,000 | $0.00 | | |
| | Total Tax Rate: | 8.7973694689 | | | | | |
| | | | | Taxes w/Current Exemptions: | $5,243.24 | | |
| | | | | Taxes w/o Exemptions: | $5,243.24 | | |
Improvement / Building
| Improvement #1: | RESIDENTIAL | State Code: | 11 | 1088.0 sqft | Value: | $543,800 |
| Exterior Wall: | SIDING | Heating/Cooling: | WARM & COOLED AIR | | Number of Bathrooms: | 2 | Number of Bedrooms: | 2 | | Plumbing: | 10 | Roof Covering: | COMP SHINGLE |
|
| | Type | Description | Class CD | Sub Class CD | Year Built | Area |
| | MA | Main Area | 1 | 40 | 1936 | 1088.0 |
| | SI1 | SITE IMPROVEMENT | 1 | 40 | 1936 | 5.0 |
| | BASE | BASEMENT | 1 | 40 | 1936 | 1088.0 |
| | BPF | BASEMENT -PARTITIONED FINISH | 1 | 40 | 1936 | 872.0 |
| | S1F | Single One Story Fireplace | 1 | 40 | 1936 | 1.0 |
| | PRC | PORCH W STEPS, ROOF,CEILED | 1 | 40 | 1936 | 48.0 |
| | CPC | COVERED CARPORT/PATIO | 1 | 40 | 1936 | 161.0 |
| | STG1 | Sub Terrain Garage Single | 1 | 40 | 1936 | 1.0 |
Sketch
Property Image
Land
| 1 | RES 1 | Converted: Residential | 0.1653 | 7200.00 | 0.00 | 0.00 | 1.00 | $52,200 | $0 |
Roll Value History
| 2025 | N/A | N/A | N/A | N/A | N/A |
| 2024 | $433,850 | $79,200 | $0 | $513,050 | $513,050 |
| 2023 | $543,800 | $52,200 | $0 | $596,000 | $596,000 |
| 2022 | $494,360 | $52,200 | $0 | $546,560 | $546,560 |
| 2021 | $296,060 | $52,200 | $0 | $348,260 | $348,260 |
| 2020 | $211,470 | $52,200 | $0 | $263,670 | $263,670 |
| 2019 | $211,470 | $52,200 | $0 | $263,670 | $263,670 |
| 2018 | $201,400 | $52,200 | $0 | $253,600 | $253,600 |
| 2017 | $185,380 | $32,400 | $0 | $217,780 | $217,780 |
| 2016 | $142,600 | $32,400 | $0 | $175,000 | $175,000 |
| 2015 | $142,600 | $32,400 | $0 | $175,000 | $175,000 |
| 2014 | $142,600 | $32,400 | $0 | $175,000 | $175,000 |
| 2013 | $142,600 | $32,400 | $0 | $175,000 | $175,000 |
| 2012 | $140,600 | $32,400 | $0 | $0 | $0 |
| 2011 | $171,100 | $32,400 | $0 | $0 | $0 |
| 2010 | $161,400 | $32,400 | $0 | $0 | $0 |
| 2009 | $182,900 | $32,400 | $0 | $0 | $0 |
| 2008 | $106,500 | $32,400 | $0 | $0 | $0 |
| 2007 | $106,500 | $32,400 | $0 | $0 | $0 |
| 2006 | $89,600 | $14,400 | $0 | $0 | $0 |
Deed and Sales History
| 1 | 07/01/2022 | SWD | STATUTORY WARRANTY DEED | DEANER JEFFREY & SALLY TAM | EROLA BRENT A & HEATHER G PETERS | | | $575,000.00 | 144243 | 2022-05576 |
| 2 | 03/31/2021 | SWD | STATUTORY WARRANTY DEED | THOMPSON TRACY | DEANER JEFFREY & SALLY TAM | | | $395,000.00 | 141225 | 2021-03741 |
| 3 | 07/10/2017 | SWD | STATUTORY WARRANTY DEED | RUMB AXEL & GLENDA L STUBBS RUMB | THOMPSON TRACY | | | $260,000.00 | 132749 | 2017-05263 |
| 4 | 08/26/2015 | SWD | STATUTORY WARRANTY DEED | SACHS KEVIN T | RUMB AXEL & GLENDA L STUBBS RUMB | | | $225,900.00 | 128691 | 2015-07472 |
| 5 | 08/05/2003 | WARRANTY D | WARRANTY DEED | BRULOTTE, CAROLYN M | SACHS, KEVIN T | | | $128,000.00 | 102721 | 2003-11680 |
| 6 | 11/05/2001 | WARRANTY D | WARRANTY DEED | | | | | $104,000.00 | 98290 | 3220-111902 |
Payout Agreement
| No payout information available.. |