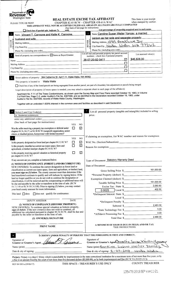
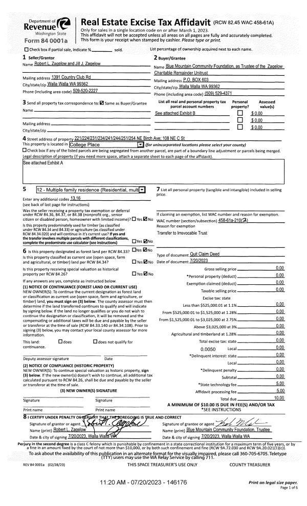
Property
Account |
| Property ID: | 11100 | Abbreviated Legal Description: | PAGE AND TRACT 10 |
| Parcel Number: | 360729860010 | Agent Code: | |
| Type: | Real | | |
| Tax Area: | 1 - OL-140-F | Land Use Code | 11 |
| Open Space: | N | DFL | N |
| Historic Property: | N | Remodel Property: | N |
| Multi-Family Redevelopment: | N | | |
| Township: | 7 | Section: | 29 |
| Range: | 36 |
Location |
| Address: | 625 CATHERINE ST WA 99362 | Mapsco: | |
| Neighborhood: | G-SFR | Map ID: | |
| Neighborhood CD: | 514011 |
Owner |
| Name: | SANDQUIST DANE W & LAURA A | Owner ID: | 69064 |
| Mailing Address: | 625 CATHERINE ST WALLA WALLA, WA 99362 | % Ownership: | 100.0000000000% |
| | | Exemptions: | |
Taxes and Assessment Details
Values
| (+) Improvement Homesite Value: | + | $0 | |
| (+) Improvement Non-Homesite Value: | + | $1,122,950 | |
| (+) Land Homesite Value: | + | $0 | |
| (+) Land Non-Homesite Value: | + | $80,950 | |
| (+) Curr Use (HS): | + | $0 | $0 |
| (+) Curr Use (NHS): | + | $0 | $0 |
| | | -------------------------- | |
| (=) Market Value: | = | $1,203,900 | |
| (–) Productivity Loss: | – | $0 | |
| | | -------------------------- | |
| (=) Subtotal: | = | $1,203,900 | |
| (+) Senior Appraised Value: | + | $0 | |
| (+) Non-Senior Appraised Value: | + | $1,203,900 | |
| | | -------------------------- | |
| (=) Total Appraised Value: | = | $1,203,900 | |
| (–) Senior Exemption Loss: | – | $0 | |
| (–) Exemption Loss: | – | $0 | |
| | | -------------------------- | |
| (=) Taxable Value: | = | $1,203,900 | |
Taxing Jurisdiction
| Owner: | SANDQUIST DANE W & LAURA A | | |
| % Ownership: | 100.0000000000% | | |
| Total Value: | $1,203,900 | | |
| Tax Area: | 1 - OL-140-F |
| CERFD | CURRENT EXPENSE REFUND 010 | 0.0000000000 | $1,203,900 | $1,203,900 | $0.00 | | |
| CURREXP | CURRENT EXPENSE 010 | 1.0175366760 | $1,203,900 | $1,203,900 | $1,225.01 | | |
| HUMNSERV | HUMAN SERVICES 119 | 0.0250000000 | $1,203,900 | $1,203,900 | $30.10 | | |
| SLDREL | SOLDIERS RELIEF 121 | 0.0155990005 | $1,203,900 | $1,203,900 | $18.78 | | |
| EMERGSER | EMS 147 | 0.3792580840 | $1,203,900 | $1,203,900 | $456.59 | | |
| EMSRFD | EMS REFUND 147 | 0.0000000000 | $1,203,900 | $1,203,900 | $0.00 | | |
| PORTRFD | PORT REFUND 640 | 0.0000000000 | $1,203,900 | $1,203,900 | $0.00 | | |
| PORTWWGEN | PORT OF WW 640 | 0.2460186015 | $1,203,900 | $1,203,900 | $296.18 | | |
| SD140BOND | SD #140 BOND 764 | 0.8342371393 | $1,203,900 | $1,203,900 | $1,004.34 | | |
| SD140GEN | SD #140 GENERAL 760 | 2.0646500647 | $1,203,900 | $1,203,900 | $2,485.63 | | |
| ST2 | STATE SCHOOL PART 2 600 | 0.8131451643 | $1,203,900 | $1,203,900 | $978.95 | | |
| STATESCHL | STATE SCHOOL 600 | 1.5158548041 | $1,203,900 | $1,203,900 | $1,824.94 | | |
| STREFUND | STATE REFUND LEVY 603 | 0.0000000000 | $1,203,900 | $1,203,900 | $0.00 | | |
| CWWBOND | C OF WW BOND 643 | 0.2760494372 | $1,203,900 | $1,203,900 | $332.34 | | |
| CWWGEN | CITY OF WW 631 | 1.6100204973 | $1,203,900 | $1,203,900 | $1,938.30 | | |
| CWWRFD | CITY OF WALLA WALLA REFUND 631 | 0.0000000000 | $1,203,900 | $1,203,900 | $0.00 | | |
| | Total Tax Rate: | 8.7973694689 | | | | | |
| | | | | Taxes w/Current Exemptions: | $10,591.16 | | |
| | | | | Taxes w/o Exemptions: | $10,591.16 | | |
Improvement / Building
| Improvement #1: | RESIDENTIAL | State Code: | 11 | 3003.0 sqft | Value: | $1,122,950 |
| Exterior Wall: | STUCCO | Heating/Cooling: | WARM & COOLED AIR | | Number of Bathrooms: | 4 | Number of Bedrooms: | 4 | | Plumbing: | 19 | Roof Covering: | COMP SHINGLE |
|
| | Type | Description | Class CD | Sub Class CD | Year Built | Area |
| | MA | Main Area | 4 | 45 | 1935 | 3003.0 |
| | UPFL | Upper Floor (included in main area) | 4 | 45 | 1935 | 1105.0 |
| | SI1 | SITE IMPROVEMENT | 4 | 45 | 1935 | 4.0 |
| | BASE | BASEMENT | 4 | 45 | 1935 | 1898.0 |
| | BPF | BASEMENT -PARTITIONED FINISH | 4 | 45 | 1935 | 1898.0 |
| | SMP | SWIMMING POOL | 4 | 45 | 0 | 1.0 |
| | D2F | Double 2 Story Fireplace | 4 | 45 | 1935 | 1.0 |
| | PRC | PORCH W STEPS, ROOF,CEILED | 4 | 45 | 1935 | 54.0 |
| | PRC | PORCH W STEPS, ROOF,CEILED | 4 | 45 | 1935 | 110.0 |
| | CPC | COVERED CARPORT/PATIO | 4 | 45 | 1935 | 240.0 |
| | DTG | Detached Garage | 4 | 45 | 2004 | 1196.0 |
| | SOLR | SOLAR POWER PANELS | 4 | 45 | 1935 | 40.0 |
| | BON1 | BONUS RM ATT/MIN OR NO FINISH | 4 | 45 | 1935 | 552.0 |
Sketch
Property Image
Land
| 1 | RES 1 | Converted: Residential | 0.5772 | 25141.00 | 0.00 | 0.00 | 1.00 | $80,950 | $0 |
Roll Value History
| 2025 | N/A | N/A | N/A | N/A | N/A |
| 2024 | $1,058,500 | $143,050 | $0 | $1,201,550 | $1,201,550 |
| 2023 | $1,122,950 | $80,950 | $0 | $1,203,900 | $1,203,900 |
| 2022 | $976,480 | $80,950 | $0 | $1,057,430 | $1,057,430 |
| 2021 | $650,990 | $80,950 | $0 | $731,940 | $731,940 |
| 2020 | $464,990 | $80,950 | $0 | $545,940 | $545,940 |
| 2019 | $464,990 | $80,950 | $0 | $545,940 | $545,940 |
| 2018 | $464,990 | $80,950 | $0 | $545,940 | $545,940 |
| 2017 | $410,490 | $51,400 | $0 | $461,890 | $461,890 |
| 2016 | $373,170 | $51,400 | $0 | $424,570 | $424,570 |
| 2015 | $373,170 | $51,400 | $0 | $424,570 | $424,570 |
| 2014 | $355,400 | $51,400 | $0 | $406,800 | $406,800 |
| 2013 | $355,400 | $51,400 | $0 | $406,800 | $406,800 |
| 2012 | $355,400 | $51,400 | $0 | $0 | $0 |
| 2011 | $356,400 | $51,400 | $0 | $0 | $0 |
| 2010 | $356,400 | $51,400 | $0 | $0 | $0 |
| 2009 | $380,200 | $51,400 | $0 | $0 | $0 |
| 2008 | $371,600 | $60,000 | $0 | $0 | $0 |
| 2007 | $281,900 | $24,500 | $0 | $0 | $0 |
| 2006 | $281,900 | $24,500 | $0 | $0 | $0 |
Deed and Sales History
| 1 | 03/22/2021 | SWD | STATUTORY WARRANTY DEED | CAUDILL TIMOTHY | SANDQUIST DANE W & LAURA A | | | $1,100,000.00 | 141150 | 2021-03258 |
| 2 | 10/09/1998 | WARRANTY D | WARRANTY DEED | | | | | $225,000.00 | 91419 | 2749-811620 |
Payout Agreement
| No payout information available.. |