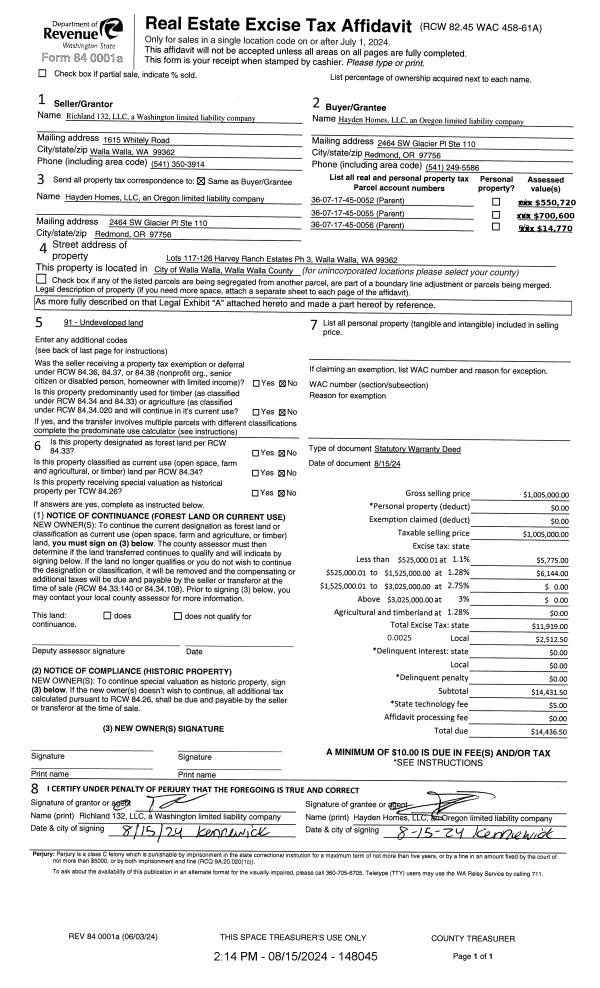
Property
Account |
| Property ID: | 10985 | Abbreviated Legal Description: | STAHL & CAMBERN LOT 10 |
| Parcel Number: | 360729820010 | Agent Code: | |
| Type: | Real | | |
| Tax Area: | 1 - OL-140-F | Land Use Code | 11 |
| Open Space: | N | DFL | N |
| Historic Property: | N | Remodel Property: | N |
| Multi-Family Redevelopment: | N | | |
| Township: | 7 | Section: | 29 |
| Range: | 36 |
Location |
| Address: | 356 S 3RD AVE WA 99362 | Mapsco: | |
| Neighborhood: | A-SFR | Map ID: | |
| Neighborhood CD: | 513011 |
Owner |
| Name: | CASALI JERI L | Owner ID: | 50867 |
| Mailing Address: | 78243 LOWER BASKET MTN RD WESTON, OR 97886 | % Ownership: | 100.0000000000% |
| | | Exemptions: | |
Taxes and Assessment Details
Values
| (+) Improvement Homesite Value: | + | $0 | |
| (+) Improvement Non-Homesite Value: | + | $260,520 | |
| (+) Land Homesite Value: | + | $0 | |
| (+) Land Non-Homesite Value: | + | $46,880 | |
| (+) Curr Use (HS): | + | $0 | $0 |
| (+) Curr Use (NHS): | + | $0 | $0 |
| | | -------------------------- | |
| (=) Market Value: | = | $307,400 | |
| (–) Productivity Loss: | – | $0 | |
| | | -------------------------- | |
| (=) Subtotal: | = | $307,400 | |
| (+) Senior Appraised Value: | + | $0 | |
| (+) Non-Senior Appraised Value: | + | $307,400 | |
| | | -------------------------- | |
| (=) Total Appraised Value: | = | $307,400 | |
| (–) Senior Exemption Loss: | – | $0 | |
| (–) Exemption Loss: | – | $0 | |
| | | -------------------------- | |
| (=) Taxable Value: | = | $307,400 | |
Taxing Jurisdiction
| Owner: | CASALI JERI L | | |
| % Ownership: | 100.0000000000% | | |
| Total Value: | $307,400 | | |
| Tax Area: | 1 - OL-140-F |
| CERFD | CURRENT EXPENSE REFUND 010 | 0.0000000000 | $307,400 | $307,400 | $0.00 | | |
| CURREXP | CURRENT EXPENSE 010 | 1.0175366760 | $307,400 | $307,400 | $312.79 | | |
| HUMNSERV | HUMAN SERVICES 119 | 0.0250000000 | $307,400 | $307,400 | $7.69 | | |
| SLDREL | SOLDIERS RELIEF 121 | 0.0155990005 | $307,400 | $307,400 | $4.80 | | |
| EMERGSER | EMS 147 | 0.3792580840 | $307,400 | $307,400 | $116.58 | | |
| EMSRFD | EMS REFUND 147 | 0.0000000000 | $307,400 | $307,400 | $0.00 | | |
| PORTRFD | PORT REFUND 640 | 0.0000000000 | $307,400 | $307,400 | $0.00 | | |
| PORTWWGEN | PORT OF WW 640 | 0.2460186015 | $307,400 | $307,400 | $75.63 | | |
| SD140BOND | SD #140 BOND 764 | 0.8342371393 | $307,400 | $307,400 | $256.44 | | |
| SD140GEN | SD #140 GENERAL 760 | 2.0646500647 | $307,400 | $307,400 | $634.67 | | |
| ST2 | STATE SCHOOL PART 2 600 | 0.8131451643 | $307,400 | $307,400 | $249.96 | | |
| STATESCHL | STATE SCHOOL 600 | 1.5158548041 | $307,400 | $307,400 | $465.97 | | |
| STREFUND | STATE REFUND LEVY 603 | 0.0000000000 | $307,400 | $307,400 | $0.00 | | |
| CWWBOND | C OF WW BOND 643 | 0.2760494372 | $307,400 | $307,400 | $84.86 | | |
| CWWGEN | CITY OF WW 631 | 1.6100204973 | $307,400 | $307,400 | $494.92 | | |
| CWWRFD | CITY OF WALLA WALLA REFUND 631 | 0.0000000000 | $307,400 | $307,400 | $0.00 | | |
| | Total Tax Rate: | 8.7973694689 | | | | | |
| | | | | Taxes w/Current Exemptions: | $2,704.31 | | |
| | | | | Taxes w/o Exemptions: | $2,704.31 | | |
Improvement / Building
| Improvement #1: | RESIDENTIAL | State Code: | 11 | 1684.0 sqft | Value: | $260,520 |
| Exterior Wall: | SIDING | Heating/Cooling: | FLOOR RADIANT | | Number of Bathrooms: | 2 | Number of Bedrooms: | 3 | | Plumbing: | 10 | Roof Covering: | COMP SHINGLE |
|
| | Type | Description | Class CD | Sub Class CD | Year Built | Area |
| | MA | Main Area | 1 | 35 | 1900 | 1684.0 |
| | SI1 | SITE IMPROVEMENT | 1 | 35 | 1900 | 1.5 |
| | BASE | BASEMENT | 1 | 35 | 1900 | 452.0 |
| | RCD | WOOD DECK W/ROOF, CEILED | 1 | 35 | 1900 | 148.0 |
| | RPO | OPEN PORCH W/ROOF | 1 | 35 | 1900 | 190.0 |
| | DTG | Detached Garage | 1 | 35 | 1900 | 308.0 |
Sketch
Property Image
Land
| 1 | RES 1 | Converted: Residential | 0.1722 | 7500.00 | 0.00 | 0.00 | 1.00 | $46,880 | $0 |
Roll Value History
| 2025 | N/A | N/A | N/A | N/A | N/A |
| 2024 | $236,000 | $75,000 | $0 | $311,000 | $311,000 |
| 2023 | $260,520 | $46,880 | $0 | $307,400 | $307,400 |
| 2022 | $248,120 | $46,880 | $0 | $295,000 | $295,000 |
| 2021 | $206,770 | $46,880 | $0 | $253,650 | $253,650 |
| 2020 | $159,050 | $46,880 | $0 | $205,930 | $205,930 |
| 2019 | $159,050 | $46,880 | $0 | $205,930 | $205,930 |
| 2018 | $159,050 | $46,880 | $0 | $205,930 | $205,930 |
| 2017 | $124,740 | $45,000 | $0 | $169,740 | $169,740 |
| 2016 | $113,400 | $45,000 | $0 | $158,400 | $158,400 |
| 2015 | $113,400 | $45,000 | $0 | $158,400 | $158,400 |
| 2014 | $113,400 | $45,000 | $0 | $158,400 | $158,400 |
| 2013 | $113,400 | $45,000 | $0 | $158,400 | $158,400 |
| 2012 | $113,400 | $45,000 | $0 | $0 | $0 |
| 2011 | $113,400 | $45,000 | $0 | $0 | $0 |
| 2010 | $99,000 | $45,000 | $0 | $0 | $0 |
| 2009 | $124,400 | $45,000 | $0 | $0 | $0 |
| 2008 | $124,400 | $45,000 | $0 | $0 | $0 |
| 2007 | $93,000 | $15,000 | $0 | $0 | $0 |
| 2006 | $93,000 | $15,000 | $0 | $0 | $0 |
Deed and Sales History
| 1 | 03/02/2012 | WARRANTY D | WARRANTY DEED | CASALI, JEFF A | CASALI, JERI L | | | | 0 | CC #10-3-00032-6 |
| 2 | 11/05/1999 | WARRANTY D | WARRANTY DEED | | | | | $102,800.00 | 93967 | 2919-912712 |
Payout Agreement
| No payout information available.. |