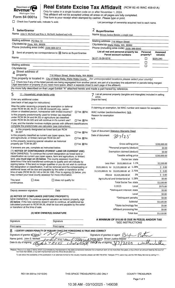
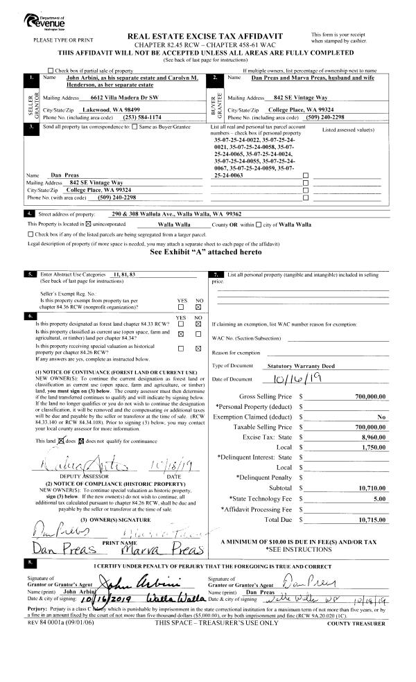
Property
Account |
| Property ID: | 10940 | Abbreviated Legal Description: | SINGLETONS LOT 6 BLK 2 |
| Parcel Number: | 360729780206 | Agent Code: | |
| Type: | Real | | |
| Tax Area: | 1 - OL-140-F | Land Use Code | 11 |
| Open Space: | N | DFL | N |
| Historic Property: | N | Remodel Property: | N |
| Multi-Family Redevelopment: | N | | |
| Township: | 7 | Section: | 29 |
| Range: | 36 |
Location |
| Address: | 32 E CHESTNUT ST WA 99362 | Mapsco: | |
| Neighborhood: | A Res | Map ID: | |
| Neighborhood CD: | 613011 |
Owner |
| Name: | RODRIGUEZ AMBER ROSE | Owner ID: | 66984 |
| Mailing Address: | 32 E CHESTNUT ST WALLA WALLA, WA 99362 | % Ownership: | 100.0000000000% |
| | | Exemptions: | |
Taxes and Assessment Details
Values
| (+) Improvement Homesite Value: | + | $0 | |
| (+) Improvement Non-Homesite Value: | + | $186,140 | |
| (+) Land Homesite Value: | + | $0 | |
| (+) Land Non-Homesite Value: | + | $48,600 | |
| (+) Curr Use (HS): | + | $0 | $0 |
| (+) Curr Use (NHS): | + | $0 | $0 |
| | | -------------------------- | |
| (=) Market Value: | = | $234,740 | |
| (–) Productivity Loss: | – | $0 | |
| | | -------------------------- | |
| (=) Subtotal: | = | $234,740 | |
| (+) Senior Appraised Value: | + | $0 | |
| (+) Non-Senior Appraised Value: | + | $234,740 | |
| | | -------------------------- | |
| (=) Total Appraised Value: | = | $234,740 | |
| (–) Senior Exemption Loss: | – | $0 | |
| (–) Exemption Loss: | – | $0 | |
| | | -------------------------- | |
| (=) Taxable Value: | = | $234,740 | |
Taxing Jurisdiction
| Owner: | RODRIGUEZ AMBER ROSE | | |
| % Ownership: | 100.0000000000% | | |
| Total Value: | $234,740 | | |
| Tax Area: | 1 - OL-140-F |
| CERFD | CURRENT EXPENSE REFUND 010 | 0.0000000000 | $234,740 | $234,740 | $0.00 | | |
| CURREXP | CURRENT EXPENSE 010 | 1.0175366760 | $234,740 | $234,740 | $238.86 | | |
| HUMNSERV | HUMAN SERVICES 119 | 0.0250000000 | $234,740 | $234,740 | $5.87 | | |
| SLDREL | SOLDIERS RELIEF 121 | 0.0155990005 | $234,740 | $234,740 | $3.66 | | |
| EMERGSER | EMS 147 | 0.3792580840 | $234,740 | $234,740 | $89.03 | | |
| EMSRFD | EMS REFUND 147 | 0.0000000000 | $234,740 | $234,740 | $0.00 | | |
| PORTRFD | PORT REFUND 640 | 0.0000000000 | $234,740 | $234,740 | $0.00 | | |
| PORTWWGEN | PORT OF WW 640 | 0.2460186015 | $234,740 | $234,740 | $57.75 | | |
| SD140BOND | SD #140 BOND 764 | 0.8342371393 | $234,740 | $234,740 | $195.83 | | |
| SD140GEN | SD #140 GENERAL 760 | 2.0646500647 | $234,740 | $234,740 | $484.66 | | |
| ST2 | STATE SCHOOL PART 2 600 | 0.8131451643 | $234,740 | $234,740 | $190.88 | | |
| STATESCHL | STATE SCHOOL 600 | 1.5158548041 | $234,740 | $234,740 | $355.83 | | |
| STREFUND | STATE REFUND LEVY 603 | 0.0000000000 | $234,740 | $234,740 | $0.00 | | |
| CWWBOND | C OF WW BOND 643 | 0.2760494372 | $234,740 | $234,740 | $64.80 | | |
| CWWGEN | CITY OF WW 631 | 1.6100204973 | $234,740 | $234,740 | $377.94 | | |
| CWWRFD | CITY OF WALLA WALLA REFUND 631 | 0.0000000000 | $234,740 | $234,740 | $0.00 | | |
| | Total Tax Rate: | 8.7973694689 | | | | | |
| | | | | Taxes w/Current Exemptions: | $2,065.11 | | |
| | | | | Taxes w/o Exemptions: | $2,065.11 | | |
Improvement / Building
| Improvement #1: | RESIDENTIAL | State Code: | 11 | 1068.0 sqft | Value: | $186,140 |
| Exterior Wall: | VINYL | Heating/Cooling: | WARM & COOLED AIR | | Number of Bathrooms: | 1 | Number of Bedrooms: | 3 | | Plumbing: | 7 | Roof Covering: | COMP SHINGLE |
|
| | Type | Description | Class CD | Sub Class CD | Year Built | Area |
| | MA | Main Area | 1 | 25 | 1900 | 1068.0 |
| | SI1 | SITE IMPROVEMENT | 1 | 25 | 1900 | 1.0 |
| | RPO | OPEN PORCH W/ROOF | 1 | 25 | 1900 | 114.0 |
| | RPO | OPEN PORCH W/ROOF | 1 | 25 | 1900 | 132.0 |
Sketch
Property Image
Land
| 1 | RES 1 | Converted: Residential | 0.1377 | 6000.00 | 0.00 | 0.00 | 1.00 | $48,600 | $0 |
Roll Value History
| 2025 | N/A | N/A | N/A | N/A | N/A |
| 2024 | $186,140 | $48,600 | $0 | $234,740 | $234,740 |
| 2023 | $186,140 | $48,600 | $0 | $234,740 | $234,740 |
| 2022 | $186,140 | $39,150 | $0 | $225,290 | $225,290 |
| 2021 | $155,120 | $39,150 | $0 | $194,270 | $194,270 |
| 2020 | $110,800 | $39,150 | $0 | $149,950 | $149,950 |
| 2019 | $110,800 | $39,150 | $0 | $149,950 | $149,950 |
| 2018 | $113,390 | $36,000 | $0 | $149,390 | $149,390 |
| 2017 | $107,990 | $36,000 | $0 | $143,990 | $143,990 |
| 2016 | $102,850 | $36,000 | $0 | $138,850 | $138,850 |
| 2015 | $93,500 | $36,000 | $0 | $129,500 | $129,500 |
| 2014 | $85,000 | $36,000 | $0 | $121,000 | $121,000 |
| 2013 | $85,000 | $36,000 | $0 | $121,000 | $121,000 |
| 2012 | $85,000 | $36,000 | $0 | $0 | $0 |
| 2011 | $85,000 | $36,000 | $0 | $0 | $0 |
| 2010 | $85,000 | $36,000 | $0 | $0 | $0 |
| 2009 | $105,500 | $36,000 | $0 | $0 | $0 |
| 2008 | $105,500 | $36,000 | $0 | $0 | $0 |
| 2007 | $63,800 | $12,000 | $0 | $0 | $0 |
| 2006 | $63,800 | $12,000 | $0 | $0 | $0 |
Deed and Sales History
| 1 | 04/08/2020 | QCD | QUIT CLAIM DEED | SOLIS ROGELIO ANAYA | RODRIGUEZ AMBER ROSE | | | | 138309 | 2020-03038 |
| 2 | 04/08/2020 | SWD | STATUTORY WARRANTY DEED | ESPARZA CINDY Y | RODRIGUEZ AMBER ROSE | | | $195,000.00 | 138902 | 2020-03037 |
| 3 | 08/05/2019 | QCD | QUIT CLAIM DEED | ESPARZA FRANCISCO IVAN | ESPARZA CINDY Y | | | $0.00 | 137447 | 2019-05929 |
| 4 | 08/05/2019 | QCD | QUIT CLAIM DEED | BUENROSTRO CINDY Y | ESPARZA CINDY Y | | | $0.00 | 137446 | 2019-05928 |
| 5 | 07/20/2007 | WARRANTY D | WARRANTY DEED | GORMAN, GERALD L & JANETTE A | BUENROSTRO, CINDY Y | | | $139,000.00 | 113310 | 2007-08435 |
| 6 | 07/20/2007 | QCD | QUIT CLAIM DEED | BUENROSTRO, GUSTAVO | BUENROSTRO, CINDY Y | | | | 113311 | 2007-08436 |
| 7 | 02/26/1992 | WARRANTY D | WARRANTY DEED | | | | | $8,000.00 | 76383 | 1949-201721 |
Payout Agreement
| No payout information available.. |