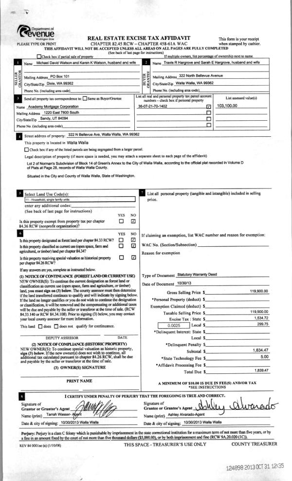
Property
Account |
| Property ID: | 10924 | Abbreviated Legal Description: | SOUTH PARK TAX 8 BLK 1 |
| Parcel Number: | 360729760130 | Agent Code: | |
| Type: | Real | | |
| Tax Area: | 1 - OL-140-F | Land Use Code | 11 |
| Open Space: | N | DFL | N |
| Historic Property: | N | Remodel Property: | N |
| Multi-Family Redevelopment: | N | | |
| Township: | 7 | Section: | 29 |
| Range: | 36 |
Location |
| Address: | 531 WILLOW ST WA 99362 | Mapsco: | |
| Neighborhood: | Fair Inferior Res | Map ID: | |
| Neighborhood CD: | 512111 |
Owner |
| Name: | ORCHARD HENDERSON & JOELEEN M | Owner ID: | 55002 |
| Mailing Address: | 4130 POWERLINE RD WALLA WALLA, WA 99362 | % Ownership: | 100.0000000000% |
| | | Exemptions: | |
Taxes and Assessment Details
Values
| (+) Improvement Homesite Value: | + | $0 | |
| (+) Improvement Non-Homesite Value: | + | $134,810 | |
| (+) Land Homesite Value: | + | $0 | |
| (+) Land Non-Homesite Value: | + | $34,650 | |
| (+) Curr Use (HS): | + | $0 | $0 |
| (+) Curr Use (NHS): | + | $0 | $0 |
| | | -------------------------- | |
| (=) Market Value: | = | $169,460 | |
| (–) Productivity Loss: | – | $0 | |
| | | -------------------------- | |
| (=) Subtotal: | = | $169,460 | |
| (+) Senior Appraised Value: | + | $0 | |
| (+) Non-Senior Appraised Value: | + | $169,460 | |
| | | -------------------------- | |
| (=) Total Appraised Value: | = | $169,460 | |
| (–) Senior Exemption Loss: | – | $0 | |
| (–) Exemption Loss: | – | $0 | |
| | | -------------------------- | |
| (=) Taxable Value: | = | $169,460 | |
Taxing Jurisdiction
| Owner: | ORCHARD HENDERSON & JOELEEN M | | |
| % Ownership: | 100.0000000000% | | |
| Total Value: | $169,460 | | |
| Tax Area: | 1 - OL-140-F |
| CERFD | CURRENT EXPENSE REFUND 010 | 0.0000000000 | $169,460 | $169,460 | $0.00 | | |
| CURREXP | CURRENT EXPENSE 010 | 1.0175366760 | $169,460 | $169,460 | $172.43 | | |
| HUMNSERV | HUMAN SERVICES 119 | 0.0250000000 | $169,460 | $169,460 | $4.24 | | |
| SLDREL | SOLDIERS RELIEF 121 | 0.0155990005 | $169,460 | $169,460 | $2.64 | | |
| EMERGSER | EMS 147 | 0.3792580840 | $169,460 | $169,460 | $64.27 | | |
| EMSRFD | EMS REFUND 147 | 0.0000000000 | $169,460 | $169,460 | $0.00 | | |
| PORTRFD | PORT REFUND 640 | 0.0000000000 | $169,460 | $169,460 | $0.00 | | |
| PORTWWGEN | PORT OF WW 640 | 0.2460186015 | $169,460 | $169,460 | $41.69 | | |
| SD140BOND | SD #140 BOND 764 | 0.8342371393 | $169,460 | $169,460 | $141.37 | | |
| SD140GEN | SD #140 GENERAL 760 | 2.0646500647 | $169,460 | $169,460 | $349.88 | | |
| ST2 | STATE SCHOOL PART 2 600 | 0.8131451643 | $169,460 | $169,460 | $137.80 | | |
| STATESCHL | STATE SCHOOL 600 | 1.5158548041 | $169,460 | $169,460 | $256.88 | | |
| STREFUND | STATE REFUND LEVY 603 | 0.0000000000 | $169,460 | $169,460 | $0.00 | | |
| CWWBOND | C OF WW BOND 643 | 0.2760494372 | $169,460 | $169,460 | $46.78 | | |
| CWWGEN | CITY OF WW 631 | 1.6100204973 | $169,460 | $169,460 | $272.83 | | |
| CWWRFD | CITY OF WALLA WALLA REFUND 631 | 0.0000000000 | $169,460 | $169,460 | $0.00 | | |
| | Total Tax Rate: | 8.7973694689 | | | | | |
| | | | | Taxes w/Current Exemptions: | $1,490.81 | | |
| | | | | Taxes w/o Exemptions: | $1,490.81 | | |
Improvement / Building
| Improvement #1: | RESIDENTIAL | State Code: | 11 | 888.0 sqft | Value: | $134,810 |
| Exterior Wall: | SIDING | Foundation: | POST & PIER | | Heating/Cooling: | FLOOR FURNACE | Number of Bathrooms: | 1 | | Number of Bedrooms: | 2 | Plumbing: | 6 | | Roof Covering: | COMP SHINGLE |   |   |
|
| | Type | Description | Class CD | Sub Class CD | Year Built | Area |
| | MA | Main Area | 1 | 20 | 1896 | 888.0 |
| | SI1 | SITE IMPROVEMENT | 1 | 20 | 1896 | 1.0 |
| | OPS | OPEN PORCH W/STEPS | 1 | 20 | 1896 | 60.0 |
| | PRC | PORCH W STEPS, ROOF,CEILED | 1 | 20 | 1896 | 70.0 |
| | CELL | CELLAR-NO VALUE | 1 | 20 | 1896 | 192.0 |
Sketch
Property Image
Land
| 1 | RES 1 | Converted: Residential | 0.1515 | 6600.00 | 0.00 | 0.00 | 1.00 | $34,650 | $0 |
Roll Value History
| 2025 | N/A | N/A | N/A | N/A | N/A |
| 2024 | $186,200 | $59,400 | $0 | $245,600 | $245,600 |
| 2023 | $134,810 | $34,650 | $0 | $169,460 | $169,460 |
| 2022 | $117,220 | $34,650 | $0 | $151,870 | $151,870 |
| 2021 | $65,120 | $34,650 | $0 | $99,770 | $99,770 |
| 2020 | $54,270 | $34,650 | $0 | $88,920 | $88,920 |
| 2019 | $54,270 | $34,650 | $0 | $88,920 | $88,920 |
| 2018 | $54,270 | $34,650 | $0 | $88,920 | $88,920 |
| 2017 | $27,560 | $39,600 | $0 | $67,160 | $67,160 |
| 2016 | $26,250 | $39,600 | $0 | $65,850 | $65,850 |
| 2015 | $26,250 | $39,600 | $0 | $65,850 | $65,850 |
| 2014 | $21,000 | $39,600 | $0 | $60,600 | $60,600 |
| 2013 | $21,000 | $39,600 | $0 | $60,600 | $60,600 |
| 2012 | $21,000 | $39,600 | $0 | $0 | $0 |
| 2011 | $41,200 | $39,600 | $0 | $0 | $0 |
| 2010 | $41,200 | $39,600 | $0 | $0 | $0 |
| 2009 | $55,400 | $39,600 | $0 | $0 | $0 |
| 2008 | $55,400 | $39,600 | $0 | $0 | $0 |
| 2007 | $42,500 | $13,200 | $0 | $0 | $0 |
| 2006 | $42,500 | $13,200 | $0 | $0 | $0 |
Deed and Sales History
| 1 | 06/24/2014 | SWD | STATUTORY WARRANTY DEED | SHAW TOM & LIBBY | ORCHARD HENDERSON & JOELEEN M | | | $70,000.00 | 126121 | 2014-04346 |
| 2 | 08/17/2007 | WARRANTY D | WARRANTY DEED | ORCHARD, WILLIS & SHARON (HEIR | SHAW, TOM & LIBBY | | | $95,000.00 | 113532 | 2007-09623 |
Payout Agreement
| No payout information available.. |