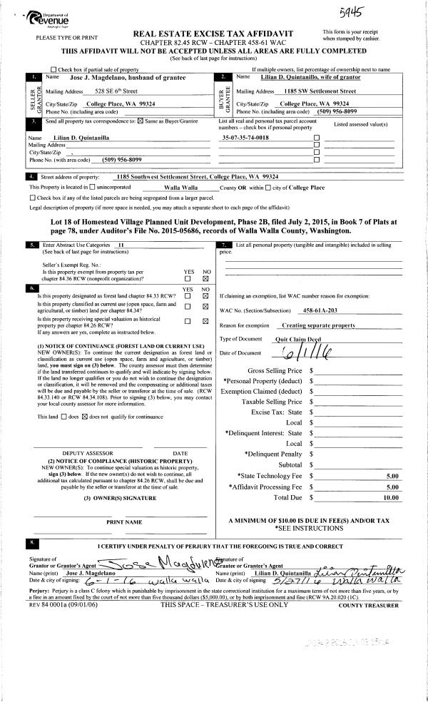
Property
Account |
| Property ID: | 10853 | Abbreviated Legal Description: | HENDERSON TAX 5 BLK Y; PLUS VAC 10' STRIP TO E |
| Parcel Number: | 360729684305 | Agent Code: | |
| Type: | Real | | |
| Tax Area: | 1 - OL-140-F | Land Use Code | 11 |
| Open Space: | N | DFL | N |
| Historic Property: | N | Remodel Property: | N |
| Multi-Family Redevelopment: | N | | |
| Township: | 7 | Section: | 29 |
| Range: | 36 |
Location |
| Address: | 940 S 3RD AVE WA 99362 | Mapsco: | |
| Neighborhood: | Fair Res | Map ID: | |
| Neighborhood CD: | 612011 |
Owner |
| Name: | AGUIRRE MIRIEL | Owner ID: | 58857 |
| Mailing Address: | 4581 SE WHIPPLE AVE PORTLAND, OR 97267-4920 | % Ownership: | 100.0000000000% |
| | | Exemptions: | |
Taxes and Assessment Details
Values
| (+) Improvement Homesite Value: | + | $0 | |
| (+) Improvement Non-Homesite Value: | + | $193,950 | |
| (+) Land Homesite Value: | + | $0 | |
| (+) Land Non-Homesite Value: | + | $30,270 | |
| (+) Curr Use (HS): | + | $0 | $0 |
| (+) Curr Use (NHS): | + | $0 | $0 |
| | | -------------------------- | |
| (=) Market Value: | = | $224,220 | |
| (–) Productivity Loss: | – | $0 | |
| | | -------------------------- | |
| (=) Subtotal: | = | $224,220 | |
| (+) Senior Appraised Value: | + | $0 | |
| (+) Non-Senior Appraised Value: | + | $224,220 | |
| | | -------------------------- | |
| (=) Total Appraised Value: | = | $224,220 | |
| (–) Senior Exemption Loss: | – | $0 | |
| (–) Exemption Loss: | – | $0 | |
| | | -------------------------- | |
| (=) Taxable Value: | = | $224,220 | |
Taxing Jurisdiction
| Owner: | AGUIRRE MIRIEL | | |
| % Ownership: | 100.0000000000% | | |
| Total Value: | $224,220 | | |
| Tax Area: | 1 - OL-140-F |
| CERFD | CURRENT EXPENSE REFUND 010 | 0.0000000000 | $224,220 | $224,220 | $0.00 | | |
| CURREXP | CURRENT EXPENSE 010 | 1.0175366760 | $224,220 | $224,220 | $228.15 | | |
| HUMNSERV | HUMAN SERVICES 119 | 0.0250000000 | $224,220 | $224,220 | $5.61 | | |
| SLDREL | SOLDIERS RELIEF 121 | 0.0155990005 | $224,220 | $224,220 | $3.50 | | |
| EMERGSER | EMS 147 | 0.3792580840 | $224,220 | $224,220 | $85.04 | | |
| EMSRFD | EMS REFUND 147 | 0.0000000000 | $224,220 | $224,220 | $0.00 | | |
| PORTRFD | PORT REFUND 640 | 0.0000000000 | $224,220 | $224,220 | $0.00 | | |
| PORTWWGEN | PORT OF WW 640 | 0.2460186015 | $224,220 | $224,220 | $55.16 | | |
| SD140BOND | SD #140 BOND 764 | 0.8342371393 | $224,220 | $224,220 | $187.05 | | |
| SD140GEN | SD #140 GENERAL 760 | 2.0646500647 | $224,220 | $224,220 | $462.94 | | |
| ST2 | STATE SCHOOL PART 2 600 | 0.8131451643 | $224,220 | $224,220 | $182.32 | | |
| STATESCHL | STATE SCHOOL 600 | 1.5158548041 | $224,220 | $224,220 | $339.88 | | |
| STREFUND | STATE REFUND LEVY 603 | 0.0000000000 | $224,220 | $224,220 | $0.00 | | |
| CWWBOND | C OF WW BOND 643 | 0.2760494372 | $224,220 | $224,220 | $61.90 | | |
| CWWGEN | CITY OF WW 631 | 1.6100204973 | $224,220 | $224,220 | $361.00 | | |
| CWWRFD | CITY OF WALLA WALLA REFUND 631 | 0.0000000000 | $224,220 | $224,220 | $0.00 | | |
| | Total Tax Rate: | 8.7973694689 | | | | | |
| | | | | Taxes w/Current Exemptions: | $1,972.55 | | |
| | | | | Taxes w/o Exemptions: | $1,972.55 | | |
Improvement / Building
| Improvement #1: | RESIDENTIAL | State Code: | 11 | 870.0 sqft | Value: | $193,950 |
| Exterior Wall: | SIDING | Heating/Cooling: | BASEBOARD ELECTRIC | | Number of Bathrooms: | 1 | Number of Bedrooms: | 2 | | Plumbing: | 7 | Roof Covering: | COMP SHINGLE |
|
| | Type | Description | Class CD | Sub Class CD | Year Built | Area |
| | MA | Main Area | 1 | 25 | 1944 | 870.0 |
| | SI1 | SITE IMPROVEMENT | 1 | 25 | 1944 | 1.0 |
| | CPCS | CARPORT/SHED OR FLAT ROOF | 1 | 25 | 2006 | 140.0 |
| | RPS | PORCH W/STEPS,ROOF | 1 | 25 | 1944 | 50.0 |
Sketch
Property Image
Land
| 1 | RES 1 | Converted: Residential | 0.0869 | 3784.00 | 0.00 | 0.00 | 1.00 | $30,270 | $0 |
Roll Value History
| 2025 | N/A | N/A | N/A | N/A | N/A |
| 2024 | $193,950 | $30,270 | $0 | $224,220 | $224,220 |
| 2023 | $193,950 | $30,270 | $0 | $224,220 | $224,220 |
| 2022 | $193,950 | $23,650 | $0 | $217,600 | $217,600 |
| 2021 | $129,300 | $23,650 | $0 | $152,950 | $152,950 |
| 2020 | $107,750 | $23,650 | $0 | $131,400 | $131,400 |
| 2019 | $107,750 | $23,650 | $0 | $131,400 | $131,400 |
| 2018 | $101,650 | $22,700 | $0 | $124,350 | $124,350 |
| 2017 | $96,810 | $22,700 | $0 | $119,510 | $119,510 |
| 2016 | $84,180 | $22,700 | $0 | $106,880 | $106,880 |
| 2015 | $84,180 | $22,700 | $0 | $106,880 | $106,880 |
| 2014 | $73,200 | $22,700 | $0 | $95,900 | $95,900 |
| 2013 | $73,200 | $22,700 | $0 | $95,900 | $95,900 |
| 2012 | $85,900 | $22,700 | $0 | $0 | $0 |
| 2011 | $85,900 | $22,700 | $0 | $0 | $0 |
| 2010 | $85,900 | $22,700 | $0 | $0 | $0 |
| 2009 | $98,000 | $22,700 | $0 | $0 | $0 |
| 2008 | $98,000 | $22,700 | $0 | $0 | $0 |
| 2007 | $44,700 | $7,600 | $0 | $0 | $0 |
| 2006 | $44,700 | $7,600 | $0 | $0 | $0 |
Deed and Sales History
| 1 | 12/18/2019 | SWD | STATUTORY WARRANTY DEED | SAMS BRENTIN S | AGUIRRE MIRIEL | | | $145,000.00 | 138275 | 2019-10502 |
| 2 | 10/27/2017 | QCD | QUIT CLAIM DEED | FOLEY-HUTSELL KATELINN C | SAMS BRENTIN S | | | | 133519 | 2017-08660 |
| 3 | 10/27/2017 | SWD | STATUTORY WARRANTY DEED | BABBITT TIM & SALLY | SAMS BRENTIN S | | | $132,500.00 | 133518 | 2017-08659 |
| 4 | 07/08/2005 | WARRANTY D | WARRANTY DEED | BREHM, GORDON D | BABBITT, TIM & SALLY | | | $75,000.00 | 107913 | 2005--08290 |
| 5 | 05/06/1981 | QCD | QUIT CLAIM DEED | | | | | $0.00 | 68424 | 1278-103408 |
Payout Agreement
| No payout information available.. |