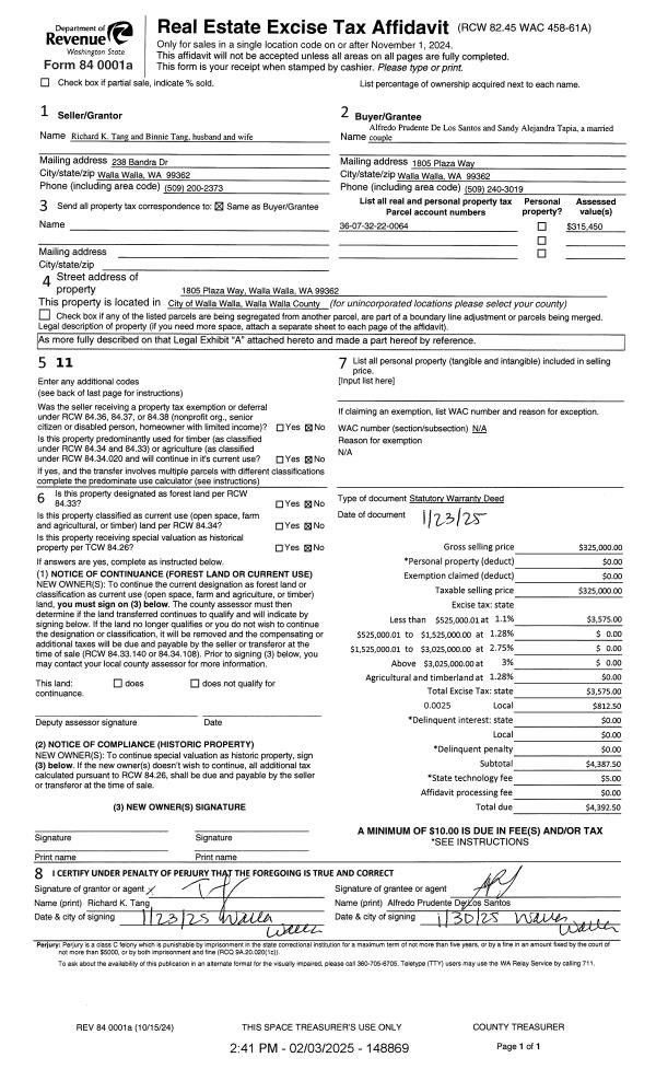
Property
Account |
| Property ID: | 10851 | Abbreviated Legal Description: | HENDERSON TAX 1 BLK 42 |
| Parcel Number: | 360729684201 | Agent Code: | |
| Type: | Real | | |
| Tax Area: | 1 - OL-140-F | Land Use Code | 11 |
| Open Space: | N | DFL | N |
| Historic Property: | N | Remodel Property: | N |
| Multi-Family Redevelopment: | N | | |
| Township: | 7 | Section: | 29 |
| Range: | 36 |
Location |
| Address: | 112 WILLARD ST WA 99362 | Mapsco: | |
| Neighborhood: | Fair Res | Map ID: | |
| Neighborhood CD: | 612011 |
Owner |
| Name: | SANDOVAL FRANCISCO | Owner ID: | 67161 |
| Mailing Address: | 112 WILLARD ST WALLA WALLA, WA 99362 | % Ownership: | 100.0000000000% |
| | | Exemptions: | |
Taxes and Assessment Details
Values
| (+) Improvement Homesite Value: | + | $0 | |
| (+) Improvement Non-Homesite Value: | + | $226,290 | |
| (+) Land Homesite Value: | + | $0 | |
| (+) Land Non-Homesite Value: | + | $44,930 | |
| (+) Curr Use (HS): | + | $0 | $0 |
| (+) Curr Use (NHS): | + | $0 | $0 |
| | | -------------------------- | |
| (=) Market Value: | = | $271,220 | |
| (–) Productivity Loss: | – | $0 | |
| | | -------------------------- | |
| (=) Subtotal: | = | $271,220 | |
| (+) Senior Appraised Value: | + | $0 | |
| (+) Non-Senior Appraised Value: | + | $271,220 | |
| | | -------------------------- | |
| (=) Total Appraised Value: | = | $271,220 | |
| (–) Senior Exemption Loss: | – | $0 | |
| (–) Exemption Loss: | – | $0 | |
| | | -------------------------- | |
| (=) Taxable Value: | = | $271,220 | |
Taxing Jurisdiction
| Owner: | SANDOVAL FRANCISCO | | |
| % Ownership: | 100.0000000000% | | |
| Total Value: | $271,220 | | |
| Tax Area: | 1 - OL-140-F |
| CERFD | CURRENT EXPENSE REFUND 010 | 0.0000000000 | $271,220 | $271,220 | $0.00 | | |
| CURREXP | CURRENT EXPENSE 010 | 1.0175366760 | $271,220 | $271,220 | $275.98 | | |
| HUMNSERV | HUMAN SERVICES 119 | 0.0250000000 | $271,220 | $271,220 | $6.78 | | |
| SLDREL | SOLDIERS RELIEF 121 | 0.0155990005 | $271,220 | $271,220 | $4.23 | | |
| EMERGSER | EMS 147 | 0.3792580840 | $271,220 | $271,220 | $102.86 | | |
| EMSRFD | EMS REFUND 147 | 0.0000000000 | $271,220 | $271,220 | $0.00 | | |
| PORTRFD | PORT REFUND 640 | 0.0000000000 | $271,220 | $271,220 | $0.00 | | |
| PORTWWGEN | PORT OF WW 640 | 0.2460186015 | $271,220 | $271,220 | $66.73 | | |
| SD140BOND | SD #140 BOND 764 | 0.8342371393 | $271,220 | $271,220 | $226.26 | | |
| SD140GEN | SD #140 GENERAL 760 | 2.0646500647 | $271,220 | $271,220 | $559.97 | | |
| ST2 | STATE SCHOOL PART 2 600 | 0.8131451643 | $271,220 | $271,220 | $220.54 | | |
| STATESCHL | STATE SCHOOL 600 | 1.5158548041 | $271,220 | $271,220 | $411.13 | | |
| STREFUND | STATE REFUND LEVY 603 | 0.0000000000 | $271,220 | $271,220 | $0.00 | | |
| CWWBOND | C OF WW BOND 643 | 0.2760494372 | $271,220 | $271,220 | $74.87 | | |
| CWWGEN | CITY OF WW 631 | 1.6100204973 | $271,220 | $271,220 | $436.67 | | |
| CWWRFD | CITY OF WALLA WALLA REFUND 631 | 0.0000000000 | $271,220 | $271,220 | $0.00 | | |
| | Total Tax Rate: | 8.7973694689 | | | | | |
| | | | | Taxes w/Current Exemptions: | $2,386.02 | | |
| | | | | Taxes w/o Exemptions: | $2,386.02 | | |
Improvement / Building
| Improvement #1: | RESIDENTIAL | State Code: | 11 | 1266.0 sqft | Value: | $226,290 |
| Exterior Wall: | PLYWOOD | Heating/Cooling: | WARM & COOLED AIR | | Number of Bathrooms: | 2 | Number of Bedrooms: | 3 | | Plumbing: | 9 | Roof Covering: | COMP ROLL |
|
| | Type | Description | Class CD | Sub Class CD | Year Built | Area |
| | MA | Main Area | 1 | 25 | 1972 | 1266.0 |
| | SI1 | SITE IMPROVEMENT | 1 | 25 | 1972 | 1.0 |
| | CPCS | CARPORT/SHED OR FLAT ROOF | 1 | 25 | 1972 | 280.0 |
| | RPO | OPEN PORCH W/ROOF | 1 | 25 | 1972 | 192.0 |
| | UTST | Utility Storage Shed | 1 | 25 | 2011 | 98.0 |
| | RPO | OPEN PORCH W/ROOF | 1 | 25 | 1972 | 70.0 |
Sketch
Property Image
Land
| 1 | RES 1 | Converted: Residential | 0.1289 | 5616.00 | 0.00 | 0.00 | 1.00 | $44,930 | $0 |
Roll Value History
| 2025 | N/A | N/A | N/A | N/A | N/A |
| 2024 | $226,290 | $44,930 | $0 | $271,220 | $271,220 |
| 2023 | $226,290 | $44,930 | $0 | $271,220 | $271,220 |
| 2022 | $226,290 | $35,100 | $0 | $261,390 | $261,390 |
| 2021 | $174,070 | $35,100 | $0 | $209,170 | $209,170 |
| 2020 | $133,900 | $35,100 | $0 | $169,000 | $169,000 |
| 2019 | $133,900 | $35,100 | $0 | $169,000 | $169,000 |
| 2018 | $120,390 | $33,700 | $0 | $154,090 | $154,090 |
| 2017 | $114,660 | $33,700 | $0 | $148,360 | $148,360 |
| 2016 | $95,550 | $33,700 | $0 | $129,250 | $129,250 |
| 2015 | $95,550 | $33,700 | $0 | $129,250 | $129,250 |
| 2014 | $91,000 | $33,700 | $0 | $124,700 | $124,700 |
| 2013 | $91,000 | $33,700 | $0 | $124,700 | $124,700 |
| 2012 | $91,000 | $33,700 | $0 | $0 | $0 |
| 2011 | $91,000 | $33,700 | $0 | $0 | $0 |
| 2010 | $91,000 | $33,700 | $0 | $0 | $0 |
| 2009 | $104,900 | $33,700 | $0 | $0 | $0 |
| 2008 | $104,900 | $33,700 | $0 | $0 | $0 |
| 2007 | $69,800 | $11,200 | $0 | $0 | $0 |
| 2006 | $69,800 | $11,200 | $0 | $0 | $0 |
Deed and Sales History
| 1 | 04/24/2020 | QCD | QUIT CLAIM DEED | SANDOVAL FRANCISCO & VELIA | SANDOVAL FRANCISCO | | | $0.00 | 139113 | 2020-04254 |
| 2 | 05/14/2002 | WARRANTY D | WARRANTY DEED | | | | | $91,000.00 | 99494 | 2002-0005658 |
Payout Agreement
| No payout information available.. |