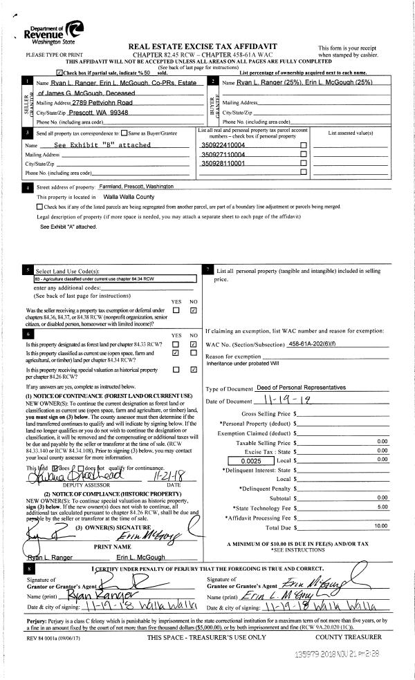
Property
Account |
| Property ID: | 10770 | Abbreviated Legal Description: | HENDERSONS TAX 1 BLK 1 |
| Parcel Number: | 360729680116 | Agent Code: | |
| Type: | Real | | |
| Tax Area: | 1 - OL-140-F | Land Use Code | 11 |
| Open Space: | N | DFL | N |
| Historic Property: | N | Remodel Property: | N |
| Multi-Family Redevelopment: | N | | |
| Township: | 7 | Section: | 29 |
| Range: | 36 |
Location |
| Address: | 637 MILITARY ST WA 99362 | Mapsco: | |
| Neighborhood: | Fair Res | Map ID: | |
| Neighborhood CD: | 612011 |
Owner |
| Name: | SANDOVAL CONNIE M | Owner ID: | 63539 |
| Mailing Address: | 119 SADDLEBROOK DR SAN ANTONIO, TX 78245 | % Ownership: | 100.0000000000% |
| | | Exemptions: | |
Taxes and Assessment Details
Values
| (+) Improvement Homesite Value: | + | $0 | |
| (+) Improvement Non-Homesite Value: | + | $195,260 | |
| (+) Land Homesite Value: | + | $0 | |
| (+) Land Non-Homesite Value: | + | $35,280 | |
| (+) Curr Use (HS): | + | $0 | $0 |
| (+) Curr Use (NHS): | + | $0 | $0 |
| | | -------------------------- | |
| (=) Market Value: | = | $230,540 | |
| (–) Productivity Loss: | – | $0 | |
| | | -------------------------- | |
| (=) Subtotal: | = | $230,540 | |
| (+) Senior Appraised Value: | + | $0 | |
| (+) Non-Senior Appraised Value: | + | $230,540 | |
| | | -------------------------- | |
| (=) Total Appraised Value: | = | $230,540 | |
| (–) Senior Exemption Loss: | – | $0 | |
| (–) Exemption Loss: | – | $0 | |
| | | -------------------------- | |
| (=) Taxable Value: | = | $230,540 | |
Taxing Jurisdiction
| Owner: | SANDOVAL CONNIE M | | |
| % Ownership: | 100.0000000000% | | |
| Total Value: | $230,540 | | |
| Tax Area: | 1 - OL-140-F |
| CERFD | CURRENT EXPENSE REFUND 010 | 0.0000000000 | $230,540 | $230,540 | $0.00 | | |
| CURREXP | CURRENT EXPENSE 010 | 1.0175366760 | $230,540 | $230,540 | $234.58 | | |
| HUMNSERV | HUMAN SERVICES 119 | 0.0250000000 | $230,540 | $230,540 | $5.76 | | |
| SLDREL | SOLDIERS RELIEF 121 | 0.0155990005 | $230,540 | $230,540 | $3.60 | | |
| EMERGSER | EMS 147 | 0.3792580840 | $230,540 | $230,540 | $87.43 | | |
| EMSRFD | EMS REFUND 147 | 0.0000000000 | $230,540 | $230,540 | $0.00 | | |
| PORTRFD | PORT REFUND 640 | 0.0000000000 | $230,540 | $230,540 | $0.00 | | |
| PORTWWGEN | PORT OF WW 640 | 0.2460186015 | $230,540 | $230,540 | $56.72 | | |
| SD140BOND | SD #140 BOND 764 | 0.8342371393 | $230,540 | $230,540 | $192.33 | | |
| SD140GEN | SD #140 GENERAL 760 | 2.0646500647 | $230,540 | $230,540 | $475.98 | | |
| ST2 | STATE SCHOOL PART 2 600 | 0.8131451643 | $230,540 | $230,540 | $187.46 | | |
| STATESCHL | STATE SCHOOL 600 | 1.5158548041 | $230,540 | $230,540 | $349.47 | | |
| STREFUND | STATE REFUND LEVY 603 | 0.0000000000 | $230,540 | $230,540 | $0.00 | | |
| CWWBOND | C OF WW BOND 643 | 0.2760494372 | $230,540 | $230,540 | $63.64 | | |
| CWWGEN | CITY OF WW 631 | 1.6100204973 | $230,540 | $230,540 | $371.17 | | |
| CWWRFD | CITY OF WALLA WALLA REFUND 631 | 0.0000000000 | $230,540 | $230,540 | $0.00 | | |
| | Total Tax Rate: | 8.7973694689 | | | | | |
| | | | | Taxes w/Current Exemptions: | $2,028.14 | | |
| | | | | Taxes w/o Exemptions: | $2,028.14 | | |
Improvement / Building
| Improvement #1: | RESIDENTIAL | State Code: | 11 | 896.0 sqft | Value: | $195,260 |
| Exterior Wall: | STUCCO | Heating/Cooling: | FORCED AIR | | Number of Bathrooms: | 1 | Number of Bedrooms: | 2 | | Plumbing: | 7 | Roof Covering: | COMP SHINGLE |
|
| | Type | Description | Class CD | Sub Class CD | Year Built | Area |
| | MA | Main Area | 1 | 25 | 1931 | 896.0 |
| | SI1 | SITE IMPROVEMENT | 1 | 25 | 1931 | 1.0 |
| | DTG | Detached Garage | 1 | 20 | 1931 | 374.0 |
| | SWP | Solid Wall Porch | 1 | 25 | 1931 | 96.0 |
| | PRC | PORCH W STEPS, ROOF,CEILED | 1 | 25 | 1931 | 24.0 |
Sketch
Property Image
Land
| 1 | RES 1 | Converted: Residential | 0.1012 | 4410.00 | 0.00 | 0.00 | 1.00 | $35,280 | $0 |
Roll Value History
| 2025 | N/A | N/A | N/A | N/A | N/A |
| 2024 | $195,260 | $35,280 | $0 | $230,540 | $230,540 |
| 2023 | $195,260 | $35,280 | $0 | $230,540 | $230,540 |
| 2022 | $195,260 | $27,560 | $0 | $222,820 | $222,820 |
| 2021 | $130,180 | $27,560 | $0 | $157,740 | $157,740 |
| 2020 | $104,140 | $27,560 | $0 | $131,700 | $131,700 |
| 2019 | $104,140 | $27,560 | $0 | $131,700 | $131,700 |
| 2018 | $100,290 | $26,500 | $0 | $126,790 | $126,790 |
| 2017 | $95,510 | $26,500 | $0 | $122,010 | $122,010 |
| 2016 | $90,970 | $26,500 | $0 | $117,470 | $117,470 |
| 2015 | $90,970 | $26,500 | $0 | $117,470 | $117,470 |
| 2014 | $79,100 | $26,500 | $0 | $105,600 | $105,600 |
| 2013 | $79,100 | $26,500 | $0 | $105,600 | $105,600 |
| 2012 | $79,100 | $26,500 | $0 | $0 | $0 |
| 2011 | $69,500 | $26,500 | $0 | $0 | $0 |
| 2010 | $86,400 | $26,500 | $0 | $0 | $0 |
| 2009 | $98,900 | $26,500 | $0 | $0 | $0 |
| 2008 | $98,900 | $26,500 | $0 | $0 | $0 |
| 2007 | $49,800 | $8,800 | $0 | $0 | $0 |
| 2006 | $49,800 | $8,800 | $0 | $0 | $0 |
Deed and Sales History
| 1 | 07/26/2018 | QCD | QUIT CLAIM DEED | SANDOVAL CONNIE M | SANDOVAL CONNIE M | | | $0.00 | 135194 | 2018-06056 |
| 2 | 11/29/1995 | WARRANTY D | WARRANTY DEED | | | | | $19,500.00 | 85169 | 2369-511475 |
Payout Agreement
| No payout information available.. |