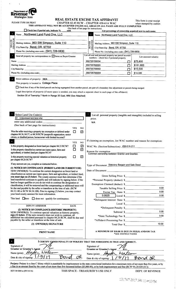
Property
Account |
| Property ID: | 10744 | Abbreviated Legal Description: | FRISCO LOT 3 |
| Parcel Number: | 360729660003 | Agent Code: | |
| Type: | Real | | |
| Tax Area: | 1 - OL-140-F | Land Use Code | 11 |
| Open Space: | N | DFL | N |
| Historic Property: | N | Remodel Property: | N |
| Multi-Family Redevelopment: | N | | |
| Township: | 7 | Section: | 29 |
| Range: | 36 |
Location |
| Address: | 570 S 1ST AVE WA 99362 | Mapsco: | |
| Neighborhood: | G-SFR | Map ID: | |
| Neighborhood CD: | 514011 |
Owner |
| Name: | LUCE DANIEL R | Owner ID: | 65813 |
| Mailing Address: | 389 RUSSET RD WALLA WALLA, WA 99362 | % Ownership: | 100.0000000000% |
| | | Exemptions: | |
Taxes and Assessment Details
Values
| (+) Improvement Homesite Value: | + | $0 | |
| (+) Improvement Non-Homesite Value: | + | $520,670 | |
| (+) Land Homesite Value: | + | $0 | |
| (+) Land Non-Homesite Value: | + | $43,500 | |
| (+) Curr Use (HS): | + | $0 | $0 |
| (+) Curr Use (NHS): | + | $0 | $0 |
| | | -------------------------- | |
| (=) Market Value: | = | $564,170 | |
| (–) Productivity Loss: | – | $0 | |
| | | -------------------------- | |
| (=) Subtotal: | = | $564,170 | |
| (+) Senior Appraised Value: | + | $0 | |
| (+) Non-Senior Appraised Value: | + | $564,170 | |
| | | -------------------------- | |
| (=) Total Appraised Value: | = | $564,170 | |
| (–) Senior Exemption Loss: | – | $0 | |
| (–) Exemption Loss: | – | $0 | |
| | | -------------------------- | |
| (=) Taxable Value: | = | $564,170 | |
Taxing Jurisdiction
| Owner: | LUCE DANIEL R | | |
| % Ownership: | 100.0000000000% | | |
| Total Value: | $564,170 | | |
| Tax Area: | 1 - OL-140-F |
| CERFD | CURRENT EXPENSE REFUND 010 | 0.0000000000 | $564,170 | $564,170 | $0.00 | | |
| CURREXP | CURRENT EXPENSE 010 | 1.0175366760 | $564,170 | $564,170 | $574.06 | | |
| HUMNSERV | HUMAN SERVICES 119 | 0.0250000000 | $564,170 | $564,170 | $14.10 | | |
| SLDREL | SOLDIERS RELIEF 121 | 0.0155990005 | $564,170 | $564,170 | $8.80 | | |
| EMERGSER | EMS 147 | 0.3792580840 | $564,170 | $564,170 | $213.97 | | |
| EMSRFD | EMS REFUND 147 | 0.0000000000 | $564,170 | $564,170 | $0.00 | | |
| PORTRFD | PORT REFUND 640 | 0.0000000000 | $564,170 | $564,170 | $0.00 | | |
| PORTWWGEN | PORT OF WW 640 | 0.2460186015 | $564,170 | $564,170 | $138.80 | | |
| SD140BOND | SD #140 BOND 764 | 0.8342371393 | $564,170 | $564,170 | $470.65 | | |
| SD140GEN | SD #140 GENERAL 760 | 2.0646500647 | $564,170 | $564,170 | $1,164.81 | | |
| ST2 | STATE SCHOOL PART 2 600 | 0.8131451643 | $564,170 | $564,170 | $458.75 | | |
| STATESCHL | STATE SCHOOL 600 | 1.5158548041 | $564,170 | $564,170 | $855.20 | | |
| STREFUND | STATE REFUND LEVY 603 | 0.0000000000 | $564,170 | $564,170 | $0.00 | | |
| CWWBOND | C OF WW BOND 643 | 0.2760494372 | $564,170 | $564,170 | $155.74 | | |
| CWWGEN | CITY OF WW 631 | 1.6100204973 | $564,170 | $564,170 | $908.33 | | |
| CWWRFD | CITY OF WALLA WALLA REFUND 631 | 0.0000000000 | $564,170 | $564,170 | $0.00 | | |
| | Total Tax Rate: | 8.7973694689 | | | | | |
| | | | | Taxes w/Current Exemptions: | $4,963.21 | | |
| | | | | Taxes w/o Exemptions: | $4,963.21 | | |
Improvement / Building
| Improvement #1: | RESIDENTIAL | State Code: | 11 | 1703.0 sqft | Value: | $520,670 |
| Exterior Wall: | SIDING | Heating/Cooling: | HEAT PUMP | | Number of Bathrooms: | 4 | Number of Bedrooms: | 4 | | Plumbing: | 20 | Roof Covering: | COMP SHINGLE |
|
| | Type | Description | Class CD | Sub Class CD | Year Built | Area |
| | MA | Main Area | 2 | 45 | 1908 | 1703.0 |
| | UPFL | Upper Floor (included in main area) | 2 | 45 | 1908 | 819.0 |
| | SI1 | SITE IMPROVEMENT | 2 | 45 | 1908 | 7.0 |
| | BASE | BASEMENT | 2 | 45 | 1908 | 884.0 |
| | BPF | BASEMENT -PARTITIONED FINISH | 2 | 45 | 1908 | 884.0 |
| | S2F | Single 2S Fireplace | 2 | 45 | 1908 | 1.0 |
| | RCD | WOOD DECK W/ROOF, CEILED | 2 | 45 | 1908 | 208.0 |
| | CPC | COVERED CARPORT/PATIO | 2 | 45 | 1908 | 240.0 |
| | DTG | Detached Garage | 2 | 45 | 1908 | 460.0 |
| | OUT | OUTSIDE BASEMENT ENTRY | 2 | 35 | 1908 | 1.0 |
| | WOD | Wood Deck | 2 | 45 | 1908 | 120.0 |
Sketch
Property Image
Land
| 1 | RES 1 | Converted: Residential | 0.1377 | 6000.00 | 0.00 | 0.00 | 1.00 | $43,500 | $0 |
Roll Value History
| 2025 | N/A | N/A | N/A | N/A | N/A |
| 2024 | $713,100 | $66,000 | $0 | $779,100 | $779,100 |
| 2023 | $520,670 | $43,500 | $0 | $564,170 | $564,170 |
| 2022 | $268,410 | $43,500 | $0 | $311,910 | $311,910 |
| 2021 | $206,470 | $43,500 | $0 | $249,970 | $249,970 |
| 2020 | $172,060 | $43,500 | $0 | $215,560 | $215,560 |
| 2019 | $172,060 | $43,500 | $0 | $215,560 | $215,560 |
| 2018 | $172,060 | $43,500 | $0 | $215,560 | $215,560 |
| 2017 | $146,850 | $24,000 | $0 | $170,850 | $170,850 |
| 2016 | $133,500 | $24,000 | $0 | $157,500 | $157,500 |
| 2015 | $133,500 | $24,000 | $0 | $157,500 | $157,500 |
| 2014 | $133,500 | $24,000 | $0 | $157,500 | $157,500 |
| 2013 | $133,500 | $24,000 | $0 | $157,500 | $157,500 |
| 2012 | $133,500 | $24,000 | $0 | $0 | $0 |
| 2011 | $133,500 | $24,000 | $0 | $0 | $0 |
| 2010 | $133,500 | $24,000 | $0 | $0 | $0 |
| 2009 | $151,000 | $24,000 | $0 | $0 | $0 |
| 2008 | $139,000 | $36,000 | $0 | $0 | $0 |
| 2007 | $104,900 | $18,000 | $0 | $0 | $0 |
| 2006 | $104,900 | $18,000 | $0 | $0 | $0 |
Deed and Sales History
| 1 | 11/09/2023 | SWD | STATUTORY WARRANTY DEED | LUCE DANIEL R | TJERANDSEN KARL S | | | $810,000.00 | 146771 | 2023-06586 |
| 2 | 08/20/2019 | QCD | QUIT CLAIM DEED | LUCE JULIE M | LUCE DANIEL R | | | $0.00 | 137524 | 2019-06346 |
| 3 | 08/20/2019 | SWD | STATUTORY WARRANTY DEED | PARKCAM LLC | LUCE DANIEL R | | | $215,000.00 | 137523 | 2019-06345 |
| 4 | 04/05/2019 | SWD | STATUTORY WARRANTY DEED | WORTHINGTON ALBERT L | PARKCAM LLC | | | $163,827.00 | 136629 | 2019-02143 |
| 5 | 04/23/1971 | WARRANTY D | WARRANTY DEED | | | | | $15,950.00 | 0 | 3400-513708 |
Payout Agreement
| No payout information available.. |