Property
Account |
| Property ID: | 10687 | Abbreviated Legal Description: | FAIRFIELD S 1/2 OF LOTS 1 AND 2 BLK 6 |
| Parcel Number: | 360729610617 | Agent Code: | |
| Type: | Real | | |
| Tax Area: | 1 - OL-140-F | Land Use Code | 11 |
| Open Space: | N | DFL | N |
| Historic Property: | N | Remodel Property: | N |
| Multi-Family Redevelopment: | N | | |
| Township: | 7 | Section: | 29 |
| Range: | 36 |
Location |
| Address: | 1308 S 4TH AVE WA 99362 | Mapsco: | |
| Neighborhood: | Fair Res | Map ID: | |
| Neighborhood CD: | 612011 |
Owner |
| Name: | AVALOS FELIPE | Owner ID: | 56233 |
| Mailing Address: | ROSE E AMADOR 1308 SOUTH 4TH AVE WALLA WALLA, WA 99362 | % Ownership: | 100.0000000000% |
| | | Exemptions: | |
Taxes and Assessment Details
Values
| (+) Improvement Homesite Value: | + | $0 | |
| (+) Improvement Non-Homesite Value: | + | $115,510 | |
| (+) Land Homesite Value: | + | $0 | |
| (+) Land Non-Homesite Value: | + | $58,910 | |
| (+) Curr Use (HS): | + | $0 | $0 |
| (+) Curr Use (NHS): | + | $0 | $0 |
| | | -------------------------- | |
| (=) Market Value: | = | $174,420 | |
| (–) Productivity Loss: | – | $0 | |
| | | -------------------------- | |
| (=) Subtotal: | = | $174,420 | |
| (+) Senior Appraised Value: | + | $0 | |
| (+) Non-Senior Appraised Value: | + | $174,420 | |
| | | -------------------------- | |
| (=) Total Appraised Value: | = | $174,420 | |
| (–) Senior Exemption Loss: | – | $0 | |
| (–) Exemption Loss: | – | $0 | |
| | | -------------------------- | |
| (=) Taxable Value: | = | $174,420 | |
Taxing Jurisdiction
| Owner: | AVALOS FELIPE | | |
| % Ownership: | 100.0000000000% | | |
| Total Value: | $174,420 | | |
| Tax Area: | 1 - OL-140-F |
| CERFD | CURRENT EXPENSE REFUND 010 | 0.0000000000 | $174,420 | $174,420 | $0.00 | | |
| CURREXP | CURRENT EXPENSE 010 | 1.0175366760 | $174,420 | $174,420 | $177.48 | | |
| HUMNSERV | HUMAN SERVICES 119 | 0.0250000000 | $174,420 | $174,420 | $4.36 | | |
| SLDREL | SOLDIERS RELIEF 121 | 0.0155990005 | $174,420 | $174,420 | $2.72 | | |
| EMERGSER | EMS 147 | 0.3792580840 | $174,420 | $174,420 | $66.15 | | |
| EMSRFD | EMS REFUND 147 | 0.0000000000 | $174,420 | $174,420 | $0.00 | | |
| PORTRFD | PORT REFUND 640 | 0.0000000000 | $174,420 | $174,420 | $0.00 | | |
| PORTWWGEN | PORT OF WW 640 | 0.2460186015 | $174,420 | $174,420 | $42.91 | | |
| SD140BOND | SD #140 BOND 764 | 0.8342371393 | $174,420 | $174,420 | $145.51 | | |
| SD140GEN | SD #140 GENERAL 760 | 2.0646500647 | $174,420 | $174,420 | $360.12 | | |
| ST2 | STATE SCHOOL PART 2 600 | 0.8131451643 | $174,420 | $174,420 | $141.83 | | |
| STATESCHL | STATE SCHOOL 600 | 1.5158548041 | $174,420 | $174,420 | $264.40 | | |
| STREFUND | STATE REFUND LEVY 603 | 0.0000000000 | $174,420 | $174,420 | $0.00 | | |
| CWWBOND | C OF WW BOND 643 | 0.2760494372 | $174,420 | $174,420 | $48.15 | | |
| CWWGEN | CITY OF WW 631 | 1.6100204973 | $174,420 | $174,420 | $280.82 | | |
| CWWRFD | CITY OF WALLA WALLA REFUND 631 | 0.0000000000 | $174,420 | $174,420 | $0.00 | | |
| | Total Tax Rate: | 8.7973694689 | | | | | |
| | | | | Taxes w/Current Exemptions: | $1,534.45 | | |
| | | | | Taxes w/o Exemptions: | $1,534.45 | | |
Improvement / Building
| Improvement #1: | RESIDENTIAL | State Code: | 11 | 736.0 sqft | Value: | $115,510 |
| Exterior Wall: | SIDING | Heating/Cooling: | FORCED AIR | | Number of Bathrooms: | 2 | Number of Bedrooms: | 2 | | Plumbing: | 8 | Roof Covering: | COMP SHINGLE |
|
| | Type | Description | Class CD | Sub Class CD | Year Built | Area |
| | MA | Main Area | 1 | 20 | 1935 | 736.0 |
| | SI1 | SITE IMPROVEMENT | 1 | 20 | 1935 | 1.0 |
| | BASE | BASEMENT | 1 | 20 | 1935 | 680.0 |
| | OPS | OPEN PORCH W/STEPS | 1 | 20 | 1935 | 16.0 |
Sketch
Property Image
Land
| 1 | RES 1 | Converted: Residential | 0.1691 | 7364.00 | 0.00 | 0.00 | 1.00 | $58,910 | $0 |
Roll Value History
| 2025 | N/A | N/A | N/A | N/A | N/A |
| 2024 | $115,510 | $58,910 | $0 | $174,420 | $174,420 |
| 2023 | $115,510 | $58,910 | $0 | $174,420 | $174,420 |
| 2022 | $115,510 | $46,030 | $0 | $161,540 | $161,540 |
| 2021 | $77,000 | $46,030 | $0 | $123,030 | $123,030 |
| 2020 | $64,170 | $46,030 | $0 | $110,200 | $110,200 |
| 2019 | $64,170 | $46,030 | $0 | $110,200 | $110,200 |
| 2018 | $66,000 | $44,200 | $0 | $110,200 | $110,200 |
| 2017 | $66,000 | $44,200 | $0 | $110,200 | $110,200 |
| 2016 | $60,000 | $44,200 | $0 | $104,200 | $104,200 |
| 2015 | $60,000 | $44,200 | $0 | $104,200 | $104,200 |
| 2014 | $60,000 | $44,200 | $0 | $104,200 | $104,200 |
| 2013 | $60,000 | $44,200 | $0 | $104,200 | $104,200 |
| 2012 | $60,000 | $44,200 | $0 | $0 | $0 |
| 2011 | $60,000 | $44,200 | $0 | $0 | $0 |
| 2010 | $60,000 | $44,200 | $0 | $0 | $0 |
| 2009 | $71,600 | $44,200 | $0 | $0 | $0 |
| 2008 | $71,600 | $44,200 | $0 | $0 | $0 |
| 2007 | $54,900 | $14,700 | $0 | $0 | $0 |
| 2006 | $54,900 | $14,700 | $0 | $0 | $0 |
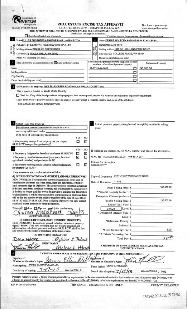
Deed and Sales History
| 1 | 03/27/2015 | QCD | QUIT CLAIM DEED | AVALOS FELIPE ETAL | AVALOS FELIPE | | | $0.00 | 127668 | 2015-02496 |
| 2 | 09/26/2001 | WARRANTY D | WARRANTY DEED | | | | | $73,900.00 | 98076 | 3200-110661 |
Payout Agreement
| No payout information available.. |