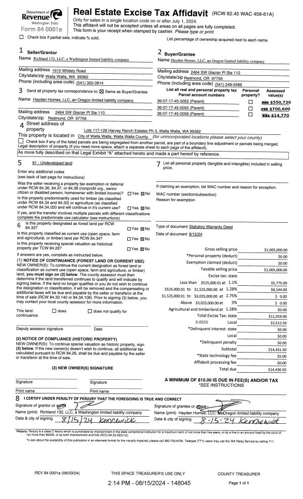
Property
Account |
| Property ID: | 10665 | Abbreviated Legal Description: | FAIRFIELD LOT 19 BLK 1 |
| Parcel Number: | 360729610119 | Agent Code: | |
| Type: | Real | | |
| Tax Area: | 1 - OL-140-F | Land Use Code | 11 |
| Open Space: | N | DFL | N |
| Historic Property: | N | Remodel Property: | N |
| Multi-Family Redevelopment: | N | | |
| Township: | 7 | Section: | 29 |
| Range: | 36 |
Location |
| Address: | 118 KENNETH ST WA 99362 | Mapsco: | |
| Neighborhood: | Fair Res | Map ID: | |
| Neighborhood CD: | 612011 |
Owner |
| Name: | BYRNES JAMES HAROLD | Owner ID: | 70300 |
| Mailing Address: | 118 KENNETH ST WALLA WALLA, WA 99362 | % Ownership: | 100.0000000000% |
| | | Exemptions: | |
Taxes and Assessment Details
Values
| (+) Improvement Homesite Value: | + | $0 | |
| (+) Improvement Non-Homesite Value: | + | $168,170 | |
| (+) Land Homesite Value: | + | $0 | |
| (+) Land Non-Homesite Value: | + | $57,200 | |
| (+) Curr Use (HS): | + | $0 | $0 |
| (+) Curr Use (NHS): | + | $0 | $0 |
| | | -------------------------- | |
| (=) Market Value: | = | $225,370 | |
| (–) Productivity Loss: | – | $0 | |
| | | -------------------------- | |
| (=) Subtotal: | = | $225,370 | |
| (+) Senior Appraised Value: | + | $0 | |
| (+) Non-Senior Appraised Value: | + | $225,370 | |
| | | -------------------------- | |
| (=) Total Appraised Value: | = | $225,370 | |
| (–) Senior Exemption Loss: | – | $0 | |
| (–) Exemption Loss: | – | $0 | |
| | | -------------------------- | |
| (=) Taxable Value: | = | $225,370 | |
Taxing Jurisdiction
| Owner: | BYRNES JAMES HAROLD | | |
| % Ownership: | 100.0000000000% | | |
| Total Value: | $225,370 | | |
| Tax Area: | 1 - OL-140-F |
| CERFD | CURRENT EXPENSE REFUND 010 | 0.0000000000 | $225,370 | $225,370 | $0.00 | | |
| CURREXP | CURRENT EXPENSE 010 | 1.0175366760 | $225,370 | $225,370 | $229.32 | | |
| HUMNSERV | HUMAN SERVICES 119 | 0.0250000000 | $225,370 | $225,370 | $5.63 | | |
| SLDREL | SOLDIERS RELIEF 121 | 0.0155990005 | $225,370 | $225,370 | $3.52 | | |
| EMERGSER | EMS 147 | 0.3792580840 | $225,370 | $225,370 | $85.47 | | |
| EMSRFD | EMS REFUND 147 | 0.0000000000 | $225,370 | $225,370 | $0.00 | | |
| PORTRFD | PORT REFUND 640 | 0.0000000000 | $225,370 | $225,370 | $0.00 | | |
| PORTWWGEN | PORT OF WW 640 | 0.2460186015 | $225,370 | $225,370 | $55.45 | | |
| SD140BOND | SD #140 BOND 764 | 0.8342371393 | $225,370 | $225,370 | $188.01 | | |
| SD140GEN | SD #140 GENERAL 760 | 2.0646500647 | $225,370 | $225,370 | $465.31 | | |
| ST2 | STATE SCHOOL PART 2 600 | 0.8131451643 | $225,370 | $225,370 | $183.26 | | |
| STATESCHL | STATE SCHOOL 600 | 1.5158548041 | $225,370 | $225,370 | $341.63 | | |
| STREFUND | STATE REFUND LEVY 603 | 0.0000000000 | $225,370 | $225,370 | $0.00 | | |
| CWWBOND | C OF WW BOND 643 | 0.2760494372 | $225,370 | $225,370 | $62.21 | | |
| CWWGEN | CITY OF WW 631 | 1.6100204973 | $225,370 | $225,370 | $362.85 | | |
| CWWRFD | CITY OF WALLA WALLA REFUND 631 | 0.0000000000 | $225,370 | $225,370 | $0.00 | | |
| | Total Tax Rate: | 8.7973694689 | | | | | |
| | | | | Taxes w/Current Exemptions: | $1,982.66 | | |
| | | | | Taxes w/o Exemptions: | $1,982.66 | | |
Improvement / Building
| Improvement #1: | RESIDENTIAL | State Code: | 11 | 772.0 sqft | Value: | $168,170 |
| Exterior Wall: | SIDING | Foundation: | SLAB | | Heating/Cooling: | MINI-SPLIT HP SYSTEM | Number of Bathrooms: | 1 | | Number of Bedrooms: | 2 | Plumbing: | 6 | | Roof Covering: | METAL ROOFING |   |   |
|
| | Type | Description | Class CD | Sub Class CD | Year Built | Area |
| | MA | Main Area | 1 | 25 | 1952 | 772.0 |
| | SI1 | SITE IMPROVEMENT | 1 | 25 | 1952 | 2.0 |
| | BASE | BASEMENT | 1 | 25 | 1952 | 506.0 |
| | BPF | BASEMENT -PARTITIONED FINISH | 1 | 25 | 1952 | 506.0 |
| | DTG | Detached Garage | 1 | 25 | 1952 | 506.0 |
| | RPS | PORCH W/STEPS,ROOF | 1 | 25 | 1952 | 36.0 |
| | GUH | GUEST HOUSE | 1 | 25 | 1952 | 440.0 |
| | CPC | COVERED CARPORT/PATIO | 1 | 25 | 1952 | 240.0 |
Sketch
Property Image
Land
| 1 | RES 1 | Converted: Residential | 0.1641 | 7150.00 | 0.00 | 0.00 | 1.00 | $57,200 | $0 |
Roll Value History
| 2025 | N/A | N/A | N/A | N/A | N/A |
| 2024 | $176,580 | $57,200 | $0 | $233,780 | $233,780 |
| 2023 | $168,170 | $57,200 | $0 | $225,370 | $225,370 |
| 2022 | $168,170 | $44,690 | $0 | $212,860 | $212,860 |
| 2021 | $152,880 | $44,690 | $0 | $197,570 | $197,570 |
| 2020 | $117,410 | $44,690 | $0 | $162,100 | $162,100 |
| 2019 | $117,410 | $44,690 | $0 | $162,100 | $162,100 |
| 2018 | $56,620 | $42,900 | $0 | $99,520 | $99,520 |
| 2017 | $56,620 | $42,900 | $0 | $99,520 | $99,520 |
| 2016 | $53,930 | $42,900 | $0 | $96,830 | $96,830 |
| 2015 | $77,040 | $42,900 | $0 | $119,940 | $119,940 |
| 2014 | $64,200 | $42,900 | $0 | $107,100 | $107,100 |
| 2013 | $64,200 | $42,900 | $0 | $107,100 | $107,100 |
| 2012 | $64,200 | $42,900 | $0 | $0 | $0 |
| 2011 | $64,200 | $42,900 | $0 | $0 | $0 |
| 2010 | $64,200 | $42,900 | $0 | $0 | $0 |
| 2009 | $76,100 | $42,900 | $0 | $0 | $0 |
| 2008 | $76,100 | $42,900 | $0 | $0 | $0 |
| 2007 | $49,100 | $14,300 | $0 | $0 | $0 |
| 2006 | $49,100 | $14,300 | $0 | $0 | $0 |
Deed and Sales History
| 1 | 09/22/2021 | QCD | QUIT CLAIM DEED | ARENDS SHARLENE | BYRNES JAMES HAROLD | | | $0.00 | 142540 | 2021-11624 |
| 2 | 04/06/2018 | SWD | STATUTORY WARRANTY DEED | SCHLUND JOEL R | BYRNES JAMES H | | | $165,000.00 | 134467 | 2018-02692 |
| 3 | 12/24/2015 | SWD | STATUTORY WARRANTY DEED | BATES BERT B | SCHLUND JOEL R | | | $92,000.00 | 129413 | 2015-11039 |
| 4 | 02/02/1978 | WARRANTY D | WARRANTY DEED | | | | | $26,000.00 | 0 | 7578-00929 |
Payout Agreement
| No payout information available.. |