Property
Account |
| Property ID: | 10644 | Abbreviated Legal Description: | EVANS LOT 8 |
| Parcel Number: | 360729600008 | Agent Code: | |
| Type: | Real | | |
| Tax Area: | 1 - OL-140-F | Land Use Code | 11 |
| Open Space: | N | DFL | N |
| Historic Property: | N | Remodel Property: | N |
| Multi-Family Redevelopment: | N | | |
| Township: | 7 | Section: | 29 |
| Range: | 36 |
Location |
| Address: | 516 S 1ST AVE WA 99362 | Mapsco: | |
| Neighborhood: | G-SFR | Map ID: | |
| Neighborhood CD: | 514011 |
Owner |
| Name: | PD INVESTMENT GROUP LLC | Owner ID: | 71285 |
| Mailing Address: | 109 MORO RD WALLA WALLA, WA 99362 | % Ownership: | 100.0000000000% |
| | | Exemptions: | |
Taxes and Assessment Details
Values
| (+) Improvement Homesite Value: | + | $0 | |
| (+) Improvement Non-Homesite Value: | + | $411,620 | |
| (+) Land Homesite Value: | + | $0 | |
| (+) Land Non-Homesite Value: | + | $61,210 | |
| (+) Curr Use (HS): | + | $0 | $0 |
| (+) Curr Use (NHS): | + | $0 | $0 |
| | | -------------------------- | |
| (=) Market Value: | = | $472,830 | |
| (–) Productivity Loss: | – | $0 | |
| | | -------------------------- | |
| (=) Subtotal: | = | $472,830 | |
| (+) Senior Appraised Value: | + | $0 | |
| (+) Non-Senior Appraised Value: | + | $472,830 | |
| | | -------------------------- | |
| (=) Total Appraised Value: | = | $472,830 | |
| (–) Senior Exemption Loss: | – | $0 | |
| (–) Exemption Loss: | – | $0 | |
| | | -------------------------- | |
| (=) Taxable Value: | = | $472,830 | |
Taxing Jurisdiction
| Owner: | PD INVESTMENT GROUP LLC | | |
| % Ownership: | 100.0000000000% | | |
| Total Value: | $472,830 | | |
| Tax Area: | 1 - OL-140-F |
| CERFD | CURRENT EXPENSE REFUND 010 | 0.0000000000 | $472,830 | $472,830 | $0.00 | | |
| CURREXP | CURRENT EXPENSE 010 | 1.0175366760 | $472,830 | $472,830 | $481.12 | | |
| HUMNSERV | HUMAN SERVICES 119 | 0.0250000000 | $472,830 | $472,830 | $11.82 | | |
| SLDREL | SOLDIERS RELIEF 121 | 0.0155990005 | $472,830 | $472,830 | $7.38 | | |
| EMERGSER | EMS 147 | 0.3792580840 | $472,830 | $472,830 | $179.32 | | |
| EMSRFD | EMS REFUND 147 | 0.0000000000 | $472,830 | $472,830 | $0.00 | | |
| PORTRFD | PORT REFUND 640 | 0.0000000000 | $472,830 | $472,830 | $0.00 | | |
| PORTWWGEN | PORT OF WW 640 | 0.2460186015 | $472,830 | $472,830 | $116.32 | | |
| SD140BOND | SD #140 BOND 764 | 0.8342371393 | $472,830 | $472,830 | $394.45 | | |
| SD140GEN | SD #140 GENERAL 760 | 2.0646500647 | $472,830 | $472,830 | $976.23 | | |
| ST2 | STATE SCHOOL PART 2 600 | 0.8131451643 | $472,830 | $472,830 | $384.48 | | |
| STATESCHL | STATE SCHOOL 600 | 1.5158548041 | $472,830 | $472,830 | $716.74 | | |
| STREFUND | STATE REFUND LEVY 603 | 0.0000000000 | $472,830 | $472,830 | $0.00 | | |
| CWWBOND | C OF WW BOND 643 | 0.2760494372 | $472,830 | $472,830 | $130.52 | | |
| CWWGEN | CITY OF WW 631 | 1.6100204973 | $472,830 | $472,830 | $761.27 | | |
| CWWRFD | CITY OF WALLA WALLA REFUND 631 | 0.0000000000 | $472,830 | $472,830 | $0.00 | | |
| | Total Tax Rate: | 8.7973694689 | | | | | |
| | | | | Taxes w/Current Exemptions: | $4,159.65 | | |
| | | | | Taxes w/o Exemptions: | $4,159.65 | | |
Improvement / Building
| Improvement #1: | RESIDENTIAL | State Code: | 11 | 2116.0 sqft | Value: | $411,620 |
| Exterior Wall: | SIDING | Heating/Cooling: | HEAT PUMP | | Number of Bathrooms: | 2 | Number of Bedrooms: | 3 | | Plumbing: | 10 | Roof Covering: | COMP SHINGLE |
|
| | Type | Description | Class CD | Sub Class CD | Year Built | Area |
| | MA | Main Area | 4 | 35 | 1900 | 2116.0 |
| | UPFL | Upper Floor (included in main area) | 4 | 35 | 1900 | 864.0 |
| | SI1 | SITE IMPROVEMENT | 4 | 35 | 1900 | 1.5 |
| | BASE | BASEMENT | 4 | 35 | 1900 | 372.0 |
| | BPF | BASEMENT -PARTITIONED FINISH | 4 | 35 | 1900 | 372.0 |
| | S2F | Single 2S Fireplace | 4 | 35 | 1900 | 1.0 |
| | WOD | Wood Deck | 4 | 35 | 1900 | 156.0 |
| | RCD | WOOD DECK W/ROOF, CEILED | 4 | 35 | 1900 | 144.0 |
Sketch
Property Image
Land
| 1 | RES 1 | Converted: Residential | 0.1938 | 8443.00 | 0.00 | 0.00 | 1.00 | $61,210 | $0 |
Roll Value History
| 2025 | N/A | N/A | N/A | N/A | N/A |
| 2024 | $393,460 | $92,870 | $0 | $486,330 | $486,330 |
| 2023 | $411,620 | $61,210 | $0 | $472,830 | $472,830 |
| 2022 | $392,020 | $61,210 | $0 | $453,230 | $453,230 |
| 2021 | $290,390 | $61,210 | $0 | $351,600 | $351,600 |
| 2020 | $193,590 | $61,210 | $0 | $254,800 | $254,800 |
| 2019 | $193,590 | $61,210 | $0 | $254,800 | $254,800 |
| 2018 | $193,590 | $61,210 | $0 | $254,800 | $254,800 |
| 2017 | $120,150 | $33,800 | $0 | $153,950 | $153,950 |
| 2016 | $109,230 | $33,800 | $0 | $143,030 | $143,030 |
| 2015 | $109,230 | $33,800 | $0 | $143,030 | $143,030 |
| 2014 | $99,300 | $33,800 | $0 | $133,100 | $133,100 |
| 2013 | $99,300 | $33,800 | $0 | $133,100 | $133,100 |
| 2012 | $99,300 | $33,800 | $0 | $0 | $0 |
| 2011 | $99,300 | $33,800 | $0 | $0 | $0 |
| 2010 | $99,300 | $33,800 | $0 | $0 | $0 |
| 2009 | $114,100 | $33,800 | $0 | $0 | $0 |
| 2008 | $102,100 | $45,800 | $0 | $0 | $0 |
| 2007 | $103,000 | $16,900 | $0 | $0 | $0 |
| 2006 | $103,000 | $16,900 | $0 | $0 | $0 |
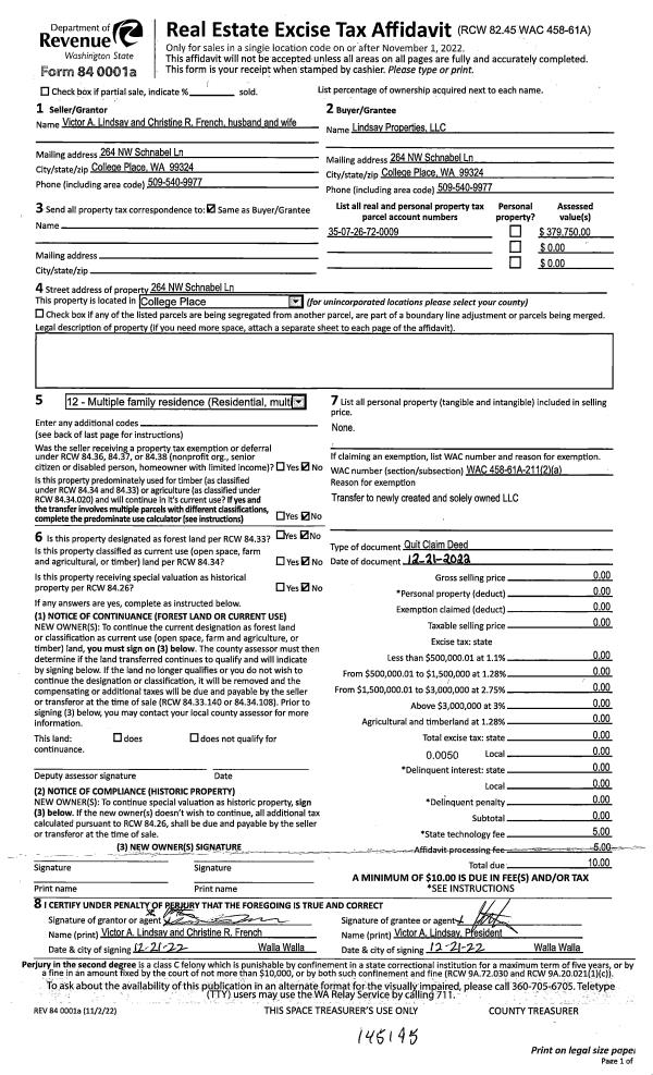
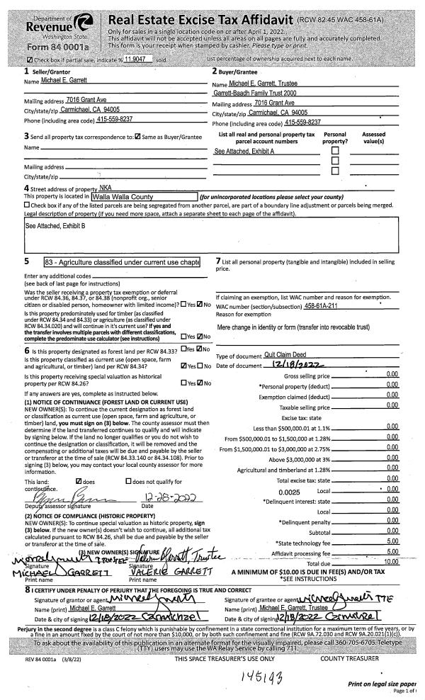
Deed and Sales History
| 1 | 09/22/2022 | REAL ESTAT | REAL ESTATE CONTRACT | WATTS TYE AND TISH | PD INVESTMENT GROUP LLC | | | $490,000.00 | 144736 | 144736 |
| 2 | 09/22/2022 | QCD | QUIT CLAIM DEED | WATTS TYRONE & TISH FAMILY TRUST | WATTS TYE AND TISH | | | $0.00 | 144734 | 2022-07909 |
| 3 | 01/28/2021 | QCD | QUIT CLAIM DEED | WATTS TYRONE & TISH FAMILY TRUST | WATTS TYRONE & TISH FAMILY TRUST | | | $0.00 | 140810 | 2021-01088 |
| 4 | 04/23/2018 | QCD | QUIT CLAIM DEED | WATTS TYRONE L & LETITIA C | WATTS TYRONE & TISH FAMILY TRUST | | | $0.00 | 134551 | 2018-03166 |
| 5 | 12/09/2016 | SWD | STATUTORY WARRANTY DEED | O'CON-NOVAKOVICH KATHLEEN | WATTS TYRONE L & LETITIA C | | | $137,500.00 | 131574 | 2016-10148 |
| 6 | 01/01/1950 | WARRANTY D | WARRANTY DEED | | | | | $0.00 | 0 | 2470-330481 |
Payout Agreement
| No payout information available.. |