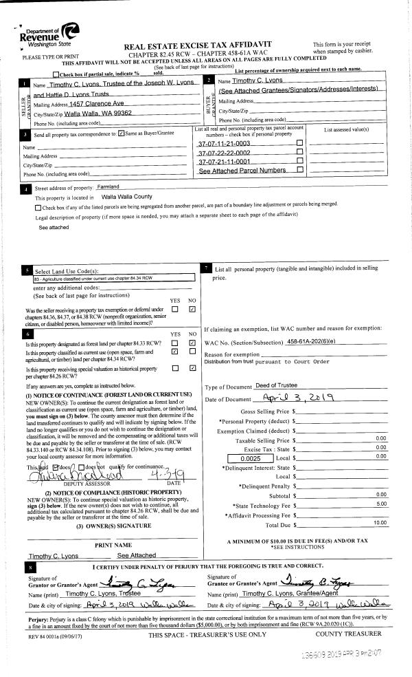
Property
Account |
| Property ID: | 10574 | Abbreviated Legal Description: | CHASE TAX 3 BLK 4 |
| Parcel Number: | 360729580402 | Agent Code: | |
| Type: | Real | | |
| Tax Area: | 1 - OL-140-F | Land Use Code | 11 |
| Open Space: | N | DFL | N |
| Historic Property: | N | Remodel Property: | N |
| Multi-Family Redevelopment: | N | | |
| Township: | 7 | Section: | 29 |
| Range: | 36 |
Location |
| Address: | 147 W MAPLE ST WA 99362 | Mapsco: | |
| Neighborhood: | Fair Res | Map ID: | |
| Neighborhood CD: | 612011 |
Owner |
| Name: | SANTO DUSTY LLOYD & HEATHER DAVIDSON | Owner ID: | 60268 |
| Mailing Address: | 147 W MAPLE ST WALLA WALLA, WA 99362 | % Ownership: | 100.0000000000% |
| | | Exemptions: | |
Taxes and Assessment Details
Values
| (+) Improvement Homesite Value: | + | $0 | |
| (+) Improvement Non-Homesite Value: | + | $168,320 | |
| (+) Land Homesite Value: | + | $0 | |
| (+) Land Non-Homesite Value: | + | $48,000 | |
| (+) Curr Use (HS): | + | $0 | $0 |
| (+) Curr Use (NHS): | + | $0 | $0 |
| | | -------------------------- | |
| (=) Market Value: | = | $216,320 | |
| (–) Productivity Loss: | – | $0 | |
| | | -------------------------- | |
| (=) Subtotal: | = | $216,320 | |
| (+) Senior Appraised Value: | + | $0 | |
| (+) Non-Senior Appraised Value: | + | $216,320 | |
| | | -------------------------- | |
| (=) Total Appraised Value: | = | $216,320 | |
| (–) Senior Exemption Loss: | – | $0 | |
| (–) Exemption Loss: | – | $0 | |
| | | -------------------------- | |
| (=) Taxable Value: | = | $216,320 | |
Taxing Jurisdiction
| Owner: | SANTO DUSTY LLOYD & HEATHER DAVIDSON | | |
| % Ownership: | 100.0000000000% | | |
| Total Value: | $216,320 | | |
| Tax Area: | 1 - OL-140-F |
| CERFD | CURRENT EXPENSE REFUND 010 | 0.0000000000 | $216,320 | $216,320 | $0.00 | | |
| CURREXP | CURRENT EXPENSE 010 | 1.0175366760 | $216,320 | $216,320 | $220.11 | | |
| HUMNSERV | HUMAN SERVICES 119 | 0.0250000000 | $216,320 | $216,320 | $5.41 | | |
| SLDREL | SOLDIERS RELIEF 121 | 0.0155990005 | $216,320 | $216,320 | $3.37 | | |
| EMERGSER | EMS 147 | 0.3792580840 | $216,320 | $216,320 | $82.04 | | |
| EMSRFD | EMS REFUND 147 | 0.0000000000 | $216,320 | $216,320 | $0.00 | | |
| PORTRFD | PORT REFUND 640 | 0.0000000000 | $216,320 | $216,320 | $0.00 | | |
| PORTWWGEN | PORT OF WW 640 | 0.2460186015 | $216,320 | $216,320 | $53.22 | | |
| SD140BOND | SD #140 BOND 764 | 0.8342371393 | $216,320 | $216,320 | $180.46 | | |
| SD140GEN | SD #140 GENERAL 760 | 2.0646500647 | $216,320 | $216,320 | $446.63 | | |
| ST2 | STATE SCHOOL PART 2 600 | 0.8131451643 | $216,320 | $216,320 | $175.90 | | |
| STATESCHL | STATE SCHOOL 600 | 1.5158548041 | $216,320 | $216,320 | $327.91 | | |
| STREFUND | STATE REFUND LEVY 603 | 0.0000000000 | $216,320 | $216,320 | $0.00 | | |
| CWWBOND | C OF WW BOND 643 | 0.2760494372 | $216,320 | $216,320 | $59.72 | | |
| CWWGEN | CITY OF WW 631 | 1.6100204973 | $216,320 | $216,320 | $348.28 | | |
| CWWRFD | CITY OF WALLA WALLA REFUND 631 | 0.0000000000 | $216,320 | $216,320 | $0.00 | | |
| | Total Tax Rate: | 8.7973694689 | | | | | |
| | | | | Taxes w/Current Exemptions: | $1,903.05 | | |
| | | | | Taxes w/o Exemptions: | $1,903.05 | | |
Improvement / Building
| Improvement #1: | RESIDENTIAL | State Code: | 11 | 768.0 sqft | Value: | $168,320 |
| Exterior Wall: | VINYL | Heating/Cooling: | WARM & COOLED AIR | | Number of Bathrooms: | 1 | Number of Bedrooms: | 2 | | Plumbing: | 7 | Roof Covering: | COMP SHINGLE |
|
| | Type | Description | Class CD | Sub Class CD | Year Built | Area |
| | MA | Main Area | 1 | 25 | 1905 | 768.0 |
| | SI1 | SITE IMPROVEMENT | 1 | 25 | 1905 | 1.0 |
| | BASE | BASEMENT | 1 | 25 | 1905 | 768.0 |
| | DTG | Detached Garage | 1 | 25 | 1905 | 280.0 |
| | SWP | Solid Wall Porch | 1 | 25 | 1905 | 120.0 |
| | RPS | PORCH W/STEPS,ROOF | 1 | 25 | 1905 | 20.0 |
Sketch
Property Image
Land
| 1 | RES 1 | Converted: Residential | 0.1377 | 6000.00 | 0.00 | 0.00 | 1.00 | $48,000 | $0 |
Roll Value History
| 2025 | N/A | N/A | N/A | N/A | N/A |
| 2024 | $176,740 | $48,000 | $0 | $224,740 | $224,740 |
| 2023 | $168,320 | $48,000 | $0 | $216,320 | $216,320 |
| 2022 | $168,320 | $37,500 | $0 | $205,820 | $205,820 |
| 2021 | $129,480 | $37,500 | $0 | $166,980 | $166,980 |
| 2020 | $107,900 | $37,500 | $0 | $145,400 | $145,400 |
| 2019 | $107,900 | $37,500 | $0 | $145,400 | $145,400 |
| 2018 | $99,300 | $36,000 | $0 | $135,300 | $135,300 |
| 2017 | $86,350 | $36,000 | $0 | $122,350 | $122,350 |
| 2016 | $78,500 | $36,000 | $0 | $114,500 | $114,500 |
| 2015 | $78,500 | $36,000 | $0 | $114,500 | $114,500 |
| 2014 | $78,500 | $36,000 | $0 | $114,500 | $114,500 |
| 2013 | $78,500 | $36,000 | $0 | $114,500 | $114,500 |
| 2012 | $79,900 | $36,000 | $0 | $0 | $0 |
| 2011 | $79,900 | $36,000 | $0 | $0 | $0 |
| 2010 | $74,400 | $36,000 | $0 | $0 | $0 |
| 2009 | $86,700 | $36,000 | $0 | $0 | $0 |
| 2008 | $86,700 | $36,000 | $0 | $0 | $0 |
| 2007 | $52,300 | $12,000 | $0 | $0 | $0 |
| 2006 | $52,300 | $12,000 | $0 | $0 | $0 |
Deed and Sales History
| 1 | 01/11/2017 | QCD | QUIT CLAIM DEED | SANTO DUSTY LLOYD | SANTO DUSTY LLOYD & HEATHER DAVIDSON | | | $0.00 | 131753 | 2017-00278 |
| 2 | 10/28/1991 | WARRANTY D | WARRANTY DEED | | | | | $38,500.00 | 0 | 1929-107545 |
Payout Agreement
| No payout information available.. |