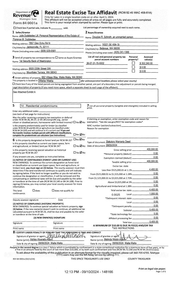
Property
Account |
| Property ID: | 10519 | Abbreviated Legal Description: | CHABOTS 2ND N 1' OF LOT 20; LESS N 2' LOT 21 |
| Parcel Number: | 360729560021 | Agent Code: | |
| Type: | Real | | |
| Tax Area: | 1 - OL-140-F | Land Use Code | 13 |
| Open Space: | N | DFL | N |
| Historic Property: | N | Remodel Property: | N |
| Multi-Family Redevelopment: | N | | |
| Township: | 7 | Section: | 29 |
| Range: | 36 |
Location |
| Address: | 317 CHASE AVE WA 99362 | Mapsco: | |
| Neighborhood: | Fair Inferior Res Aprt | Map ID: | |
| Neighborhood CD: | 512121 |
Owner |
| Name: | WILKINSON ESTATE LLC | Owner ID: | 67846 |
| Mailing Address: | 710 LYNCH LN YAKIMA, WA 98903 | % Ownership: | 100.0000000000% |
| | | Exemptions: | |
Taxes and Assessment Details
Values
| (+) Improvement Homesite Value: | + | $0 | |
| (+) Improvement Non-Homesite Value: | + | $311,390 | |
| (+) Land Homesite Value: | + | $0 | |
| (+) Land Non-Homesite Value: | + | $35,500 | |
| (+) Curr Use (HS): | + | $0 | $0 |
| (+) Curr Use (NHS): | + | $0 | $0 |
| | | -------------------------- | |
| (=) Market Value: | = | $346,890 | |
| (–) Productivity Loss: | – | $0 | |
| | | -------------------------- | |
| (=) Subtotal: | = | $346,890 | |
| (+) Senior Appraised Value: | + | $0 | |
| (+) Non-Senior Appraised Value: | + | $346,890 | |
| | | -------------------------- | |
| (=) Total Appraised Value: | = | $346,890 | |
| (–) Senior Exemption Loss: | – | $0 | |
| (–) Exemption Loss: | – | $0 | |
| | | -------------------------- | |
| (=) Taxable Value: | = | $346,890 | |
Taxing Jurisdiction
| Owner: | WILKINSON ESTATE LLC | | |
| % Ownership: | 100.0000000000% | | |
| Total Value: | $346,890 | | |
| Tax Area: | 1 - OL-140-F |
| CERFD | CURRENT EXPENSE REFUND 010 | 0.0000000000 | $346,890 | $346,890 | $0.00 | | |
| CURREXP | CURRENT EXPENSE 010 | 1.0175366760 | $346,890 | $346,890 | $352.97 | | |
| HUMNSERV | HUMAN SERVICES 119 | 0.0250000000 | $346,890 | $346,890 | $8.67 | | |
| SLDREL | SOLDIERS RELIEF 121 | 0.0155990005 | $346,890 | $346,890 | $5.41 | | |
| EMERGSER | EMS 147 | 0.3792580840 | $346,890 | $346,890 | $131.56 | | |
| EMSRFD | EMS REFUND 147 | 0.0000000000 | $346,890 | $346,890 | $0.00 | | |
| PORTRFD | PORT REFUND 640 | 0.0000000000 | $346,890 | $346,890 | $0.00 | | |
| PORTWWGEN | PORT OF WW 640 | 0.2460186015 | $346,890 | $346,890 | $85.34 | | |
| SD140BOND | SD #140 BOND 764 | 0.8342371393 | $346,890 | $346,890 | $289.39 | | |
| SD140GEN | SD #140 GENERAL 760 | 2.0646500647 | $346,890 | $346,890 | $716.21 | | |
| ST2 | STATE SCHOOL PART 2 600 | 0.8131451643 | $346,890 | $346,890 | $282.07 | | |
| STATESCHL | STATE SCHOOL 600 | 1.5158548041 | $346,890 | $346,890 | $525.83 | | |
| STREFUND | STATE REFUND LEVY 603 | 0.0000000000 | $346,890 | $346,890 | $0.00 | | |
| CWWBOND | C OF WW BOND 643 | 0.2760494372 | $346,890 | $346,890 | $95.76 | | |
| CWWGEN | CITY OF WW 631 | 1.6100204973 | $346,890 | $346,890 | $558.50 | | |
| CWWRFD | CITY OF WALLA WALLA REFUND 631 | 0.0000000000 | $346,890 | $346,890 | $0.00 | | |
| | Total Tax Rate: | 8.7973694689 | | | | | |
| | | | | Taxes w/Current Exemptions: | $3,051.71 | | |
| | | | | Taxes w/o Exemptions: | $3,051.71 | | |
Improvement / Building
| Improvement #1: | RESIDENTIAL | State Code: | 13 | 3198.0 sqft | Value: | $311,390 |
| Exterior Wall: | METAL/STEEL | Heating/Cooling: | BASEBOARD HOT WATER | | Number of Bathrooms: | 7 | Number of Bedrooms: | 8 | | Plumbing: | 31 | Roof Covering: | COMP SHINGLE |
|
| | Type | Description | Class CD | Sub Class CD | Year Built | Area |
| | MA | Main Area | 2 | 30 | 1930 | 3198.0 |
| | UPFL | Upper Floor (included in main area) | 2 | 30 | 1930 | 1599.0 |
| | SI1 | SITE IMPROVEMENT | 2 | 30 | 1930 | 2.0 |
| | RPS | PORCH W/STEPS,ROOF | 2 | 30 | 1930 | 180.0 |
Sketch
Property Image
Land
| 1 | RES 1 | Converted: Residential | 0.1552 | 6762.00 | 0.00 | 0.00 | 1.00 | $35,500 | $0 |
Roll Value History
| 2025 | N/A | N/A | N/A | N/A | N/A |
| 2024 | $298,500 | $60,900 | $0 | $359,400 | $359,400 |
| 2023 | $311,390 | $35,500 | $0 | $346,890 | $346,890 |
| 2022 | $311,390 | $35,500 | $0 | $346,890 | $346,890 |
| 2021 | $194,620 | $35,500 | $0 | $230,120 | $230,120 |
| 2020 | $194,620 | $35,500 | $0 | $230,120 | $230,120 |
| 2019 | $194,620 | $35,500 | $0 | $230,120 | $230,120 |
| 2018 | $194,620 | $35,500 | $0 | $230,120 | $230,120 |
| 2017 | $232,160 | $40,600 | $0 | $272,760 | $272,760 |
| 2016 | $211,050 | $40,600 | $0 | $251,650 | $251,650 |
| 2015 | $211,050 | $40,600 | $0 | $251,650 | $251,650 |
| 2014 | $201,000 | $40,600 | $0 | $241,600 | $241,600 |
| 2013 | $201,000 | $40,600 | $0 | $241,600 | $241,600 |
| 2012 | $201,000 | $40,600 | $0 | $0 | $0 |
| 2011 | $227,800 | $40,600 | $0 | $0 | $0 |
| 2010 | $138,300 | $40,600 | $0 | $0 | $0 |
| 2009 | $158,200 | $40,600 | $0 | $0 | $0 |
| 2008 | $158,200 | $40,600 | $0 | $0 | $0 |
| 2007 | $88,500 | $16,900 | $0 | $0 | $0 |
| 2006 | $88,500 | $16,900 | $0 | $0 | $0 |
Deed and Sales History
| 1 | 11/29/2021 | SWD | STATUTORY WARRANTY DEED | MY THREE D'S LLC | WILKINSON ESTATE LLC | | | $360,000.00 | 142954 | 2021-14081 |
| 2 | 12/15/2017 | REAL ESTAT | REAL ESTATE CONTRACT | 317 FAMILY LTD PTNR | MY THREE D'S LLC | | | $223,909.00 | 133805 | 2017-10090 |
| 3 | 01/09/1992 | WARRANTY D | WARRANTY DEED | | | | | $716,000.00 | 0 | 1939-200199 |
|   | |
Payout Agreement
| No payout information available.. |