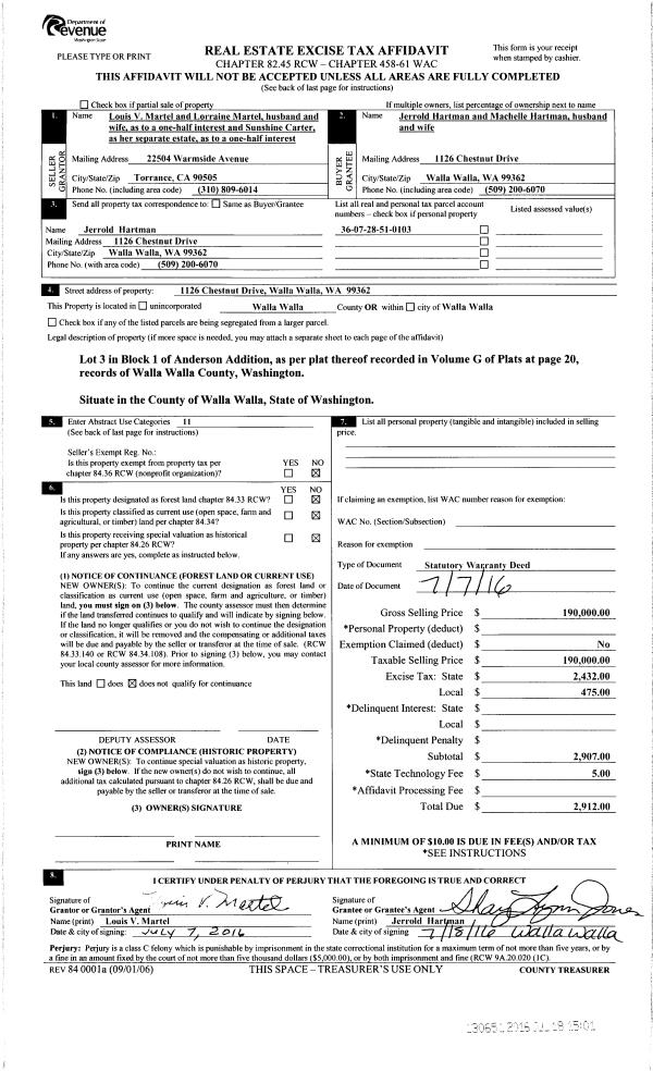
Property
Account |
| Property ID: | 10503 | Abbreviated Legal Description: | BAUMEISTERS LOT 10 & E 15' OF LOT 9 BLK 2 |
| Parcel Number: | 360729530210 | Agent Code: | |
| Type: | Real | | |
| Tax Area: | 1 - OL-140-F | Land Use Code | 11 |
| Open Space: | N | DFL | N |
| Historic Property: | N | Remodel Property: | N |
| Multi-Family Redevelopment: | N | | |
| Township: | 7 | Section: | 29 |
| Range: | 36 |
Location |
| Address: | 324 W CHESTNUT ST WA 99362 | Mapsco: | |
| Neighborhood: | Fair Inferior Res | Map ID: | |
| Neighborhood CD: | 512111 |
Owner |
| Name: | ESPARZA LISA | Owner ID: | 58966 |
| Mailing Address: | 324 W CHESTNUT ST WALLA WALLA, WA 99362 | % Ownership: | 100.0000000000% |
| | | Exemptions: | |
Taxes and Assessment Details
Values
| (+) Improvement Homesite Value: | + | $0 | |
| (+) Improvement Non-Homesite Value: | + | $276,490 | |
| (+) Land Homesite Value: | + | $0 | |
| (+) Land Non-Homesite Value: | + | $34,130 | |
| (+) Curr Use (HS): | + | $0 | $0 |
| (+) Curr Use (NHS): | + | $0 | $0 |
| | | -------------------------- | |
| (=) Market Value: | = | $310,620 | |
| (–) Productivity Loss: | – | $0 | |
| | | -------------------------- | |
| (=) Subtotal: | = | $310,620 | |
| (+) Senior Appraised Value: | + | $0 | |
| (+) Non-Senior Appraised Value: | + | $310,620 | |
| | | -------------------------- | |
| (=) Total Appraised Value: | = | $310,620 | |
| (–) Senior Exemption Loss: | – | $0 | |
| (–) Exemption Loss: | – | $0 | |
| | | -------------------------- | |
| (=) Taxable Value: | = | $310,620 | |
Taxing Jurisdiction
| Owner: | ESPARZA LISA | | |
| % Ownership: | 100.0000000000% | | |
| Total Value: | $310,620 | | |
| Tax Area: | 1 - OL-140-F |
| CERFD | CURRENT EXPENSE REFUND 010 | 0.0000000000 | $310,620 | $310,620 | $0.00 | | |
| CURREXP | CURRENT EXPENSE 010 | 1.0175366760 | $310,620 | $310,620 | $316.07 | | |
| HUMNSERV | HUMAN SERVICES 119 | 0.0250000000 | $310,620 | $310,620 | $7.77 | | |
| SLDREL | SOLDIERS RELIEF 121 | 0.0155990005 | $310,620 | $310,620 | $4.85 | | |
| EMERGSER | EMS 147 | 0.3792580840 | $310,620 | $310,620 | $117.81 | | |
| EMSRFD | EMS REFUND 147 | 0.0000000000 | $310,620 | $310,620 | $0.00 | | |
| PORTRFD | PORT REFUND 640 | 0.0000000000 | $310,620 | $310,620 | $0.00 | | |
| PORTWWGEN | PORT OF WW 640 | 0.2460186015 | $310,620 | $310,620 | $76.42 | | |
| SD140BOND | SD #140 BOND 764 | 0.8342371393 | $310,620 | $310,620 | $259.13 | | |
| SD140GEN | SD #140 GENERAL 760 | 2.0646500647 | $310,620 | $310,620 | $641.32 | | |
| ST2 | STATE SCHOOL PART 2 600 | 0.8131451643 | $310,620 | $310,620 | $252.58 | | |
| STATESCHL | STATE SCHOOL 600 | 1.5158548041 | $310,620 | $310,620 | $470.85 | | |
| STREFUND | STATE REFUND LEVY 603 | 0.0000000000 | $310,620 | $310,620 | $0.00 | | |
| CWWBOND | C OF WW BOND 643 | 0.2760494372 | $310,620 | $310,620 | $85.75 | | |
| CWWGEN | CITY OF WW 631 | 1.6100204973 | $310,620 | $310,620 | $500.10 | | |
| CWWRFD | CITY OF WALLA WALLA REFUND 631 | 0.0000000000 | $310,620 | $310,620 | $0.00 | | |
| | Total Tax Rate: | 8.7973694689 | | | | | |
| | | | | Taxes w/Current Exemptions: | $2,732.65 | | |
| | | | | Taxes w/o Exemptions: | $2,732.65 | | |
Improvement / Building
| Improvement #1: | RESIDENTIAL | State Code: | 11 | 1164.0 sqft | Value: | $276,490 |
| Exterior Wall: | VINYL | Heating/Cooling: | WARM & COOLED AIR | | Number of Bathrooms: | 1 | Number of Bedrooms: | 3 | | Plumbing: | 6 | Roof Covering: | COMP SHINGLE |
|
| | Type | Description | Class CD | Sub Class CD | Year Built | Area |
| | MA | Main Area | 1 | 30 | 1903 | 1164.0 |
| | SI1 | SITE IMPROVEMENT | 1 | 30 | 1903 | 1.0 |
| | BASE | BASEMENT | 1 | 30 | 1903 | 774.0 |
| | BRF | BASEMENT - REC FINISH | 1 | 30 | 1903 | 320.0 |
| | S1F | Single One Story Fireplace | 1 | 30 | 1903 | 1.0 |
| | RPO | OPEN PORCH W/ROOF | 1 | 30 | 1903 | 84.0 |
| | RPO | OPEN PORCH W/ROOF | 1 | 30 | 1903 | 245.0 |
| | DTG | Detached Garage | 1 | 30 | 1903 | 308.0 |
Sketch
Property Image
Land
| 1 | RES 1 | Converted: Residential | 0.1492 | 6500.00 | 0.00 | 0.00 | 1.00 | $34,130 | $0 |
Roll Value History
| 2025 | N/A | N/A | N/A | N/A | N/A |
| 2024 | $251,320 | $58,500 | $0 | $309,820 | $309,820 |
| 2023 | $276,490 | $34,130 | $0 | $310,620 | $310,620 |
| 2022 | $276,490 | $34,130 | $0 | $310,620 | $310,620 |
| 2021 | $204,810 | $34,130 | $0 | $238,940 | $238,940 |
| 2020 | $170,670 | $34,130 | $0 | $204,800 | $204,800 |
| 2019 | $170,670 | $34,130 | $0 | $204,800 | $204,800 |
| 2018 | $121,910 | $34,130 | $0 | $156,040 | $156,040 |
| 2017 | $116,450 | $39,000 | $0 | $155,450 | $155,450 |
| 2016 | $110,900 | $39,000 | $0 | $149,900 | $149,900 |
| 2015 | $110,900 | $39,000 | $0 | $149,900 | $149,900 |
| 2014 | $110,900 | $39,000 | $0 | $149,900 | $149,900 |
| 2013 | $110,900 | $39,000 | $0 | $149,900 | $149,900 |
| 2012 | $110,900 | $39,000 | $0 | $0 | $0 |
| 2011 | $110,900 | $39,000 | $0 | $0 | $0 |
| 2010 | $97,300 | $39,000 | $0 | $0 | $0 |
| 2009 | $121,300 | $39,000 | $0 | $0 | $0 |
| 2008 | $121,300 | $39,000 | $0 | $0 | $0 |
| 2007 | $67,700 | $13,000 | $0 | $0 | $0 |
| 2006 | $67,700 | $13,000 | $0 | $0 | $0 |
Deed and Sales History
| 1 | 06/22/2016 | QCD | QUIT CLAIM DEED | ESPARZA RAFAEL & LISA D | ESPARZA LISA | | | $0.00 | 130494 | 2016-04861 |
| 2 | 06/19/2007 | WARRANTY D | WARRANTY DEED | LEES, JUDITH A | ESPARZA, RAFAEL & LISA D | | | $163,200.00 | 113083 | 2007-06985 |
| 3 | 12/12/1979 | QCD | QUIT CLAIM DEED | | | | | $0.00 | 0 | 1919-105812 |
Payout Agreement
| No payout information available.. |