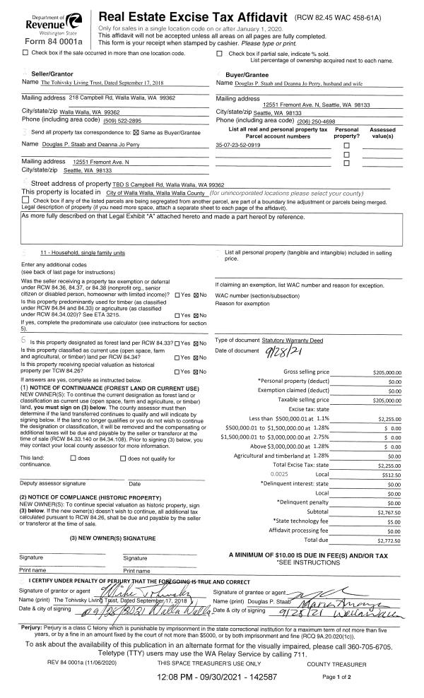
Property
Account |
| Property ID: | 1050 | Abbreviated Legal Description: | VILGS OF AMENDED GARRISON CRK PUD PHASE 1 LOT 1 |
| Parcel Number: | 350736790001 | Agent Code: | |
| Type: | Real | | |
| Tax Area: | 77 - CP-250-F | Land Use Code | 11 |
| Open Space: | N | DFL | N |
| Historic Property: | N | Remodel Property: | N |
| Multi-Family Redevelopment: | N | | |
| Township: | 7 | Section: | 36 |
| Range: | 35 |
Location |
| Address: | 820 SE PARKSIDE PL WA 99324 | Mapsco: | |
| Neighborhood: | G SFR | Map ID: | |
| Neighborhood CD: | 114011 |
Owner |
| Name: | HAWKINS JAMES M & SHARRON O | Owner ID: | 61056 |
| Mailing Address: | 820 SE PARKSIDE PL COLLEGE PLACE, WA 99324 | % Ownership: | 100.0000000000% |
| | | Exemptions: | |
Taxes and Assessment Details
Values
| (+) Improvement Homesite Value: | + | $0 | |
| (+) Improvement Non-Homesite Value: | + | $452,280 | |
| (+) Land Homesite Value: | + | $0 | |
| (+) Land Non-Homesite Value: | + | $75,000 | |
| (+) Curr Use (HS): | + | $0 | $0 |
| (+) Curr Use (NHS): | + | $0 | $0 |
| | | -------------------------- | |
| (=) Market Value: | = | $527,280 | |
| (–) Productivity Loss: | – | $0 | |
| | | -------------------------- | |
| (=) Subtotal: | = | $527,280 | |
| (+) Senior Appraised Value: | + | $0 | |
| (+) Non-Senior Appraised Value: | + | $527,280 | |
| | | -------------------------- | |
| (=) Total Appraised Value: | = | $527,280 | |
| (–) Senior Exemption Loss: | – | $0 | |
| (–) Exemption Loss: | – | $0 | |
| | | -------------------------- | |
| (=) Taxable Value: | = | $527,280 | |
Taxing Jurisdiction
| Owner: | HAWKINS JAMES M & SHARRON O | | |
| % Ownership: | 100.0000000000% | | |
| Total Value: | $527,280 | | |
| Tax Area: | 77 - CP-250-F |
| CERFD | CURRENT EXPENSE REFUND 010 | 0.0000000000 | $527,280 | $527,280 | $0.00 | | |
| CURREXP | CURRENT EXPENSE 010 | 1.0175366760 | $527,280 | $527,280 | $536.53 | | |
| HUMNSERV | HUMAN SERVICES 119 | 0.0250000000 | $527,280 | $527,280 | $13.18 | | |
| SLDREL | SOLDIERS RELIEF 121 | 0.0155990005 | $527,280 | $527,280 | $8.23 | | |
| COLLPLBOND | C OF CP BOND 644 | 0.4374241808 | $527,280 | $527,280 | $230.65 | | |
| COLLPLGEN | CITY OF CP 632 | 1.4453819216 | $527,280 | $527,280 | $762.12 | | |
| EMERGSER | EMS 147 | 0.3792580840 | $527,280 | $527,280 | $199.98 | | |
| EMSRFD | EMS REFUND 147 | 0.0000000000 | $527,280 | $527,280 | $0.00 | | |
| RURALLIB | RURAL LIBRARY 623 | 0.3710609029 | $527,280 | $527,280 | $195.65 | | |
| PORTRFD | PORT REFUND 640 | 0.0000000000 | $527,280 | $527,280 | $0.00 | | |
| PORTWWGEN | PORT OF WW 640 | 0.2460186015 | $527,280 | $527,280 | $129.72 | | |
| SD250BOND | SD #250 BOND 773 | 1.4560608159 | $527,280 | $527,280 | $767.75 | | |
| SD250GEN | SD #250 GENERAL 770 | 2.3880724087 | $527,280 | $527,280 | $1,259.18 | | |
| ST2 | STATE SCHOOL PART 2 600 | 0.8131451643 | $527,280 | $527,280 | $428.76 | | |
| STATESCHL | STATE SCHOOL 600 | 1.5158548041 | $527,280 | $527,280 | $799.28 | | |
| STREFUND | STATE REFUND LEVY 603 | 0.0000000000 | $527,280 | $527,280 | $0.00 | | |
| | Total Tax Rate: | 10.1104125603 | | | | | |
| | | | | Taxes w/Current Exemptions: | $5,331.03 | | |
| | | | | Taxes w/o Exemptions: | $5,331.03 | | |
Improvement / Building
| Improvement #1: | RESIDENTIAL | State Code: | 11 | 2173.0 sqft | Value: | $452,280 |
| Exterior Wall: | PLYWOOD | Heating/Cooling: | WARM & COOLED AIR | | Number of Bathrooms: | 2.5 | Number of Bedrooms: | 3 | | Plumbing: | 13 | Roof Covering: | COMP SHINGLE |
|
| | Type | Description | Class CD | Sub Class CD | Year Built | Area |
| | MA | Main Area | 4 | 40 | 1998 | 2173.0 |
| | SI1 | SITE IMPROVEMENT | 4 | 40 | 1998 | 3.0 |
| | UPFL | Upper Floor (included in main area) | 4 | 40 | 1998 | 1986.0 |
| | ATG | Attached Garage | 4 | 40 | 1998 | 420.0 |
| | S1F | Single One Story Fireplace | 4 | 40 | 1998 | 1.0 |
| | RPC | OPEN PORCH W/ROOF , CEILED | 4 | 40 | 1998 | 80.0 |
| | RPC | OPEN PORCH W/ROOF , CEILED | 4 | 40 | 1998 | 70.0 |
Sketch
Property Image
Land
| 1 | RES 1 | Converted: Residential | 0.1175 | 5120.00 | 0.00 | 0.00 | 1.00 | $75,000 | $0 |
Roll Value History
| 2025 | N/A | N/A | N/A | N/A | N/A |
| 2024 | $452,280 | $75,000 | $0 | $527,280 | $527,280 |
| 2023 | $452,280 | $75,000 | $0 | $527,280 | $527,280 |
| 2022 | $430,740 | $75,000 | $0 | $505,740 | $505,740 |
| 2021 | $358,950 | $75,000 | $0 | $433,950 | $433,950 |
| 2020 | $265,890 | $75,000 | $0 | $340,890 | $340,890 |
| 2019 | $275,890 | $65,000 | $0 | $340,890 | $340,890 |
| 2018 | $262,750 | $65,000 | $0 | $327,750 | $327,750 |
| 2017 | $210,200 | $65,000 | $0 | $275,200 | $275,200 |
| 2016 | $210,200 | $65,000 | $0 | $275,200 | $275,200 |
| 2015 | $210,200 | $65,000 | $0 | $275,200 | $275,200 |
| 2014 | $210,200 | $65,000 | $0 | $275,200 | $275,200 |
| 2013 | $210,200 | $65,000 | $0 | $275,200 | $275,200 |
| 2012 | $227,800 | $65,000 | $0 | $0 | $0 |
| 2011 | $196,400 | $65,000 | $0 | $0 | $0 |
| 2010 | $196,400 | $65,000 | $0 | $0 | $0 |
| 2009 | $210,200 | $65,000 | $0 | $0 | $0 |
| 2008 | $150,700 | $30,000 | $0 | $0 | $0 |
| 2007 | $150,700 | $30,000 | $0 | $0 | $0 |
| 2006 | $150,700 | $30,000 | $0 | $0 | $0 |
Deed and Sales History
| 1 | 06/12/2017 | SWD | STATUTORY WARRANTY DEED | DEPONTY FRANKLIN & LAURIE F | HAWKINS JAMES M & SHARRON O | | | $338,000.00 | 132580 | 2017-04482 |
| 2 | 08/07/2015 | SWD | STATUTORY WARRANTY DEED | FETROE JUDITH I | DEPONTY FRANKLIN & LAURIE F | | | $280,000.00 | 128562 | 2015-06854 |
| 3 | 09/06/2002 | WARRANTY D | WARRANTY DEED | MC GHEE FAMILY TRUST | FETROE, JUDITH I | | | $165,250.00 | 100316 | 2002-09960 |
| 4 | 09/05/2002 | QCD | QUIT CLAIM DEED | FETROE, DALE T | FETROE, JUDITH I | | | | 100317 | 2002-09961 |
| 5 | 03/01/1998 | WARRANTY D | WARRANTY DEED | | | | | $24,900.00 | 90123 | 2659-803370 |
Payout Agreement
| No payout information available.. |