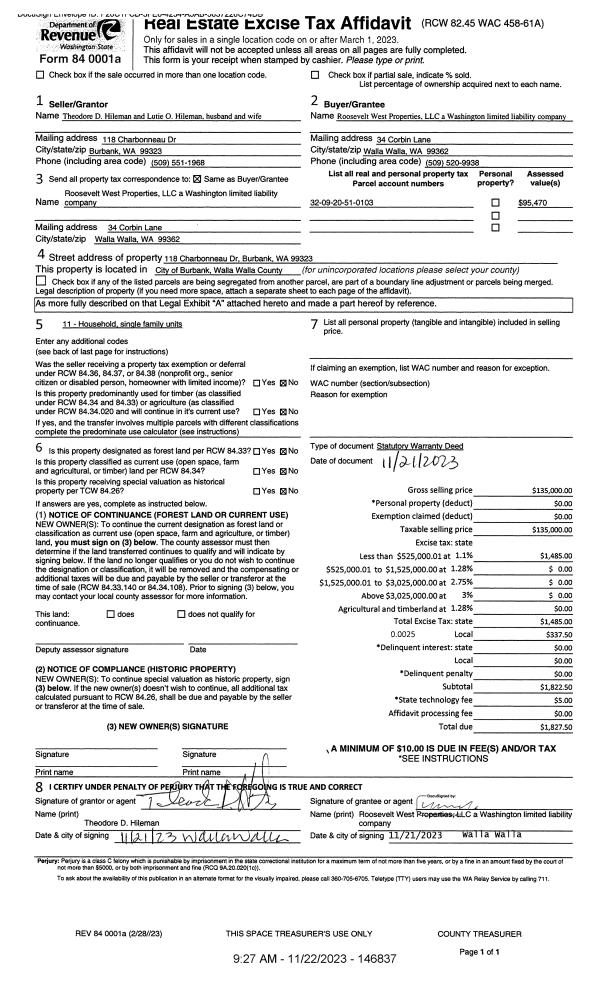
Property
Account |
| Property ID: | 1039 | Abbreviated Legal Description: | EAST SCHAFFERS SUB S 56'OF N 168' OF LT 1 BLK 3 |
| Parcel Number: | 360728700301 | Agent Code: | |
| Type: | Real | | |
| Tax Area: | 105 - 140-F-4 | Land Use Code | 11 |
| Open Space: | N | DFL | N |
| Historic Property: | N | Remodel Property: | N |
| Multi-Family Redevelopment: | N | | |
| Township: | 7 | Section: | 28 |
| Range: | 36 |
Location |
| Address: | 914 S WILBUR AVE WA 99362 | Mapsco: | |
| Neighborhood: | A Res | Map ID: | |
| Neighborhood CD: | 613011 |
Owner |
| Name: | FUNK JARED | Owner ID: | 72999 |
| Mailing Address: | RICHARD FUNK 914 S WILBUR AVE WALLA WALLA, WA 99362 | % Ownership: | 100.0000000000% |
| | | Exemptions: | |
Taxes and Assessment Details
Values
| (+) Improvement Homesite Value: | + | $0 | |
| (+) Improvement Non-Homesite Value: | + | $243,510 | |
| (+) Land Homesite Value: | + | $0 | |
| (+) Land Non-Homesite Value: | + | $61,490 | |
| (+) Curr Use (HS): | + | $0 | $0 |
| (+) Curr Use (NHS): | + | $0 | $0 |
| | | -------------------------- | |
| (=) Market Value: | = | $305,000 | |
| (–) Productivity Loss: | – | $0 | |
| | | -------------------------- | |
| (=) Subtotal: | = | $305,000 | |
| (+) Senior Appraised Value: | + | $0 | |
| (+) Non-Senior Appraised Value: | + | $305,000 | |
| | | -------------------------- | |
| (=) Total Appraised Value: | = | $305,000 | |
| (–) Senior Exemption Loss: | – | $0 | |
| (–) Exemption Loss: | – | $0 | |
| | | -------------------------- | |
| (=) Taxable Value: | = | $305,000 | |
Taxing Jurisdiction
| Owner: | FUNK JARED | | |
| % Ownership: | 100.0000000000% | | |
| Total Value: | $305,000 | | |
| Tax Area: | 105 - 140-F-4 |
| CERFD | CURRENT EXPENSE REFUND 010 | 0.0000000000 | $305,000 | $305,000 | $0.00 | | |
| CURREXP | CURRENT EXPENSE 010 | 1.0175366760 | $305,000 | $305,000 | $310.35 | | |
| HUMNSERV | HUMAN SERVICES 119 | 0.0250000000 | $305,000 | $305,000 | $7.63 | | |
| SLDREL | SOLDIERS RELIEF 121 | 0.0155990005 | $305,000 | $305,000 | $4.76 | | |
| EMERGSER | EMS 147 | 0.3792580840 | $305,000 | $305,000 | $115.67 | | |
| EMSRFD | EMS REFUND 147 | 0.0000000000 | $305,000 | $305,000 | $0.00 | | |
| FD4EXP | FD #4 EXPENSE 686 | 0.8836993059 | $305,000 | $305,000 | $269.53 | | |
| RLBRFD | RURAL LIBRARY REFUND 623 | 0.0000000000 | $305,000 | $305,000 | $0.00 | | |
| RURALLIB | RURAL LIBRARY 623 | 0.3710609029 | $305,000 | $305,000 | $113.17 | | |
| PORTRFD | PORT REFUND 640 | 0.0000000000 | $305,000 | $305,000 | $0.00 | | |
| PORTWWGEN | PORT OF WW 640 | 0.2460186015 | $305,000 | $305,000 | $75.04 | | |
| SD140BOND | SD #140 BOND 764 | 0.8342371393 | $305,000 | $305,000 | $254.44 | | |
| SD140GEN | SD #140 GENERAL 760 | 2.0646500647 | $305,000 | $305,000 | $629.72 | | |
| ST2 | STATE SCHOOL PART 2 600 | 0.8131451643 | $305,000 | $305,000 | $248.01 | | |
| STATESCHL | STATE SCHOOL 600 | 1.5158548041 | $305,000 | $305,000 | $462.34 | | |
| STREFUND | STATE REFUND LEVY 603 | 0.0000000000 | $305,000 | $305,000 | $0.00 | | |
| COROAD | COUNTY ROAD 115 | 1.6549953990 | $305,000 | $305,000 | $504.77 | | |
| CRPRD | COUNTY ROAD REFUND 115 | 0.0000000000 | $305,000 | $305,000 | $0.00 | | |
| | Total Tax Rate: | 9.8210551422 | | | | | |
| | | | | Taxes w/Current Exemptions: | $2,995.43 | | |
| | | | | Taxes w/o Exemptions: | $2,995.43 | | |
Improvement / Building
| Improvement #1: | RESIDENTIAL | State Code: | 11 | 992.0 sqft | Value: | $243,510 |
| Exterior Wall: | VINYL | Heating/Cooling: | WARM & COOLED AIR | | Number of Bathrooms: | 1 | Number of Bedrooms: | 2 | | Plumbing: | 6 | Roof Covering: | COMP SHINGLE |
|
| | Type | Description | Class CD | Sub Class CD | Year Built | Area |
| | MA | Main Area | 1 | 30 | 1950 | 992.0 |
| | SI1 | SITE IMPROVEMENT | 1 | 30 | 1950 | 1.5 |
| | BASE | BASEMENT | 1 | 30 | 1950 | 864.0 |
| | BRF | BASEMENT - REC FINISH | 1 | 30 | 1950 | 630.0 |
| | S1F | Single One Story Fireplace | 1 | 30 | 1950 | 1.0 |
| | PRC | PORCH W STEPS, ROOF,CEILED | 1 | 30 | 1950 | 24.0 |
| | CPC | COVERED CARPORT/PATIO | 1 | 30 | 1950 | 200.0 |
| | DTG | Detached Garage | 1 | 30 | 1950 | 240.0 |
Sketch
Property Image
Land
| 1 | RES 1 | Converted: Residential | 0.1568 | 6832.00 | 0.00 | 0.00 | 1.00 | $61,490 | $0 |
Roll Value History
| 2025 | N/A | N/A | N/A | N/A | N/A |
| 2024 | $243,510 | $61,490 | $0 | $305,000 | $305,000 |
| 2023 | $243,510 | $61,490 | $0 | $305,000 | $305,000 |
| 2022 | $243,510 | $49,530 | $0 | $293,040 | $293,040 |
| 2021 | $180,380 | $49,530 | $0 | $229,910 | $229,910 |
| 2020 | $128,840 | $49,530 | $0 | $178,370 | $178,370 |
| 2019 | $128,840 | $49,530 | $0 | $178,370 | $178,370 |
| 2018 | $135,100 | $41,000 | $0 | $176,100 | $176,100 |
| 2017 | $117,480 | $41,000 | $0 | $158,480 | $158,480 |
| 2016 | $97,900 | $41,000 | $0 | $138,900 | $138,900 |
| 2015 | $97,900 | $41,000 | $0 | $138,900 | $138,900 |
| 2014 | $97,900 | $41,000 | $0 | $138,900 | $138,900 |
| 2013 | $97,900 | $41,000 | $0 | $138,900 | $138,900 |
| 2012 | $99,700 | $41,000 | $0 | $0 | $0 |
| 2011 | $99,700 | $41,000 | $0 | $0 | $0 |
| 2010 | $93,000 | $41,000 | $0 | $0 | $0 |
| 2009 | $107,900 | $41,000 | $0 | $0 | $0 |
| 2008 | $107,900 | $41,000 | $0 | $0 | $0 |
| 2007 | $75,900 | $20,500 | $0 | $0 | $0 |
| 2006 | $75,900 | $20,500 | $0 | $0 | $0 |
Deed and Sales History
| 1 | 01/06/2023 | QCD | QUIT CLAIM DEED | FUNK ANITA | FUNK RICHARD | | | | 145229 | 2023-00077 |
| 2 | 01/06/2023 | SWD | STATUTORY WARRANTY DEED | CAVAZOS VERONICA C | FUNK JARED | | | $279,000.00 | 145228 | 2023-00076 |
| 3 | 09/09/2002 | WARRANTY D | WARRANTY DEED | VOGEL, FERN M TRUST | CAVAZOS, VERONICA C | | | $98,000.00 | 100328 | 2002-10073 |
| 4 | 01/01/1950 | WARRANTY D | WARRANTY DEED | | | | | $0.00 | 0 | 2520-339539 |
Payout Agreement
| No payout information available.. |