Property
Account |
| Property ID: | 10310 | Abbreviated Legal Description: | MELODY PARK TERRACE LOT 12 |
| Parcel Number: | 360716540012 | Agent Code: | |
| Type: | Real | | |
| Tax Area: | 5 - OL-140 | Land Use Code | 11 |
| Open Space: | N | DFL | N |
| Historic Property: | N | Remodel Property: | N |
| Multi-Family Redevelopment: | N | | |
| Township: | 7 | Section: | 16 |
| Range: | 36 |
Location |
| Address: | 2049 CRAWFORD DR WA 99362 | Mapsco: | |
| Neighborhood: | A-SFR | Map ID: | |
| Neighborhood CD: | 313011 |
Owner |
| Name: | KENWORTHY RICHARD J & LANEIL | Owner ID: | 61078 |
| Mailing Address: | 2049 CRAWFORD DR WALLA WALLA, WA 99362 | % Ownership: | 100.0000000000% |
| | | Exemptions: | |
Taxes and Assessment Details
Values
| (+) Improvement Homesite Value: | + | $0 | |
| (+) Improvement Non-Homesite Value: | + | $268,880 | |
| (+) Land Homesite Value: | + | $0 | |
| (+) Land Non-Homesite Value: | + | $90,000 | |
| (+) Curr Use (HS): | + | $0 | $0 |
| (+) Curr Use (NHS): | + | $0 | $0 |
| | | -------------------------- | |
| (=) Market Value: | = | $358,880 | |
| (–) Productivity Loss: | – | $0 | |
| | | -------------------------- | |
| (=) Subtotal: | = | $358,880 | |
| (+) Senior Appraised Value: | + | $0 | |
| (+) Non-Senior Appraised Value: | + | $358,880 | |
| | | -------------------------- | |
| (=) Total Appraised Value: | = | $358,880 | |
| (–) Senior Exemption Loss: | – | $0 | |
| (–) Exemption Loss: | – | $0 | |
| | | -------------------------- | |
| (=) Taxable Value: | = | $358,880 | |
Taxing Jurisdiction
| Owner: | KENWORTHY RICHARD J & LANEIL | | |
| % Ownership: | 100.0000000000% | | |
| Total Value: | $358,880 | | |
| Tax Area: | 5 - OL-140 |
| CERFD | CURRENT EXPENSE REFUND 010 | 0.0000000000 | $358,880 | $358,880 | $0.00 | | |
| CURREXP | CURRENT EXPENSE 010 | 1.0175366760 | $358,880 | $358,880 | $365.17 | | |
| HUMNSERV | HUMAN SERVICES 119 | 0.0250000000 | $358,880 | $358,880 | $8.97 | | |
| SLDREL | SOLDIERS RELIEF 121 | 0.0155990005 | $358,880 | $358,880 | $5.60 | | |
| EMERGSER | EMS 147 | 0.3792580840 | $358,880 | $358,880 | $136.11 | | |
| EMSRFD | EMS REFUND 147 | 0.0000000000 | $358,880 | $358,880 | $0.00 | | |
| PORTRFD | PORT REFUND 640 | 0.0000000000 | $358,880 | $358,880 | $0.00 | | |
| PORTWWGEN | PORT OF WW 640 | 0.2460186015 | $358,880 | $358,880 | $88.29 | | |
| SD140BOND | SD #140 BOND 764 | 0.8342371393 | $358,880 | $358,880 | $299.39 | | |
| SD140GEN | SD #140 GENERAL 760 | 2.0646500647 | $358,880 | $358,880 | $740.96 | | |
| ST2 | STATE SCHOOL PART 2 600 | 0.8131451643 | $358,880 | $358,880 | $291.82 | | |
| STATESCHL | STATE SCHOOL 600 | 1.5158548041 | $358,880 | $358,880 | $544.01 | | |
| STREFUND | STATE REFUND LEVY 603 | 0.0000000000 | $358,880 | $358,880 | $0.00 | | |
| CWWBOND | C OF WW BOND 643 | 0.2760494372 | $358,880 | $358,880 | $99.07 | | |
| CWWGEN | CITY OF WW 631 | 1.6100204973 | $358,880 | $358,880 | $577.80 | | |
| CWWRFD | CITY OF WALLA WALLA REFUND 631 | 0.0000000000 | $358,880 | $358,880 | $0.00 | | |
| | Total Tax Rate: | 8.7973694689 | | | | | |
| | | | | Taxes w/Current Exemptions: | $3,157.19 | | |
| | | | | Taxes w/o Exemptions: | $3,157.19 | | |
Improvement / Building
| Improvement #1: | RESIDENTIAL | State Code: | 11 | 1160.0 sqft | Value: | $268,880 |
| Exterior Wall: | SIDING | Heating/Cooling: | WARM & COOLED AIR | | Number of Bathrooms: | 2 | Number of Bedrooms: | 5 | | Plumbing: | 10 | Roof Covering: | COMP SHINGLE |
|
| | Type | Description | Class CD | Sub Class CD | Year Built | Area |
| | MA | Main Area | 1 | 30 | 1965 | 1160.0 |
| | SI1 | SITE IMPROVEMENT | 1 | 30 | 1965 | 1.5 |
| | BASE | BASEMENT | 1 | 30 | 1965 | 1160.0 |
| | BPF | BASEMENT -PARTITIONED FINISH | 1 | 30 | 1965 | 1000.0 |
| | ATG | Attached Garage | 1 | 30 | 1965 | 690.0 |
| | S1F | Single One Story Fireplace | 1 | 30 | 1965 | 1.0 |
| | RPC | OPEN PORCH W/ROOF , CEILED | 1 | 30 | 1965 | 20.0 |
| | CPC | COVERED CARPORT/PATIO | 1 | 30 | 1965 | 600.0 |
Sketch
Property Image
Land
| 1 | RES 1 | Converted: Residential | 0.1822 | 7935.00 | 0.00 | 0.00 | 1.00 | $90,000 | $0 |
Roll Value History
| 2025 | N/A | N/A | N/A | N/A | N/A |
| 2024 | $268,880 | $90,000 | $0 | $358,880 | $358,880 |
| 2023 | $268,880 | $90,000 | $0 | $358,880 | $358,880 |
| 2022 | $268,880 | $90,000 | $0 | $358,880 | $358,880 |
| 2021 | $190,800 | $55,000 | $0 | $245,800 | $245,800 |
| 2020 | $165,910 | $55,000 | $0 | $220,910 | $220,910 |
| 2019 | $165,910 | $55,000 | $0 | $220,910 | $220,910 |
| 2018 | $144,270 | $55,000 | $0 | $199,270 | $199,270 |
| 2017 | $144,270 | $55,000 | $0 | $199,270 | $199,270 |
| 2016 | $131,150 | $55,000 | $0 | $186,150 | $186,150 |
| 2015 | $123,200 | $55,000 | $0 | $178,200 | $178,200 |
| 2014 | $123,200 | $55,000 | $0 | $178,200 | $178,200 |
| 2013 | $123,200 | $55,000 | $0 | $178,200 | $178,200 |
| 2012 | $132,600 | $55,000 | $0 | $0 | $0 |
| 2011 | $132,600 | $55,000 | $0 | $0 | $0 |
| 2010 | $119,500 | $40,000 | $0 | $0 | $0 |
| 2009 | $137,200 | $40,000 | $0 | $0 | $0 |
| 2008 | $128,800 | $40,000 | $0 | $0 | $0 |
| 2007 | $128,800 | $40,000 | $0 | $0 | $0 |
| 2006 | $92,900 | $25,000 | $0 | $0 | $0 |
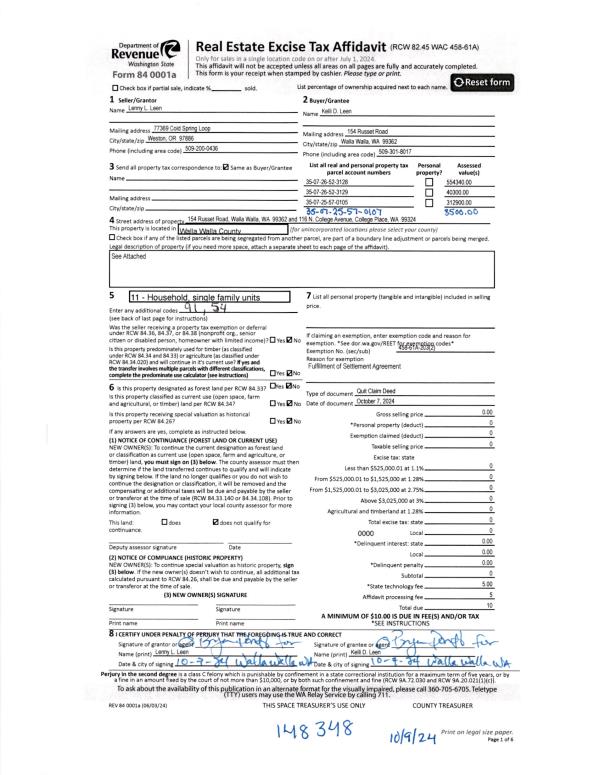
Deed and Sales History
| 1 | 08/01/2024 | QCD | QUIT CLAIM DEED | KENWORTHY RICHARD J & LANEIL | KENWORTHY RICHARD J | | | | 147960 | 2024-04198 |
| 2 | 06/15/2017 | SWD | STATUTORY WARRANTY DEED | SCHULTZ KEITH A | KENWORTHY RICHARD J & LANEIL | | | $209,000.00 | 132608 | 2017-04563 |
| 3 | 08/31/2005 | WARRANTY D | WARRANTY DEED | MILES, MONTY L & KAREN A | SCHULTZ, KEITH A | | | $169,000.00 | 108378 | 2005-10816 |
| 4 | 05/21/2004 | WARRANTY D | WARRANTY DEED | HUMPHREYS, J MICHAEL | MILES, MONTY L & KAREN A | | | $155,000.00 | 104814 | 2004-05514 |
| 5 | 11/04/1991 | QCD | QUIT CLAIM DEED | | | | | $62,000.00 | 0 | 1909-104372 |
Payout Agreement
| No payout information available.. |