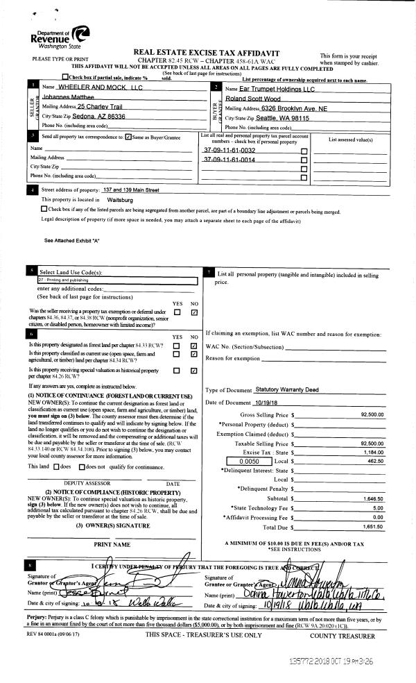
Property
Account |
| Property ID: | 10297 | Abbreviated Legal Description: | 29-7-36 TAX 111 |
| Parcel Number: | 360729420014 | Agent Code: | |
| Type: | Real | | |
| Tax Area: | 1 - OL-140-F | Land Use Code | 11 |
| Open Space: | N | DFL | N |
| Historic Property: | N | Remodel Property: | N |
| Multi-Family Redevelopment: | N | | |
| Township: | 7 | Section: | 29 |
| Range: | 36 |
Location |
| Address: | 943 S 3RD AVE WA 99362 | Mapsco: | |
| Neighborhood: | Fair Multi Res | Map ID: | |
| Neighborhood CD: | 612081 |
Owner |
| Name: | WIESSNER HARRY W & REBECCA | Owner ID: | 2327 |
| Mailing Address: | %WINDERMERE PROPERTY MANAGEMENT 22 E POPLAR ST STE 204 WALLA WALLA, WA 99362 | % Ownership: | 100.0000000000% |
| | | Exemptions: | |
Taxes and Assessment Details
Values
| (+) Improvement Homesite Value: | + | $0 | |
| (+) Improvement Non-Homesite Value: | + | $175,120 | |
| (+) Land Homesite Value: | + | $0 | |
| (+) Land Non-Homesite Value: | + | $57,120 | |
| (+) Curr Use (HS): | + | $0 | $0 |
| (+) Curr Use (NHS): | + | $0 | $0 |
| | | -------------------------- | |
| (=) Market Value: | = | $232,240 | |
| (–) Productivity Loss: | – | $0 | |
| | | -------------------------- | |
| (=) Subtotal: | = | $232,240 | |
| (+) Senior Appraised Value: | + | $0 | |
| (+) Non-Senior Appraised Value: | + | $232,240 | |
| | | -------------------------- | |
| (=) Total Appraised Value: | = | $232,240 | |
| (–) Senior Exemption Loss: | – | $0 | |
| (–) Exemption Loss: | – | $0 | |
| | | -------------------------- | |
| (=) Taxable Value: | = | $232,240 | |
Taxing Jurisdiction
| Owner: | WIESSNER HARRY W & REBECCA | | |
| % Ownership: | 100.0000000000% | | |
| Total Value: | $232,240 | | |
| Tax Area: | 1 - OL-140-F |
| CERFD | CURRENT EXPENSE REFUND 010 | 0.0000000000 | $232,240 | $232,240 | $0.00 | | |
| CURREXP | CURRENT EXPENSE 010 | 1.0175366760 | $232,240 | $232,240 | $236.31 | | |
| HUMNSERV | HUMAN SERVICES 119 | 0.0250000000 | $232,240 | $232,240 | $5.81 | | |
| SLDREL | SOLDIERS RELIEF 121 | 0.0155990005 | $232,240 | $232,240 | $3.62 | | |
| EMERGSER | EMS 147 | 0.3792580840 | $232,240 | $232,240 | $88.08 | | |
| EMSRFD | EMS REFUND 147 | 0.0000000000 | $232,240 | $232,240 | $0.00 | | |
| PORTRFD | PORT REFUND 640 | 0.0000000000 | $232,240 | $232,240 | $0.00 | | |
| PORTWWGEN | PORT OF WW 640 | 0.2460186015 | $232,240 | $232,240 | $57.14 | | |
| SD140BOND | SD #140 BOND 764 | 0.8342371393 | $232,240 | $232,240 | $193.74 | | |
| SD140GEN | SD #140 GENERAL 760 | 2.0646500647 | $232,240 | $232,240 | $479.49 | | |
| ST2 | STATE SCHOOL PART 2 600 | 0.8131451643 | $232,240 | $232,240 | $188.84 | | |
| STATESCHL | STATE SCHOOL 600 | 1.5158548041 | $232,240 | $232,240 | $352.04 | | |
| STREFUND | STATE REFUND LEVY 603 | 0.0000000000 | $232,240 | $232,240 | $0.00 | | |
| CWWBOND | C OF WW BOND 643 | 0.2760494372 | $232,240 | $232,240 | $64.11 | | |
| CWWGEN | CITY OF WW 631 | 1.6100204973 | $232,240 | $232,240 | $373.91 | | |
| CWWRFD | CITY OF WALLA WALLA REFUND 631 | 0.0000000000 | $232,240 | $232,240 | $0.00 | | |
| | Total Tax Rate: | 8.7973694689 | | | | | |
| | | | | Taxes w/Current Exemptions: | $2,043.09 | | |
| | | | | Taxes w/o Exemptions: | $2,043.09 | | |
Improvement / Building
| Improvement #1: | RESIDENTIAL | State Code: | 11 | 720.0 sqft | Value: | $141,020 |
| Exterior Wall: | SIDING | Foundation: | POST & PIER | | Heating/Cooling: | WARM & COOLED AIR | Number of Bathrooms: | 1 | | Number of Bedrooms: | 2 | Plumbing: | 7 | | Roof Covering: | COMP SHINGLE |   |   |
|
| | Type | Description | Class CD | Sub Class CD | Year Built | Area |
| | MA | Main Area | 1 | 25 | 1910 | 720.0 |
| | SI1 | SITE IMPROVEMENT | 1 | 25 | 1910 | 1.0 |
| | WDR | WOOD DECK W/ROOF | 1 | 25 | 1910 | 60.0 |
| | CPC | COVERED CARPORT/PATIO | 1 | 25 | 1910 | 320.0 |
| Improvement #2: | RESIDENTIAL | State Code: | 11 | 420.0 sqft | Value: | $34,100 |
| Exterior Wall: | SIDING | Foundation: | POST & PIER | | Heating/Cooling: | BASEBOARD ELECTRIC | Number of Bathrooms: | 1 | | Number of Bedrooms: | 1 | Plumbing: | 7 | | Roof Covering: | COMP SHINGLE |   |   |
|
| | Type | Description | Class CD | Sub Class CD | Year Built | Area |
| | MA | Main Area | 1 | 10 | 1910 | 420.0 |
| | SI1 | SITE IMPROVEMENT | 1 | 10 | 1910 | 1.0 |
| | RPO | OPEN PORCH W/ROOF | 1 | 10 | 1910 | 12.0 |
| | UTST | Utility Storage Shed | 1 | 10 | 1910 | 54.0 |
Sketch
Property Image
Land
| 1 | RES 1 | Converted: Residential | 0.1639 | 7140.00 | 0.00 | 0.00 | 1.00 | $57,120 | $0 |
Roll Value History
| 2025 | N/A | N/A | N/A | N/A | N/A |
| 2024 | $175,120 | $57,120 | $0 | $232,240 | $232,240 |
| 2023 | $175,120 | $57,120 | $0 | $232,240 | $232,240 |
| 2022 | $175,120 | $44,630 | $0 | $219,750 | $219,750 |
| 2021 | $120,780 | $44,630 | $0 | $165,410 | $165,410 |
| 2020 | $86,270 | $44,630 | $0 | $130,900 | $130,900 |
| 2019 | $86,270 | $44,630 | $0 | $130,900 | $130,900 |
| 2018 | $58,520 | $42,800 | $0 | $101,320 | $101,320 |
| 2017 | $58,520 | $42,800 | $0 | $101,320 | $101,320 |
| 2016 | $53,200 | $42,800 | $0 | $96,000 | $96,000 |
| 2015 | $53,200 | $42,800 | $0 | $96,000 | $96,000 |
| 2014 | $53,200 | $42,800 | $0 | $96,000 | $96,000 |
| 2013 | $53,200 | $42,800 | $0 | $96,000 | $96,000 |
| 2012 | $73,500 | $42,800 | $0 | $0 | $0 |
| 2011 | $73,500 | $42,800 | $0 | $0 | $0 |
| 2010 | $73,500 | $42,800 | $0 | $0 | $0 |
| 2009 | $86,500 | $42,800 | $0 | $0 | $0 |
| 2008 | $86,500 | $42,800 | $0 | $0 | $0 |
| 2007 | $67,700 | $14,300 | $0 | $0 | $0 |
| 2006 | $67,700 | $14,300 | $0 | $0 | $0 |
Deed and Sales History
| 1 | 12/24/1974 | QCD | QUIT CLAIM DEED | | | | | $6,500.00 | 0 | 2205-41630 |
Payout Agreement
| No payout information available.. |