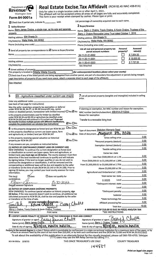
Property
Account |
| Property ID: | 10257 | Abbreviated Legal Description: | 29-7-36 TAX 43 |
| Parcel Number: | 360729230005 | Agent Code: | |
| Type: | Real | | |
| Tax Area: | 1 - OL-140-F | Land Use Code | 11 |
| Open Space: | N | DFL | N |
| Historic Property: | N | Remodel Property: | N |
| Multi-Family Redevelopment: | N | | |
| Township: | 7 | Section: | 29 |
| Range: | 36 |
Location |
| Address: | 319 W MAPLE ST WA 99362 | Mapsco: | |
| Neighborhood: | Fair Res | Map ID: | |
| Neighborhood CD: | 612011 |
Owner |
| Name: | EXUM AARON JM & LAUREN T | Owner ID: | 71572 |
| Mailing Address: | 319 WEST MAPLE ST WALLA WALLA, WA 99362 | % Ownership: | 100.0000000000% |
| | | Exemptions: | |
Taxes and Assessment Details
Values
| (+) Improvement Homesite Value: | + | $0 | |
| (+) Improvement Non-Homesite Value: | + | $196,560 | |
| (+) Land Homesite Value: | + | $0 | |
| (+) Land Non-Homesite Value: | + | $57,600 | |
| (+) Curr Use (HS): | + | $0 | $0 |
| (+) Curr Use (NHS): | + | $0 | $0 |
| | | -------------------------- | |
| (=) Market Value: | = | $254,160 | |
| (–) Productivity Loss: | – | $0 | |
| | | -------------------------- | |
| (=) Subtotal: | = | $254,160 | |
| (+) Senior Appraised Value: | + | $0 | |
| (+) Non-Senior Appraised Value: | + | $254,160 | |
| | | -------------------------- | |
| (=) Total Appraised Value: | = | $254,160 | |
| (–) Senior Exemption Loss: | – | $0 | |
| (–) Exemption Loss: | – | $0 | |
| | | -------------------------- | |
| (=) Taxable Value: | = | $254,160 | |
Taxing Jurisdiction
| Owner: | EXUM AARON JM & LAUREN T | | |
| % Ownership: | 100.0000000000% | | |
| Total Value: | $254,160 | | |
| Tax Area: | 1 - OL-140-F |
| CERFD | CURRENT EXPENSE REFUND 010 | 0.0000000000 | $254,160 | $254,160 | $0.00 | | |
| CURREXP | CURRENT EXPENSE 010 | 1.0175366760 | $254,160 | $254,160 | $258.62 | | |
| HUMNSERV | HUMAN SERVICES 119 | 0.0250000000 | $254,160 | $254,160 | $6.35 | | |
| SLDREL | SOLDIERS RELIEF 121 | 0.0155990005 | $254,160 | $254,160 | $3.96 | | |
| EMERGSER | EMS 147 | 0.3792580840 | $254,160 | $254,160 | $96.39 | | |
| EMSRFD | EMS REFUND 147 | 0.0000000000 | $254,160 | $254,160 | $0.00 | | |
| PORTRFD | PORT REFUND 640 | 0.0000000000 | $254,160 | $254,160 | $0.00 | | |
| PORTWWGEN | PORT OF WW 640 | 0.2460186015 | $254,160 | $254,160 | $62.53 | | |
| SD140BOND | SD #140 BOND 764 | 0.8342371393 | $254,160 | $254,160 | $212.03 | | |
| SD140GEN | SD #140 GENERAL 760 | 2.0646500647 | $254,160 | $254,160 | $524.75 | | |
| ST2 | STATE SCHOOL PART 2 600 | 0.8131451643 | $254,160 | $254,160 | $206.67 | | |
| STATESCHL | STATE SCHOOL 600 | 1.5158548041 | $254,160 | $254,160 | $385.27 | | |
| STREFUND | STATE REFUND LEVY 603 | 0.0000000000 | $254,160 | $254,160 | $0.00 | | |
| CWWBOND | C OF WW BOND 643 | 0.2760494372 | $254,160 | $254,160 | $70.16 | | |
| CWWGEN | CITY OF WW 631 | 1.6100204973 | $254,160 | $254,160 | $409.20 | | |
| CWWRFD | CITY OF WALLA WALLA REFUND 631 | 0.0000000000 | $254,160 | $254,160 | $0.00 | | |
| | Total Tax Rate: | 8.7973694689 | | | | | |
| | | | | Taxes w/Current Exemptions: | $2,235.93 | | |
| | | | | Taxes w/o Exemptions: | $2,235.93 | | |
Improvement / Building
| Improvement #1: | RESIDENTIAL | State Code: | 11 | 1224.0 sqft | Value: | $196,560 |
| Exterior Wall: | SIDING | Foundation: | SLAB FOUNDATION | | Heating/Cooling: | BASEBOARD ELECTRIC | Number of Bathrooms: | 1 | | Number of Bedrooms: | 3 | Plumbing: | 7 | | Roof Covering: | COMP SHINGLE |   |   |
|
| | Type | Description | Class CD | Sub Class CD | Year Built | Area |
| | MA | Main Area | 1 | 25 | 1961 | 1224.0 |
| | SI1 | SITE IMPROVEMENT | 1 | 25 | 1961 | 1.0 |
| | SWP | Solid Wall Porch | 1 | 25 | 2011 | 40.0 |
Sketch
Property Image
Land
| 1 | RES 1 | Converted: Residential | 0.1653 | 7200.00 | 0.00 | 0.00 | 1.00 | $57,600 | $0 |
Roll Value History
| 2025 | N/A | N/A | N/A | N/A | N/A |
| 2024 | $196,560 | $57,600 | $0 | $254,160 | $254,160 |
| 2023 | $196,560 | $57,600 | $0 | $254,160 | $254,160 |
| 2022 | $196,560 | $45,000 | $0 | $241,560 | $241,560 |
| 2021 | $163,800 | $45,000 | $0 | $208,800 | $208,800 |
| 2020 | $126,000 | $45,000 | $0 | $171,000 | $171,000 |
| 2019 | $126,000 | $45,000 | $0 | $171,000 | $171,000 |
| 2018 | $94,690 | $43,200 | $0 | $137,890 | $137,890 |
| 2017 | $105,210 | $43,200 | $0 | $148,410 | $148,410 |
| 2016 | $87,680 | $43,200 | $0 | $130,880 | $130,880 |
| 2015 | $87,680 | $43,200 | $0 | $130,880 | $130,880 |
| 2014 | $83,500 | $43,200 | $0 | $126,700 | $126,700 |
| 2013 | $83,500 | $43,200 | $0 | $126,700 | $126,700 |
| 2012 | $83,500 | $43,200 | $0 | $0 | $0 |
| 2011 | $75,400 | $43,200 | $0 | $0 | $0 |
| 2010 | $69,700 | $43,200 | $0 | $0 | $0 |
| 2009 | $82,200 | $43,200 | $0 | $0 | $0 |
| 2008 | $82,200 | $43,200 | $0 | $0 | $0 |
| 2007 | $56,100 | $14,400 | $0 | $0 | $0 |
| 2006 | $56,100 | $14,400 | $0 | $0 | $0 |
Deed and Sales History
| 1 | 07/25/2025 | SWD | STATUTORY WARRANTY DEED | EXUM AARON JM & LAUREN T | FIGIRRAD PAUL | | | $314,000.00 | 149753 | 2025-04334 |
| 2 | 02/01/2022 | QCD | QUIT CLAIM DEED | EXUM AARON JAMES MICHAEL | EXUM AARON JM & LAUREN T | | | $0.00 | 143824 | 2022-03504 |
| 3 | 12/03/2020 | SWD | STATUTORY WARRANTY DEED | SAVELESKY MARK G & KARIANN | EXUM AARON JAMES MICHAEL | | | $221,500.00 | 140481 | 2020-12827 |
| 4 | 07/08/1994 | WARRANTY D | WARRANTY DEED | | | | | $62,250.00 | 82069 | 2219-408001 |
Payout Agreement
| No payout information available.. |