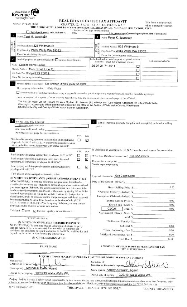
Property
Account |
| Property ID: | 10187 | Abbreviated Legal Description: | MTN VIEW TAX 15 LESS TAX 18, 20, & 19 |
| Parcel Number: | 360728854831 | Agent Code: | |
| Type: | Real | | |
| Tax Area: | 1 - OL-140-F | Land Use Code | 11 |
| Open Space: | N | DFL | N |
| Historic Property: | N | Remodel Property: | N |
| Multi-Family Redevelopment: | N | | |
| Township: | 7 | Section: | 28 |
| Range: | 36 |
Location |
| Address: | 890 E TIETAN ST WA 99362 | Mapsco: | |
| Neighborhood: | G Res | Map ID: | |
| Neighborhood CD: | 614011 |
Owner |
| Name: | CRIBBS ERIC & LIANA M WOLFE-CRIBBS | Owner ID: | 72517 |
| Mailing Address: | 890 E TIETAN ST WALLA WALLA, WA 99362 | % Ownership: | 100.0000000000% |
| | | Exemptions: | |
Taxes and Assessment Details
Values
| (+) Improvement Homesite Value: | + | $0 | |
| (+) Improvement Non-Homesite Value: | + | $305,400 | |
| (+) Land Homesite Value: | + | $0 | |
| (+) Land Non-Homesite Value: | + | $92,250 | |
| (+) Curr Use (HS): | + | $0 | $0 |
| (+) Curr Use (NHS): | + | $0 | $0 |
| | | -------------------------- | |
| (=) Market Value: | = | $397,650 | |
| (–) Productivity Loss: | – | $0 | |
| | | -------------------------- | |
| (=) Subtotal: | = | $397,650 | |
| (+) Senior Appraised Value: | + | $0 | |
| (+) Non-Senior Appraised Value: | + | $397,650 | |
| | | -------------------------- | |
| (=) Total Appraised Value: | = | $397,650 | |
| (–) Senior Exemption Loss: | – | $0 | |
| (–) Exemption Loss: | – | $0 | |
| | | -------------------------- | |
| (=) Taxable Value: | = | $397,650 | |
Taxing Jurisdiction
| Owner: | CRIBBS ERIC & LIANA M WOLFE-CRIBBS | | |
| % Ownership: | 100.0000000000% | | |
| Total Value: | $397,650 | | |
| Tax Area: | 1 - OL-140-F |
| CERFD | CURRENT EXPENSE REFUND 010 | 0.0000000000 | $397,650 | $397,650 | $0.00 | | |
| CURREXP | CURRENT EXPENSE 010 | 1.0175366760 | $397,650 | $397,650 | $404.62 | | |
| HUMNSERV | HUMAN SERVICES 119 | 0.0250000000 | $397,650 | $397,650 | $9.94 | | |
| SLDREL | SOLDIERS RELIEF 121 | 0.0155990005 | $397,650 | $397,650 | $6.20 | | |
| EMERGSER | EMS 147 | 0.3792580840 | $397,650 | $397,650 | $150.81 | | |
| EMSRFD | EMS REFUND 147 | 0.0000000000 | $397,650 | $397,650 | $0.00 | | |
| PORTRFD | PORT REFUND 640 | 0.0000000000 | $397,650 | $397,650 | $0.00 | | |
| PORTWWGEN | PORT OF WW 640 | 0.2460186015 | $397,650 | $397,650 | $97.83 | | |
| SD140BOND | SD #140 BOND 764 | 0.8342371393 | $397,650 | $397,650 | $331.73 | | |
| SD140GEN | SD #140 GENERAL 760 | 2.0646500647 | $397,650 | $397,650 | $821.01 | | |
| ST2 | STATE SCHOOL PART 2 600 | 0.8131451643 | $397,650 | $397,650 | $323.35 | | |
| STATESCHL | STATE SCHOOL 600 | 1.5158548041 | $397,650 | $397,650 | $602.78 | | |
| STREFUND | STATE REFUND LEVY 603 | 0.0000000000 | $397,650 | $397,650 | $0.00 | | |
| CWWBOND | C OF WW BOND 643 | 0.2760494372 | $397,650 | $397,650 | $109.77 | | |
| CWWGEN | CITY OF WW 631 | 1.6100204973 | $397,650 | $397,650 | $640.22 | | |
| CWWRFD | CITY OF WALLA WALLA REFUND 631 | 0.0000000000 | $397,650 | $397,650 | $0.00 | | |
| | Total Tax Rate: | 8.7973694689 | | | | | |
| | | | | Taxes w/Current Exemptions: | $3,498.26 | | |
| | | | | Taxes w/o Exemptions: | $3,498.26 | | |
Improvement / Building
| Improvement #1: | RESIDENTIAL | State Code: | 11 | 1599.0 sqft | Value: | $305,400 |
| Exterior Wall: | PLYWOOD | Heating/Cooling: | WARM & COOLED AIR | | Number of Bathrooms: | 2 | Number of Bedrooms: | 3 | | Plumbing: | 9 | Roof Covering: | COMP SHINGLE |
|
| | Type | Description | Class CD | Sub Class CD | Year Built | Area |
| | MA | Main Area | 1 | 30 | 1975 | 1599.0 |
| | SI1 | SITE IMPROVEMENT | 1 | 30 | 1975 | 3.5 |
| | BASE | BASEMENT | 1 | 30 | 1975 | 840.0 |
| | BPF | BASEMENT -PARTITIONED FINISH | 1 | 30 | 1975 | 756.0 |
| | ATG | Attached Garage | 1 | 30 | 1975 | 506.0 |
| | S1F | Single One Story Fireplace | 1 | 30 | 1975 | 1.0 |
| | SMP | SWIMMING POOL | 1 | 30 | 1975 | 1.0 |
| | RPC | OPEN PORCH W/ROOF , CEILED | 1 | 30 | 1975 | 150.0 |
Sketch
Property Image
Land
| 1 | RES 1 | Converted: Residential | 0.2118 | 9225.00 | 0.00 | 0.00 | 1.00 | $92,250 | $0 |
Roll Value History
| 2025 | N/A | N/A | N/A | N/A | N/A |
| 2024 | $305,400 | $92,250 | $0 | $397,650 | $397,650 |
| 2023 | $305,400 | $92,250 | $0 | $397,650 | $397,650 |
| 2022 | $305,400 | $76,110 | $0 | $381,510 | $381,510 |
| 2021 | $265,560 | $76,110 | $0 | $341,670 | $341,670 |
| 2020 | $204,280 | $76,110 | $0 | $280,390 | $280,390 |
| 2019 | $204,280 | $76,110 | $0 | $280,390 | $280,390 |
| 2018 | $240,500 | $46,500 | $0 | $287,000 | $287,000 |
| 2017 | $200,420 | $46,500 | $0 | $246,920 | $246,920 |
| 2016 | $182,200 | $46,500 | $0 | $228,700 | $228,700 |
| 2015 | $182,200 | $46,500 | $0 | $228,700 | $228,700 |
| 2014 | $182,200 | $46,500 | $0 | $228,700 | $228,700 |
| 2013 | $182,200 | $46,500 | $0 | $228,700 | $228,700 |
| 2012 | $196,300 | $46,500 | $0 | $0 | $0 |
| 2011 | $196,300 | $46,500 | $0 | $0 | $0 |
| 2010 | $164,600 | $46,500 | $0 | $0 | $0 |
| 2009 | $188,000 | $46,500 | $0 | $0 | $0 |
| 2008 | $188,000 | $46,500 | $0 | $0 | $0 |
| 2007 | $117,200 | $24,000 | $0 | $0 | $0 |
| 2006 | $117,200 | $24,000 | $0 | $0 | $0 |
Deed and Sales History
| 1 | 09/23/2022 | SWD | STATUTORY WARRANTY DEED | ARCHER JAMES S | CRIBBS ERIC & LIANA M WOLFE-CRIBBS | | | $370,000.00 | 144741 | 2022-07943 |
| 2 | 04/30/2012 | QCD | QUIT CLAIM DEED | ARCHER, DOLORES V | ARCHER, JAMES S | | | | 121735 | 2012-03469 |
| 3 | 01/11/1983 | WARRANTY D | WARRANTY DEED | | | | | $89,000.00 | 0 | 1358-300237 |
Payout Agreement
| No payout information available.. |