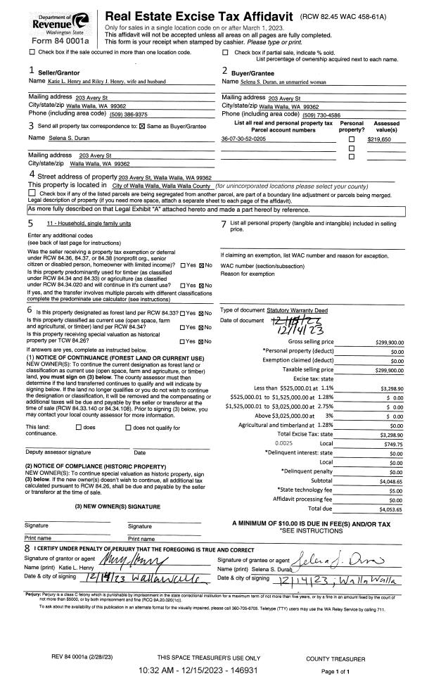
Property
Account |
| Property ID: | 10165 | Abbreviated Legal Description: | MTN VIEW PARCEL #33 BLK 35 |
| Parcel Number: | 360728853533 | Agent Code: | |
| Type: | Real | | |
| Tax Area: | 1 - OL-140-F | Land Use Code | 11 |
| Open Space: | N | DFL | N |
| Historic Property: | N | Remodel Property: | N |
| Multi-Family Redevelopment: | N | | |
| Township: | 7 | Section: | 28 |
| Range: | 36 |
Location |
| Address: | 885 E TIETAN ST WA 99362 | Mapsco: | |
| Neighborhood: | G Res | Map ID: | |
| Neighborhood CD: | 614011 |
Owner |
| Name: | ADAMS JOHN HAGEN & CAROLYN LOGAN | Owner ID: | 66394 |
| Mailing Address: | 885 E TIETAN ST WALLA WALLA, WA 99362 | % Ownership: | 100.0000000000% |
| | | Exemptions: | |
Taxes and Assessment Details
Values
| (+) Improvement Homesite Value: | + | $0 | |
| (+) Improvement Non-Homesite Value: | + | $400,030 | |
| (+) Land Homesite Value: | + | $0 | |
| (+) Land Non-Homesite Value: | + | $120,500 | |
| (+) Curr Use (HS): | + | $0 | $0 |
| (+) Curr Use (NHS): | + | $0 | $0 |
| | | -------------------------- | |
| (=) Market Value: | = | $520,530 | |
| (–) Productivity Loss: | – | $0 | |
| | | -------------------------- | |
| (=) Subtotal: | = | $520,530 | |
| (+) Senior Appraised Value: | + | $0 | |
| (+) Non-Senior Appraised Value: | + | $520,530 | |
| | | -------------------------- | |
| (=) Total Appraised Value: | = | $520,530 | |
| (–) Senior Exemption Loss: | – | $0 | |
| (–) Exemption Loss: | – | $0 | |
| | | -------------------------- | |
| (=) Taxable Value: | = | $520,530 | |
Taxing Jurisdiction
| Owner: | ADAMS JOHN HAGEN & CAROLYN LOGAN | | |
| % Ownership: | 100.0000000000% | | |
| Total Value: | $520,530 | | |
| Tax Area: | 1 - OL-140-F |
| CERFD | CURRENT EXPENSE REFUND 010 | 0.0000000000 | $520,530 | $520,530 | $0.00 | | |
| CURREXP | CURRENT EXPENSE 010 | 1.0175366760 | $520,530 | $520,530 | $529.66 | | |
| HUMNSERV | HUMAN SERVICES 119 | 0.0250000000 | $520,530 | $520,530 | $13.01 | | |
| SLDREL | SOLDIERS RELIEF 121 | 0.0155990005 | $520,530 | $520,530 | $8.12 | | |
| EMERGSER | EMS 147 | 0.3792580840 | $520,530 | $520,530 | $197.42 | | |
| EMSRFD | EMS REFUND 147 | 0.0000000000 | $520,530 | $520,530 | $0.00 | | |
| PORTRFD | PORT REFUND 640 | 0.0000000000 | $520,530 | $520,530 | $0.00 | | |
| PORTWWGEN | PORT OF WW 640 | 0.2460186015 | $520,530 | $520,530 | $128.06 | | |
| SD140BOND | SD #140 BOND 764 | 0.8342371393 | $520,530 | $520,530 | $434.25 | | |
| SD140GEN | SD #140 GENERAL 760 | 2.0646500647 | $520,530 | $520,530 | $1,074.71 | | |
| ST2 | STATE SCHOOL PART 2 600 | 0.8131451643 | $520,530 | $520,530 | $423.27 | | |
| STATESCHL | STATE SCHOOL 600 | 1.5158548041 | $520,530 | $520,530 | $789.05 | | |
| STREFUND | STATE REFUND LEVY 603 | 0.0000000000 | $520,530 | $520,530 | $0.00 | | |
| CWWBOND | C OF WW BOND 643 | 0.2760494372 | $520,530 | $520,530 | $143.69 | | |
| CWWGEN | CITY OF WW 631 | 1.6100204973 | $520,530 | $520,530 | $838.06 | | |
| CWWRFD | CITY OF WALLA WALLA REFUND 631 | 0.0000000000 | $520,530 | $520,530 | $0.00 | | |
| | Total Tax Rate: | 8.7973694689 | | | | | |
| | | | | Taxes w/Current Exemptions: | $4,579.30 | | |
| | | | | Taxes w/o Exemptions: | $4,579.30 | | |
Improvement / Building
| Improvement #1: | RESIDENTIAL | State Code: | 11 | 1380.0 sqft | Value: | $400,030 |
| Exterior Wall: | STUCCO | Heating/Cooling: | WARM & COOLED AIR | | Number of Bathrooms: | 3 | Number of Bedrooms: | 3 | | Plumbing: | 13 | Roof Covering: | COMP SHINGLE |
|
| | Type | Description | Class CD | Sub Class CD | Year Built | Area |
| | MA | Main Area | 1 | 35 | 1977 | 1380.0 |
| | SI1 | SITE IMPROVEMENT | 1 | 35 | 1977 | 3.0 |
| | BASE | BASEMENT | 1 | 35 | 1977 | 1254.0 |
| | BPF | BASEMENT -PARTITIONED FINISH | 1 | 35 | 1977 | 1254.0 |
| | D2F | Double 2 Story Fireplace | 1 | 35 | 1977 | 1.0 |
| | BRW | BREEZEWAY | 1 | 35 | 1977 | 84.0 |
| | RPC | OPEN PORCH W/ROOF , CEILED | 1 | 35 | 1977 | 190.0 |
| | DTG | Detached Garage | 1 | 35 | 1977 | 528.0 |
Sketch
Property Image
Land
| 1 | RES 1 | Converted: Residential | 0.2870 | 12500.00 | 0.00 | 0.00 | 1.00 | $120,500 | $0 |
Roll Value History
| 2025 | N/A | N/A | N/A | N/A | N/A |
| 2024 | $400,030 | $120,500 | $0 | $520,530 | $520,530 |
| 2023 | $400,030 | $120,500 | $0 | $520,530 | $520,530 |
| 2022 | $307,710 | $99,380 | $0 | $407,090 | $407,090 |
| 2021 | $267,580 | $99,380 | $0 | $366,960 | $366,960 |
| 2020 | $222,980 | $99,380 | $0 | $322,360 | $322,360 |
| 2019 | $222,980 | $99,380 | $0 | $322,360 | $322,360 |
| 2018 | $223,410 | $49,300 | $0 | $272,710 | $272,710 |
| 2017 | $212,770 | $49,300 | $0 | $262,070 | $262,070 |
| 2016 | $165,800 | $49,300 | $0 | $215,100 | $215,100 |
| 2015 | $165,800 | $49,300 | $0 | $215,100 | $215,100 |
| 2014 | $165,800 | $49,300 | $0 | $215,100 | $215,100 |
| 2013 | $165,800 | $49,300 | $0 | $215,100 | $215,100 |
| 2012 | $169,100 | $49,300 | $0 | $0 | $0 |
| 2011 | $169,100 | $49,300 | $0 | $0 | $0 |
| 2010 | $140,600 | $49,300 | $0 | $0 | $0 |
| 2009 | $161,700 | $49,300 | $0 | $0 | $0 |
| 2008 | $161,700 | $49,300 | $0 | $0 | $0 |
| 2007 | $110,200 | $26,800 | $0 | $0 | $0 |
| 2006 | $110,200 | $26,800 | $0 | $0 | $0 |
Deed and Sales History
| 1 | 12/03/2019 | SWD | STATUTORY WARRANTY DEED | PEASE JAMES D & DIANE L | ADAMS JOHN HAGEN & CAROLYN LOGAN | | | $325,000.00 | 138188 | 2019-09999 |
| 2 | 06/26/2002 | WARRANTY D | WARRANTY DEED | | | | | $137,900.00 | 99794 | 2002-0007307 |
Payout Agreement
| No payout information available.. |